Kohteen esittely
Viisikerroksinen kerrostalo keskustan kupeessa. Kaikissa asunnoissa on oma sauna ja osassa myös parveke.
Lähellä on päiväkoti, useampi koulu, koirapuisto, pesäpallokenttä sekä Tuusulanjärven ulkoilureitit sekä museot. Susheistaan kuuluisa K-Citymarket Järvenpää alle kilometrin päässä. Lisäksi alueella on muita ruokakauppoja. Kohde sijaitsee aivan juna-aseman vieressä.
Miksi Asuntosäätiö?
Me uskomme, että onnellinen koti ja laadukas asuminen kuuluvat kaikille. Emme tavoittele voittoa, vaan käytämme kaikki vastikkeista ja vuokrista saadut tulot toimintamme kehittämiseen. Jo yli 33 000 suomalaista on valinnut Asuntosäätiön tarjoaman kodin. Tiesithän, että myös lemmikit ovat tervetulleita kaikkiin koteihimme!
Rakennuksen tiedot
- Asumismuoto Asokoti
- Keskimääräinen asumisoikeusmaksu / jm² 398,81€
- Hissit 1
- Talosauna Ei
- Kuivaushuone Kyllä
- Asuntoja 23
- Asuinrakennuksia 1
- Käyttövastike / kk / jm² 13,65€
- Valmistumisvuosi 2002
- Porrashuoneet 1
- Energialuokka E
- Lämmitysmuoto Kauko
- Autopaikat 27
- Laajakaista Elisa
- Antennijärjestelmä Kaapeli
- KaapeliTV Elisa
- Kattomateriaali Pelti
- Runkomateriaali Betoni
- Lemmikit Sallittu
Huoneistot ja pohjakuvat: Sahankaari 5, Kerrostalo, Piharakennus
Lisää hakemukselle kaikki haluamasi asuntotyypit. Mahdollisuutesi asunnon saamiseksi paranevat, kun voimme tarjota sinulle kaikkia valitsemasi asuntotyypin asuntoja, jotka mahdollisesti vapautuvat myöhemmin tästä kohteesta. Olet automaattisesti näiden asuntotyyppien hakuprosessissa.
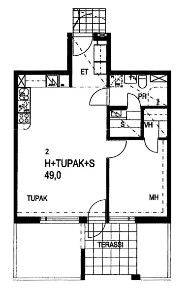
Sahankaari 5 A 16
1h+tk+s
, Kerrostalo
49 m2
4/5
Sahankaari 5 A 16
1h+tk+s
, Kerrostalo
49 m2
Kerros 4/5
Sahankaari 5 A 21
1h+tk+s
, Kerrostalo
49 m2
5/5
Sahankaari 5 A 21
1h+tk+s
, Kerrostalo
49 m2
Kerros 5/5
Sahankaari 5 A 6
1h+tk+s
, Kerrostalo
49 m2
2/5
Sahankaari 5 A 6
1h+tk+s
, Kerrostalo
49 m2
Kerros 2/5
Sahankaari 5 A 2
1h+tk+s
, Kerrostalo
49 m2
1/5
Sahankaari 5 A 2
1h+tk+s
, Kerrostalo
49 m2
Kerros 1/5
Sahankaari 5 A 11
1h+tk+s
, Kerrostalo
49 m2
3/5
Sahankaari 5 A 11
1h+tk+s
, Kerrostalo
49 m2
Kerros 3/5
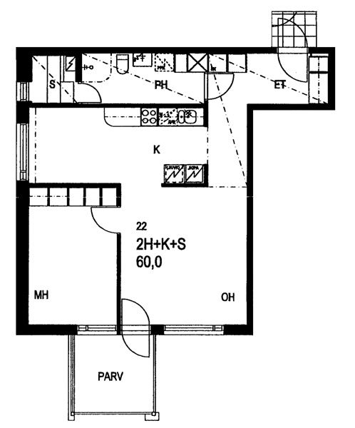
Sahankaari 5 A 22
2h+k+s
, Kerrostalo
60 m2
5/5
Sahankaari 5 A 22
2h+k+s
, Kerrostalo
60 m2
Kerros 5/5
Sahankaari 5 A 7
2h+k+s
, Kerrostalo
60 m2
2/5
Sahankaari 5 A 7
2h+k+s
, Kerrostalo
60 m2
Kerros 2/5
Sahankaari 5 A 12
2h+k+s
, Kerrostalo
60 m2
3/5
Sahankaari 5 A 12
2h+k+s
, Kerrostalo
60 m2
Kerros 3/5
Sahankaari 5 A 17
2h+k+s
, Kerrostalo
60 m2
4/5
Sahankaari 5 A 17
2h+k+s
, Kerrostalo
60 m2
Kerros 4/5
Sahankaari 5 A 1
2h+k+s
, Kerrostalo
60 m2
1/5
Sahankaari 5 A 1
2h+k+s
, Kerrostalo
60 m2
Kerros 1/5
Sahankaari 5 A 20
2h+tk+s
, Kerrostalo
70.5 m2
5/5
Sahankaari 5 A 20
2h+tk+s
, Kerrostalo
70.5 m2
Kerros 5/5
Sahankaari 5 A 3
2h+tk+s
, Kerrostalo
70.5 m2
1/5
Sahankaari 5 A 3
2h+tk+s
, Kerrostalo
70.5 m2
Kerros 1/5
Sahankaari 5 A 10
2h+tk+s
, Kerrostalo
70.5 m2
3/5
Sahankaari 5 A 10
2h+tk+s
, Kerrostalo
70.5 m2
Kerros 3/5
Sahankaari 5 A 15
2h+tk+s
, Kerrostalo
70.5 m2
4/5
Sahankaari 5 A 15
2h+tk+s
, Kerrostalo
70.5 m2
Kerros 4/5
Sahankaari 5 A 5
2h+tk+s
, Kerrostalo
70.5 m2
2/5
Sahankaari 5 A 5
2h+tk+s
, Kerrostalo
70.5 m2
Kerros 2/5
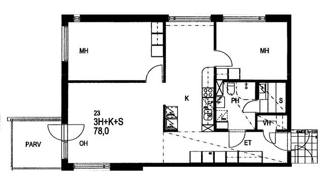
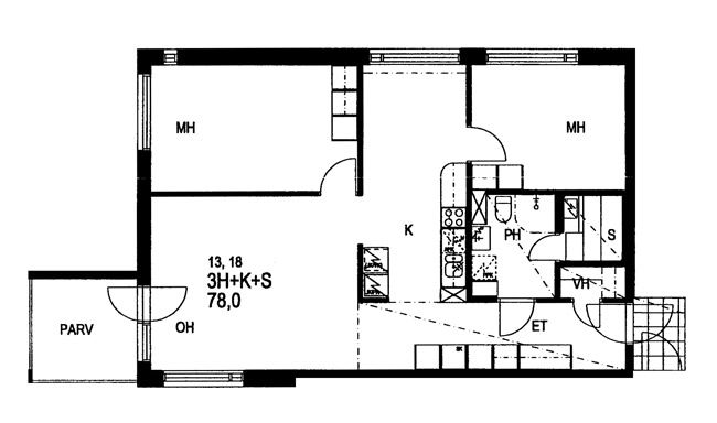
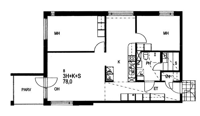
Sahankaari 5 A 23
3h+k+s
, Kerrostalo
78 m2
5/5
Sahankaari 5 A 23
3h+k+s
, Kerrostalo
78 m2
Kerros 5/5
Sahankaari 5 A 18
3h+k+s
, Kerrostalo
78 m2
4/5
Sahankaari 5 A 18
3h+k+s
, Kerrostalo
78 m2
Kerros 4/5
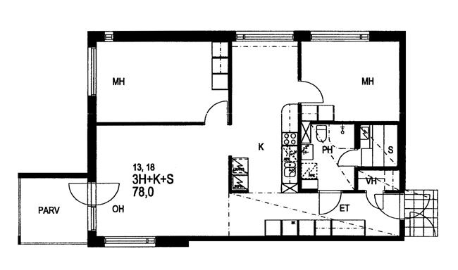
Sahankaari 5 A 13
3h+k+s
, Kerrostalo
78 m2
3/5
Sahankaari 5 A 13
3h+k+s
, Kerrostalo
78 m2
Kerros 3/5
Sahankaari 5 A 8
3h+k+s
, Kerrostalo
78 m2
2/5
Sahankaari 5 A 8
3h+k+s
, Kerrostalo
78 m2
Kerros 2/5
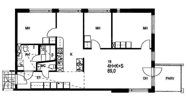
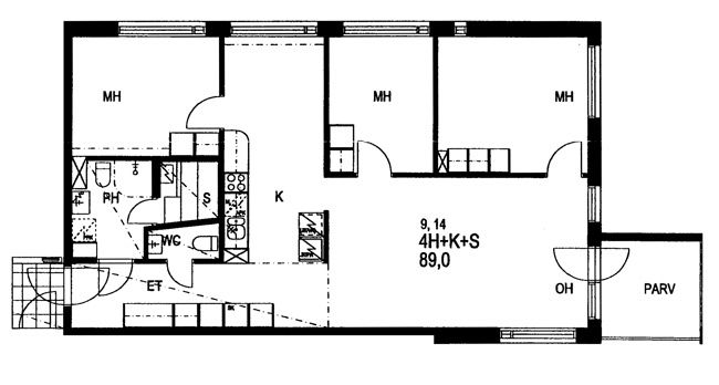
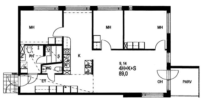
Sahankaari 5 A 9
4h+k+s
, Kerrostalo
89 m2
3/5
Sahankaari 5 A 9
4h+k+s
, Kerrostalo
89 m2
Kerros 3/5
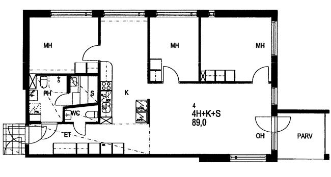
Sahankaari 5 A 4
4h+k+s
, Kerrostalo
89 m2
2/5
Sahankaari 5 A 4
4h+k+s
, Kerrostalo
89 m2
Kerros 2/5
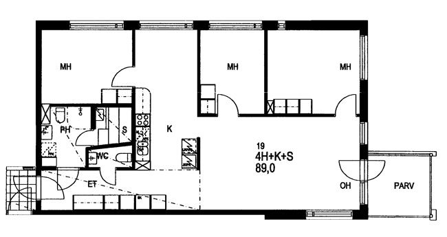
Sahankaari 5 A 19
4h+k+s
, Kerrostalo
89 m2
5/5
Sahankaari 5 A 19
4h+k+s
, Kerrostalo
89 m2
Kerros 5/5
Sahankaari 5 A 14
4h+k+s
, Kerrostalo
89 m2
4/5
Sahankaari 5 A 14
4h+k+s
, Kerrostalo
89 m2
Kerros 4/5