Kohteen esittely
Kodikas rivitalokokonaisuus viihtyisällä alueella päättyvän kadun päässä, luonnonläheisessä ympäristössä. Hyvät ulkoilumaastot Jyväsjärven rannan tuntumassa tai Asmalammen ympäristössä.
Vaajakosken kattavat palvelut muutaman kilometrin päässä. Jyskän alueella toimii monipuolinen koulu- ja päiväkotiverkosto.
Miksi Asuntosäätiö?
Me uskomme, että onnellinen koti ja laadukas asuminen kuuluvat kaikille. Emme tavoittele voittoa, vaan käytämme kaikki vastikkeista ja vuokrista saadut tulot toimintamme kehittämiseen. Jo yli 33 000 suomalaista on valinnut Asuntosäätiön tarjoaman kodin. Tiesithän, että myös lemmikit ovat tervetulleita kaikkiin koteihimme!
Rakennuksen tiedot
- Asumismuoto Asokoti
- Keskimääräinen asumisoikeusmaksu / jm² 325,05€
- Hissit Ei
- Talosauna Ei
- Asuntoja 18
- Asuinrakennuksia 4
- Käyttövastike / kk / jm² 11,15€
- Valmistumisvuosi 2000
- Energialuokka D
- Lämmitysmuoto Kauko
- Autopaikat 20
- Laajakaista Elisa
- Antennijärjestelmä Kaapeli
- KaapeliTV Elisa
- Kattomateriaali Tiili
- Runkomateriaali Betoni
- Lemmikit Sallittu
Huoneistot ja pohjakuvat: Järveläntie 32, Rivitalo, Piharakennus
Lisää hakemukselle kaikki haluamasi asuntotyypit. Mahdollisuutesi asunnon saamiseksi paranevat, kun voimme tarjota sinulle kaikkia valitsemasi asuntotyypin asuntoja, jotka mahdollisesti vapautuvat myöhemmin tästä kohteesta. Olet automaattisesti näiden asuntotyyppien hakuprosessissa.
Järveläntie 32 B 9
2h+k+s
, Rivitalo
60 m2
/2
Järveläntie 32 B 9
2h+k+s
, Rivitalo
60 m2
Kerros /2
Järveläntie 32 A 2
2h+k+s
, Rivitalo
60 m2
1/1
Järveläntie 32 A 2
2h+k+s
, Rivitalo
60 m2
Kerros 1/1
Järveläntie 32 A 3
2h+k+s
, Rivitalo
60 m2
1/1
Järveläntie 32 A 3
2h+k+s
, Rivitalo
60 m2
Kerros 1/1
Järveläntie 32 A 1
3h+k+s
, Rivitalo
72 m2
1/1
Järveläntie 32 A 1
3h+k+s
, Rivitalo
72 m2
Kerros 1/1
Järveläntie 32 D 15
3h+k+s
, Rivitalo
72 m2
1/1
Järveläntie 32 D 15
3h+k+s
, Rivitalo
72 m2
Kerros 1/1
Järveläntie 32 D 16
3h+k+s
, Rivitalo
72 m2
1/1
Järveläntie 32 D 16
3h+k+s
, Rivitalo
72 m2
Kerros 1/1
Järveläntie 32 D 17
3h+k+s
, Rivitalo
72 m2
1/1
Järveläntie 32 D 17
3h+k+s
, Rivitalo
72 m2
Kerros 1/1
Järveläntie 32 D 18
3h+k+s
, Rivitalo
72 m2
1/1
Järveläntie 32 D 18
3h+k+s
, Rivitalo
72 m2
Kerros 1/1
Järveläntie 32 B 8
4h+kodinh.+k+s
, Rivitalo
99 m2
1-2/2
Järveläntie 32 B 8
4h+kodinh.+k+s
, Rivitalo
99 m2
Kerros 1-2/2
Järveläntie 32 B 7
4h+kodinh.+k+s
, Rivitalo
99 m2
1-2/2
Järveläntie 32 B 7
4h+kodinh.+k+s
, Rivitalo
99 m2
Kerros 1-2/2
Järveläntie 32 B 5
4h+kodinh.+k+s
, Rivitalo
99 m2
1-2/2
Järveläntie 32 B 5
4h+kodinh.+k+s
, Rivitalo
99 m2
Kerros 1-2/2
Järveläntie 32 B 6
4h+kodinh.+k+s
, Rivitalo
99 m2
1-2/2
Järveläntie 32 B 6
4h+kodinh.+k+s
, Rivitalo
99 m2
Kerros 1-2/2
Järveläntie 32 C 12
4h+kodinh.+k+s
, Rivitalo
99 m2
1-2/2
Järveläntie 32 C 12
4h+kodinh.+k+s
, Rivitalo
99 m2
Kerros 1-2/2
Järveläntie 32 C 11
4h+kodinh.+k+s
, Rivitalo
99 m2
1-2/2
Järveläntie 32 C 11
4h+kodinh.+k+s
, Rivitalo
99 m2
Kerros 1-2/2
Järveläntie 32 C 13
4h+kodinh.+k+s
, Rivitalo
99 m2
Kerros 1-2/2
Järveläntie 32 B 4
5h+k+s
, Rivitalo
110.5 m2
1-2/2
Järveläntie 32 B 4
5h+k+s
, Rivitalo
110.5 m2
Kerros 1-2/2
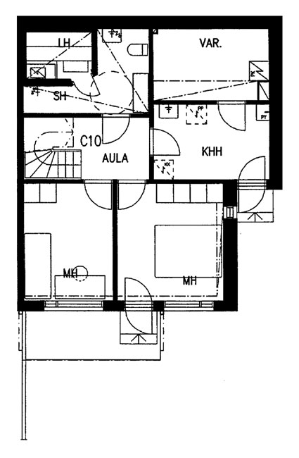
Järveläntie 32 C 10
5h+k+s
, Rivitalo
110.5 m2
1-2/2
Järveläntie 32 C 10
5h+k+s
, Rivitalo
110.5 m2
Kerros 1-2/2
Järveläntie 32 C 14
5h+k+s
, Rivitalo
110.5 m2
1-2/2
Järveläntie 32 C 14
5h+k+s
, Rivitalo
110.5 m2
Kerros 1-2/2