Kohteen esittely
Kodikas rivi-/pienkerrostalo vettä rakastavalle: Talo sijaitsee Jyväsjärven eri osat yhdistävän Äijälänsalmen rannan tuntumassa, Äijälänsalmen vanhan sillan lähellä. Salmen toisella puolella on Kuokkalankartano puulajistopuistoineen ja pienvenesatama.
Kävelymatkan päässä on myös lintutorni, uimaranta ja useampi leikkipuisto. Alueella on myös useampi ruokakauppa ja päiväkoti. Keskustakin on parin kilometrin päässä.
Miksi Asuntosäätiö?
Me uskomme, että onnellinen koti ja laadukas asuminen kuuluvat kaikille. Emme tavoittele voittoa, vaan käytämme kaikki vastikkeista ja vuokrista saadut tulot toimintamme kehittämiseen. Jo yli 33 000 suomalaista on valinnut Asuntosäätiön tarjoaman kodin. Tiesithän, että myös lemmikit ovat tervetulleita kaikkiin koteihimme!
Rakennuksen tiedot
- Asumismuoto Asokoti
- Keskimääräinen asumisoikeusmaksu / jm² 316,67€
- Hissit Ei
- Talosauna Ei
- Asuntoja 10
- Asuinrakennuksia 1
- Käyttövastike / kk / jm² 17,37€
- Valmistumisvuosi 1998
- Energialuokka D
- Lämmitysmuoto Kauko
- Autopaikat 17
- Laajakaista Elisa
- Antennijärjestelmä Kaapeli
- KaapeliTV Elisa
- Kattomateriaali Pelti
- Runkomateriaali Puu
- Lemmikit Sallittu
Huoneistot ja pohjakuvat: Jokivieru 2, Piharakennus, Pienkerrostalo
Lisää hakemukselle kaikki haluamasi asuntotyypit. Mahdollisuutesi asunnon saamiseksi paranevat, kun voimme tarjota sinulle kaikkia valitsemasi asuntotyypin asuntoja, jotka mahdollisesti vapautuvat myöhemmin tästä kohteesta. Olet automaattisesti näiden asuntotyyppien hakuprosessissa.
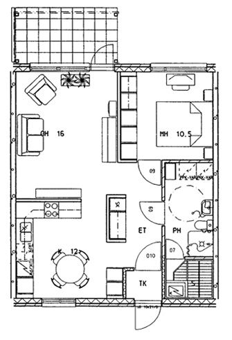
Jokivieru 2 As 4
2h+k+s
, Pienkerrostalo
57 m2
2/2
Jokivieru 2 As 4
2h+k+s
, Pienkerrostalo
57 m2
Kerros 2/2
Jokivieru 2 As 9
2h+k+s
, Pienkerrostalo
57 m2
2/2
Jokivieru 2 As 9
2h+k+s
, Pienkerrostalo
57 m2
Kerros 2/2
Jokivieru 2 As 7
2h+k+s
, Pienkerrostalo
57 m2
1/2
Jokivieru 2 As 7
2h+k+s
, Pienkerrostalo
57 m2
Kerros 1/2
Jokivieru 2 As 2
2h+k+s
, Pienkerrostalo
57 m2
1/2
Jokivieru 2 As 2
2h+k+s
, Pienkerrostalo
57 m2
Kerros 1/2
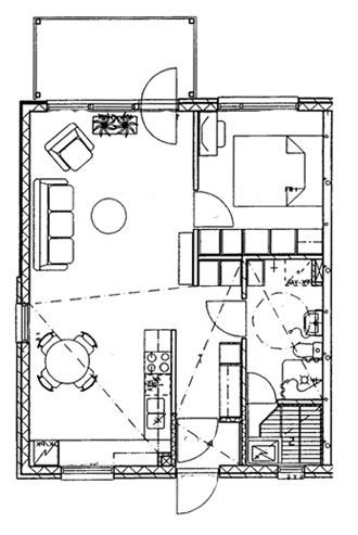
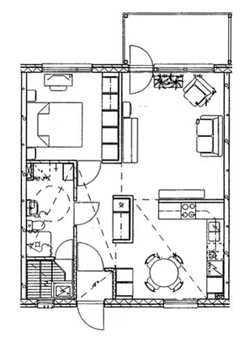
Jokivieru 2 As 8
2h+tk+s
, Pienkerrostalo
52.5 m2
1/2
Jokivieru 2 As 8
2h+tk+s
, Pienkerrostalo
52.5 m2
Kerros 1/2
Jokivieru 2 As 1
2h+tk+s
, Pienkerrostalo
52.5 m2
1/2
Jokivieru 2 As 1
2h+tk+s
, Pienkerrostalo
52.5 m2
Kerros 1/2
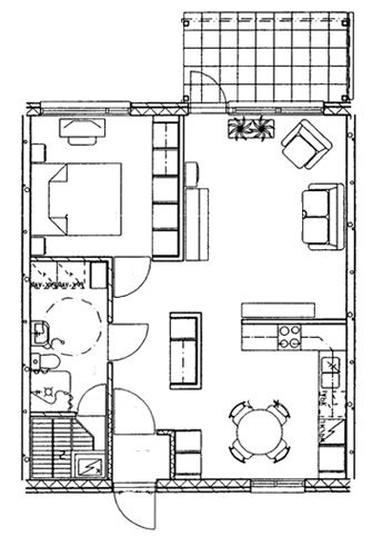
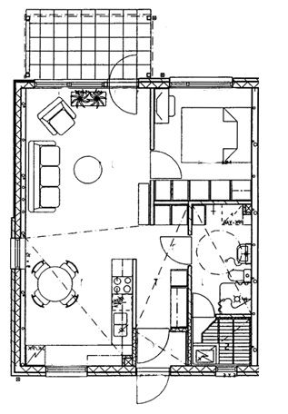
Jokivieru 2 As 10
2h+tk+s
, Pienkerrostalo
53.5 m2
2/2
Jokivieru 2 As 10
2h+tk+s
, Pienkerrostalo
53.5 m2
Kerros 2/2
Jokivieru 2 As 3
2h+tk+s
, Pienkerrostalo
53.5 m2
2/2
Jokivieru 2 As 3
2h+tk+s
, Pienkerrostalo
53.5 m2
Kerros 2/2
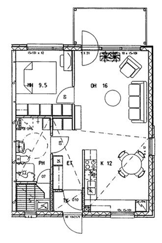
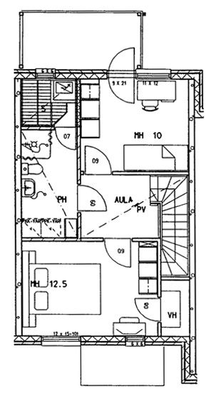
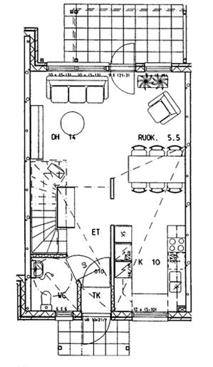
Jokivieru 2 As 5
3h+k+s
, Pienkerrostalo
84.5 m2
1-2/2
Jokivieru 2 As 5
3h+k+s
, Pienkerrostalo
84.5 m2
Kerros 1-2/2
Jokivieru 2 As 6
3h+k+s
, Pienkerrostalo
84.5 m2
1-2/2
Jokivieru 2 As 6
3h+k+s
, Pienkerrostalo
84.5 m2
Kerros 1-2/2