Kohteen esittely
Tässä rivitaloyhtiössä viihtyy varmasti lapsiperheet, asunnot ovat tilavia ja kaikissa asunnoissa on oma sauna sekä asuntopiha. Sisäpihalla on kiva leikkipaikka lapsille. Kohteessa on omatoimiviherhoito.
Lähellä on kaksi päiväkotia, peruskoulu ja pari ruokakauppaa. Keravanjoki ulkoilumaastoineen houkuttelee ulkoilemaan ja frisbee-golf radalle on myös lyhyt matka. Hyvät liikenneyhteydet: Keravan juna-asemalle on reilu kilometri ja Helsinki-Lahti moottoritielle sitäkin lyhyempi matka.
Kohteeseen on käynnistetty tammikuussa 2026 rahoituksen hakeminen peruskorjausta varten ja hankkeen mahdollinen toteutuminen ja ajankohta tarkentuu kun suunnitteluvaihe etenee. Prosessi on kuitenkin pitkä ja voi kestää usean vuodenkin. Lisätietoja sivuillamme: www.asuntosaatio.fi/asukkaalle/tietoa-asokoti-asukkaalle/asokotien-peruskorjaus/
Miksi Asuntosäätiö?
Me uskomme, että onnellinen koti ja laadukas asuminen kuuluvat kaikille. Emme tavoittele voittoa, vaan käytämme kaikki vastikkeista ja vuokrista saadut tulot toimintamme kehittämiseen. Jo yli 33 000 suomalaista on valinnut Asuntosäätiön tarjoaman kodin. Tiesithän, että myös lemmikit ovat tervetulleita kaikkiin koteihimme!
Rakennuksen tiedot
- Asumismuoto Asokoti
- Keskimääräinen asumisoikeusmaksu / jm² 340,47€
- Hissit Ei
- Talosauna Ei
- Asuntoja 24
- Asuinrakennuksia 4
- Käyttövastike / kk / jm² 13,66€
- Valmistumisvuosi 1999
- Energialuokka D
- Lämmitysmuoto Kauko
- Autopaikat 52
- Laajakaista Elisa
- Antennijärjestelmä Kaapeli
- KaapeliTV Elisa
- Kattomateriaali Tiili
- Runkomateriaali Betoni
- Lemmikit Sallittu
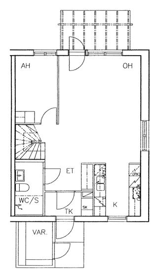
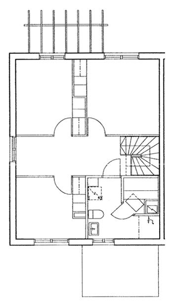
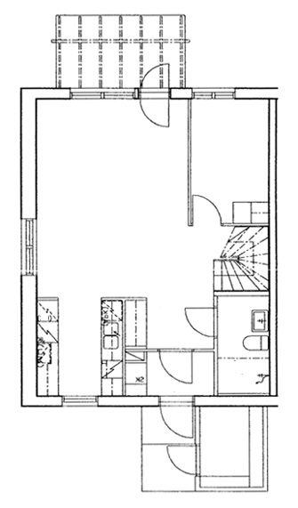
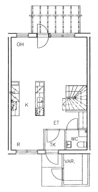
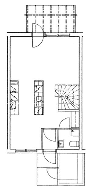
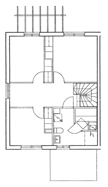
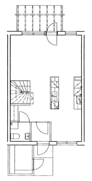
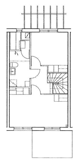
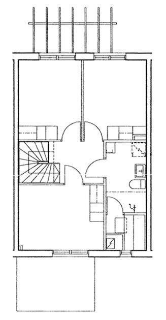
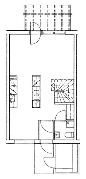
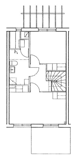
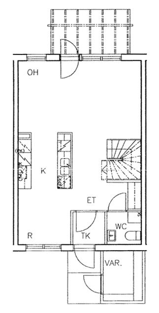
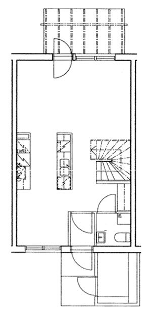
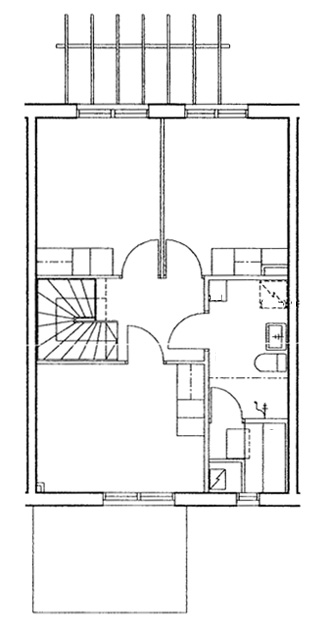
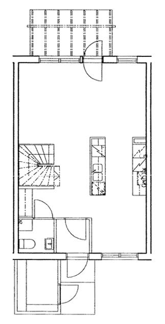
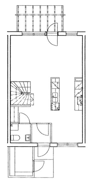
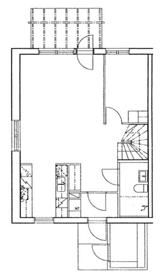
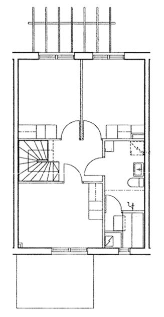
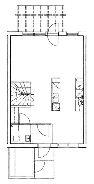
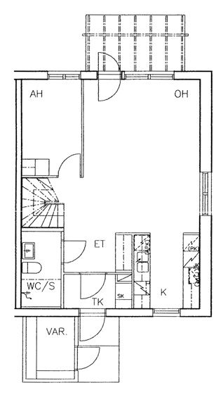
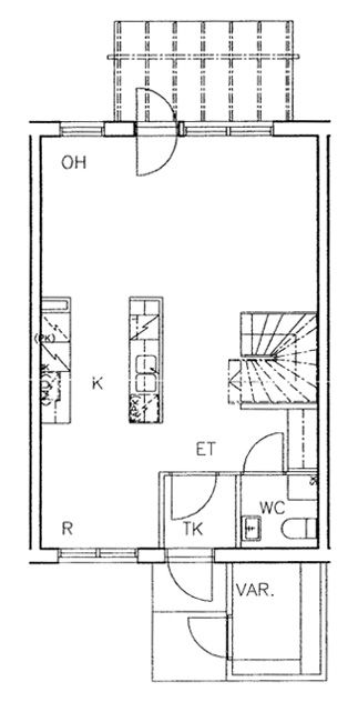
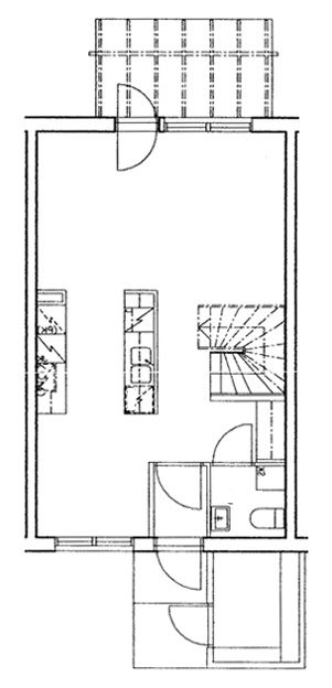
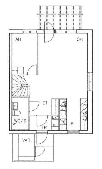
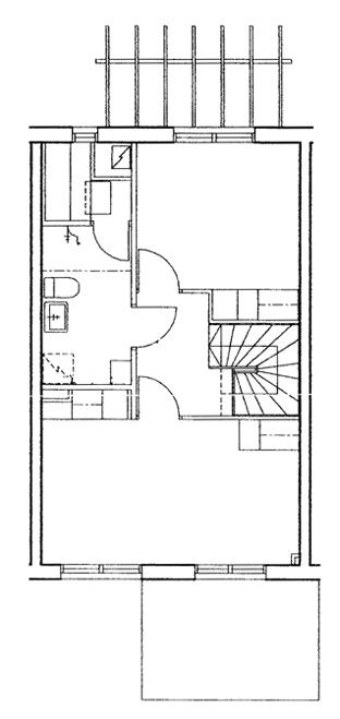
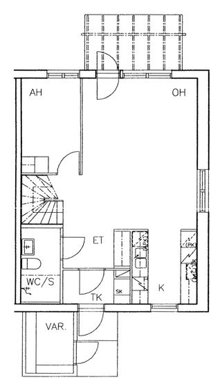
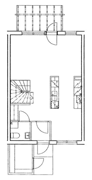
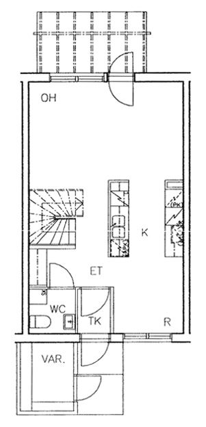
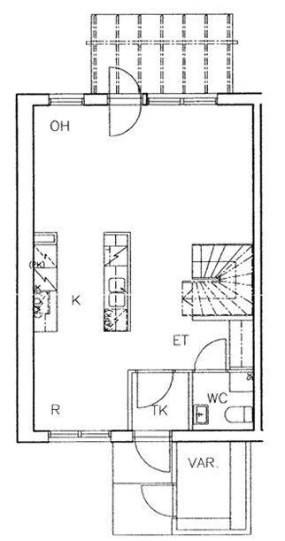
Huoneistot ja pohjakuvat: Rintalantie 7, Rivitalo, Piharakennus
Lisää hakemukselle kaikki haluamasi asuntotyypit. Mahdollisuutesi asunnon saamiseksi paranevat, kun voimme tarjota sinulle kaikkia valitsemasi asuntotyypin asuntoja, jotka mahdollisesti vapautuvat myöhemmin tästä kohteesta. Olet automaattisesti näiden asuntotyyppien hakuprosessissa.
Rintalantie 7 B 10
3h+k+s
, Rivitalo
82.5 m2
1-2/2
Rintalantie 7 B 10
3h+k+s
, Rivitalo
82.5 m2
Kerros 1-2/2
Rintalantie 7 B 11
3h+k+s
, Rivitalo
82.5 m2
1-2/2
Rintalantie 7 B 11
3h+k+s
, Rivitalo
82.5 m2
Kerros 1-2/2
Rintalantie 7 C 16
3h+k+s
, Rivitalo
82.5 m2
1-2/2
Rintalantie 7 C 16
3h+k+s
, Rivitalo
82.5 m2
Kerros 1-2/2
Rintalantie 7 A 2
3h+k+s
, Rivitalo
82.5 m2
1-2/2
Rintalantie 7 A 2
3h+k+s
, Rivitalo
82.5 m2
Kerros 1-2/2
Rintalantie 7 A 5
3h+k+s
, Rivitalo
82.5 m2
1-2/2
Rintalantie 7 A 5
3h+k+s
, Rivitalo
82.5 m2
Kerros 1-2/2
Rintalantie 7 A 3
3h+k+s
, Rivitalo
82.5 m2
1-2/2
Rintalantie 7 A 3
3h+k+s
, Rivitalo
82.5 m2
Kerros 1-2/2
Rintalantie 7 D 20
4h+k+s
, Rivitalo
91 m2
1-2/2
Rintalantie 7 D 20
4h+k+s
, Rivitalo
91 m2
Kerros 1-2/2
Rintalantie 7 D 22
4h+k+s
, Rivitalo
91 m2
1-2/2
Rintalantie 7 D 22
4h+k+s
, Rivitalo
91 m2
Kerros 1-2/2
Rintalantie 7 D 23
4h+k+s
, Rivitalo
91 m2
1-2/2
Rintalantie 7 D 23
4h+k+s
, Rivitalo
91 m2
Kerros 1-2/2
Rintalantie 7 D 21
4h+k+s
, Rivitalo
91 m2
1-2/2
Rintalantie 7 D 21
4h+k+s
, Rivitalo
91 m2
Kerros 1-2/2
Rintalantie 7 B 8
4h+k+s
, Rivitalo
91 m2
1-2/2
Rintalantie 7 B 8
4h+k+s
, Rivitalo
91 m2
Kerros 1-2/2
Rintalantie 7 B 9
4h+k+s
, Rivitalo
91 m2
1-2/2
Rintalantie 7 B 9
4h+k+s
, Rivitalo
91 m2
Kerros 1-2/2
Rintalantie 7 C 15
4h+k+s
, Rivitalo
91 m2
1-2/2
Rintalantie 7 C 15
4h+k+s
, Rivitalo
91 m2
Kerros 1-2/2
Rintalantie 7 C 14
4h+k+s
, Rivitalo
91 m2
1-2/2
Rintalantie 7 C 14
4h+k+s
, Rivitalo
91 m2
Kerros 1-2/2
Rintalantie 7 C 17
4h+k+s
, Rivitalo
91 m2
1-2/2
Rintalantie 7 C 17
4h+k+s
, Rivitalo
91 m2
Kerros 1-2/2
Rintalantie 7 A 4
4h+k+s
, Rivitalo
91 m2
1-2/2
Rintalantie 7 A 4
4h+k+s
, Rivitalo
91 m2
Kerros 1-2/2
Rintalantie 7 A 1
4h+k+s
, Rivitalo
92 m2
1-2/2
Rintalantie 7 A 1
4h+k+s
, Rivitalo
92 m2
Kerros 1-2/2
Rintalantie 7 D 24
5h+k+s
, Rivitalo
107 m2
1-2/2
Rintalantie 7 D 24
5h+k+s
, Rivitalo
107 m2
Kerros 1-2/2
Rintalantie 7 D 19
5h+k+s
, Rivitalo
107 m2
1-2/2
Rintalantie 7 D 19
5h+k+s
, Rivitalo
107 m2
Kerros 1-2/2
Rintalantie 7 B 12
5h+k+s
, Rivitalo
107 m2
1-2/2
Rintalantie 7 B 12
5h+k+s
, Rivitalo
107 m2
Kerros 1-2/2
Rintalantie 7 C 18
5h+k+s
, Rivitalo
107 m2
1-2/2
Rintalantie 7 C 18
5h+k+s
, Rivitalo
107 m2
Kerros 1-2/2
Rintalantie 7 C 13
5h+k+s
, Rivitalo
107 m2
1-2/2
Rintalantie 7 C 13
5h+k+s
, Rivitalo
107 m2
Kerros 1-2/2
Rintalantie 7 A 6
5h+k+s
, Rivitalo
107 m2
1-2/2
Rintalantie 7 A 6
5h+k+s
, Rivitalo
107 m2
Kerros 1-2/2
