Kohteen esittely
Talossa on paljon asuntoja kaksioista neliöihin. Kaikissa asunnoissa on oma sauna. A-talo on 5-kerroksinen ja siinä on hissi, B-talo on 3-kerroksinen ja siinä ei ole hissiä. Yhtiöllä on iso suojaisa sisäpiha ja autopaikkoja on hyvin saatavilla (sähköauton latauspaikkoja ei toistaiseksi ole). Talo ja kaikki asunnot on peruskorjattu vuonna 2020.
Keravan Jaakkola on Keravan keskustasta reilun kilometrin päässä. Lähettyviltä löytyy monet kaupat, kuten Citymarket ja Prisma. Autolla on lyhyt matka Lahden moottoritien liittymään ja junakin vie Helsinkiin nopeasti.
Miksi Asuntosäätiö?
Me uskomme, että onnellinen koti ja laadukas asuminen kuuluvat kaikille. Emme tavoittele voittoa, vaan käytämme kaikki vastikkeista ja vuokrista saadut tulot toimintamme kehittämiseen. Jo yli 33 000 suomalaista on valinnut Asuntosäätiön tarjoaman kodin. Tiesithän, että myös lemmikit ovat tervetulleita kaikkiin koteihimme!
Rakennuksen tiedot
- Asumismuoto Asokoti
- Keskimääräinen asumisoikeusmaksu / jm² 339,52€
- Hissit 1
- Talosauna Ei
- Kuivaushuone Kyllä
- Asuntoja 33
- Asuinrakennuksia 1
- Käyttövastike / kk / jm² 13,17€
- Valmistumisvuosi 1996
- Peruskorjattu 2020
- Porrashuoneet 2
- Energialuokka E
- Lämmitysmuoto Kauko
- Autopaikat 33
- Kerhohuone 1
- Laajakaista Elisa
- Antennijärjestelmä Kaapeli
- KaapeliTV Elisa
- Kattomateriaali Pelti
- Runkomateriaali Betoni
- Lemmikit Sallittu
Huoneistot ja pohjakuvat: Lintulammenkatu 5 C, Piharakennus, Kerrostalo
Lisää hakemukselle kaikki haluamasi asuntotyypit. Mahdollisuutesi asunnon saamiseksi paranevat, kun voimme tarjota sinulle kaikkia valitsemasi asuntotyypin asuntoja, jotka mahdollisesti vapautuvat myöhemmin tästä kohteesta. Olet automaattisesti näiden asuntotyyppien hakuprosessissa.
Lintulammenkatu 5 C A 11
1h+tk+s
, Kerrostalo
40.5 m2
3/5
Lintulammenkatu 5 C A 11
1h+tk+s
, Kerrostalo
40.5 m2
Kerros 3/5
Lintulammenkatu 5 C A 21
1h+tk+s
, Kerrostalo
40.5 m2
5/5
Lintulammenkatu 5 C A 21
1h+tk+s
, Kerrostalo
40.5 m2
Kerros 5/5
Lintulammenkatu 5 C A 6
1h+tk+s
, Kerrostalo
40.5 m2
2/5
Lintulammenkatu 5 C A 6
1h+tk+s
, Kerrostalo
40.5 m2
Kerros 2/5
Lintulammenkatu 5 C A 16
1h+tk+s
, Kerrostalo
40.5 m2
4/5
Lintulammenkatu 5 C A 16
1h+tk+s
, Kerrostalo
40.5 m2
Kerros 4/5
Lintulammenkatu 5 C A 2
1h+tk+s
, Kerrostalo
40.5 m2
1/5
Lintulammenkatu 5 C A 2
1h+tk+s
, Kerrostalo
40.5 m2
Kerros 1/5
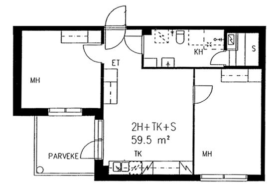
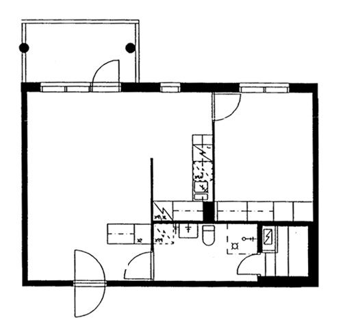
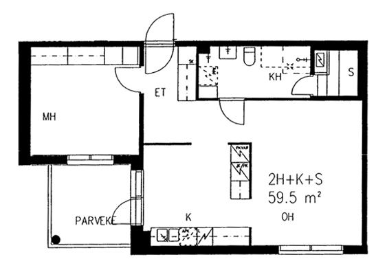
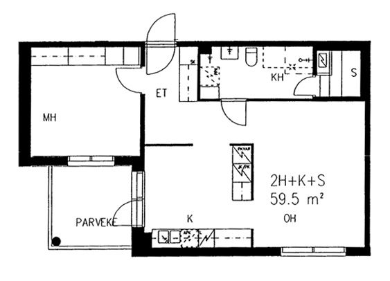
Lintulammenkatu 5 C A 10
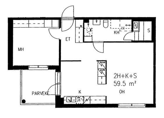
2h+k+s
, Kerrostalo
59.5 m2
3/5
Lintulammenkatu 5 C A 10
2h+k+s
, Kerrostalo
59.5 m2
Kerros 3/5
Lintulammenkatu 5 C A 15
2h+k+s
, Kerrostalo
59.5 m2
4/5
Lintulammenkatu 5 C A 15
2h+k+s
, Kerrostalo
59.5 m2
Kerros 4/5
Lintulammenkatu 5 C A 20
2h+k+s
, Kerrostalo
59.5 m2
5/5
Lintulammenkatu 5 C A 20
2h+k+s
, Kerrostalo
59.5 m2
Kerros 5/5
Lintulammenkatu 5 C A 5
2h+k+s
, Kerrostalo
59.5 m2
2/5
Lintulammenkatu 5 C A 5
2h+k+s
, Kerrostalo
59.5 m2
Kerros 2/5
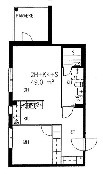
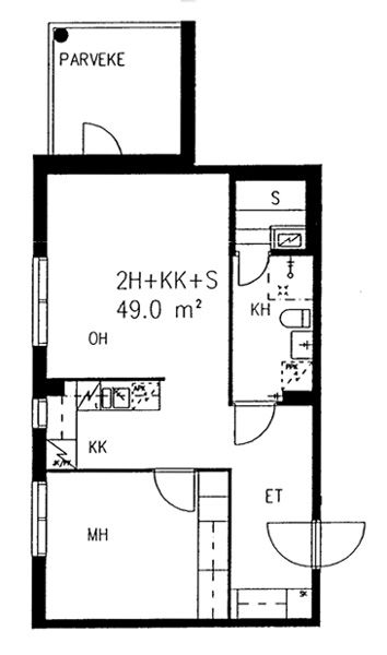
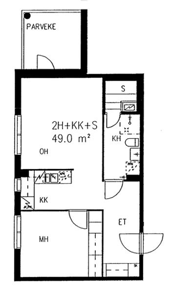
Lintulammenkatu 5 C A 7
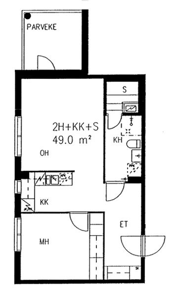
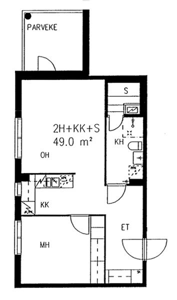
2h+kk+s
, Kerrostalo
49 m2
2/5
Lintulammenkatu 5 C A 7
2h+kk+s
, Kerrostalo
49 m2
Kerros 2/5
Lintulammenkatu 5 C A 17
2h+kk+s
, Kerrostalo
49 m2
4/5
Lintulammenkatu 5 C A 17
2h+kk+s
, Kerrostalo
49 m2
Kerros 4/5
Lintulammenkatu 5 C B 24
2h+kk+s
, Kerrostalo
49 m2
/5
Lintulammenkatu 5 C B 24
2h+kk+s
, Kerrostalo
49 m2
Kerros /5
Lintulammenkatu 5 C B 28
2h+kk+s
, Kerrostalo
49 m2
2/5
Lintulammenkatu 5 C B 28
2h+kk+s
, Kerrostalo
49 m2
Kerros 2/5
Lintulammenkatu 5 C A 22
2h+kk+s
, Kerrostalo
49 m2
5/5
Lintulammenkatu 5 C A 22
2h+kk+s
, Kerrostalo
49 m2
Kerros 5/5
Lintulammenkatu 5 C B 32
2h+kk+s
, Kerrostalo
49 m2
3/5
Lintulammenkatu 5 C B 32
2h+kk+s
, Kerrostalo
49 m2
Kerros 3/5
Lintulammenkatu 5 C A 3
2h+kk+s
, Kerrostalo
49 m2
1/5
Lintulammenkatu 5 C A 3
2h+kk+s
, Kerrostalo
49 m2
Kerros 1/5
Lintulammenkatu 5 C B 27
2h+kk+s
, Kerrostalo
49 m2
2/5
Lintulammenkatu 5 C B 27
2h+kk+s
, Kerrostalo
49 m2
Kerros 2/5
Lintulammenkatu 5 C A 12
2h+kk+s
, Kerrostalo
49 m2
3/5
Lintulammenkatu 5 C A 12
2h+kk+s
, Kerrostalo
49 m2
Kerros 3/5
Lintulammenkatu 5 C B 31
2h+kk+s
, Kerrostalo
49 m2
3/5
Lintulammenkatu 5 C B 31
2h+kk+s
, Kerrostalo
49 m2
Kerros 3/5
Lintulammenkatu 5 C A 1
2h+tk+s
, Kerrostalo
59.5 m2
1/5
Lintulammenkatu 5 C A 1
2h+tk+s
, Kerrostalo
59.5 m2
Kerros 1/5
Lintulammenkatu 5 C A 4
3h+k+s
, Kerrostalo
75.5 m2
2/5
Lintulammenkatu 5 C A 4
3h+k+s
, Kerrostalo
75.5 m2
Kerros 2/5
Lintulammenkatu 5 C A 19
3h+k+s
, Kerrostalo
75.5 m2
5/5
Lintulammenkatu 5 C A 19
3h+k+s
, Kerrostalo
75.5 m2
Kerros 5/5
Lintulammenkatu 5 C A 9
3h+k+s
, Kerrostalo
75.5 m2
3/5
Lintulammenkatu 5 C A 9
3h+k+s
, Kerrostalo
75.5 m2
Kerros 3/5
Lintulammenkatu 5 C A 14
3h+k+s
, Kerrostalo
75.5 m2
4/5
Lintulammenkatu 5 C A 14
3h+k+s
, Kerrostalo
75.5 m2
Kerros 4/5
Lintulammenkatu 5 C B 33
3h+k+s
, Kerrostalo
76.5 m2
3/5
Lintulammenkatu 5 C B 33
3h+k+s
, Kerrostalo
76.5 m2
Kerros 3/5
Lintulammenkatu 5 C B 25
3h+k+s
, Kerrostalo
76.5 m2
/5
Lintulammenkatu 5 C B 25
3h+k+s
, Kerrostalo
76.5 m2
Kerros /5
Lintulammenkatu 5 C B 30
3h+k+s
, Kerrostalo
76.5 m2
3/5
Lintulammenkatu 5 C B 30
3h+k+s
, Kerrostalo
76.5 m2
Kerros 3/5
Lintulammenkatu 5 C B 29
3h+k+s
, Kerrostalo
76.5 m2
2/5
Lintulammenkatu 5 C B 29
3h+k+s
, Kerrostalo
76.5 m2
Kerros 2/5
Lintulammenkatu 5 C B 26
3h+k+s
, Kerrostalo
76.5 m2
2/5
Lintulammenkatu 5 C B 26
3h+k+s
, Kerrostalo
76.5 m2
Kerros 2/5
Lintulammenkatu 5 C A 23
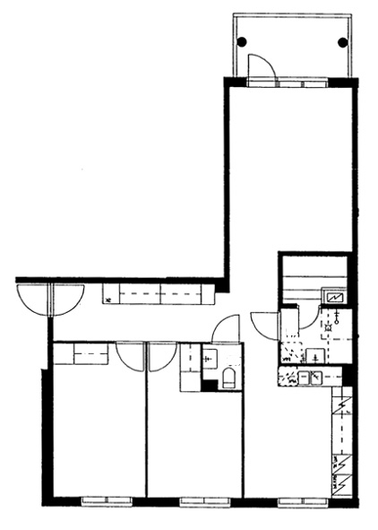
4h+k+s
, Kerrostalo
87 m2
5/5
Lintulammenkatu 5 C A 23
4h+k+s
, Kerrostalo
87 m2
Kerros 5/5
Lintulammenkatu 5 C A 13
4h+k+s
, Kerrostalo
87 m2
3/5
Lintulammenkatu 5 C A 13
4h+k+s
, Kerrostalo
87 m2
Kerros 3/5
Lintulammenkatu 5 C A 18
4h+k+s
, Kerrostalo
87 m2
4/5
Lintulammenkatu 5 C A 18
4h+k+s
, Kerrostalo
87 m2
Kerros 4/5
Lintulammenkatu 5 C A 8
4h+k+s
, Kerrostalo
87 m2
2/5
Lintulammenkatu 5 C A 8
4h+k+s
, Kerrostalo
87 m2
Kerros 2/5

