Kohteen esittely
Hissillinen kerrostalokohde, jossa on asuntoja kaksioista neliöihin. Kaikissa asunnoissa on oma sauna ja parveke tai asuntopiha. Yhtiöllä on iso suojaisa sisäpiha. Asukkaiden käytössä on mm. pesutupa ja kerhohuone. Yhtiön autopaikat ovat kahdella eri pysäköintialueella ja asuntoa kohden on saatavilla aina yksi paikka (sähköauton latausmahdollisuutta ei toistaiseksi ole). Kohde on peruskorjattu 2022.
Kohteessa on omatoimiviherhoito.
Keravan Jaakkola on Keravan keskustasta reilun kilometrin päässä. Lähettyviltä löytyy monet kaupat, kuten Citymarket ja Prisma. Autolla on lyhyt matka Lahden moottoritien liittymään ja junakin vie Helsinkiin nopeasti.
Miksi Asuntosäätiö?
Me uskomme, että onnellinen koti ja laadukas asuminen kuuluvat kaikille. Emme tavoittele voittoa, vaan käytämme kaikki vastikkeista ja vuokrista saadut tulot toimintamme kehittämiseen. Jo yli 33 000 suomalaista on valinnut Asuntosäätiön tarjoaman kodin. Tiesithän, että myös lemmikit ovat tervetulleita kaikkiin koteihimme!
Rakennuksen tiedot
- Asumismuoto Asokoti
- Keskimääräinen asumisoikeusmaksu / jm² 208,81€
- Hissit 3
- Talosauna Ei
- Pyykkitupa Kyllä
- Kuivaushuone Kyllä
- Asuntoja 51
- Asuinrakennuksia 1
- Käyttövastike / kk / jm² 13,15€
- Valmistumisvuosi 1993
- Peruskorjattu 2022
- Porrashuoneet 3
- Energialuokka E
- Lämmitysmuoto Kauko
- Autopaikat 45
- Askarteluhuone 1
- Laajakaista Elisa
- Antennijärjestelmä Kaapeli
- KaapeliTV Elisa
- Kattomateriaali Pelti
- Runkomateriaali Betoni
- Lemmikit Sallittu
Huoneistot ja pohjakuvat: Palokorvenkatu 7, Piharakennus, Kerrostalo
Lisää hakemukselle kaikki haluamasi asuntotyypit. Mahdollisuutesi asunnon saamiseksi paranevat, kun voimme tarjota sinulle kaikkia valitsemasi asuntotyypin asuntoja, jotka mahdollisesti vapautuvat myöhemmin tästä kohteesta. Olet automaattisesti näiden asuntotyyppien hakuprosessissa.
Palokorvenkatu 7 A 8
2h+k+s
, Kerrostalo
63 m2
3/6
Palokorvenkatu 7 A 8
2h+k+s
, Kerrostalo
63 m2
Kerros 3/6
Palokorvenkatu 7 A 11
2h+k+s
, Kerrostalo
63 m2
4/6
Palokorvenkatu 7 A 11
2h+k+s
, Kerrostalo
63 m2
Kerros 4/6
Palokorvenkatu 7 A 14
2h+k+s
, Kerrostalo
63 m2
5/6
Palokorvenkatu 7 A 14
2h+k+s
, Kerrostalo
63 m2
Kerros 5/6
Palokorvenkatu 7 A 5
2h+k+s
, Kerrostalo
63 m2
2/6
Palokorvenkatu 7 A 5
2h+k+s
, Kerrostalo
63 m2
Kerros 2/6
Palokorvenkatu 7 A 2
2h+k+s
, Kerrostalo
63 m2
1/6
Palokorvenkatu 7 A 2
2h+k+s
, Kerrostalo
63 m2
Kerros 1/6
Palokorvenkatu 7 A 3
2h+k+s
, Kerrostalo
63.5 m2
1/6
Palokorvenkatu 7 A 3
2h+k+s
, Kerrostalo
63.5 m2
Kerros 1/6
Palokorvenkatu 7 A 15
2h+k+s
, Kerrostalo
63.5 m2
5/6
Palokorvenkatu 7 A 15
2h+k+s
, Kerrostalo
63.5 m2
Kerros 5/6
Palokorvenkatu 7 A 6
2h+k+s
, Kerrostalo
63.5 m2
2/6
Palokorvenkatu 7 A 6
2h+k+s
, Kerrostalo
63.5 m2
Kerros 2/6
Palokorvenkatu 7 A 12
2h+k+s
, Kerrostalo
63.5 m2
4/6
Palokorvenkatu 7 A 12
2h+k+s
, Kerrostalo
63.5 m2
Kerros 4/6
Palokorvenkatu 7 A 9
2h+k+s
, Kerrostalo
63.5 m2
3/6
Palokorvenkatu 7 A 9
2h+k+s
, Kerrostalo
63.5 m2
Kerros 3/6
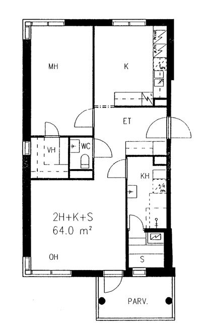
Palokorvenkatu 7 A 1
2h+k+s
, Kerrostalo
64 m2
1/6
Palokorvenkatu 7 A 1
2h+k+s
, Kerrostalo
64 m2
Kerros 1/6
Palokorvenkatu 7 A 13
2h+k+s
, Kerrostalo
64 m2
5/6
Palokorvenkatu 7 A 13
2h+k+s
, Kerrostalo
64 m2
Kerros 5/6
Palokorvenkatu 7 A 4
2h+k+s
, Kerrostalo
64 m2
2/6
Palokorvenkatu 7 A 4
2h+k+s
, Kerrostalo
64 m2
Kerros 2/6
Palokorvenkatu 7 A 7
2h+k+s
, Kerrostalo
64 m2
3/6
Palokorvenkatu 7 A 7
2h+k+s
, Kerrostalo
64 m2
Kerros 3/6
Palokorvenkatu 7 A 10
2h+k+s
, Kerrostalo
64 m2
4/6
Palokorvenkatu 7 A 10
2h+k+s
, Kerrostalo
64 m2
Kerros 4/6
Palokorvenkatu 7 C 43
2h+k+s
, Kerrostalo
64.5 m2
3/6
Palokorvenkatu 7 C 43
2h+k+s
, Kerrostalo
64.5 m2
Kerros 3/6
Palokorvenkatu 7 C 51
2h+k+s
, Kerrostalo
64.5 m2
5/6
Palokorvenkatu 7 C 51
2h+k+s
, Kerrostalo
64.5 m2
Kerros 5/6
Palokorvenkatu 7 C 35
2h+k+s
, Kerrostalo
64.5 m2
1/6
Palokorvenkatu 7 C 35
2h+k+s
, Kerrostalo
64.5 m2
Kerros 1/6
Palokorvenkatu 7 C 39
2h+k+s
, Kerrostalo
64.5 m2
2/6
Palokorvenkatu 7 C 39
2h+k+s
, Kerrostalo
64.5 m2
Kerros 2/6
Palokorvenkatu 7 C 47
2h+k+s
, Kerrostalo
64.5 m2
4/6
Palokorvenkatu 7 C 47
2h+k+s
, Kerrostalo
64.5 m2
Kerros 4/6
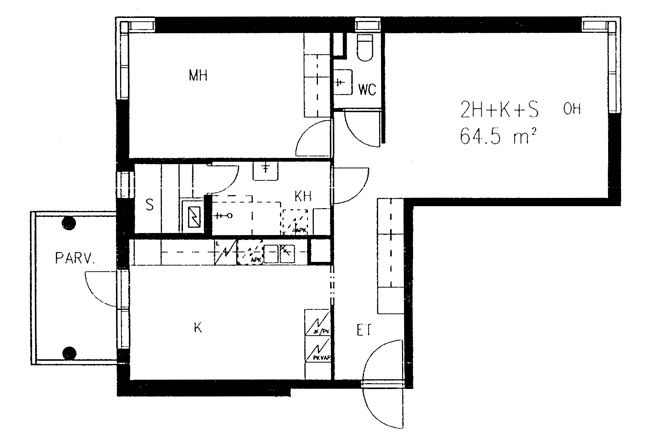
Palokorvenkatu 7 B 18
2h+kk+s
, Kerrostalo
44 m2
2/6
Palokorvenkatu 7 B 18
2h+kk+s
, Kerrostalo
44 m2
Kerros 2/6
Palokorvenkatu 7 B 22
2h+kk+s
, Kerrostalo
44 m2
3/6
Palokorvenkatu 7 B 22
2h+kk+s
, Kerrostalo
44 m2
Kerros 3/6
Palokorvenkatu 7 B 19
2h+kk+s
, Kerrostalo
44.5 m2
2/6
Palokorvenkatu 7 B 19
2h+kk+s
, Kerrostalo
44.5 m2
Kerros 2/6
Palokorvenkatu 7 B 23
2h+kk+s
, Kerrostalo
44.5 m2
3/6
Palokorvenkatu 7 B 23
2h+kk+s
, Kerrostalo
44.5 m2
Kerros 3/6
Palokorvenkatu 7 C 48
2h+kk+s
, Kerrostalo
46.5 m2
5/6
Palokorvenkatu 7 C 48
2h+kk+s
, Kerrostalo
46.5 m2
Kerros 5/6
Palokorvenkatu 7 C 44
2h+kk+s
, Kerrostalo
46.5 m2
4/6
Palokorvenkatu 7 C 44
2h+kk+s
, Kerrostalo
46.5 m2
Kerros 4/6
Palokorvenkatu 7 C 34
2h+kk+s
, Kerrostalo
46.5 m2
1/6
Palokorvenkatu 7 C 34
2h+kk+s
, Kerrostalo
46.5 m2
Kerros 1/6
Palokorvenkatu 7 C 36
2h+kk+s
, Kerrostalo
46.5 m2
2/6
Palokorvenkatu 7 C 36
2h+kk+s
, Kerrostalo
46.5 m2
Kerros 2/6
Palokorvenkatu 7 C 40
2h+kk+s
, Kerrostalo
46.5 m2
3/6
Palokorvenkatu 7 C 40
2h+kk+s
, Kerrostalo
46.5 m2
Kerros 3/6
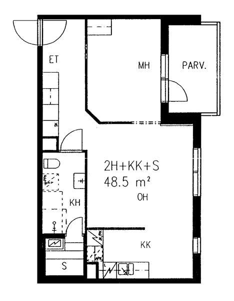
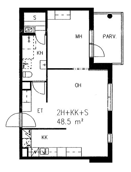
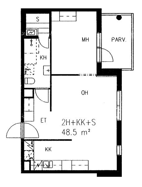
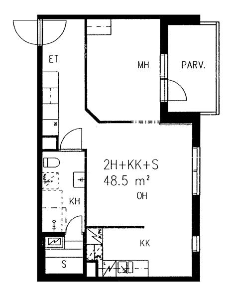
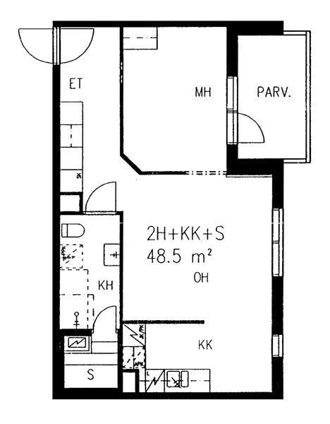
Palokorvenkatu 7 C 38
2h+kk+s
, Kerrostalo
48.5 m2
2/6
Palokorvenkatu 7 C 38
2h+kk+s
, Kerrostalo
48.5 m2
Kerros 2/6
Palokorvenkatu 7 C 46
2h+kk+s
, Kerrostalo
48.5 m2
4/6
Palokorvenkatu 7 C 46
2h+kk+s
, Kerrostalo
48.5 m2
Kerros 4/6
Palokorvenkatu 7 C 50
2h+kk+s
, Kerrostalo
48.5 m2
5/6
Palokorvenkatu 7 C 50
2h+kk+s
, Kerrostalo
48.5 m2
Kerros 5/6
Palokorvenkatu 7 C 42
2h+kk+s
, Kerrostalo
48.5 m2
3/6
Palokorvenkatu 7 C 42
2h+kk+s
, Kerrostalo
48.5 m2
Kerros 3/6
Palokorvenkatu 7 C 49
2h+kk+s
, Kerrostalo
48.5 m2
5/6
Palokorvenkatu 7 C 49
2h+kk+s
, Kerrostalo
48.5 m2
Kerros 5/6
Palokorvenkatu 7 C 45
2h+kk+s
, Kerrostalo
48.5 m2
4/6
Palokorvenkatu 7 C 45
2h+kk+s
, Kerrostalo
48.5 m2
Kerros 4/6
Palokorvenkatu 7 C 37
2h+kk+s
, Kerrostalo
48.5 m2
2/6
Palokorvenkatu 7 C 37
2h+kk+s
, Kerrostalo
48.5 m2
Kerros 2/6
Palokorvenkatu 7 C 41
2h+kk+s
, Kerrostalo
48.5 m2
3/6
Palokorvenkatu 7 C 41
2h+kk+s
, Kerrostalo
48.5 m2
Kerros 3/6
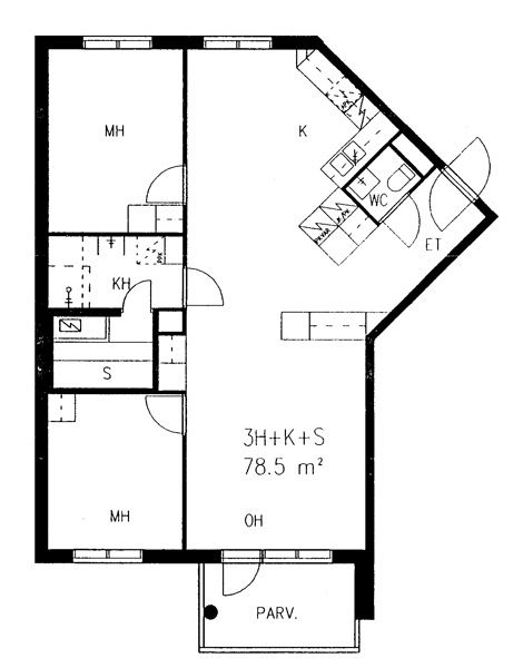
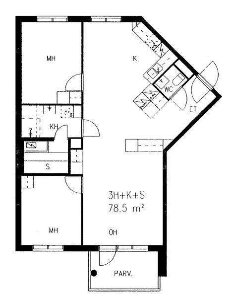
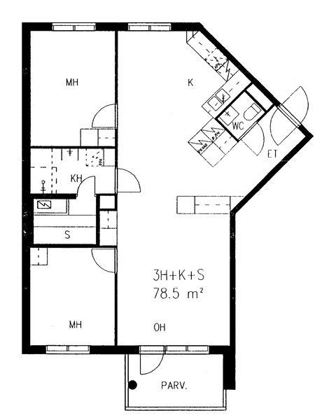
Palokorvenkatu 7 B 17
3h+k+s
, Kerrostalo
78.5 m2
2/6
Palokorvenkatu 7 B 17
3h+k+s
, Kerrostalo
78.5 m2
Kerros 2/6
Palokorvenkatu 7 B 30
3h+k+s
, Kerrostalo
78.5 m2
5/6
Palokorvenkatu 7 B 30
3h+k+s
, Kerrostalo
78.5 m2
Kerros 5/6
Palokorvenkatu 7 B 27
3h+k+s
, Kerrostalo
78.5 m2
Kerros 4/6
Palokorvenkatu 7 B 16
3h+k+s
, Kerrostalo
78.5 m2
1/6
Palokorvenkatu 7 B 16
3h+k+s
, Kerrostalo
78.5 m2
Kerros 1/6
Palokorvenkatu 7 B 25
3h+k+s
, Kerrostalo
78.5 m2
4/6
Palokorvenkatu 7 B 25
3h+k+s
, Kerrostalo
78.5 m2
Kerros 4/6
Palokorvenkatu 7 B 31
3h+k+s
, Kerrostalo
78.5 m2
6/6
Palokorvenkatu 7 B 31
3h+k+s
, Kerrostalo
78.5 m2
Kerros 6/6
Palokorvenkatu 7 B 20
3h+k+s
, Kerrostalo
78.5 m2
2/6
Palokorvenkatu 7 B 20
3h+k+s
, Kerrostalo
78.5 m2
Kerros 2/6
Palokorvenkatu 7 B 21
3h+k+s
, Kerrostalo
78.5 m2
Kerros 3/6
Palokorvenkatu 7 B 24
3h+k+s
, Kerrostalo
78.5 m2
3/6
Palokorvenkatu 7 B 24
3h+k+s
, Kerrostalo
78.5 m2
Kerros 3/6
Palokorvenkatu 7 B 33
3h+k+s
, Kerrostalo
78.5 m2
6/6
Palokorvenkatu 7 B 33
3h+k+s
, Kerrostalo
78.5 m2
Kerros 6/6
Palokorvenkatu 7 B 28
3h+k+s
, Kerrostalo
78.5 m2
5/6
Palokorvenkatu 7 B 28
3h+k+s
, Kerrostalo
78.5 m2
Kerros 5/6
Palokorvenkatu 7 B 26
4h+k+s
, Kerrostalo
89.5 m2
4/6
Palokorvenkatu 7 B 26
4h+k+s
, Kerrostalo
89.5 m2
Kerros 4/6
Palokorvenkatu 7 B 29
4h+k+s
, Kerrostalo
89.5 m2
5/6
Palokorvenkatu 7 B 29
4h+k+s
, Kerrostalo
89.5 m2
Kerros 5/6
Palokorvenkatu 7 B 32
4h+k+s
, Kerrostalo
89.5 m2
6/6
Palokorvenkatu 7 B 32
4h+k+s
, Kerrostalo
89.5 m2
Kerros 6/6

