Kohteen esittely
Sampolankatu 5 on hissillinen kerrostalokohde. Kaikissa asunnoissa on oma sauna. Osa yhtiön autopaikoista on Sampolan pysäköintihallissa, suurin osa pihassa katoksen alla tai avopaikka. Pyörävarasto ja jätekeräys erillisessä piharakennuksessa.
Talon on peruskorjauksessa vuonna 2025 uusittiin mittavasti asuntojen pintoja, kalusteita ja kodinkoneita. Kaikkiin asuntoihin on asennettu myös astianpesukoneet. Parvekelasitukset ja sälekaihtimet eivät sisältyneet urakkaan, mutta aikaisemmin asennetut on jätetty paikoilleen ja ovat asukkaan kunnossapitovastuulla.
Lähellä on puistoja, ja isoimmat kaupat sekä juna-asema kävelymatkan päässä. Nopea yhteys myös Helsinki-Lahti moottoritielle.
Miksi Asuntosäätiö?
Me uskomme, että onnellinen koti ja laadukas asuminen kuuluvat kaikille. Emme tavoittele voittoa, vaan käytämme kaikki vastikkeista ja vuokrista saadut tulot toimintamme kehittämiseen. Jo yli 33 000 suomalaista on valinnut Asuntosäätiön tarjoaman kodin. Tiesithän, että myös lemmikit ovat tervetulleita kaikkiin koteihimme!
Rakennuksen tiedot
- Asumismuoto Asokoti
- Keskimääräinen asumisoikeusmaksu / jm² 354,81€
- Hissit 1
- Talosauna Ei
- Kuivaushuone Kyllä
- Asuntoja 15
- Asuinrakennuksia 1
- Käyttövastike / kk / jm² 13,49€
- Valmistumisvuosi 1996
- Peruskorjattu 2025
- Porrashuoneet 1
- Energialuokka E
- Lämmitysmuoto Kauko
- Autopaikat 17
- Laajakaista Elisa
- Antennijärjestelmä Kaapeli
- KaapeliTV Elisa
- Kattomateriaali Huopa
- Runkomateriaali Betoni
- Lemmikit Sallittu
Huoneistot ja pohjakuvat: Sampolankatu 5, Piharakennus, Kerrostalo
Lisää hakemukselle kaikki haluamasi asuntotyypit. Mahdollisuutesi asunnon saamiseksi paranevat, kun voimme tarjota sinulle kaikkia valitsemasi asuntotyypin asuntoja, jotka mahdollisesti vapautuvat myöhemmin tästä kohteesta. Olet automaattisesti näiden asuntotyyppien hakuprosessissa.
Sampolankatu 5 A 7
2h+k+s
, Kerrostalo
60.5 m2
2/4
Sampolankatu 5 A 7
2h+k+s
, Kerrostalo
60.5 m2
Kerros 2/4
Sampolankatu 5 A 15
2h+k+s
, Kerrostalo
60.5 m2
4/4
Sampolankatu 5 A 15
2h+k+s
, Kerrostalo
60.5 m2
Kerros 4/4
Sampolankatu 5 A 11
2h+k+s
, Kerrostalo
60.5 m2
3/4
Sampolankatu 5 A 11
2h+k+s
, Kerrostalo
60.5 m2
Kerros 3/4
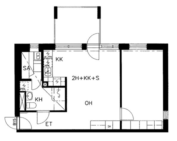
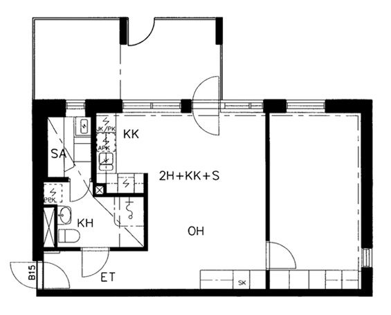
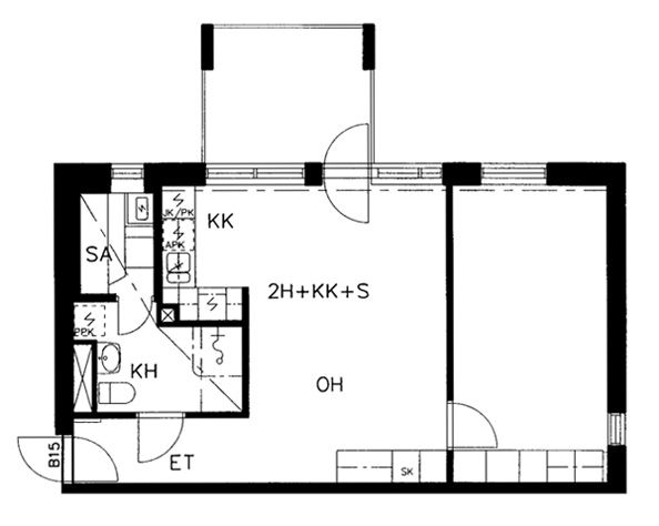
Sampolankatu 5 A 8
2h+kk+s
, Kerrostalo
51.5 m2
3/4
Sampolankatu 5 A 8
2h+kk+s
, Kerrostalo
51.5 m2
Kerros 3/4
Sampolankatu 5 A 4
2h+kk+s
, Kerrostalo
51.5 m2
2/4
Sampolankatu 5 A 4
2h+kk+s
, Kerrostalo
51.5 m2
Kerros 2/4
Sampolankatu 5 A 12
2h+kk+s
, Kerrostalo
51.5 m2
4/4
Sampolankatu 5 A 12
2h+kk+s
, Kerrostalo
51.5 m2
Kerros 4/4
Sampolankatu 5 A 1
2h+kk+s
, Kerrostalo
51.5 m2
1/4
Sampolankatu 5 A 1
2h+kk+s
, Kerrostalo
51.5 m2
Kerros 1/4
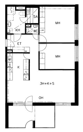
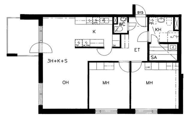
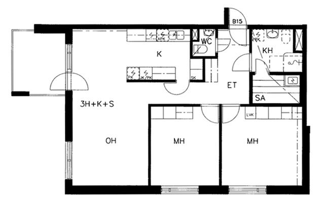
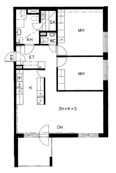
Sampolankatu 5 A 14
3h+k+s
, Kerrostalo
80 m2
4/4
Sampolankatu 5 A 14
3h+k+s
, Kerrostalo
80 m2
Kerros 4/4
Sampolankatu 5 A 5
3h+k+s
, Kerrostalo
80 m2
2/4
Sampolankatu 5 A 5
3h+k+s
, Kerrostalo
80 m2
Kerros 2/4
Sampolankatu 5 A 10
3h+k+s
, Kerrostalo
80 m2
3/4
Sampolankatu 5 A 10
3h+k+s
, Kerrostalo
80 m2
Kerros 3/4
Sampolankatu 5 A 9
3h+k+s
, Kerrostalo
80 m2
3/4
Sampolankatu 5 A 9
3h+k+s
, Kerrostalo
80 m2
Kerros 3/4
Sampolankatu 5 A 2
3h+k+s
, Kerrostalo
80 m2
1/4
Sampolankatu 5 A 2
3h+k+s
, Kerrostalo
80 m2
Kerros 1/4
Sampolankatu 5 A 6
3h+k+s
, Kerrostalo
80 m2
2/4
Sampolankatu 5 A 6
3h+k+s
, Kerrostalo
80 m2
Kerros 2/4

