Kohteen esittely
Miksi Asuntosäätiö?
Me uskomme, että onnellinen koti ja laadukas asuminen kuuluvat kaikille. Emme tavoittele voittoa, vaan käytämme kaikki vastikkeista ja vuokrista saadut tulot toimintamme kehittämiseen. Jo yli 33 000 suomalaista on valinnut Asuntosäätiön tarjoaman kodin. Tiesithän, että myös lemmikit ovat tervetulleita kaikkiin koteihimme!
Rakennuksen tiedot
- Asumismuoto Asokoti
- Keskimääräinen asumisoikeusmaksu / jm² 380,99€
- Hissit Ei
- Talosauna Ei
- Asuntoja 23
- Asuinrakennuksia 5
- Käyttövastike / kk / jm² 12,39€
- Valmistumisvuosi 2002
- Energialuokka D
- Lämmitysmuoto Kauko
- Autopaikat 33
- Laajakaista Elisa
- Antennijärjestelmä Kaapeli
- KaapeliTV Elisa
- Kattomateriaali Tiili
- Runkomateriaali Betoni
- Lemmikit Sallittu
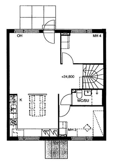
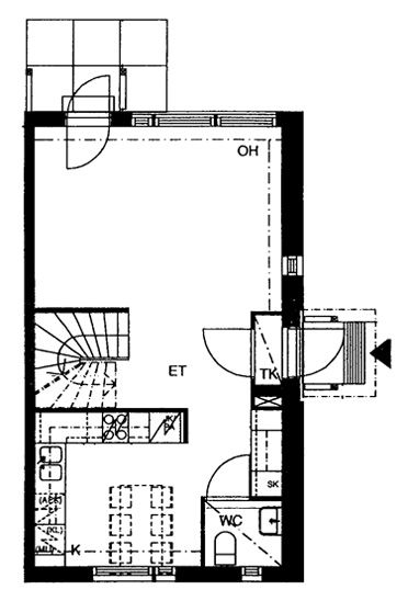
Huoneistot ja pohjakuvat: Kaarenpiha 4, Rivitalo, Piharakennus
Lisää hakemukselle kaikki haluamasi asuntotyypit. Mahdollisuutesi asunnon saamiseksi paranevat, kun voimme tarjota sinulle kaikkia valitsemasi asuntotyypin asuntoja, jotka mahdollisesti vapautuvat myöhemmin tästä kohteesta. Olet automaattisesti näiden asuntotyyppien hakuprosessissa.
Kaarenpiha 4 C 11
3h+k+s
, Rivitalo
80 m2
1-2/2
Kaarenpiha 4 C 11
3h+k+s
, Rivitalo
80 m2
Kerros 1-2/2
Kaarenpiha 4 C 14
3h+k+s
, Rivitalo
80 m2
1-2/2
Kaarenpiha 4 C 14
3h+k+s
, Rivitalo
80 m2
Kerros 1-2/2
Kaarenpiha 4 B 10
3h+k+s
, Rivitalo
80 m2
1-2/2
Kaarenpiha 4 B 10
3h+k+s
, Rivitalo
80 m2
Kerros 1-2/2
Kaarenpiha 4 C 13
3h+k+s
, Rivitalo
83 m2
1-2/2
Kaarenpiha 4 C 13
3h+k+s
, Rivitalo
83 m2
Kerros 1-2/2
Kaarenpiha 4 C 12
3h+k+s
, Rivitalo
83 m2
1-2/2
Kaarenpiha 4 C 12
3h+k+s
, Rivitalo
83 m2
Kerros 1-2/2
Kaarenpiha 4 B 8
3h+k+s
, Rivitalo
83 m2
1-2/2
Kaarenpiha 4 B 8
3h+k+s
, Rivitalo
83 m2
Kerros 1-2/2
Kaarenpiha 4 B 6
3h+k+s
, Rivitalo
83 m2
1-2/2
Kaarenpiha 4 B 6
3h+k+s
, Rivitalo
83 m2
Kerros 1-2/2
Kaarenpiha 4 B 9
3h+k+s
, Rivitalo
83 m2
1-2/2
Kaarenpiha 4 B 9
3h+k+s
, Rivitalo
83 m2
Kerros 1-2/2
Kaarenpiha 4 B 7
3h+k+s
, Rivitalo
83 m2
1-2/2
Kaarenpiha 4 B 7
3h+k+s
, Rivitalo
83 m2
Kerros 1-2/2
Kaarenpiha 4 A 3
3h+k+s
, Rivitalo
83 m2
1-2/2
Kaarenpiha 4 A 3
3h+k+s
, Rivitalo
83 m2
Kerros 1-2/2
Kaarenpiha 4 A 5
3h+k+s
, Rivitalo
83 m2
1-2/2
Kaarenpiha 4 A 5
3h+k+s
, Rivitalo
83 m2
Kerros 1-2/2
Kaarenpiha 4 A 1
3h+k+s
, Rivitalo
83 m2
1-2/2
Kaarenpiha 4 A 1
3h+k+s
, Rivitalo
83 m2
Kerros 1-2/2
Kaarenpiha 4 A 2
3h+k+s
, Rivitalo
83 m2
1-2/2
Kaarenpiha 4 A 2
3h+k+s
, Rivitalo
83 m2
Kerros 1-2/2
Kaarenpiha 4 D 17
4h+k+s
, Rivitalo
98.5 m2
1-2/2
Kaarenpiha 4 D 17
4h+k+s
, Rivitalo
98.5 m2
Kerros 1-2/2
Kaarenpiha 4 D 18
4h+k+s
, Rivitalo
98.5 m2
1-2/2
Kaarenpiha 4 D 18
4h+k+s
, Rivitalo
98.5 m2
Kerros 1-2/2
Kaarenpiha 4 E 22
4h+k+s
, Rivitalo
98.5 m2
1-2/2
Kaarenpiha 4 E 22
4h+k+s
, Rivitalo
98.5 m2
Kerros 1-2/2
Kaarenpiha 4 E 21
4h+k+s
, Rivitalo
98.5 m2
1-2/2
Kaarenpiha 4 E 21
4h+k+s
, Rivitalo
98.5 m2
Kerros 1-2/2
Kaarenpiha 4 D 19
5h+k+s
, Rivitalo
111 m2
1-2/2
Kaarenpiha 4 D 19
5h+k+s
, Rivitalo
111 m2
Kerros 1-2/2
Kaarenpiha 4 D 15
5h+k+s
, Rivitalo
111 m2
1-2/2
Kaarenpiha 4 D 15
5h+k+s
, Rivitalo
111 m2
Kerros 1-2/2
Kaarenpiha 4 E 20
5h+k+s
, Rivitalo
111 m2
1-2/2
Kaarenpiha 4 E 20
5h+k+s
, Rivitalo
111 m2
Kerros 1-2/2
Kaarenpiha 4 E 23
5h+k+s
, Rivitalo
111 m2
1-2/2
Kaarenpiha 4 E 23
5h+k+s
, Rivitalo
111 m2
Kerros 1-2/2

