Kohteen esittely
Sataman alueella sijaitseva uudemmasta A-rapusta ja vanhasta rakennuksesta saneeratusta B-rapusta koostuva kerrostalokohde. B-rapussa on vanhan talon tunnelmaa ja kattohuoneisto, jonne kuljetaan suoraan hissillä. Jokaiselle asunnolle kuuluu varastokoppi. Talossa on autohalli ja sähkötolpallisia ulkopaikkoja. Vastikkeet sisältävät 10M kiinteistölaajakaistan.
Vastapäätä viehättäviä pikkukauppoja. Kävellen pääsee ihailemaan kaunista Kallavettä rantatietä pitkin, sataman kahvilat lähellä. Maailman navalle eli torille on alle kilometri.
Miksi Asuntosäätiö?
Me uskomme, että onnellinen koti ja laadukas asuminen kuuluvat kaikille. Emme tavoittele voittoa, vaan käytämme kaikki vastikkeista ja vuokrista saadut tulot toimintamme kehittämiseen. Jo yli 33 000 suomalaista on valinnut Asuntosäätiön tarjoaman kodin. Tiesithän, että myös lemmikit ovat tervetulleita kaikkiin koteihimme!
Rakennuksen tiedot
- Asumismuoto Asokoti
- Keskimääräinen asumisoikeusmaksu / jm² 358,81€
- Hissit 4
- Talosauna Ei
- Pyykkitupa Kyllä
- Kuivaushuone Kyllä
- Asuntoja 61
- Asuinrakennuksia 1
- Käyttövastike / kk / jm² 13,03€
- Valmistumisvuosi 1997
- Porrashuoneet 4
- Energialuokka E2018
- Lämmitysmuoto Kauko
- Autopaikat 43
- Kerhohuone 1
- Laajakaista DNA Welho
- Antennijärjestelmä Kaapeli
- KaapeliTV DNA
- Kattomateriaali Pelti
- Runkomateriaali Betoni
- Lemmikit Sallittu
Huoneistot ja pohjakuvat: Satamakatu 25, Piharakennus, Kerrostalo
Lisää hakemukselle kaikki haluamasi asuntotyypit. Mahdollisuutesi asunnon saamiseksi paranevat, kun voimme tarjota sinulle kaikkia valitsemasi asuntotyypin asuntoja, jotka mahdollisesti vapautuvat myöhemmin tästä kohteesta. Olet automaattisesti näiden asuntotyyppien hakuprosessissa.
Satamakatu 25 B 21
1h+k+s
, Kerrostalo
37 m2
1/5
Satamakatu 25 B 21
1h+k+s
, Kerrostalo
37 m2
Kerros 1/5
Satamakatu 25 C 37
2h+k+s
, Kerrostalo
51 m2
1/5
Satamakatu 25 C 37
2h+k+s
, Kerrostalo
51 m2
Kerros 1/5
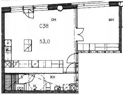
Satamakatu 25 C 38
2h+k+s
, Kerrostalo
53 m2
1/5
Satamakatu 25 C 38
2h+k+s
, Kerrostalo
53 m2
Kerros 1/5
Satamakatu 25 B 28
2h+k+s
, Kerrostalo
54.5 m2
2/5
Satamakatu 25 B 28
2h+k+s
, Kerrostalo
54.5 m2
Kerros 2/5
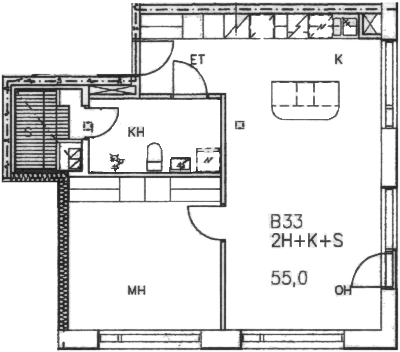
Satamakatu 25 B 33
2h+k+s
, Kerrostalo
55 m2
3/5
Satamakatu 25 B 33
2h+k+s
, Kerrostalo
55 m2
Kerros 3/5
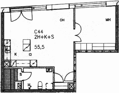
Satamakatu 25 C 44
2h+k+s
, Kerrostalo
55.5 m2
/5
Satamakatu 25 C 44
2h+k+s
, Kerrostalo
55.5 m2
Kerros /5
Satamakatu 25 C 40
2h+k+s
, Kerrostalo
55.5 m2
/5
Satamakatu 25 C 40
2h+k+s
, Kerrostalo
55.5 m2
Kerros /5
Satamakatu 25 A 1
2h+k+s
, Kerrostalo
58 m2
1/5
Satamakatu 25 A 1
2h+k+s
, Kerrostalo
58 m2
Kerros 1/5
Satamakatu 25 C 36
2h+kk+s
, Kerrostalo
37 m2
/5
Satamakatu 25 C 36
2h+kk+s
, Kerrostalo
37 m2
Kerros /5
Satamakatu 25 C 46
2h+kk+s
, Kerrostalo
38 m2
3/5
Satamakatu 25 C 46
2h+kk+s
, Kerrostalo
38 m2
Kerros 3/5
Satamakatu 25 C 42
2h+kk+s
, Kerrostalo
38 m2
2/5
Satamakatu 25 C 42
2h+kk+s
, Kerrostalo
38 m2
Kerros 2/5
Satamakatu 25 B 25
2h+kk+s
, Kerrostalo
41 m2
/5
Satamakatu 25 B 25
2h+kk+s
, Kerrostalo
41 m2
Kerros /5
Satamakatu 25 B 23
2h+kk+s
, Kerrostalo
41 m2
1/5
Satamakatu 25 B 23
2h+kk+s
, Kerrostalo
41 m2
Kerros 1/5
Satamakatu 25 B 27
2h+kk+s
, Kerrostalo
42 m2
2/5
Satamakatu 25 B 27
2h+kk+s
, Kerrostalo
42 m2
Kerros 2/5
Satamakatu 25 B 32
2h+kk+s
, Kerrostalo
42 m2
3/5
Satamakatu 25 B 32
2h+kk+s
, Kerrostalo
42 m2
Kerros 3/5
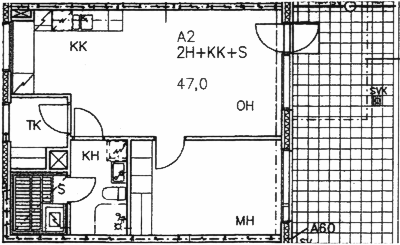
Satamakatu 25 A 2
2h+kk+s
, Kerrostalo
47 m2
1/5
Satamakatu 25 A 2
2h+kk+s
, Kerrostalo
47 m2
Kerros 1/5
Satamakatu 25 A 10
2h+kk+s
, Kerrostalo
47 m2
3/5
Satamakatu 25 A 10
2h+kk+s
, Kerrostalo
47 m2
Kerros 3/5
Satamakatu 25 A 14
2h+kk+s
, Kerrostalo
47 m2
4/5
Satamakatu 25 A 14
2h+kk+s
, Kerrostalo
47 m2
Kerros 4/5
Satamakatu 25 A 15
2h+kk+s
, Kerrostalo
47 m2
4/5
Satamakatu 25 A 15
2h+kk+s
, Kerrostalo
47 m2
Kerros 4/5
Satamakatu 25 A 11
2h+kk+s
, Kerrostalo
47 m2
/5
Satamakatu 25 A 11
2h+kk+s
, Kerrostalo
47 m2
Kerros /5
Satamakatu 25 A 18
2h+kk+s
, Kerrostalo
47 m2
5/5
Satamakatu 25 A 18
2h+kk+s
, Kerrostalo
47 m2
Kerros 5/5
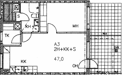
Satamakatu 25 A 3
2h+kk+s
, Kerrostalo
47 m2
1/5
Satamakatu 25 A 3
2h+kk+s
, Kerrostalo
47 m2
Kerros 1/5
Satamakatu 25 A 6
2h+kk+s
, Kerrostalo
47 m2
2/5
Satamakatu 25 A 6
2h+kk+s
, Kerrostalo
47 m2
Kerros 2/5
Satamakatu 25 B 22
2h+kk+s
, Kerrostalo
47 m2
1/5
Satamakatu 25 B 22
2h+kk+s
, Kerrostalo
47 m2
Kerros 1/5
Satamakatu 25 A 19
2h+kk+s
, Kerrostalo
47 m2
5/5
Satamakatu 25 A 19
2h+kk+s
, Kerrostalo
47 m2
Kerros 5/5
Satamakatu 25 A 7
2h+kk+s
, Kerrostalo
47 m2
2/5
Satamakatu 25 A 7
2h+kk+s
, Kerrostalo
47 m2
Kerros 2/5
Satamakatu 25 B 29
2h+kk+s
, Kerrostalo
48.5 m2
/5
Satamakatu 25 B 29
2h+kk+s
, Kerrostalo
48.5 m2
Kerros /5
Satamakatu 25 B 34
2h+kk+s
, Kerrostalo
48.5 m2
3/5
Satamakatu 25 B 34
2h+kk+s
, Kerrostalo
48.5 m2
Kerros 3/5
Satamakatu 25 C 39
2h+kk+s
, Kerrostalo
53 m2
/5
Satamakatu 25 C 39
2h+kk+s
, Kerrostalo
53 m2
Kerros /5
Satamakatu 25 C 41
2h+kk+s
, Kerrostalo
54 m2
2/5
Satamakatu 25 C 41
2h+kk+s
, Kerrostalo
54 m2
Kerros 2/5
Satamakatu 25 C 45
2h+kk+s
, Kerrostalo
54.5 m2
3/5
Satamakatu 25 C 45
2h+kk+s
, Kerrostalo
54.5 m2
Kerros 3/5
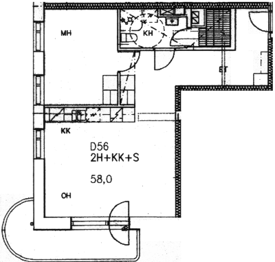
Satamakatu 25 D 56
2h+kk+s
, Kerrostalo
58 m2
3/5
Satamakatu 25 D 56
2h+kk+s
, Kerrostalo
58 m2
Kerros 3/5
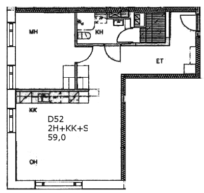
Satamakatu 25 D 52
2h+kk+s
, Kerrostalo
59 m2
/5
Satamakatu 25 D 52
2h+kk+s
, Kerrostalo
59 m2
Kerros /5
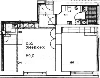
Satamakatu 25 D 55
2h+kk+s
, Kerrostalo
59 m2
3/5
Satamakatu 25 D 55
2h+kk+s
, Kerrostalo
59 m2
Kerros 3/5
Satamakatu 25 D 51
2h+kk+s
, Kerrostalo
62.5 m2
2/5
Satamakatu 25 D 51
2h+kk+s
, Kerrostalo
62.5 m2
Kerros 2/5
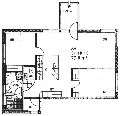
Satamakatu 25 A 17
3h+k+s
, Kerrostalo
79 m2
5/5
Satamakatu 25 A 17
3h+k+s
, Kerrostalo
79 m2
Kerros 5/5
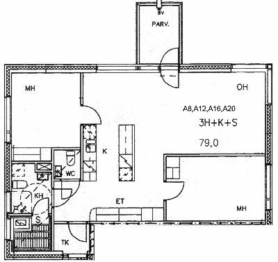
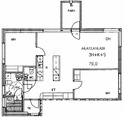
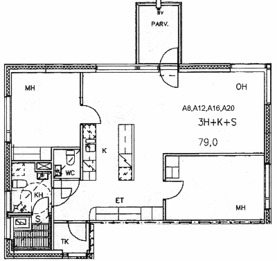
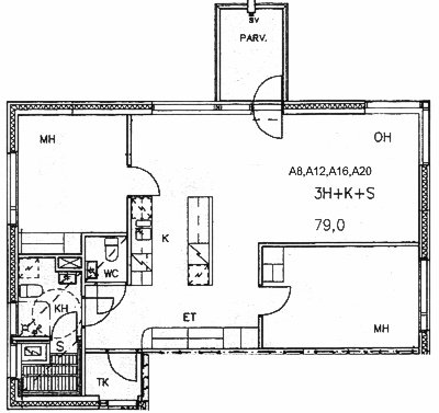
Satamakatu 25 A 12
3h+k+s
, Kerrostalo
79 m2
/5
Satamakatu 25 A 12
3h+k+s
, Kerrostalo
79 m2
Kerros /5
Satamakatu 25 A 9
3h+k+s
, Kerrostalo
79 m2
3/5
Satamakatu 25 A 9
3h+k+s
, Kerrostalo
79 m2
Kerros 3/5
Satamakatu 25 A 20
3h+k+s
, Kerrostalo
79 m2
5/5
Satamakatu 25 A 20
3h+k+s
, Kerrostalo
79 m2
Kerros 5/5
Satamakatu 25 A 16
3h+k+s
, Kerrostalo
79 m2
4/5
Satamakatu 25 A 16
3h+k+s
, Kerrostalo
79 m2
Kerros 4/5
Satamakatu 25 A 4
3h+k+s
, Kerrostalo
79 m2
1/5
Satamakatu 25 A 4
3h+k+s
, Kerrostalo
79 m2
Kerros 1/5
Satamakatu 25 A 5
3h+k+s
, Kerrostalo
79 m2
2/5
Satamakatu 25 A 5
3h+k+s
, Kerrostalo
79 m2
Kerros 2/5
Satamakatu 25 A 13
3h+k+s
, Kerrostalo
79 m2
4/5
Satamakatu 25 A 13
3h+k+s
, Kerrostalo
79 m2
Kerros 4/5
Satamakatu 25 A 8
3h+k+s
, Kerrostalo
79 m2
2/5
Satamakatu 25 A 8
3h+k+s
, Kerrostalo
79 m2
Kerros 2/5
Satamakatu 25 C 47
3h+k+s
, Kerrostalo
81 m2
3/5
Satamakatu 25 C 47
3h+k+s
, Kerrostalo
81 m2
Kerros 3/5
Satamakatu 25 C 43
3h+k+s
, Kerrostalo
81 m2
2/5
Satamakatu 25 C 43
3h+k+s
, Kerrostalo
81 m2
Kerros 2/5
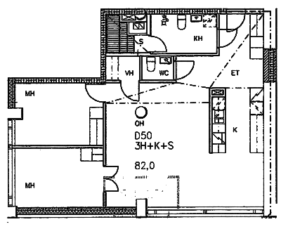
Satamakatu 25 D 50
3h+k+s
, Kerrostalo
82 m2
1/5
Satamakatu 25 D 50
3h+k+s
, Kerrostalo
82 m2
Kerros 1/5
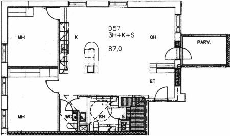
Satamakatu 25 D 57
3h+k+s
, Kerrostalo
87 m2
3/5
Satamakatu 25 D 57
3h+k+s
, Kerrostalo
87 m2
Kerros 3/5
Satamakatu 25 D 53
3h+k+s
, Kerrostalo
87 m2
2/5
Satamakatu 25 D 53
3h+k+s
, Kerrostalo
87 m2
Kerros 2/5
Satamakatu 25 D 60
3h+k+s
, Kerrostalo
87 m2
5/5
Satamakatu 25 D 60
3h+k+s
, Kerrostalo
87 m2
Kerros 5/5
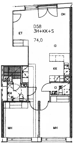
Satamakatu 25 D 58
3h+kk+s
, Kerrostalo
74 m2
3/5
Satamakatu 25 D 58
3h+kk+s
, Kerrostalo
74 m2
Kerros 3/5
Satamakatu 25 D 54
3h+kk+s
, Kerrostalo
74.5 m2
/5
Satamakatu 25 D 54
3h+kk+s
, Kerrostalo
74.5 m2
Kerros /5
Satamakatu 25 B 35
3h+kk+s
, Kerrostalo
75.5 m2
3/5
Satamakatu 25 B 35
3h+kk+s
, Kerrostalo
75.5 m2
Kerros 3/5
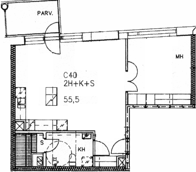
Satamakatu 25 D 48
3h+kk+s
, Kerrostalo
77 m2
1/5
Satamakatu 25 D 48
3h+kk+s
, Kerrostalo
77 m2
Kerros 1/5
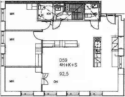
Satamakatu 25 D 59
4h+k+s
, Kerrostalo
92.5 m2
5/5
Satamakatu 25 D 59
4h+k+s
, Kerrostalo
92.5 m2
Kerros 5/5
Satamakatu 25 D 49
4h+k+s
, Kerrostalo
99 m2
1/5
Satamakatu 25 D 49
4h+k+s
, Kerrostalo
99 m2
Kerros 1/5
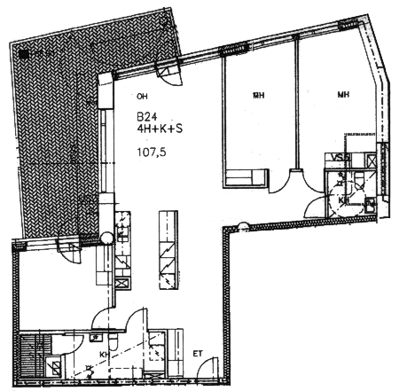
Satamakatu 25 B 24
4h+k+s
, Kerrostalo
107.5 m2
1/5
Satamakatu 25 B 24
4h+k+s
, Kerrostalo
107.5 m2
Kerros 1/5
Satamakatu 25 B 26
4h+k+s
, Kerrostalo
107.5 m2
2/5
Satamakatu 25 B 26
4h+k+s
, Kerrostalo
107.5 m2
Kerros 2/5
Satamakatu 25 B 31
4h+k+s
, Kerrostalo
107.5 m2
3/5
Satamakatu 25 B 31
4h+k+s
, Kerrostalo
107.5 m2
Kerros 3/5
Satamakatu 25 D 61
4h+k+s
, Kerrostalo
139 m2
4/5
Satamakatu 25 D 61
4h+k+s
, Kerrostalo
139 m2
Kerros 4/5
