Kohteen esittely
Tikaskatu 1 on kerrostalokohde vehreällä pihapiirillä umpikadun päässä. A-rapussa on viisi kerrosta ja hissi, B-rapussa kolme kerrosta. Kohde on peruskorjattu 2021.
Koulut ja päiväkoti vieressä. Lähellä on myös ruokakauppa, uimahalli, koirapuisto ja Litmasen tekonurmikenttä. Rannalle pääsee helposti joko Litmasessa, Kirveslahden uimarannalla tai Petosenlammella.
Miksi Asuntosäätiö?
Me uskomme, että onnellinen koti ja laadukas asuminen kuuluvat kaikille. Emme tavoittele voittoa, vaan käytämme kaikki vastikkeista ja vuokrista saadut tulot toimintamme kehittämiseen. Jo yli 33 000 suomalaista on valinnut Asuntosäätiön tarjoaman kodin. Tiesithän, että myös lemmikit ovat tervetulleita kaikkiin koteihimme!
Rakennuksen tiedot
- Asumismuoto Asokoti
- Keskimääräinen asumisoikeusmaksu / jm² 185,8€
- Hissit 1
- Talosauna Ei
- Kuivaushuone Kyllä
- Asuntoja 26
- Asuinrakennuksia 1
- Käyttövastike / kk / jm² 11,85€
- Valmistumisvuosi 1992
- Peruskorjattu 2020
- Porrashuoneet 2
- Energialuokka D2007
- Lämmitysmuoto Kauko
- Autopaikat 26
- Laajakaista DNA Welho
- Antennijärjestelmä Kaapeli
- KaapeliTV DNA
- Kattomateriaali Huopa
- Runkomateriaali Betoni
- Lemmikit Sallittu
Huoneistot ja pohjakuvat: Tikaskatu 1, Piharakennus, Kerrostalo
Lisää hakemukselle kaikki haluamasi asuntotyypit. Mahdollisuutesi asunnon saamiseksi paranevat, kun voimme tarjota sinulle kaikkia valitsemasi asuntotyypin asuntoja, jotka mahdollisesti vapautuvat myöhemmin tästä kohteesta. Olet automaattisesti näiden asuntotyyppien hakuprosessissa.
Tikaskatu 1 B 18
1h+tk+s
, Kerrostalo
42 m2
1/5
Tikaskatu 1 B 18
1h+tk+s
, Kerrostalo
42 m2
Kerros 1/5
Tikaskatu 1 B 24
1h+tk+s
, Kerrostalo
42 m2
/5
Tikaskatu 1 B 24
1h+tk+s
, Kerrostalo
42 m2
Kerros /5
Tikaskatu 1 B 21
1h+tk+s
, Kerrostalo
42 m2
/5
Tikaskatu 1 B 21
1h+tk+s
, Kerrostalo
42 m2
Kerros /5
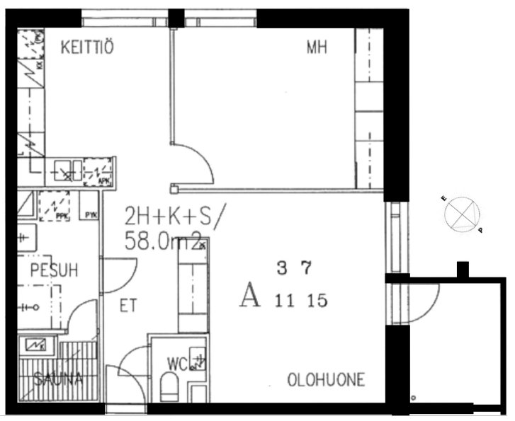
Tikaskatu 1 A 7
2h+k+s
, Kerrostalo
58 m2
3/5
Tikaskatu 1 A 7
2h+k+s
, Kerrostalo
58 m2
Kerros 3/5
Tikaskatu 1 A 11
2h+k+s
, Kerrostalo
58 m2
4/5
Tikaskatu 1 A 11
2h+k+s
, Kerrostalo
58 m2
Kerros 4/5
Tikaskatu 1 A 3
2h+k+s
, Kerrostalo
58 m2
/5
Tikaskatu 1 A 3
2h+k+s
, Kerrostalo
58 m2
Kerros /5
Tikaskatu 1 A 8
2h+kk+s
, Kerrostalo
45 m2
3/5
Tikaskatu 1 A 8
2h+kk+s
, Kerrostalo
45 m2
Kerros 3/5
Tikaskatu 1 A 16
2h+kk+s
, Kerrostalo
45 m2
/5
Tikaskatu 1 A 16
2h+kk+s
, Kerrostalo
45 m2
Kerros /5
Tikaskatu 1 A 12
2h+kk+s
, Kerrostalo
45 m2
/5
Tikaskatu 1 A 12
2h+kk+s
, Kerrostalo
45 m2
Kerros /5
Tikaskatu 1 A 4
2h+kk+s
, Kerrostalo
45 m2
/5
Tikaskatu 1 A 4
2h+kk+s
, Kerrostalo
45 m2
Kerros /5
Tikaskatu 1 B 19
2h+kk+s
, Kerrostalo
46 m2
1/5
Tikaskatu 1 B 19
2h+kk+s
, Kerrostalo
46 m2
Kerros 1/5
Tikaskatu 1 B 22
2h+kk+s
, Kerrostalo
46 m2
/5
Tikaskatu 1 B 22
2h+kk+s
, Kerrostalo
46 m2
Kerros /5
Tikaskatu 1 B 25
2h+kk+s
, Kerrostalo
46 m2
3/5
Tikaskatu 1 B 25
2h+kk+s
, Kerrostalo
46 m2
Kerros 3/5
Tikaskatu 1 A 14
2h+kk+s
, Kerrostalo
51 m2
/5
Tikaskatu 1 A 14
2h+kk+s
, Kerrostalo
51 m2
Kerros /5
Tikaskatu 1 A 2
2h+kk+s
, Kerrostalo
51 m2
1/5
Tikaskatu 1 A 2
2h+kk+s
, Kerrostalo
51 m2
Kerros 1/5
Tikaskatu 1 A 10
2h+kk+s
, Kerrostalo
51 m2
4/5
Tikaskatu 1 A 10
2h+kk+s
, Kerrostalo
51 m2
Kerros 4/5
Tikaskatu 1 A 6
2h+kk+s
, Kerrostalo
51 m2
3/5
Tikaskatu 1 A 6
2h+kk+s
, Kerrostalo
51 m2
Kerros 3/5
Tikaskatu 1 A 15
2h+kk+s
, Kerrostalo
58 m2
/5
Tikaskatu 1 A 15
2h+kk+s
, Kerrostalo
58 m2
Kerros /5
Tikaskatu 1 B 20
3h+k+s
, Kerrostalo
73 m2
1/5
Tikaskatu 1 B 20
3h+k+s
, Kerrostalo
73 m2
Kerros 1/5
Tikaskatu 1 B 26
3h+k+s
, Kerrostalo
73 m2
3/5
Tikaskatu 1 B 26
3h+k+s
, Kerrostalo
73 m2
Kerros 3/5
Tikaskatu 1 A 9
3h+k+s
, Kerrostalo
74.5 m2
3/5
Tikaskatu 1 A 9
3h+k+s
, Kerrostalo
74.5 m2
Kerros 3/5
Tikaskatu 1 A 17
3h+k+s
, Kerrostalo
74.5 m2
/5
Tikaskatu 1 A 17
3h+k+s
, Kerrostalo
74.5 m2
Kerros /5
Tikaskatu 1 A 13
3h+k+s
, Kerrostalo
74.5 m2
3/5
Tikaskatu 1 A 13
3h+k+s
, Kerrostalo
74.5 m2
Kerros 3/5
Tikaskatu 1 A 1
3h+k+s
, Kerrostalo
76.5 m2
1/5
Tikaskatu 1 A 1
3h+k+s
, Kerrostalo
76.5 m2
Kerros 1/5

