Kohteen esittely
Hauenkoukku 4 on rinteeseen rakennettu kerrostalo viihtyisässä Särkilahdessa. Osassa asuntoja on parveke ja osassa ensimmäisen kerroksen asunnoissa oma pieni terassi. Iso suojaisa sisäpiha, jossa viihtyvät niin lapset leikkien kuin aikuiset huvimajassa kahvitellen.
Kallaveden rantaan parisataa metriä, lähimpään ruokakauppaan vielä lyhyempi matka. Lähellä myös Kolmisopin ostoskeskus ja Rauhalahden liikuntapaikat, kuten keila- ja hevostalli, minigolf ja kylpylä. Keskustaan hyvät bussiyhteydet viereiseltä kadulta.
Miksi Asuntosäätiö?
Me uskomme, että onnellinen koti ja laadukas asuminen kuuluvat kaikille. Emme tavoittele voittoa, vaan käytämme kaikki vastikkeista ja vuokrista saadut tulot toimintamme kehittämiseen. Jo yli 33 000 suomalaista on valinnut Asuntosäätiön tarjoaman kodin. Tiesithän, että myös lemmikit ovat tervetulleita kaikkiin koteihimme!
Rakennuksen tiedot
- Asumismuoto Asokoti
- Keskimääräinen asumisoikeusmaksu / jm² 326,78€
- Hissit 1
- Talosauna Ei
- Kuivaushuone Kyllä
- Asuntoja 22
- Asuinrakennuksia 1
- Käyttövastike / kk / jm² 12,55€
- Valmistumisvuosi 2000
- Porrashuoneet 1
- Energialuokka E
- Lämmitysmuoto Kauko
- Autopaikat 26
- Laajakaista DNA Welho
- Antennijärjestelmä Kaapeli
- KaapeliTV DNA
- Kattomateriaali Huopa
- Runkomateriaali Betoni
- Lemmikit Sallittu
Huoneistot ja pohjakuvat: Hauenkoukku 4, Kerrostalo, Piharakennus
Lisää hakemukselle kaikki haluamasi asuntotyypit. Mahdollisuutesi asunnon saamiseksi paranevat, kun voimme tarjota sinulle kaikkia valitsemasi asuntotyypin asuntoja, jotka mahdollisesti vapautuvat myöhemmin tästä kohteesta. Olet automaattisesti näiden asuntotyyppien hakuprosessissa.
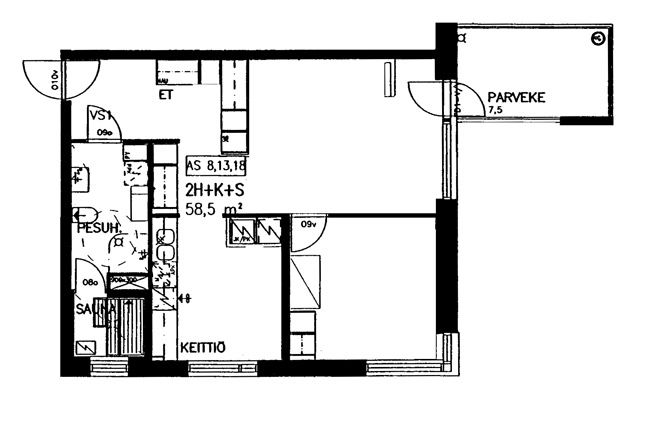
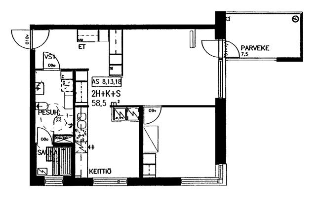
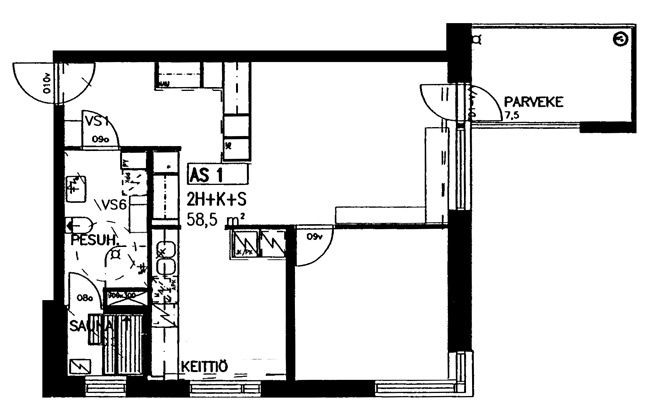
Hauenkoukku 4 A 13
2h+k+s
, Kerrostalo
58.5 m2
4/5
Hauenkoukku 4 A 13
2h+k+s
, Kerrostalo
58.5 m2
Kerros 4/5
Hauenkoukku 4 A 18
2h+k+s
, Kerrostalo
58.5 m2
4/5
Hauenkoukku 4 A 18
2h+k+s
, Kerrostalo
58.5 m2
Kerros 4/5
Hauenkoukku 4 A 1
2h+k+s
, Kerrostalo
58.5 m2
1/5
Hauenkoukku 4 A 1
2h+k+s
, Kerrostalo
58.5 m2
Kerros 1/5
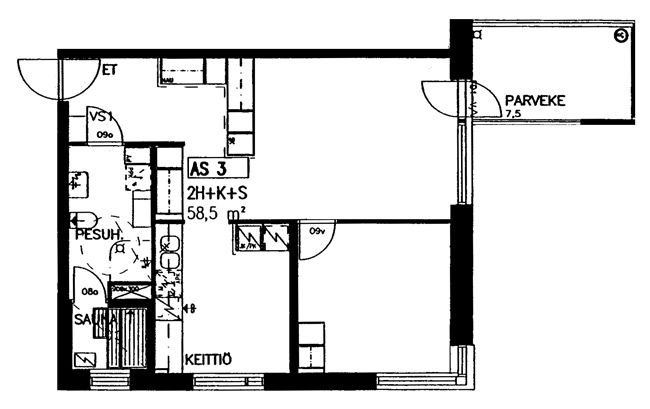
Hauenkoukku 4 A 3
2h+k+s
, Kerrostalo
58.5 m2
2/5
Hauenkoukku 4 A 3
2h+k+s
, Kerrostalo
58.5 m2
Kerros 2/5
Hauenkoukku 4 A 8
2h+k+s
, Kerrostalo
58.5 m2
3/5
Hauenkoukku 4 A 8
2h+k+s
, Kerrostalo
58.5 m2
Kerros 3/5
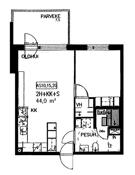
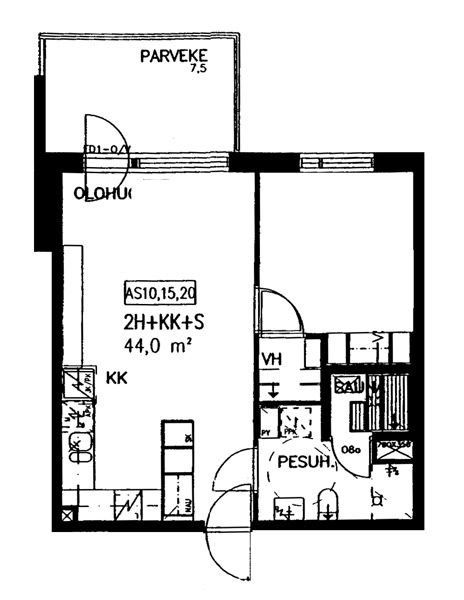
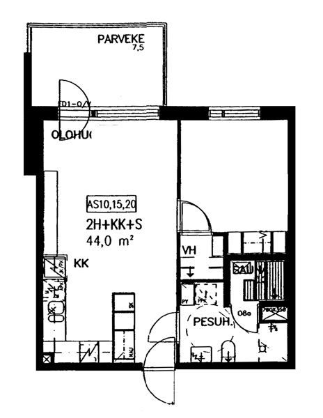
Hauenkoukku 4 A 5
2h+kk+s
, Kerrostalo
44 m2
2/5
Hauenkoukku 4 A 5
2h+kk+s
, Kerrostalo
44 m2
Kerros 2/5
Hauenkoukku 4 A 10
2h+kk+s
, Kerrostalo
44 m2
3/5
Hauenkoukku 4 A 10
2h+kk+s
, Kerrostalo
44 m2
Kerros 3/5
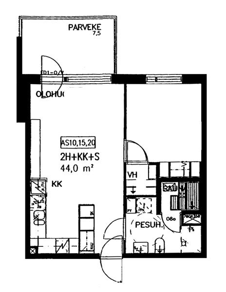
Hauenkoukku 4 A 15
2h+kk+s
, Kerrostalo
44 m2
4/5
Hauenkoukku 4 A 15
2h+kk+s
, Kerrostalo
44 m2
Kerros 4/5
Hauenkoukku 4 A 20
2h+kk+s
, Kerrostalo
44 m2
5/5
Hauenkoukku 4 A 20
2h+kk+s
, Kerrostalo
44 m2
Kerros 5/5
Hauenkoukku 4 A 6
2h+kk+s
, Kerrostalo
46 m2
2/5
Hauenkoukku 4 A 6
2h+kk+s
, Kerrostalo
46 m2
Kerros 2/5
Hauenkoukku 4 A 21
2h+kk+s
, Kerrostalo
47.5 m2
5/5
Hauenkoukku 4 A 21
2h+kk+s
, Kerrostalo
47.5 m2
Kerros 5/5
Hauenkoukku 4 A 16
2h+kk+s
, Kerrostalo
47.5 m2
4/5
Hauenkoukku 4 A 16
2h+kk+s
, Kerrostalo
47.5 m2
Kerros 4/5
Hauenkoukku 4 A 11
2h+kk+s
, Kerrostalo
47.5 m2
3/5
Hauenkoukku 4 A 11
2h+kk+s
, Kerrostalo
47.5 m2
Kerros 3/5
Hauenkoukku 4 A 19
2h+kk+s
, Kerrostalo
49 m2
5/5
Hauenkoukku 4 A 19
2h+kk+s
, Kerrostalo
49 m2
Kerros 5/5
Hauenkoukku 4 A 4
2h+kk+s
, Kerrostalo
49 m2
2/5
Hauenkoukku 4 A 4
2h+kk+s
, Kerrostalo
49 m2
Kerros 2/5
Hauenkoukku 4 A 14
2h+kk+s
, Kerrostalo
49 m2
4/5
Hauenkoukku 4 A 14
2h+kk+s
, Kerrostalo
49 m2
Kerros 4/5
Hauenkoukku 4 A 9
2h+kk+s
, Kerrostalo
49 m2
3/5
Hauenkoukku 4 A 9
2h+kk+s
, Kerrostalo
49 m2
Kerros 3/5
Hauenkoukku 4 A 7
3h+k+s
, Kerrostalo
77 m2
2/5
Hauenkoukku 4 A 7
3h+k+s
, Kerrostalo
77 m2
Kerros 2/5
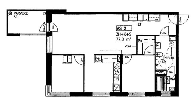
Hauenkoukku 4 A 2
3h+k+s
, Kerrostalo
77 m2
1/5
Hauenkoukku 4 A 2
3h+k+s
, Kerrostalo
77 m2
Kerros 1/5
Hauenkoukku 4 A 12
4h+k+s
, Kerrostalo
87 m2
/5
Hauenkoukku 4 A 12
4h+k+s
, Kerrostalo
87 m2
Kerros /5
Hauenkoukku 4 A 22
4h+k+s
, Kerrostalo
87 m2
5/5
Hauenkoukku 4 A 22
4h+k+s
, Kerrostalo
87 m2
Kerros 5/5
Hauenkoukku 4 A 17
4h+k+s
, Kerrostalo
87 m2
4/5
Hauenkoukku 4 A 17
4h+k+s
, Kerrostalo
87 m2
Kerros 4/5