Kohteen esittely
Kiiskenkuja 5 on rinteeseen rakennettu kerrostalo viihtyisässä Särkilahdessa. Kaikille asunnoille kuuluu varastokoppi. Osassa parvekkeista on näköalat jopa kolmeen ilmansuuntaan. Sisäpihalla lasten leikkipaikka, jossa viihtyvät myös vanhemmat puiston penkeillä päivää paistatellen.
Kallaveden rantaan parisataa metriä, lähimpään ruokakauppaan vielä lyhyempi matka. Lähellä myös Kolmisopin ostoskeskus ja Rauhalahden liikuntapaikat, kuten keila- ja hevostalli, minigolf ja kylpylä. Keskustaan hyvät bussiyhteydet viereiseltä kadulta.
Miksi Asuntosäätiö?
Me uskomme, että onnellinen koti ja laadukas asuminen kuuluvat kaikille. Emme tavoittele voittoa, vaan käytämme kaikki vastikkeista ja vuokrista saadut tulot toimintamme kehittämiseen. Jo yli 33 000 suomalaista on valinnut Asuntosäätiön tarjoaman kodin. Tiesithän, että myös lemmikit ovat tervetulleita kaikkiin koteihimme!
Rakennuksen tiedot
- Asumismuoto Asokoti
- Keskimääräinen asumisoikeusmaksu / jm² 325,1€
- Hissit 1
- Talosauna Ei
- Kuivaushuone Kyllä
- Asuntoja 18
- Asuinrakennuksia 1
- Käyttövastike / kk / jm² 11,42€
- Valmistumisvuosi 2000
- Porrashuoneet 1
- Energialuokka E
- Lämmitysmuoto Kauko
- Autopaikat 18
- Kerhohuone 1
- Laajakaista DNA Welho
- Antennijärjestelmä Kaapeli
- KaapeliTV DNA
- Kattomateriaali Huopa
- Runkomateriaali Betoni
- Lemmikit Sallittu
Huoneistot ja pohjakuvat: Kiiskenkuja 5, Piharakennus, Kerrostalo
Lisää hakemukselle kaikki haluamasi asuntotyypit. Mahdollisuutesi asunnon saamiseksi paranevat, kun voimme tarjota sinulle kaikkia valitsemasi asuntotyypin asuntoja, jotka mahdollisesti vapautuvat myöhemmin tästä kohteesta. Olet automaattisesti näiden asuntotyyppien hakuprosessissa.
Kiiskenkuja 5 A 13
1h+tk+s
, Kerrostalo
48.5 m2
4/5
Kiiskenkuja 5 A 13
1h+tk+s
, Kerrostalo
48.5 m2
Kerros 4/5
Kiiskenkuja 5 A 5
1h+tk+s
, Kerrostalo
48.5 m2
2/5
Kiiskenkuja 5 A 5
1h+tk+s
, Kerrostalo
48.5 m2
Kerros 2/5
Kiiskenkuja 5 A 9
1h+tk+s
, Kerrostalo
48.5 m2
3/5
Kiiskenkuja 5 A 9
1h+tk+s
, Kerrostalo
48.5 m2
Kerros 3/5
Kiiskenkuja 5 A 17
1h+tk+s
, Kerrostalo
48.5 m2
/5
Kiiskenkuja 5 A 17
1h+tk+s
, Kerrostalo
48.5 m2
Kerros /5
Kiiskenkuja 5 A 4
1h+tk+s
, Kerrostalo
48.5 m2
/5
Kiiskenkuja 5 A 4
1h+tk+s
, Kerrostalo
48.5 m2
Kerros /5
Kiiskenkuja 5 A 8
2h+tk+s
, Kerrostalo
65.5 m2
3/5
Kiiskenkuja 5 A 8
2h+tk+s
, Kerrostalo
65.5 m2
Kerros 3/5
Kiiskenkuja 5 A 16
2h+tk+s
, Kerrostalo
65.5 m2
/5
Kiiskenkuja 5 A 16
2h+tk+s
, Kerrostalo
65.5 m2
Kerros /5
Kiiskenkuja 5 A 12
2h+tk+s
, Kerrostalo
65.5 m2
4/5
Kiiskenkuja 5 A 12
2h+tk+s
, Kerrostalo
65.5 m2
Kerros 4/5
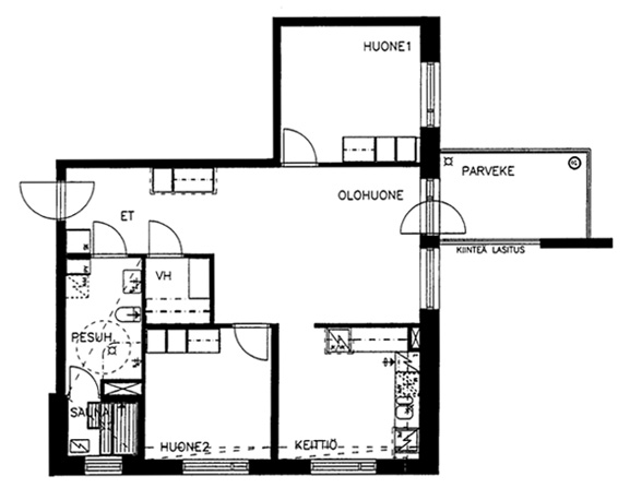
Kiiskenkuja 5 A 11
3h+k+s
, Kerrostalo
72.5 m2
4/5
Kiiskenkuja 5 A 11
3h+k+s
, Kerrostalo
72.5 m2
Kerros 4/5
Kiiskenkuja 5 A 7
3h+k+s
, Kerrostalo
72.5 m2
/5
Kiiskenkuja 5 A 7
3h+k+s
, Kerrostalo
72.5 m2
Kerros /5
Kiiskenkuja 5 A 15
3h+k+s
, Kerrostalo
72.5 m2
/5
Kiiskenkuja 5 A 15
3h+k+s
, Kerrostalo
72.5 m2
Kerros /5
Kiiskenkuja 5 A 2
3h+k+s
, Kerrostalo
79.5 m2
1/5
Kiiskenkuja 5 A 2
3h+k+s
, Kerrostalo
79.5 m2
Kerros 1/5
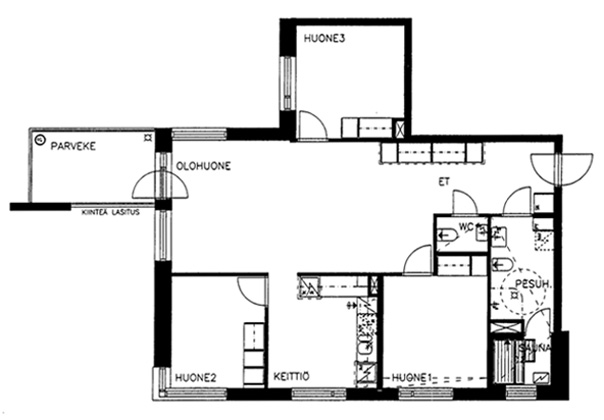
Kiiskenkuja 5 A 18
4h+k+s
, Kerrostalo
90 m2
5/5
Kiiskenkuja 5 A 18
4h+k+s
, Kerrostalo
90 m2
Kerros 5/5
Kiiskenkuja 5 A 6
4h+k+s
, Kerrostalo
90 m2
/5
Kiiskenkuja 5 A 6
4h+k+s
, Kerrostalo
90 m2
Kerros /5
Kiiskenkuja 5 A 10
4h+k+s
, Kerrostalo
90 m2
3/5
Kiiskenkuja 5 A 10
4h+k+s
, Kerrostalo
90 m2
Kerros 3/5


