Kohteen esittely
Asemantaustassa kahdesta pienkerrostalosta muodostuva yhtiö, ei hissiä. Asuntoja kaksioista kolmioihin, 45- 73,5 m2. Parvekkeet isolle sisäpihalle, jossa istutuksia ja penkkejä. Kohde on peruskorjattu vuonna 2021.
Asemantaustan matalasti rakennetulla alueella riittää valoa ja istutuksia. Kotieläinpiha ja maksuton iso perhepuisto ulko- ja sisätiloineen kävelymatkan päässä. Lisäksi lähistöllä voi käydä ulkoiluttamassa koiraa koirapuistossa ja heittelemässä frisbeegolfia. Lähialueella useampi koulu, alakoulusta lukioon asti. Parin kilometrin säteellä Launeella hyvä valikoima marketteja, kodin ja pihan sisustamiseen liittyviä myymälöitä ja liikuntakeskuksia.
Pyörällä ajat hetkessä myös radan toisella puolella olevaan matkakeskukseen, josta voi esimerkiksi pendelöidä junalla töihin pääkaupunkiseudulle tai liikkua linja-autolla kaupungin sisällä.
Miksi Asuntosäätiö?
Me uskomme, että onnellinen koti ja laadukas asuminen kuuluvat kaikille. Emme tavoittele voittoa, vaan käytämme kaikki vastikkeista ja vuokrista saadut tulot toimintamme kehittämiseen. Jo yli 33 000 suomalaista on valinnut Asuntosäätiön tarjoaman kodin. Tiesithän, että myös lemmikit ovat tervetulleita kaikkiin koteihimme!
Rakennuksen tiedot
- Asumismuoto Asokoti
- Keskimääräinen asumisoikeusmaksu / jm² 223,85€
- Hissit Ei
- Talosauna 2
- Pyykkitupa Kyllä
- Kuivaushuone Kyllä
- Asuntoja 35
- Asuinrakennuksia 2
- Käyttövastike / kk / jm² 11,97€
- Valmistumisvuosi 1992
- Peruskorjattu 2021
- Porrashuoneet 4
- Energialuokka F
- Lämmitysmuoto Kauko
- Autopaikat 30
- Kerhohuone 1
- Laajakaista DNA Welho
- Antennijärjestelmä Kaapeli
- KaapeliTV DNA
- Kattomateriaali Pelti
- Runkomateriaali Betoni
- Lemmikit Sallittu
Vapaita asuntoja rakennuksesta
Huoneistot ja pohjakuvat: Vasamakatu 10, Piharakennus, Kerrostalo
Lisää hakemukselle kaikki haluamasi asuntotyypit. Mahdollisuutesi asunnon saamiseksi paranevat, kun voimme tarjota sinulle kaikkia valitsemasi asuntotyypin asuntoja, jotka mahdollisesti vapautuvat myöhemmin tästä kohteesta. Olet automaattisesti näiden asuntotyyppien hakuprosessissa.
Vasamakatu 10 B 17
2h+k
, Kerrostalo
56.5 m2
Kerros 3/4
Vasamakatu 10 A 6
2h+k
, Kerrostalo
56.5 m2
2/4
Vasamakatu 10 A 6
2h+k
, Kerrostalo
56.5 m2
Kerros 2/4
Vasamakatu 10 B 14
2h+k
, Kerrostalo
56.5 m2
2/4
Vasamakatu 10 B 14
2h+k
, Kerrostalo
56.5 m2
Kerros 2/4
Vasamakatu 10 B 11
2h+k
, Kerrostalo
56.5 m2
1/4
Vasamakatu 10 B 11
2h+k
, Kerrostalo
56.5 m2
Kerros 1/4
Vasamakatu 10 A 4
2h+k
, Kerrostalo
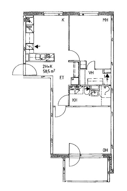
58.5 m2
1/4
Vasamakatu 10 A 4
2h+k
, Kerrostalo
58.5 m2
Kerros 1/4
Vasamakatu 10 A 7
2h+k
, Kerrostalo
58.5 m2
2/4
Vasamakatu 10 A 7
2h+k
, Kerrostalo
58.5 m2
Kerros 2/4
Vasamakatu 10 B 12
2h+k
, Kerrostalo
58.5 m2
1/4
Vasamakatu 10 B 12
2h+k
, Kerrostalo
58.5 m2
Kerros 1/4
Vasamakatu 10 B 18
2h+k
, Kerrostalo
58.5 m2
3/4
Vasamakatu 10 B 18
2h+k
, Kerrostalo
58.5 m2
Kerros 3/4
Vasamakatu 10 B 15
2h+k
, Kerrostalo
58.5 m2
2/4
Vasamakatu 10 B 15
2h+k
, Kerrostalo
58.5 m2
Kerros 2/4
Vasamakatu 10 D 32
2h+k
, Kerrostalo
58.5 m2
1/4
Vasamakatu 10 D 32
2h+k
, Kerrostalo
58.5 m2
Kerros 1/4
Vasamakatu 10 C 25
2h+k
, Kerrostalo
58.5 m2
2/4
Vasamakatu 10 C 25
2h+k
, Kerrostalo
58.5 m2
Kerros 2/4
Vasamakatu 10 C 28
2h+k
, Kerrostalo
58.5 m2
Kerros 3/4
Vasamakatu 10 C 22
2h+k
, Kerrostalo
58.5 m2
1/4
Vasamakatu 10 C 22
2h+k
, Kerrostalo
58.5 m2
Kerros 1/4
Vasamakatu 10 D 35
2h+k
, Kerrostalo
58.5 m2
Kerros 2/4
Vasamakatu 10 B 8
2h+k
, Kerrostalo
59 m2
P/4
Vasamakatu 10 B 8
2h+k
, Kerrostalo
59 m2
Kerros P/4
Vasamakatu 10 D 30
2h+kk
, Kerrostalo
45 m2
1/4
Vasamakatu 10 D 30
2h+kk
, Kerrostalo
45 m2
Kerros 1/4
Vasamakatu 10 D 33
2h+kk
, Kerrostalo
45 m2
2/4
Vasamakatu 10 D 33
2h+kk
, Kerrostalo
45 m2
Kerros 2/4
Vasamakatu 10 C 21
2h+kk
, Kerrostalo
46.5 m2
1/4
Vasamakatu 10 C 21
2h+kk
, Kerrostalo
46.5 m2
Kerros 1/4
Vasamakatu 10 C 24
2h+kk
, Kerrostalo
46.5 m2
2/4
Vasamakatu 10 C 24
2h+kk
, Kerrostalo
46.5 m2
Kerros 2/4
Vasamakatu 10 C 27
2h+kk
, Kerrostalo
46.5 m2
3/4
Vasamakatu 10 C 27
2h+kk
, Kerrostalo
46.5 m2
Kerros 3/4
Vasamakatu 10 B 9
2h+kk
, Kerrostalo
48.5 m2
P/4
Vasamakatu 10 B 9
2h+kk
, Kerrostalo
48.5 m2
Kerros P/4
Vasamakatu 10 D 31
2h+kk
, Kerrostalo
49 m2
1/4
Vasamakatu 10 D 31
2h+kk
, Kerrostalo
49 m2
Kerros 1/4
Vasamakatu 10 D 29
2h+kk
, Kerrostalo
49 m2
P/4
Vasamakatu 10 D 29
2h+kk
, Kerrostalo
49 m2
Kerros P/4
Vasamakatu 10 D 34
2h+kk
, Kerrostalo
49 m2
2/4
Vasamakatu 10 D 34
2h+kk
, Kerrostalo
49 m2
Kerros 2/4
Vasamakatu 10 C 19
2h+kk
, Kerrostalo
49 m2
P/4
Vasamakatu 10 C 19
2h+kk
, Kerrostalo
49 m2
Kerros P/4
Vasamakatu 10 A 3
3h+k
, Kerrostalo
56.5 m2
1/4
Vasamakatu 10 A 3
3h+k
, Kerrostalo
56.5 m2
Kerros 1/4
Vasamakatu 10 C 26
3h+k
, Kerrostalo
72.5 m2
3/4
Vasamakatu 10 C 26
3h+k
, Kerrostalo
72.5 m2
Kerros 3/4
Vasamakatu 10 C 20
3h+k
, Kerrostalo
72.5 m2
1/4
Vasamakatu 10 C 20
3h+k
, Kerrostalo
72.5 m2
Kerros 1/4
Vasamakatu 10 C 23
3h+k
, Kerrostalo
72.5 m2
2/4
Vasamakatu 10 C 23
3h+k
, Kerrostalo
72.5 m2
Kerros 2/4
Vasamakatu 10 A 2
3h+k
, Kerrostalo
73.5 m2
1/4
Vasamakatu 10 A 2
3h+k
, Kerrostalo
73.5 m2
Kerros 1/4
Vasamakatu 10 A 5
3h+k
, Kerrostalo
73.5 m2
2/4
Vasamakatu 10 A 5
3h+k
, Kerrostalo
73.5 m2
Kerros 2/4
Vasamakatu 10 B 13
3h+k
, Kerrostalo
73.5 m2
2/4
Vasamakatu 10 B 13
3h+k
, Kerrostalo
73.5 m2
Kerros 2/4
Vasamakatu 10 B 16
3h+k
, Kerrostalo
73.5 m2
3/4
Vasamakatu 10 B 16
3h+k
, Kerrostalo
73.5 m2
Kerros 3/4