Kohteen esittely
4- 5-kerroksinen kerrostalo väljästi rakennetussa Jalkarannassa. Valoisia asumisoikeusasuntoja 45- 66,5 kaksioista aina 90,5 m2 neljään huoneeseen ja keittiöön asti. Kohde on peruskorjattu 2019.
Ihanteellinen sijainti ulkoilusta tykkäävälle: Talvella Salpausselän ladut lähtevät tien toiselta puolelta ja Messilän rinteet ovat vain parin kilometrin päässä. Kesällä Vesijärvi kutsuu uimaan, Tapanilan metsät lenkkeilemään ja Messilän golf-kenttä golfaamaan.
Kauppa kadun toisella puolella, koulu ja monitoimikeskus puolen kilometrin päässä. Keskustaan polkee helposti pyörällä tai läheltä kulkevalla bussilla.
Miksi Asuntosäätiö?
Me uskomme, että onnellinen koti ja laadukas asuminen kuuluvat kaikille. Emme tavoittele voittoa, vaan käytämme kaikki vastikkeista ja vuokrista saadut tulot toimintamme kehittämiseen. Jo yli 33 000 suomalaista on valinnut Asuntosäätiön tarjoaman kodin. Tiesithän, että myös lemmikit ovat tervetulleita kaikkiin koteihimme!
Rakennuksen tiedot
- Asumismuoto Asokoti
- Keskimääräinen asumisoikeusmaksu / jm² 190,73€
- Hissit 3
- Talosauna Ei
- Pyykkitupa Kyllä
- Kuivaushuone Kyllä
- Asuntoja 47
- Asuinrakennuksia 1
- Käyttövastike / kk / jm² 11,52€
- Valmistumisvuosi 1993
- Porrashuoneet 3
- Energialuokka E
- Lämmitysmuoto Kauko + aurinkosähkö
- Autopaikat 47
- Kerhohuone 1
- Laajakaista DNA Welho
- Antennijärjestelmä Kaapeli
- KaapeliTV DNA
- Kattomateriaali Huopa
- Runkomateriaali Betoni
- Lemmikit Sallittu
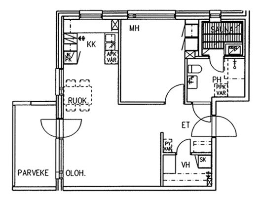
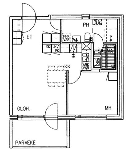
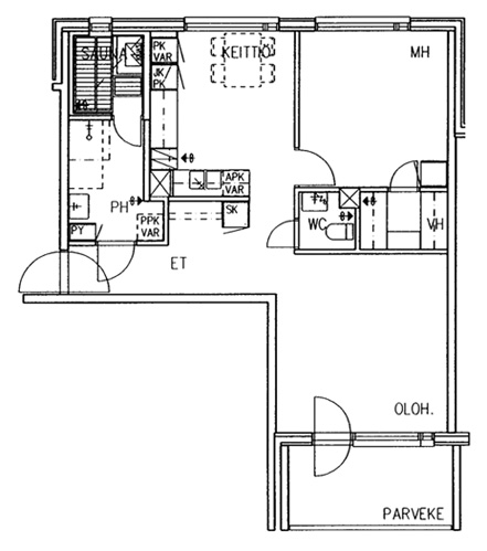
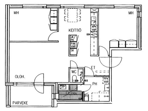
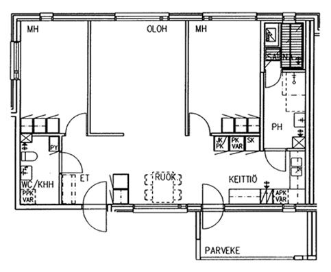
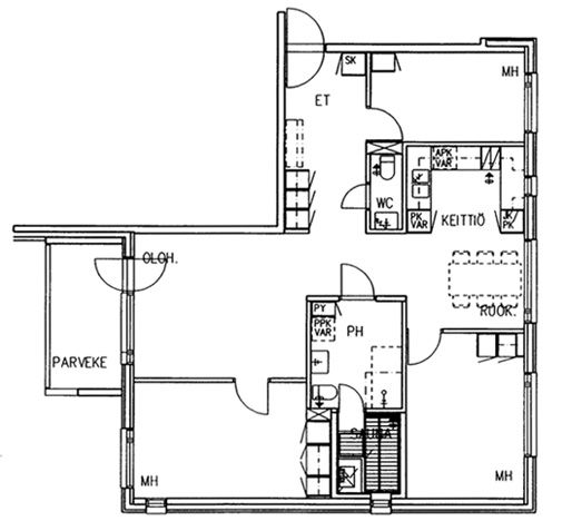
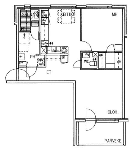
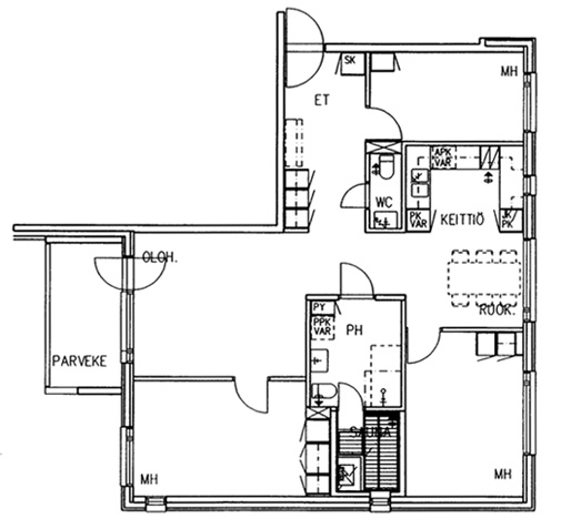
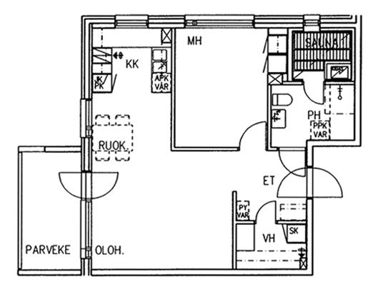
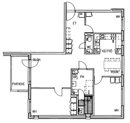
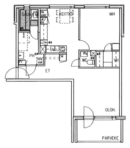
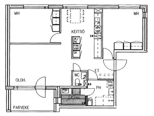
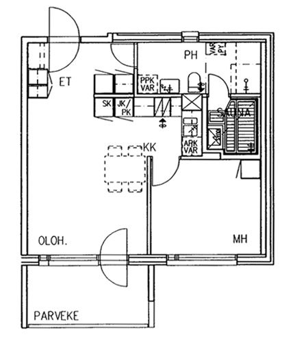
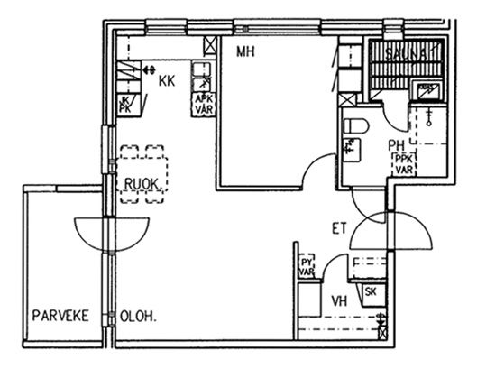
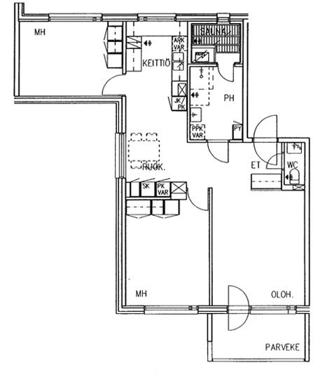
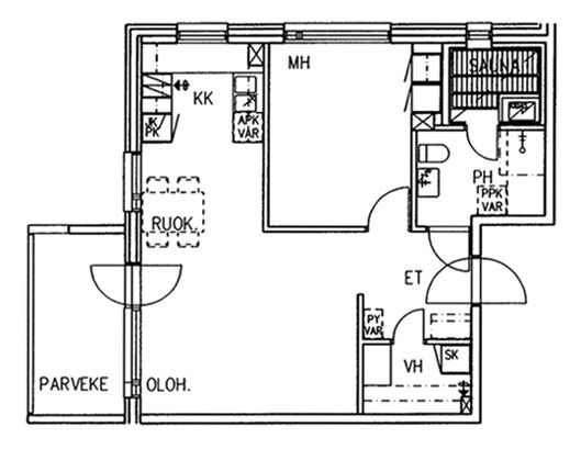
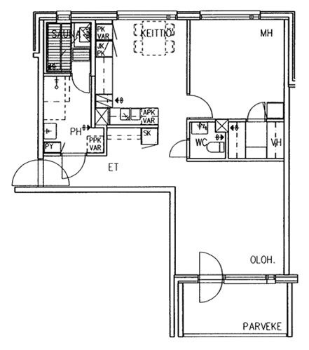
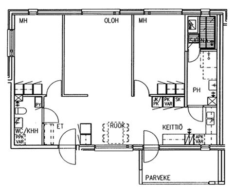
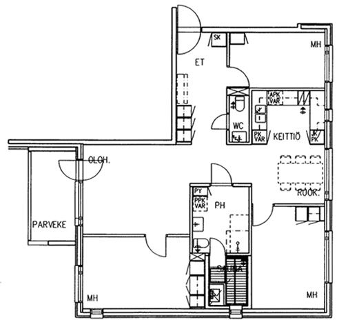
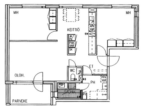
Huoneistot ja pohjakuvat: Sarvikatu 6, Piharakennus, Kerrostalo
Lisää hakemukselle kaikki haluamasi asuntotyypit. Mahdollisuutesi asunnon saamiseksi paranevat, kun voimme tarjota sinulle kaikkia valitsemasi asuntotyypin asuntoja, jotka mahdollisesti vapautuvat myöhemmin tästä kohteesta. Olet automaattisesti näiden asuntotyyppien hakuprosessissa.
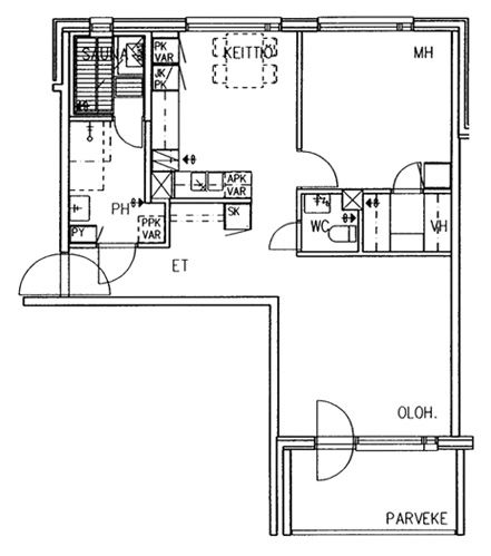
Sarvikatu 6 B 24
2h+k+s
, Kerrostalo
45 m2
3/6
Sarvikatu 6 B 24
2h+k+s
, Kerrostalo
45 m2
Kerros 3/6
Sarvikatu 6 B 15
2h+k+s
, Kerrostalo
61 m2
1/6
Sarvikatu 6 B 15
2h+k+s
, Kerrostalo
61 m2
Kerros 1/6
Sarvikatu 6 B 27
2h+k+s
, Kerrostalo
61 m2
4/6
Sarvikatu 6 B 27
2h+k+s
, Kerrostalo
61 m2
Kerros 4/6
Sarvikatu 6 B 23
2h+k+s
, Kerrostalo
61 m2
3/6
Sarvikatu 6 B 23
2h+k+s
, Kerrostalo
61 m2
Kerros 3/6
Sarvikatu 6 B 19
2h+k+s
, Kerrostalo
61 m2
2/6
Sarvikatu 6 B 19
2h+k+s
, Kerrostalo
61 m2
Kerros 2/6
Sarvikatu 6 B 32
2h+k+s
, Kerrostalo
66.5 m2
5/6
Sarvikatu 6 B 32
2h+k+s
, Kerrostalo
66.5 m2
Kerros 5/6
Sarvikatu 6 B 25
2h+kk+s
, Kerrostalo
45 m2
3/6
Sarvikatu 6 B 25
2h+kk+s
, Kerrostalo
45 m2
Kerros 3/6
Sarvikatu 6 A 9
2h+kk+s
, Kerrostalo
45 m2
2/6
Sarvikatu 6 A 9
2h+kk+s
, Kerrostalo
45 m2
Kerros 2/6
Sarvikatu 6 C 46
2h+kk+s
, Kerrostalo
45 m2
4/6
Sarvikatu 6 C 46
2h+kk+s
, Kerrostalo
45 m2
Kerros 4/6
Sarvikatu 6 B 20
2h+kk+s
, Kerrostalo
45 m2
2/6
Sarvikatu 6 B 20
2h+kk+s
, Kerrostalo
45 m2
Kerros 2/6
Sarvikatu 6 B 31
2h+kk+s
, Kerrostalo
45 m2
5/6
Sarvikatu 6 B 31
2h+kk+s
, Kerrostalo
45 m2
Kerros 5/6
Sarvikatu 6 B 28
2h+kk+s
, Kerrostalo
45 m2
4/6
Sarvikatu 6 B 28
2h+kk+s
, Kerrostalo
45 m2
Kerros 4/6
Sarvikatu 6 B 29
2h+kk+s
, Kerrostalo
45 m2
4/6
Sarvikatu 6 B 29
2h+kk+s
, Kerrostalo
45 m2
Kerros 4/6
Sarvikatu 6 C 40
2h+kk+s
, Kerrostalo
45 m2
2/6
Sarvikatu 6 C 40
2h+kk+s
, Kerrostalo
45 m2
Kerros 2/6
Sarvikatu 6 C 44
2h+kk+s
, Kerrostalo
45 m2
3/6
Sarvikatu 6 C 44
2h+kk+s
, Kerrostalo
45 m2
Kerros 3/6
Sarvikatu 6 B 17
2h+kk+s
, Kerrostalo
45 m2
1/6
Sarvikatu 6 B 17
2h+kk+s
, Kerrostalo
45 m2
Kerros 1/6
Sarvikatu 6 A 13
2h+kk+s
, Kerrostalo
45 m2
3/6
Sarvikatu 6 A 13
2h+kk+s
, Kerrostalo
45 m2
Kerros 3/6
Sarvikatu 6 C 36
2h+kk+s
, Kerrostalo
45 m2
1/6
Sarvikatu 6 C 36
2h+kk+s
, Kerrostalo
45 m2
Kerros 1/6
Sarvikatu 6 C 43
2h+kk+s
, Kerrostalo
45 m2
3/6
Sarvikatu 6 C 43
2h+kk+s
, Kerrostalo
45 m2
Kerros 3/6
Sarvikatu 6 B 16
2h+kk+s
, Kerrostalo
45 m2
1/6
Sarvikatu 6 B 16
2h+kk+s
, Kerrostalo
45 m2
Kerros 1/6
Sarvikatu 6 A 5
2h+kk+s
, Kerrostalo
45 m2
1/6
Sarvikatu 6 A 5
2h+kk+s
, Kerrostalo
45 m2
Kerros 1/6
Sarvikatu 6 C 39
2h+kk+s
, Kerrostalo
45 m2
2/6
Sarvikatu 6 C 39
2h+kk+s
, Kerrostalo
45 m2
Kerros 2/6
Sarvikatu 6 B 21
2h+kk+s
, Kerrostalo
45 m2
2/6
Sarvikatu 6 B 21
2h+kk+s
, Kerrostalo
45 m2
Kerros 2/6
Sarvikatu 6 C 35
2h+kk+s
, Kerrostalo
45 m2
1/6
Sarvikatu 6 C 35
2h+kk+s
, Kerrostalo
45 m2
Kerros 1/6
Sarvikatu 6 A 4
2h+kk+s
, Kerrostalo
53 m2
1/6
Sarvikatu 6 A 4
2h+kk+s
, Kerrostalo
53 m2
Kerros 1/6
Sarvikatu 6 A 2
2h+kk+s
, Kerrostalo
53 m2
P/6
Sarvikatu 6 A 2
2h+kk+s
, Kerrostalo
53 m2
Kerros P/6
Sarvikatu 6 A 8
2h+kk+s
, Kerrostalo
53 m2
2/6
Sarvikatu 6 A 8
2h+kk+s
, Kerrostalo
53 m2
Kerros 2/6
Sarvikatu 6 A 12
2h+kk+s
, Kerrostalo
53 m2
3/6
Sarvikatu 6 A 12
2h+kk+s
, Kerrostalo
53 m2
Kerros 3/6
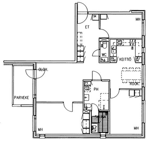
Sarvikatu 6 C 45
3h+k+s
, Kerrostalo
74 m2
3/6
Sarvikatu 6 C 45
3h+k+s
, Kerrostalo
74 m2
Kerros 3/6
Sarvikatu 6 B 22
3h+k+s
, Kerrostalo
74 m2
2/6
Sarvikatu 6 B 22
3h+k+s
, Kerrostalo
74 m2
Kerros 2/6
Sarvikatu 6 B 18
3h+k+s
, Kerrostalo
74 m2
1/6
Sarvikatu 6 B 18
3h+k+s
, Kerrostalo
74 m2
Kerros 1/6
Sarvikatu 6 B 26
3h+k+s
, Kerrostalo
74 m2
3/6
Sarvikatu 6 B 26
3h+k+s
, Kerrostalo
74 m2
Kerros 3/6
Sarvikatu 6 C 37
3h+k+s
, Kerrostalo
74 m2
1/6
Sarvikatu 6 C 37
3h+k+s
, Kerrostalo
74 m2
Kerros 1/6
Sarvikatu 6 C 41
3h+k+s
, Kerrostalo
74 m2
2/6
Sarvikatu 6 C 41
3h+k+s
, Kerrostalo
74 m2
Kerros 2/6
Sarvikatu 6 B 30
3h+k+s
, Kerrostalo
74 m2
4/6
Sarvikatu 6 B 30
3h+k+s
, Kerrostalo
74 m2
Kerros 4/6
Sarvikatu 6 C 47
3h+k+s
, Kerrostalo
79.5 m2
4/6
Sarvikatu 6 C 47
3h+k+s
, Kerrostalo
79.5 m2
Kerros 4/6
Sarvikatu 6 A 7
3h+k+s
, Kerrostalo
79.5 m2
2/6
Sarvikatu 6 A 7
3h+k+s
, Kerrostalo
79.5 m2
Kerros 2/6
Sarvikatu 6 A 3
3h+k+s
, Kerrostalo
79.5 m2
1/6
Sarvikatu 6 A 3
3h+k+s
, Kerrostalo
79.5 m2
Kerros 1/6
Sarvikatu 6 A 11
3h+k+s
, Kerrostalo
79.5 m2
3/6
Sarvikatu 6 A 11
3h+k+s
, Kerrostalo
79.5 m2
Kerros 3/6
Sarvikatu 6 A 1
3h+k+s
, Kerrostalo
79.5 m2
P/6
Sarvikatu 6 A 1
3h+k+s
, Kerrostalo
79.5 m2
Kerros P/6
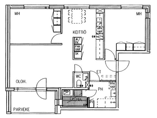
Sarvikatu 6 A 10
4h+k+s
, Kerrostalo
90.5 m2
2/6
Sarvikatu 6 A 10
4h+k+s
, Kerrostalo
90.5 m2
Kerros 2/6
Sarvikatu 6 C 33
4h+k+s
, Kerrostalo
90.5 m2
P/6
Sarvikatu 6 C 33
4h+k+s
, Kerrostalo
90.5 m2
Kerros P/6
Sarvikatu 6 A 6
4h+k+s
, Kerrostalo
90.5 m2
1/6
Sarvikatu 6 A 6
4h+k+s
, Kerrostalo
90.5 m2
Kerros 1/6
Sarvikatu 6 C 42
4h+k+s
, Kerrostalo
90.5 m2
3/6
Sarvikatu 6 C 42
4h+k+s
, Kerrostalo
90.5 m2
Kerros 3/6
Sarvikatu 6 A 14
4h+k+s
, Kerrostalo
90.5 m2
3/6
Sarvikatu 6 A 14
4h+k+s
, Kerrostalo
90.5 m2
Kerros 3/6
Sarvikatu 6 C 38
4h+k+s
, Kerrostalo
90.5 m2
2/6
Sarvikatu 6 C 38
4h+k+s
, Kerrostalo
90.5 m2
Kerros 2/6
Sarvikatu 6 C 34
4h+k+s
, Kerrostalo
90.5 m2
1/6
Sarvikatu 6 C 34
4h+k+s
, Kerrostalo
90.5 m2
Kerros 1/6