Kohteen esittely
Yksitasoinen rivitalo Kasakkamäessä. Asuntojen koot vaihtelevat 51 m2 kaksioista 75 kolmioihin ja 90 m2 neljän huoneen ja keittiön asuntoihin. Kaikissa asunnoissa on oma sauna ja piha.
Rauhallinen sijainti pientaloalueella. Hyviä ulkoilureittejä ja koirapuisto lähellä. Kasakkamäen koulu aivan vieressä ja kävelyetäisyydellä myös neuvola ja päiväkoti.
Keskustaan 3 kilometriä. Autolla on myös nopea matka Lahden eteläiselle kehätielle ja sitä kautta Helsingin moottoritielle.
Miksi Asuntosäätiö?
Me uskomme, että onnellinen koti ja laadukas asuminen kuuluvat kaikille. Emme tavoittele voittoa, vaan käytämme kaikki vastikkeista ja vuokrista saadut tulot toimintamme kehittämiseen. Jo yli 33 000 suomalaista on valinnut Asuntosäätiön tarjoaman kodin. Tiesithän, että myös lemmikit ovat tervetulleita kaikkiin koteihimme!
Rakennuksen tiedot
- Asumismuoto Asokoti
- Keskimääräinen asumisoikeusmaksu / jm² 289,57€
- Hissit Ei
- Talosauna Ei
- Asuntoja 11
- Asuinrakennuksia 2
- Käyttövastike / kk / jm² 12,39€
- Valmistumisvuosi 1997
- Energialuokka D
- Lämmitysmuoto Kauko
- Autopaikat 24
- Laajakaista DNA Welho
- Antennijärjestelmä Kaapeli
- KaapeliTV DNA
- Kattomateriaali Pelti
- Runkomateriaali Puu
- Lemmikit Sallittu
Huoneistot ja pohjakuvat: Hettakatu 2-4, Rivitalo
Lisää hakemukselle kaikki haluamasi asuntotyypit. Mahdollisuutesi asunnon saamiseksi paranevat, kun voimme tarjota sinulle kaikkia valitsemasi asuntotyypin asuntoja, jotka mahdollisesti vapautuvat myöhemmin tästä kohteesta. Olet automaattisesti näiden asuntotyyppien hakuprosessissa.
Hettakatu 2-4 A 3
2h+kk+s
, Rivitalo
51 m2
1/1
Hettakatu 2-4 A 3
2h+kk+s
, Rivitalo
51 m2
Kerros 1/1
Hettakatu 2-4 B 8
2h+kk+s
, Rivitalo
51 m2
1/1
Hettakatu 2-4 B 8
2h+kk+s
, Rivitalo
51 m2
Kerros 1/1
Hettakatu 2-4 B 9
2h+kk+s
, Rivitalo
51 m2
1/1
Hettakatu 2-4 B 9
2h+kk+s
, Rivitalo
51 m2
Kerros 1/1
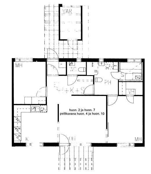
Hettakatu 2-4 A 2
3h+k+s
, Rivitalo
75 m2
1/1
Hettakatu 2-4 A 2
3h+k+s
, Rivitalo
75 m2
Kerros 1/1
Hettakatu 2-4 A 4
3h+k+s
, Rivitalo
75 m2
1/1
Hettakatu 2-4 A 4
3h+k+s
, Rivitalo
75 m2
Kerros 1/1
Hettakatu 2-4 B 7
3h+k+s
, Rivitalo
75 m2
1/1
Hettakatu 2-4 B 7
3h+k+s
, Rivitalo
75 m2
Kerros 1/1
Hettakatu 2-4 B 10
3h+k+s
, Rivitalo
75 m2
1/1
Hettakatu 2-4 B 10
3h+k+s
, Rivitalo
75 m2
Kerros 1/1
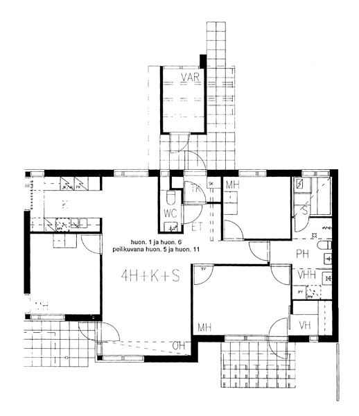
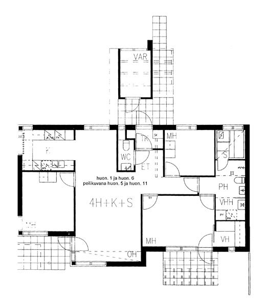
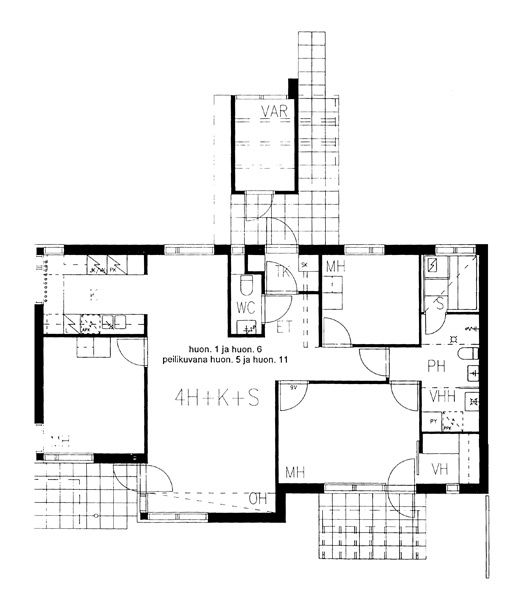
Hettakatu 2-4 A 1
4h+k+s
, Rivitalo
90 m2
1/1
Hettakatu 2-4 A 1
4h+k+s
, Rivitalo
90 m2
Kerros 1/1
Hettakatu 2-4 A 5
4h+k+s
, Rivitalo
90 m2
1/1
Hettakatu 2-4 A 5
4h+k+s
, Rivitalo
90 m2
Kerros 1/1
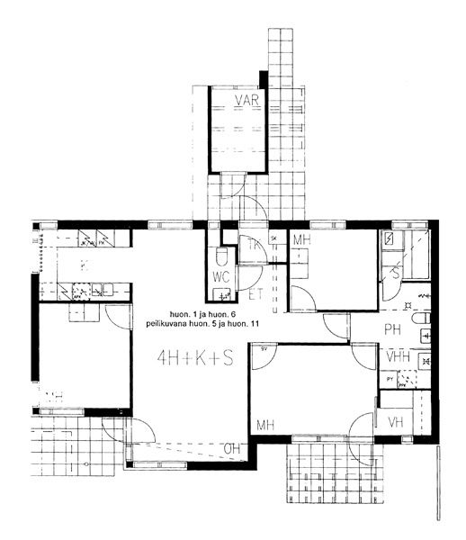
Hettakatu 2-4 B 6
4h+k+s
, Rivitalo
90 m2
1/1
Hettakatu 2-4 B 6
4h+k+s
, Rivitalo
90 m2
Kerros 1/1
Hettakatu 2-4 B 11
4h+k+s
, Rivitalo
90 m2
1/1
Hettakatu 2-4 B 11
4h+k+s
, Rivitalo
90 m2
Kerros 1/1