Kohteen esittely
Kävelymatkan päässä keskustasta rauhallinen kolmekerroksinen hissitalo Harapaisen kaupunginosassa. Kaikissa asunnoissa omat saunat ja parvekkeet. Kohteessa käytetään hiilineutraalia kaukolämpöä.
Muutaman sadan metrin päästä löydät mm S-Marketin, apteekin, Rahulan Rehun ja aidon leipomon! Koulut keskustassa, mutta Alakylän päiväkoti kiven heiton päässä. Hyvät kulkuyhteydet keskustaan ja 6-tielle. Rautatieasemakin löytyy muutaman minuutin kävelymatkan päästä!
Miksi Asuntosäätiö?
Me uskomme, että onnellinen koti ja laadukas asuminen kuuluvat kaikille. Emme tavoittele voittoa, vaan käytämme kaikki vastikkeista ja vuokrista saadut tulot toimintamme kehittämiseen. Jo yli 33 000 suomalaista on valinnut Asuntosäätiön tarjoaman kodin. Tiesithän, että myös lemmikit ovat tervetulleita kaikkiin koteihimme!
Rakennuksen tiedot
- Asumismuoto Asokoti
- Keskimääräinen asumisoikeusmaksu / jm² 328,19€
- Hissit 1
- Talosauna Ei
- Kuivaushuone Kyllä
- Asuntoja 17
- Asuinrakennuksia 1
- Käyttövastike / kk / jm² 10,85€
- Valmistumisvuosi 1998
- Porrashuoneet 1
- Energialuokka D
- Lämmitysmuoto Kauko
- Autopaikat 17
- Laajakaista Elisa
- Antennijärjestelmä Kaapeli
- KaapeliTV Elisa
- Kattomateriaali Pelti
- Runkomateriaali Betoni
- Lemmikit Sallittu
Huoneistot ja pohjakuvat: Kangastuvankatu 3, Piharakennus, Kerrostalo
Lisää hakemukselle kaikki haluamasi asuntotyypit. Mahdollisuutesi asunnon saamiseksi paranevat, kun voimme tarjota sinulle kaikkia valitsemasi asuntotyypin asuntoja, jotka mahdollisesti vapautuvat myöhemmin tästä kohteesta. Olet automaattisesti näiden asuntotyyppien hakuprosessissa.
Kangastuvankatu 3 A 2
2h+k
, Kerrostalo
51 m2
1/3
Kangastuvankatu 3 A 2
2h+k
, Kerrostalo
51 m2
Kerros 1/3
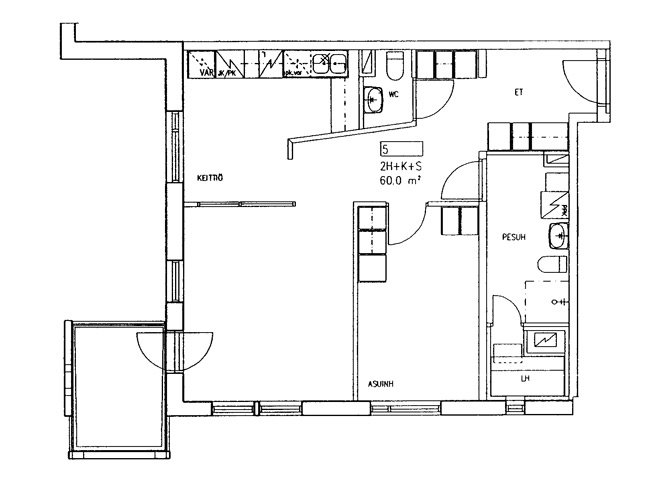
Kangastuvankatu 3 A 14
2h+k+s
, Kerrostalo
50.5 m2
3/3
Kangastuvankatu 3 A 14
2h+k+s
, Kerrostalo
50.5 m2
Kerros 3/3
Kangastuvankatu 3 A 8
2h+k+s
, Kerrostalo
50.5 m2
2/3
Kangastuvankatu 3 A 8
2h+k+s
, Kerrostalo
50.5 m2
Kerros 2/3
Kangastuvankatu 3 A 3
2h+k+s
, Kerrostalo
50.5 m2
1/3
Kangastuvankatu 3 A 3
2h+k+s
, Kerrostalo
50.5 m2
Kerros 1/3
Kangastuvankatu 3 A 7
2h+k+s
, Kerrostalo
51 m2
2/3
Kangastuvankatu 3 A 7
2h+k+s
, Kerrostalo
51 m2
Kerros 2/3
Kangastuvankatu 3 A 13
2h+k+s
, Kerrostalo
51 m2
3/3
Kangastuvankatu 3 A 13
2h+k+s
, Kerrostalo
51 m2
Kerros 3/3
Kangastuvankatu 3 A 5
2h+k+s
, Kerrostalo
60 m2
1/3
Kangastuvankatu 3 A 5
2h+k+s
, Kerrostalo
60 m2
Kerros 1/3
Kangastuvankatu 3 A 10
2h+k+s
, Kerrostalo
60 m2
2/3
Kangastuvankatu 3 A 10
2h+k+s
, Kerrostalo
60 m2
Kerros 2/3
Kangastuvankatu 3 A 16
2h+k+s
, Kerrostalo
60 m2
3/3
Kangastuvankatu 3 A 16
2h+k+s
, Kerrostalo
60 m2
Kerros 3/3
Kangastuvankatu 3 A 9
2h+kk+s
, Kerrostalo
50 m2
2/3
Kangastuvankatu 3 A 9
2h+kk+s
, Kerrostalo
50 m2
Kerros 2/3
Kangastuvankatu 3 A 4
2h+kk+s
, Kerrostalo
50 m2
1/3
Kangastuvankatu 3 A 4
2h+kk+s
, Kerrostalo
50 m2
Kerros 1/3
Kangastuvankatu 3 A 15
2h+kk+s
, Kerrostalo
50 m2
3/3
Kangastuvankatu 3 A 15
2h+kk+s
, Kerrostalo
50 m2
Kerros 3/3
Kangastuvankatu 3 A 11
3h+k+s
, Kerrostalo
74 m2
2/3
Kangastuvankatu 3 A 11
3h+k+s
, Kerrostalo
74 m2
Kerros 2/3
Kangastuvankatu 3 A 17
3h+k+s
, Kerrostalo
74 m2
3/3
Kangastuvankatu 3 A 17
3h+k+s
, Kerrostalo
74 m2
Kerros 3/3
Kangastuvankatu 3 A 6
3h+k+s
, Kerrostalo
74 m2
2/3
Kangastuvankatu 3 A 6
3h+k+s
, Kerrostalo
74 m2
Kerros 2/3
Kangastuvankatu 3 A 12
3h+k+s
, Kerrostalo
74 m2
3/3
Kangastuvankatu 3 A 12
3h+k+s
, Kerrostalo
74 m2
Kerros 3/3
Kangastuvankatu 3 A 1
3h+k+s
, Kerrostalo
74 m2
1/3
Kangastuvankatu 3 A 1
3h+k+s
, Kerrostalo
74 m2
Kerros 1/3