Kohteen esittely
Kimpisen kaupunginosassa Myllysaaren uimalan välittömässä läheisyydessä ja keskussairaalan kupeessa rauhallinen nelikerroksinen hissitalo. Kaikissa asunnoissa parveke ja sauna, jokaisella löytyy myös pistokkeellinen autopaikka. Asukkaiden käytössä kuntosali sekä pihagrilli. Kohteessa käytetään hiilineutraalia kaukolämpöä.
Keskustaan, jossa myös koulut ja päiväkodit sekä ostoskeskukset ruokakauppoineen sijaitsevat, matkaa vajaat parisen kilometriä. Lappeenrannan upea satama löytyy reilun kilometrin kävelymatkan takaa, Kimpisen urheilukeskus taas parin sadan metrin päästä pururatoineen.
Miksi Asuntosäätiö?
Me uskomme, että onnellinen koti ja laadukas asuminen kuuluvat kaikille. Emme tavoittele voittoa, vaan käytämme kaikki vastikkeista ja vuokrista saadut tulot toimintamme kehittämiseen. Jo yli 33 000 suomalaista on valinnut Asuntosäätiön tarjoaman kodin. Tiesithän, että myös lemmikit ovat tervetulleita kaikkiin koteihimme!
Rakennuksen tiedot
- Asumismuoto Asokoti
- Keskimääräinen asumisoikeusmaksu / jm² 333,02€
- Hissit 1
- Talosauna Ei
- Asuntoja 21
- Asuinrakennuksia 1
- Käyttövastike / kk / jm² 12,72€
- Valmistumisvuosi 1997
- Porrashuoneet 1
- Energialuokka E
- Lämmitysmuoto Kauko
- Autopaikat 21
- Askarteluhuone 1
- Laajakaista Elisa
- Antennijärjestelmä Kaapeli
- KaapeliTV Elisa
- Kattomateriaali Pelti
- Runkomateriaali Betoni
- Lemmikit Sallittu
Huoneistot ja pohjakuvat: Ainonkatu 32, Kerrostalo, Piharakennus
Lisää hakemukselle kaikki haluamasi asuntotyypit. Mahdollisuutesi asunnon saamiseksi paranevat, kun voimme tarjota sinulle kaikkia valitsemasi asuntotyypin asuntoja, jotka mahdollisesti vapautuvat myöhemmin tästä kohteesta. Olet automaattisesti näiden asuntotyyppien hakuprosessissa.
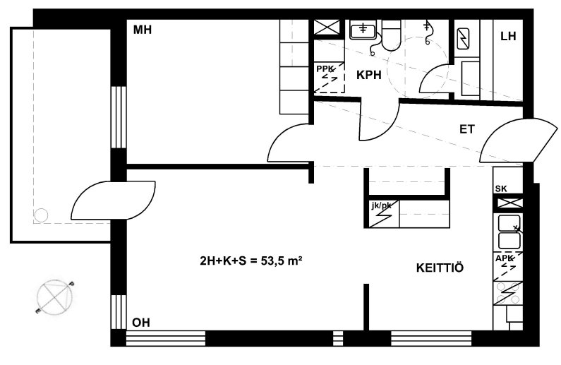
Ainonkatu 32 A 9
2h+k+s
, Kerrostalo
53.5 m2
2/4
Ainonkatu 32 A 9
2h+k+s
, Kerrostalo
53.5 m2
Kerros 2/4
Ainonkatu 32 A 21
2h+k+s
, Kerrostalo
53.5 m2
4/4
Ainonkatu 32 A 21
2h+k+s
, Kerrostalo
53.5 m2
Kerros 4/4
Ainonkatu 32 A 4
2h+k+s
, Kerrostalo
53.5 m2
1/4
Ainonkatu 32 A 4
2h+k+s
, Kerrostalo
53.5 m2
Kerros 1/4
Ainonkatu 32 A 12
2h+kk+s
, Kerrostalo
43 m2
3/4
Ainonkatu 32 A 12
2h+kk+s
, Kerrostalo
43 m2
Kerros 3/4
Ainonkatu 32 A 18
2h+kk+s
, Kerrostalo
43 m2
4/4
Ainonkatu 32 A 18
2h+kk+s
, Kerrostalo
43 m2
Kerros 4/4
Ainonkatu 32 A 19
2h+kk+s
, Kerrostalo
43 m2
4/4
Ainonkatu 32 A 19
2h+kk+s
, Kerrostalo
43 m2
Kerros 4/4
Ainonkatu 32 A 13
2h+kk+s
, Kerrostalo
43 m2
3/4
Ainonkatu 32 A 13
2h+kk+s
, Kerrostalo
43 m2
Kerros 3/4
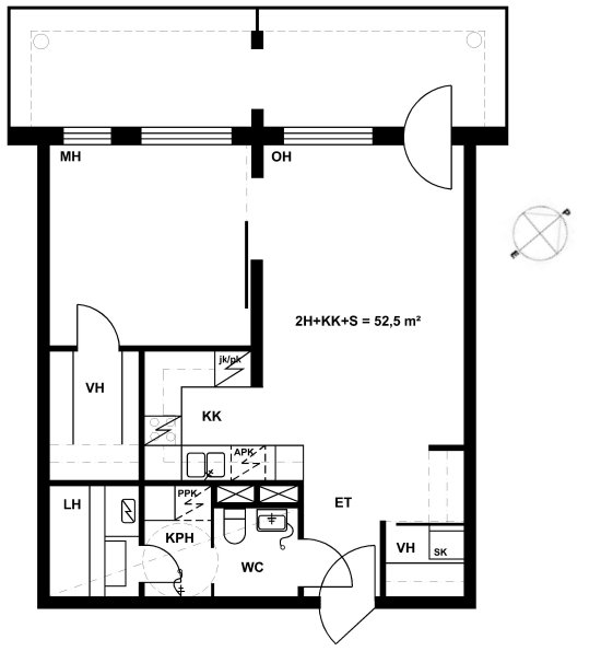
Ainonkatu 32 A 7
2h+kk+s
, Kerrostalo
52.5 m2
2/4
Ainonkatu 32 A 7
2h+kk+s
, Kerrostalo
52.5 m2
Kerros 2/4
Ainonkatu 32 A 2
2h+kk+s
, Kerrostalo
52.5 m2
1/4
Ainonkatu 32 A 2
2h+kk+s
, Kerrostalo
52.5 m2
Kerros 1/4
Ainonkatu 32 A 17
3h+k+s
, Kerrostalo
67.5 m2
4/4
Ainonkatu 32 A 17
3h+k+s
, Kerrostalo
67.5 m2
Kerros 4/4
Ainonkatu 32 A 20
3h+k+s
, Kerrostalo
67.5 m2
4/4
Ainonkatu 32 A 20
3h+k+s
, Kerrostalo
67.5 m2
Kerros 4/4
Ainonkatu 32 A 11
3h+k+s
, Kerrostalo
67.5 m2
3/4
Ainonkatu 32 A 11
3h+k+s
, Kerrostalo
67.5 m2
Kerros 3/4
Ainonkatu 32 A 14
3h+k+s
, Kerrostalo
67.5 m2
3/4
Ainonkatu 32 A 14
3h+k+s
, Kerrostalo
67.5 m2
Kerros 3/4
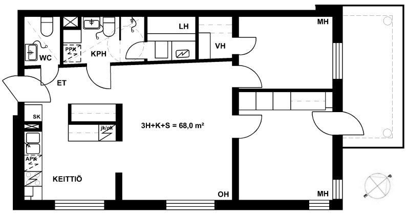
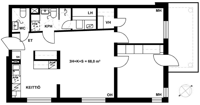
Ainonkatu 32 A 16
3h+k+s
, Kerrostalo
68 m2
3/4
Ainonkatu 32 A 16
3h+k+s
, Kerrostalo
68 m2
Kerros 3/4
Ainonkatu 32 A 10
3h+k+s
, Kerrostalo
68 m2
2/4
Ainonkatu 32 A 10
3h+k+s
, Kerrostalo
68 m2
Kerros 2/4
Ainonkatu 32 A 5
3h+k+s
, Kerrostalo
68 m2
1/4
Ainonkatu 32 A 5
3h+k+s
, Kerrostalo
68 m2
Kerros 1/4
Ainonkatu 32 A 8
4h+k+s
, Kerrostalo
84 m2
2/4
Ainonkatu 32 A 8
4h+k+s
, Kerrostalo
84 m2
Kerros 2/4
Ainonkatu 32 A 1
4h+k+s
, Kerrostalo
84 m2
1/4
Ainonkatu 32 A 1
4h+k+s
, Kerrostalo
84 m2
Kerros 1/4
Ainonkatu 32 A 3
4h+k+s
, Kerrostalo
84 m2
1/4
Ainonkatu 32 A 3
4h+k+s
, Kerrostalo
84 m2
Kerros 1/4
Ainonkatu 32 A 6
4h+k+s
, Kerrostalo
84 m2
2/4
Ainonkatu 32 A 6
4h+k+s
, Kerrostalo
84 m2
Kerros 2/4
