Kohteen esittely
Pikisaaressa vain muutaman kilometrin päässä keskustan palveluista kuusikerroksinen hissitalo. Kaikissa asunnoissa omat saunat ja parvekkeet, joista osassa myös Saimaa-näkymät. Kerhotila muutettu kuntosaliksi. Kohteessa käytetään hiilineutraalia kaukolämpöä.
Uimaankin pääset lähes omalta pihalta, samoin kuin linja-autoon. Ruokaostokset hoituvat kätevästi S-Market Pallossa, jonne matkaa muutamia satoja metrejä. Pallon päiväkoti ja Lönnrotin koulu lukioineen lähimpänä.
Miksi Asuntosäätiö?
Me uskomme, että onnellinen koti ja laadukas asuminen kuuluvat kaikille. Emme tavoittele voittoa, vaan käytämme kaikki vastikkeista ja vuokrista saadut tulot toimintamme kehittämiseen. Jo yli 33 000 suomalaista on valinnut Asuntosäätiön tarjoaman kodin. Tiesithän, että myös lemmikit ovat tervetulleita kaikkiin koteihimme!
Rakennuksen tiedot
- Asumismuoto Asokoti
- Keskimääräinen asumisoikeusmaksu / jm² 339,78€
- Hissit 1
- Talosauna Ei
- Kuivaushuone Kyllä
- Asuntoja 23
- Asuinrakennuksia 1
- Käyttövastike / kk / jm² 11,85€
- Valmistumisvuosi 1999
- Porrashuoneet 1
- Energialuokka F
- Lämmitysmuoto Kauko
- Autopaikat 25
- Askarteluhuone 1
- Laajakaista Elisa
- Antennijärjestelmä Kaapeli
- KaapeliTV Elisa
- Kattomateriaali Pelti
- Runkomateriaali Betoni
- Lemmikit Sallittu
Huoneistot ja pohjakuvat: Katajasaarenkatu 2, Kerrostalo, Piharakennus
Lisää hakemukselle kaikki haluamasi asuntotyypit. Mahdollisuutesi asunnon saamiseksi paranevat, kun voimme tarjota sinulle kaikkia valitsemasi asuntotyypin asuntoja, jotka mahdollisesti vapautuvat myöhemmin tästä kohteesta. Olet automaattisesti näiden asuntotyyppien hakuprosessissa.
Katajasaarenkatu 2 A 16
1h+kk+s
, Kerrostalo
39.5 m2
4/6
Katajasaarenkatu 2 A 16
1h+kk+s
, Kerrostalo
39.5 m2
Kerros 4/6
Katajasaarenkatu 2 A 6
1h+kk+s
, Kerrostalo
39.5 m2
2/6
Katajasaarenkatu 2 A 6
1h+kk+s
, Kerrostalo
39.5 m2
Kerros 2/6
Katajasaarenkatu 2 A 11
1h+kk+s
, Kerrostalo
39.5 m2
3/6
Katajasaarenkatu 2 A 11
1h+kk+s
, Kerrostalo
39.5 m2
Kerros 3/6
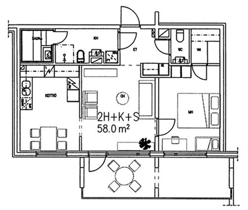
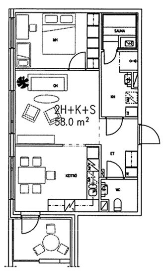
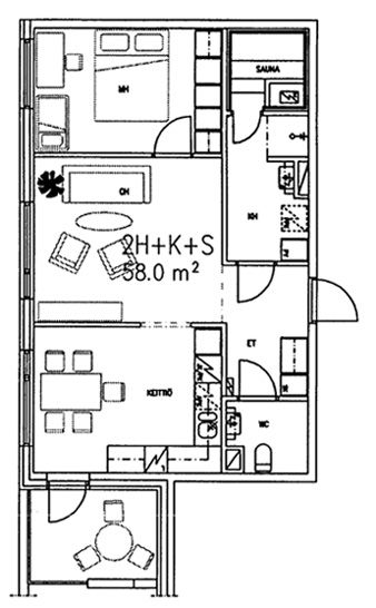
Katajasaarenkatu 2 A 10
2h+k+s
, Kerrostalo
58 m2
3/6
Katajasaarenkatu 2 A 10
2h+k+s
, Kerrostalo
58 m2
Kerros 3/6
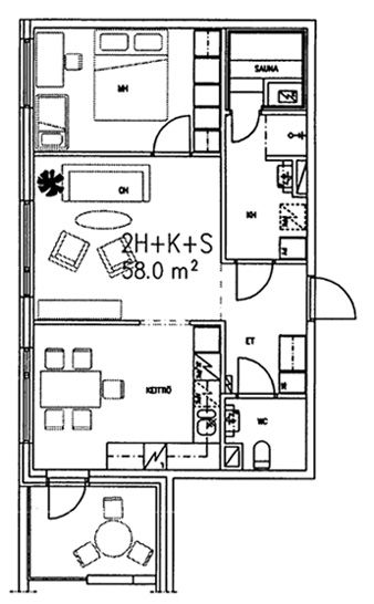
Katajasaarenkatu 2 A 15
2h+k+s
, Kerrostalo
58 m2
4/6
Katajasaarenkatu 2 A 15
2h+k+s
, Kerrostalo
58 m2
Kerros 4/6
Katajasaarenkatu 2 A 5
2h+k+s
, Kerrostalo
58 m2
2/6
Katajasaarenkatu 2 A 5
2h+k+s
, Kerrostalo
58 m2
Kerros 2/6
Katajasaarenkatu 2 A 1
2h+k+s
, Kerrostalo
58 m2
Kerros 1/6
Katajasaarenkatu 2 A 2
2h+k+s
, Kerrostalo
58 m2
1/6
Katajasaarenkatu 2 A 2
2h+k+s
, Kerrostalo
58 m2
Kerros 1/6
Katajasaarenkatu 2 A 3
2h+k+s
, Kerrostalo
60.5 m2
2/6
Katajasaarenkatu 2 A 3
2h+k+s
, Kerrostalo
60.5 m2
Kerros 2/6
Katajasaarenkatu 2 A 13
2h+k+s
, Kerrostalo
60.5 m2
4/6
Katajasaarenkatu 2 A 13
2h+k+s
, Kerrostalo
60.5 m2
Kerros 4/6
Katajasaarenkatu 2 A 8
2h+k+s
, Kerrostalo
60.5 m2
3/6
Katajasaarenkatu 2 A 8
2h+k+s
, Kerrostalo
60.5 m2
Kerros 3/6
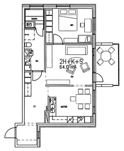
Katajasaarenkatu 2 A 18
2h+k+s
, Kerrostalo
64 m2
Kerros 5/6
Katajasaarenkatu 2 A 21
2h+k+s
, Kerrostalo
64 m2
6/6
Katajasaarenkatu 2 A 21
2h+k+s
, Kerrostalo
64 m2
Kerros 6/6
Katajasaarenkatu 2 A 20
2h+k+s
, Kerrostalo
65 m2
Kerros 5/6
Katajasaarenkatu 2 A 23
2h+k+s
, Kerrostalo
65 m2
6/6
Katajasaarenkatu 2 A 23
2h+k+s
, Kerrostalo
65 m2
Kerros 6/6
Katajasaarenkatu 2 A 19
3h+k+s
, Kerrostalo
85 m2
5/6
Katajasaarenkatu 2 A 19
3h+k+s
, Kerrostalo
85 m2
Kerros 5/6
Katajasaarenkatu 2 A 9
3h+k+s
, Kerrostalo
85 m2
3/6
Katajasaarenkatu 2 A 9
3h+k+s
, Kerrostalo
85 m2
Kerros 3/6
Katajasaarenkatu 2 A 14
3h+k+s
, Kerrostalo
85 m2
4/6
Katajasaarenkatu 2 A 14
3h+k+s
, Kerrostalo
85 m2
Kerros 4/6
Katajasaarenkatu 2 A 22
3h+k+s
, Kerrostalo
85 m2
6/6
Katajasaarenkatu 2 A 22
3h+k+s
, Kerrostalo
85 m2
Kerros 6/6
Katajasaarenkatu 2 A 4
3h+k+s
, Kerrostalo
85 m2
2/6
Katajasaarenkatu 2 A 4
3h+k+s
, Kerrostalo
85 m2
Kerros 2/6
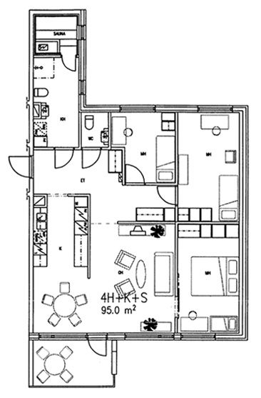
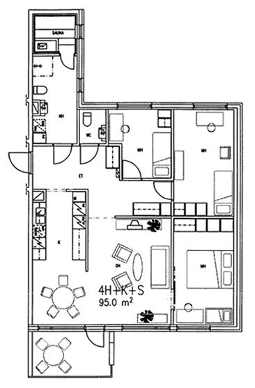
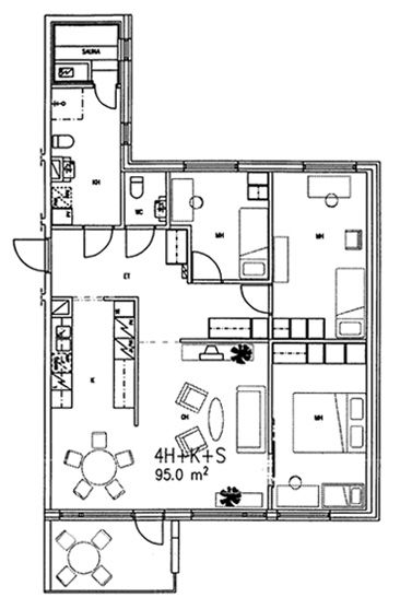
Katajasaarenkatu 2 A 12
4h+k+s
, Kerrostalo
95 m2
3/6
Katajasaarenkatu 2 A 12
4h+k+s
, Kerrostalo
95 m2
Kerros 3/6
Katajasaarenkatu 2 A 7
4h+k+s
, Kerrostalo
95 m2
2/6
Katajasaarenkatu 2 A 7
4h+k+s
, Kerrostalo
95 m2
Kerros 2/6
Katajasaarenkatu 2 A 17
4h+k+s
, Kerrostalo
95 m2
4/6
Katajasaarenkatu 2 A 17
4h+k+s
, Kerrostalo
95 m2
Kerros 4/6


