Kohteen esittely
Pikisaaressa vain muutaman kilometrin päässä keskustan palveluista viisikerroksinen hissitalo. Kaikissa asunnoissa oma sauna ja parveke, joista osassa myös Saimaa-näkymät. Grillikatos asukkaiden käytössä samoin kuin punttisali. Kohteessa käytetään hiilineutraalia kaukolämpöä.
Upeat ulkoilumaastot lähellä. Kaikki palvelut keskustassa - Lönnrotin koulu, Pallon päiväkoti, kauppakeskukset Armada, Opri, Galleria ym, lähipalveluista S-Market Pallo vain muutaman sadan metrin päässä.
Miksi Asuntosäätiö?
Me uskomme, että onnellinen koti ja laadukas asuminen kuuluvat kaikille. Emme tavoittele voittoa, vaan käytämme kaikki vastikkeista ja vuokrista saadut tulot toimintamme kehittämiseen. Jo yli 33 000 suomalaista on valinnut Asuntosäätiön tarjoaman kodin. Tiesithän, että myös lemmikit ovat tervetulleita kaikkiin koteihimme!
Rakennuksen tiedot
- Asumismuoto Asokoti
- Keskimääräinen asumisoikeusmaksu / jm² 342,62€
- Hissit 1
- Talosauna Ei
- Pyykkitupa Kyllä
- Kuivaushuone Kyllä
- Asuntoja 22
- Asuinrakennuksia 1
- Käyttövastike / kk / jm² 12,1€
- Valmistumisvuosi 1998
- Porrashuoneet 1
- Energialuokka D
- Lämmitysmuoto Kauko
- Autopaikat 22
- Kerhohuone 1
- Askarteluhuone 1
- Laajakaista Elisa
- Antennijärjestelmä Kaapeli
- KaapeliTV Elisa
- Kattomateriaali Pelti
- Runkomateriaali Betoni
- Lemmikit Sallittu
Huoneistot ja pohjakuvat: Pikisaarenkatu 38, Piharakennus, Kerrostalo
Lisää hakemukselle kaikki haluamasi asuntotyypit. Mahdollisuutesi asunnon saamiseksi paranevat, kun voimme tarjota sinulle kaikkia valitsemasi asuntotyypin asuntoja, jotka mahdollisesti vapautuvat myöhemmin tästä kohteesta. Olet automaattisesti näiden asuntotyyppien hakuprosessissa.
Pikisaarenkatu 38 A 6
1h+kk+s
, Kerrostalo
38 m2
2/4
Pikisaarenkatu 38 A 6
1h+kk+s
, Kerrostalo
38 m2
Kerros 2/4
Pikisaarenkatu 38 A 11
1h+kk+s
, Kerrostalo
38 m2
3/4
Pikisaarenkatu 38 A 11
1h+kk+s
, Kerrostalo
38 m2
Kerros 3/4
Pikisaarenkatu 38 A 16
1h+kk+s
, Kerrostalo
38 m2
4/4
Pikisaarenkatu 38 A 16
1h+kk+s
, Kerrostalo
38 m2
Kerros 4/4
Pikisaarenkatu 38 A 20
1h+kk+s
, Kerrostalo
38 m2
5/4
Pikisaarenkatu 38 A 20
1h+kk+s
, Kerrostalo
38 m2
Kerros 5/4
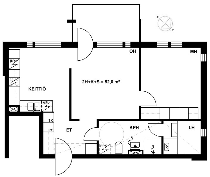
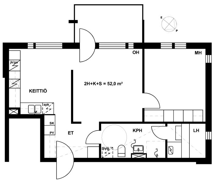
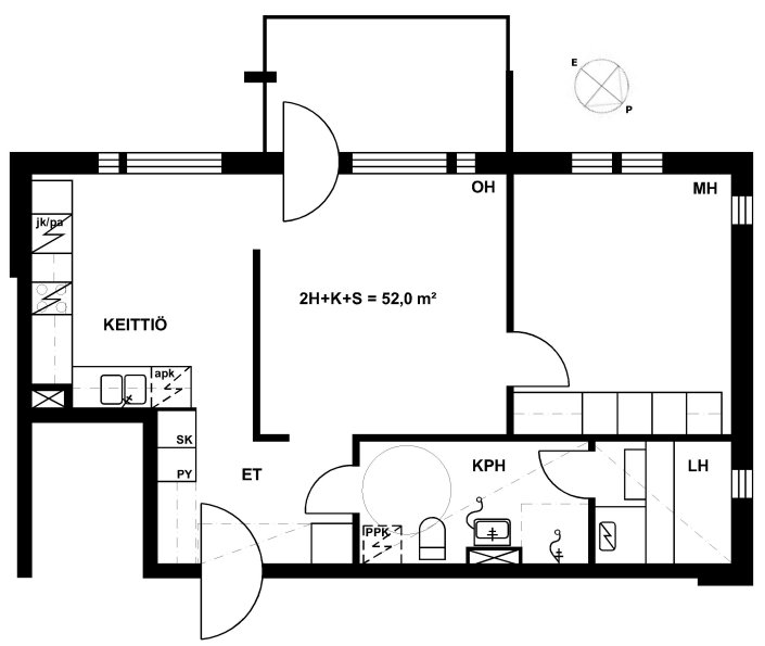
Pikisaarenkatu 38 A 1
2h+k+s
, Kerrostalo
52 m2
1/4
Pikisaarenkatu 38 A 1
2h+k+s
, Kerrostalo
52 m2
Kerros 1/4
Pikisaarenkatu 38 A 4
2h+k+s
, Kerrostalo
52 m2
2/4
Pikisaarenkatu 38 A 4
2h+k+s
, Kerrostalo
52 m2
Kerros 2/4
Pikisaarenkatu 38 A 9
2h+k+s
, Kerrostalo
52 m2
3/4
Pikisaarenkatu 38 A 9
2h+k+s
, Kerrostalo
52 m2
Kerros 3/4
Pikisaarenkatu 38 A 14
2h+k+s
, Kerrostalo
52 m2
4/4
Pikisaarenkatu 38 A 14
2h+k+s
, Kerrostalo
52 m2
Kerros 4/4
Pikisaarenkatu 38 A 19
2h+kk+s
, Kerrostalo
47 m2
5/4
Pikisaarenkatu 38 A 19
2h+kk+s
, Kerrostalo
47 m2
Kerros 5/4
Pikisaarenkatu 38 A 5
2h+kk+s
, Kerrostalo
47 m2
Kerros 2/4
Pikisaarenkatu 38 A 10
2h+kk+s
, Kerrostalo
47 m2
Kerros 3/4
Pikisaarenkatu 38 A 15
2h+kk+s
, Kerrostalo
47 m2
4/4
Pikisaarenkatu 38 A 15
2h+kk+s
, Kerrostalo
47 m2
Kerros 4/4
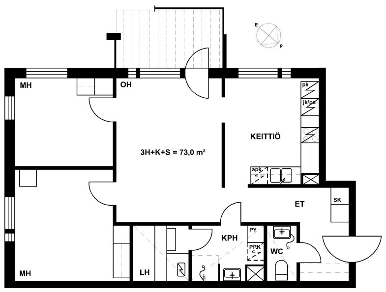
Pikisaarenkatu 38 A 21
3h+k+s
, Kerrostalo
73 m2
5/4
Pikisaarenkatu 38 A 21
3h+k+s
, Kerrostalo
73 m2
Kerros 5/4
Pikisaarenkatu 38 A 7
3h+k+s
, Kerrostalo
73 m2
2/4
Pikisaarenkatu 38 A 7
3h+k+s
, Kerrostalo
73 m2
Kerros 2/4
Pikisaarenkatu 38 A 17
3h+k+s
, Kerrostalo
73 m2
4/4
Pikisaarenkatu 38 A 17
3h+k+s
, Kerrostalo
73 m2
Kerros 4/4
Pikisaarenkatu 38 A 2
3h+k+s
, Kerrostalo
73 m2
1/4
Pikisaarenkatu 38 A 2
3h+k+s
, Kerrostalo
73 m2
Kerros 1/4
Pikisaarenkatu 38 A 3
3h+k+s
, Kerrostalo
73 m2
1/4
Pikisaarenkatu 38 A 3
3h+k+s
, Kerrostalo
73 m2
Kerros 1/4
Pikisaarenkatu 38 A 12
3h+k+s
, Kerrostalo
73 m2
3/4
Pikisaarenkatu 38 A 12
3h+k+s
, Kerrostalo
73 m2
Kerros 3/4
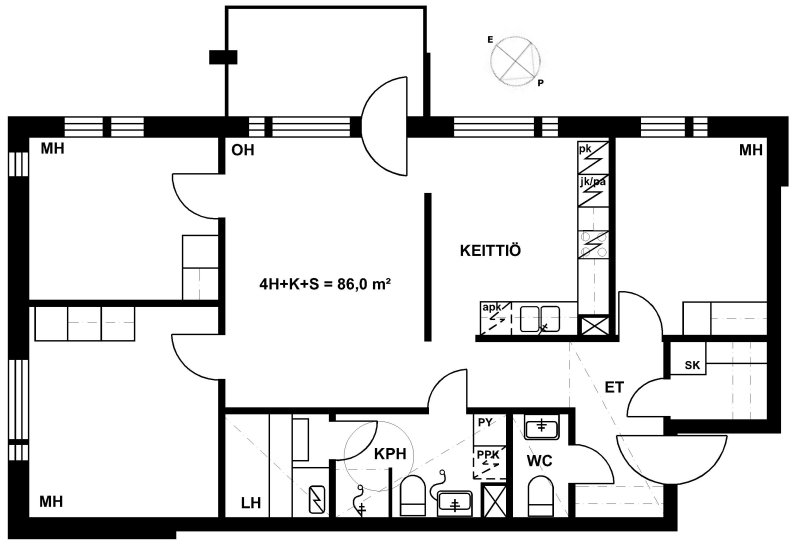
Pikisaarenkatu 38 A 22
4h+k+s
, Kerrostalo
86 m2
Kerros 5/4
Pikisaarenkatu 38 A 13
4h+k+s
, Kerrostalo
86 m2
3/4
Pikisaarenkatu 38 A 13
4h+k+s
, Kerrostalo
86 m2
Kerros 3/4
Pikisaarenkatu 38 A 18
4h+k+s
, Kerrostalo
86 m2
4/4
Pikisaarenkatu 38 A 18
4h+k+s
, Kerrostalo
86 m2
Kerros 4/4
Pikisaarenkatu 38 A 8
4h+k+s
, Kerrostalo
86 m2
2/4
Pikisaarenkatu 38 A 8
4h+k+s
, Kerrostalo
86 m2
Kerros 2/4

