Kohteen esittely
Virkkalasta, tältä lapsiystävälliseltä alueelta löydät luonnonrauhaa. Täältä löydät kivoja rivitalokoteja pientaloalueelta.
Täällä voit nauttia Lohjanjärven läheisyydestä ja ulkoilumahdollisuuksista. Virkkalan taajamamaisessa keskustassa on runsaasti liikeyrityksiä sekä oma kirjasto, apteekki, terveysasema ja seurakuntatalo.
Miksi Asuntosäätiö?
Me uskomme, että onnellinen koti ja laadukas asuminen kuuluvat kaikille. Emme tavoittele voittoa, vaan käytämme kaikki vastikkeista ja vuokrista saadut tulot toimintamme kehittämiseen. Jo yli 33 000 suomalaista on valinnut Asuntosäätiön tarjoaman kodin. Tiesithän, että myös lemmikit ovat tervetulleita kaikkiin koteihimme!
Rakennuksen tiedot
- Asumismuoto Asokoti
- Keskimääräinen asumisoikeusmaksu / jm² 154,48€
- Hissit Ei
- Talosauna Ei
- Kuivaushuone Kyllä
- Asuntoja 19
- Asuinrakennuksia 4
- Käyttövastike / kk / jm² 9,9€
- Valmistumisvuosi 1993
- Energialuokka C
- Lämmitysmuoto Maalämpö
- Autopaikat 19
- Laajakaista DNA Welho
- Antennijärjestelmä Kaapeli
- KaapeliTV DNA
- Kattomateriaali Tiili
- Runkomateriaali Betoni
- Lemmikit Sallittu
Huoneistot ja pohjakuvat: Kaskitie 14, Rivitalo, Piharakennus
Lisää hakemukselle kaikki haluamasi asuntotyypit. Mahdollisuutesi asunnon saamiseksi paranevat, kun voimme tarjota sinulle kaikkia valitsemasi asuntotyypin asuntoja, jotka mahdollisesti vapautuvat myöhemmin tästä kohteesta. Olet automaattisesti näiden asuntotyyppien hakuprosessissa.
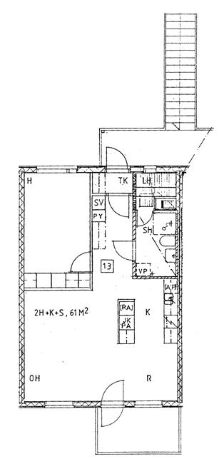
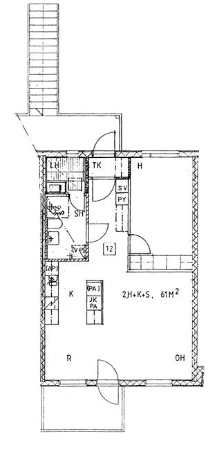
Kaskitie 14 C 13
2h+k+s
, Rivitalo
61 m2
2/2
Kaskitie 14 C 13
2h+k+s
, Rivitalo
61 m2
Kerros 2/2
Kaskitie 14 C 12
2h+k+s
, Rivitalo
61 m2
2/2
Kaskitie 14 C 12
2h+k+s
, Rivitalo
61 m2
Kerros 2/2
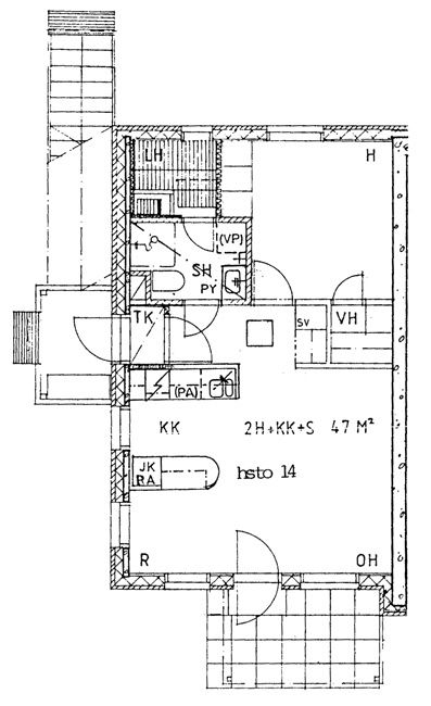
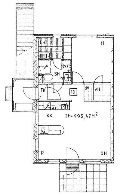
Kaskitie 14 D 18
2h+kk+s
, Rivitalo
47 m2
1/2
Kaskitie 14 D 18
2h+kk+s
, Rivitalo
47 m2
Kerros 1/2
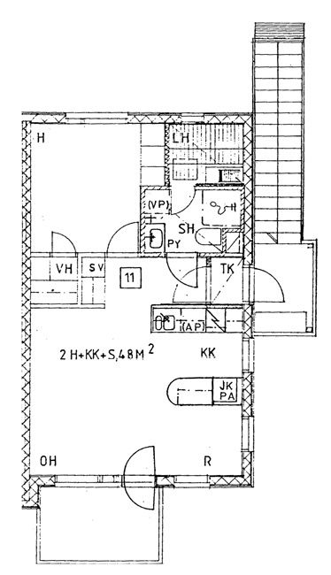
Kaskitie 14 C 14
2h+kk+s
, Rivitalo
47 m2
1/2
Kaskitie 14 C 14
2h+kk+s
, Rivitalo
47 m2
Kerros 1/2
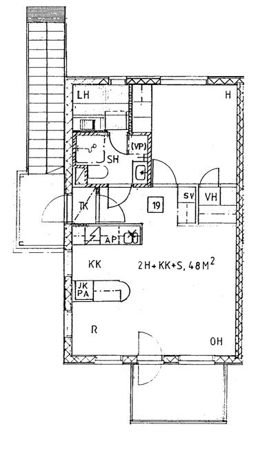
Kaskitie 14 D 19
2h+kk+s
, Rivitalo
48 m2
2/2
Kaskitie 14 D 19
2h+kk+s
, Rivitalo
48 m2
Kerros 2/2
Kaskitie 14 C 15
2h+kk+s
, Rivitalo
48 m2
2/2
Kaskitie 14 C 15
2h+kk+s
, Rivitalo
48 m2
Kerros 2/2
Kaskitie 14 C 11
2h+kk+s
, Rivitalo
48 m2
2/2
Kaskitie 14 C 11
2h+kk+s
, Rivitalo
48 m2
Kerros 2/2
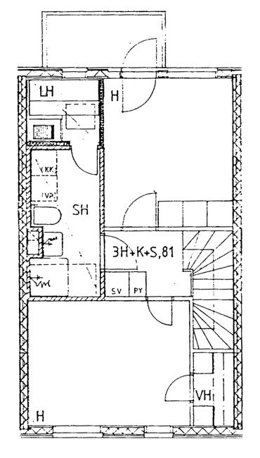
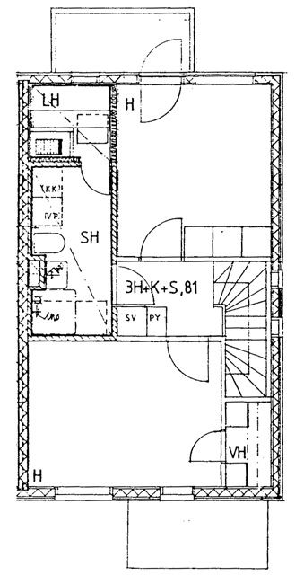
Kaskitie 14 A 5
3h+k+s
, Rivitalo
81 m2
1-2/2
Kaskitie 14 A 5
3h+k+s
, Rivitalo
81 m2
Kerros 1-2/2
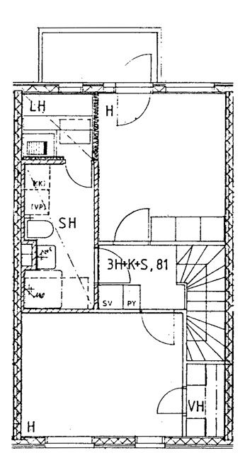
Kaskitie 14 A 2
3h+k+s
, Rivitalo
81 m2
1-2/2
Kaskitie 14 A 2
3h+k+s
, Rivitalo
81 m2
Kerros 1-2/2
Kaskitie 14 A 3
3h+k+s
, Rivitalo
81 m2
1-2/2
Kaskitie 14 A 3
3h+k+s
, Rivitalo
81 m2
Kerros 1-2/2
Kaskitie 14 A 1
3h+k+s
, Rivitalo
81 m2
1-2/2
Kaskitie 14 A 1
3h+k+s
, Rivitalo
81 m2
Kerros 1-2/2
Kaskitie 14 A 4
3h+k+s
, Rivitalo
81 m2
1-2/2
Kaskitie 14 A 4
3h+k+s
, Rivitalo
81 m2
Kerros 1-2/2
Kaskitie 14 B 7
3h+k+s
, Rivitalo
81 m2
1-2/2
Kaskitie 14 B 7
3h+k+s
, Rivitalo
81 m2
Kerros 1-2/2
Kaskitie 14 B 8
3h+k+s
, Rivitalo
81 m2
1-2/2
Kaskitie 14 B 8
3h+k+s
, Rivitalo
81 m2
Kerros 1-2/2
Kaskitie 14 B 10
3h+k+s
, Rivitalo
81 m2
1-2/2
Kaskitie 14 B 10
3h+k+s
, Rivitalo
81 m2
Kerros 1-2/2
Kaskitie 14 B 6
3h+k+s
, Rivitalo
81 m2
1-2/2
Kaskitie 14 B 6
3h+k+s
, Rivitalo
81 m2
Kerros 1-2/2
Kaskitie 14 B 9
3h+k+s
, Rivitalo
81 m2
1-2/2
Kaskitie 14 B 9
3h+k+s
, Rivitalo
81 m2
Kerros 1-2/2
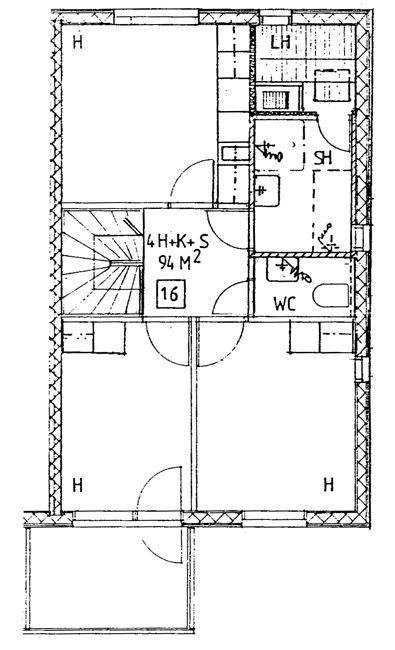
Kaskitie 14 D 16
4h+k+s
, Rivitalo
94 m2
1-2/2
Kaskitie 14 D 16
4h+k+s
, Rivitalo
94 m2
Kerros 1-2/2
Kaskitie 14 D 17
5h+k+s
, Rivitalo
112 m2
1-2/2
Kaskitie 14 D 17
5h+k+s
, Rivitalo
112 m2
Kerros 1-2/2