Kohteen esittely
Miksi Asuntosäätiö?
Me uskomme, että onnellinen koti ja laadukas asuminen kuuluvat kaikille. Emme tavoittele voittoa, vaan käytämme kaikki vastikkeista ja vuokrista saadut tulot toimintamme kehittämiseen. Jo yli 33 000 suomalaista on valinnut Asuntosäätiön tarjoaman kodin. Tiesithän, että myös lemmikit ovat tervetulleita kaikkiin koteihimme!
Rakennuksen tiedot
- Asumismuoto Asokoti
- Keskimääräinen asumisoikeusmaksu / jm² 186,16€
- Hissit Ei
- Talosauna Ei
- Asuntoja 4
- Asuinrakennuksia 1
- Käyttövastike / kk / jm² 11,36€
- Valmistumisvuosi 1993
- Peruskorjattu 2022
- Energialuokka E
- Lämmitysmuoto Sähkö
- Autopaikat 4
- Laajakaista Elisa
- Antennijärjestelmä Kaapeli
- KaapeliTV Elisa
- Kattomateriaali Pelti
- Runkomateriaali Puu
- Lemmikit Sallittu
Huoneistot ja pohjakuvat: Säätiöntie 1, Piharakennus, Rivitalo
Lisää hakemukselle kaikki haluamasi asuntotyypit. Mahdollisuutesi asunnon saamiseksi paranevat, kun voimme tarjota sinulle kaikkia valitsemasi asuntotyypin asuntoja, jotka mahdollisesti vapautuvat myöhemmin tästä kohteesta. Olet automaattisesti näiden asuntotyyppien hakuprosessissa.
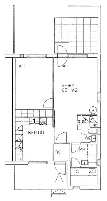
Säätiöntie 1 A 1
2h+k+s
, Rivitalo
63 m2
1/1
Säätiöntie 1 A 1
2h+k+s
, Rivitalo
63 m2
Kerros 1/1
Säätiöntie 1 C 3
4h+k+s
, Rivitalo
95 m2
1/1
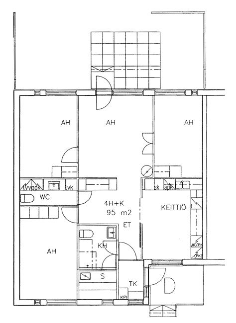
Säätiöntie 1 C 3
4h+k+s
, Rivitalo
95 m2
Kerros 1/1
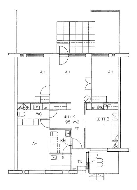
Säätiöntie 1 B 2
4h+k+s
, Rivitalo
95 m2
1/1
Säätiöntie 1 B 2
4h+k+s
, Rivitalo
95 m2
Kerros 1/1
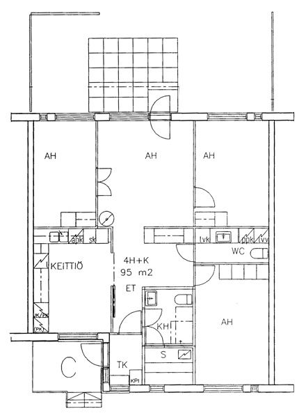
Säätiöntie 1 D 4
4h+k+s
, Rivitalo
95 m2
1/1
Säätiöntie 1 D 4
4h+k+s
, Rivitalo
95 m2
Kerros 1/1