Kohteen esittely
Kohteeseen kuuluu kaksi 4-kerroksista, hissillistä kerrostaloa. Iso, vehreä sisäpiha, jossa lasten leikkipaikka ja penkkejä. Toiselta puolen taloa metsäiset näkymät. Osa autopaikoista katoksellisia. Kohteella peritään huoneistokohtainen sähkömaksuennakko, joka tasataan todellisen kulutuksen mukaan.
Lähellä kattavat palvelut: kirjasto, ostoskeskus, iso marketti, apteekki, koulu, päiväkoti ja terveysasema. Alueelta on myös hyvät bussiyhteydet.
Miksi Asuntosäätiö?
Me uskomme, että onnellinen koti ja laadukas asuminen kuuluvat kaikille. Emme tavoittele voittoa, vaan käytämme kaikki vastikkeista ja vuokrista saadut tulot toimintamme kehittämiseen. Jo yli 33 000 suomalaista on valinnut Asuntosäätiön tarjoaman kodin. Tiesithän, että myös lemmikit ovat tervetulleita kaikkiin koteihimme!
Rakennuksen tiedot
- Asumismuoto Asokoti
- Keskimääräinen asumisoikeusmaksu / jm² 336,84€
- Hissit 3
- Talosauna Ei
- Pyykkitupa Kyllä
- Kuivaushuone Kyllä
- Asuntoja 46
- Asuinrakennuksia 2
- Käyttövastike / kk / jm² 11,6€
- Valmistumisvuosi 2001
- Porrashuoneet 3
- Energialuokka E
- Lämmitysmuoto Kauko
- Autopaikat 47
- Laajakaista DNA Welho
- Antennijärjestelmä Kaapeli
- KaapeliTV DNA
- Kattomateriaali Pelti
- Runkomateriaali Betoni
- Lemmikit Sallittu
Huoneistot ja pohjakuvat: Höyhenkuja 1, Kerrostalo, Piharakennus
Lisää hakemukselle kaikki haluamasi asuntotyypit. Mahdollisuutesi asunnon saamiseksi paranevat, kun voimme tarjota sinulle kaikkia valitsemasi asuntotyypin asuntoja, jotka mahdollisesti vapautuvat myöhemmin tästä kohteesta. Olet automaattisesti näiden asuntotyyppien hakuprosessissa.
Höyhenkuja 1 B 16
1h+tk+s
, Kerrostalo
36.5 m2
2/4
Höyhenkuja 1 B 16
1h+tk+s
, Kerrostalo
36.5 m2
Kerros 2/4
Höyhenkuja 1 B 20
1h+tk+s
, Kerrostalo
36.5 m2
3/4
Höyhenkuja 1 B 20
1h+tk+s
, Kerrostalo
36.5 m2
Kerros 3/4
Höyhenkuja 1 B 24
1h+tk+s
, Kerrostalo
36.5 m2
4/4
Höyhenkuja 1 B 24
1h+tk+s
, Kerrostalo
36.5 m2
Kerros 4/4
Höyhenkuja 1 C 43
2h+k+s
, Kerrostalo
52.5 m2
4/4
Höyhenkuja 1 C 43
2h+k+s
, Kerrostalo
52.5 m2
Kerros 4/4
Höyhenkuja 1 C 37
2h+k+s
, Kerrostalo
52.5 m2
3/4
Höyhenkuja 1 C 37
2h+k+s
, Kerrostalo
52.5 m2
Kerros 3/4
Höyhenkuja 1 C 31
2h+k+s
, Kerrostalo
52.5 m2
2/4
Höyhenkuja 1 C 31
2h+k+s
, Kerrostalo
52.5 m2
Kerros 2/4
Höyhenkuja 1 A 10
2h+kk+s
, Kerrostalo
43.5 m2
4/4
Höyhenkuja 1 A 10
2h+kk+s
, Kerrostalo
43.5 m2
Kerros 4/4
Höyhenkuja 1 A 7
2h+kk+s
, Kerrostalo
43.5 m2
/4
Höyhenkuja 1 A 7
2h+kk+s
, Kerrostalo
43.5 m2
Kerros /4
Höyhenkuja 1 B 15
2h+kk+s
, Kerrostalo
43.5 m2
2/4
Höyhenkuja 1 B 15
2h+kk+s
, Kerrostalo
43.5 m2
Kerros 2/4
Höyhenkuja 1 B 19
2h+kk+s
, Kerrostalo
43.5 m2
3/4
Höyhenkuja 1 B 19
2h+kk+s
, Kerrostalo
43.5 m2
Kerros 3/4
Höyhenkuja 1 B 23
2h+kk+s
, Kerrostalo
43.5 m2
4/4
Höyhenkuja 1 B 23
2h+kk+s
, Kerrostalo
43.5 m2
Kerros 4/4
Höyhenkuja 1 A 4
2h+kk+s
, Kerrostalo
43.5 m2
2/4
Höyhenkuja 1 A 4
2h+kk+s
, Kerrostalo
43.5 m2
Kerros 2/4
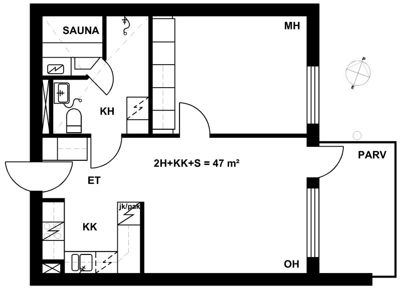
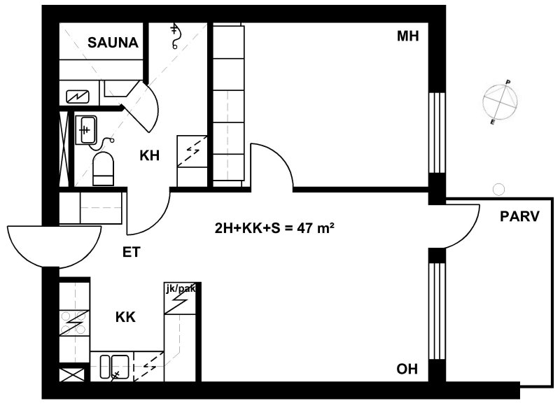
Höyhenkuja 1 C 27
2h+kk+s
, Kerrostalo
47 m2
1/4
Höyhenkuja 1 C 27
2h+kk+s
, Kerrostalo
47 m2
Kerros 1/4
Höyhenkuja 1 C 45
2h+kk+s
, Kerrostalo
47 m2
4/4
Höyhenkuja 1 C 45
2h+kk+s
, Kerrostalo
47 m2
Kerros 4/4
Höyhenkuja 1 C 38
2h+kk+s
, Kerrostalo
47 m2
3/4
Höyhenkuja 1 C 38
2h+kk+s
, Kerrostalo
47 m2
Kerros 3/4
Höyhenkuja 1 C 33
2h+kk+s
, Kerrostalo
47 m2
2/4
Höyhenkuja 1 C 33
2h+kk+s
, Kerrostalo
47 m2
Kerros 2/4
Höyhenkuja 1 C 44
2h+kk+s
, Kerrostalo
47 m2
4/4
Höyhenkuja 1 C 44
2h+kk+s
, Kerrostalo
47 m2
Kerros 4/4
Höyhenkuja 1 C 32
2h+kk+s
, Kerrostalo
47 m2
2/4
Höyhenkuja 1 C 32
2h+kk+s
, Kerrostalo
47 m2
Kerros 2/4
Höyhenkuja 1 C 39
2h+kk+s
, Kerrostalo
47 m2
3/4
Höyhenkuja 1 C 39
2h+kk+s
, Kerrostalo
47 m2
Kerros 3/4
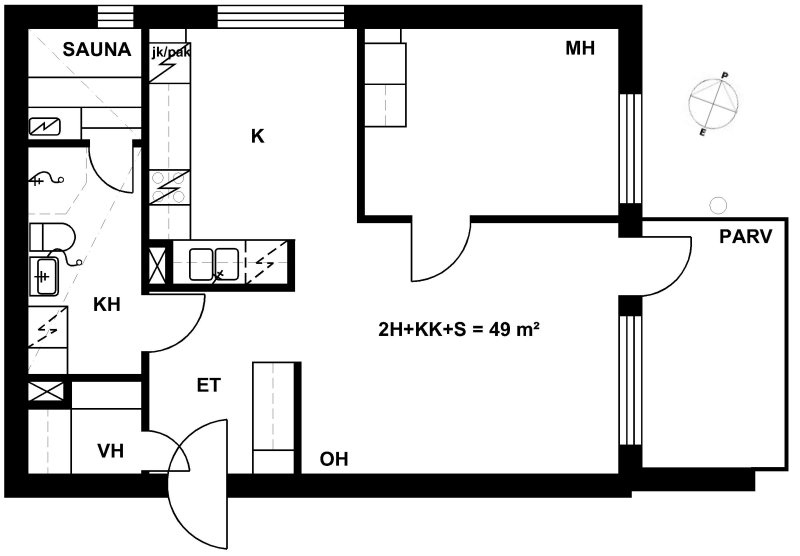
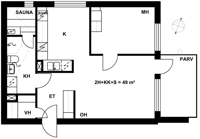
Höyhenkuja 1 C 42
2h+kk+s
, Kerrostalo
49 m2
4/4
Höyhenkuja 1 C 42
2h+kk+s
, Kerrostalo
49 m2
Kerros 4/4
Höyhenkuja 1 C 36
2h+kk+s
, Kerrostalo
49 m2
3/4
Höyhenkuja 1 C 36
2h+kk+s
, Kerrostalo
49 m2
Kerros 3/4
Höyhenkuja 1 C 30
2h+kk+s
, Kerrostalo
49 m2
2/4
Höyhenkuja 1 C 30
2h+kk+s
, Kerrostalo
49 m2
Kerros 2/4
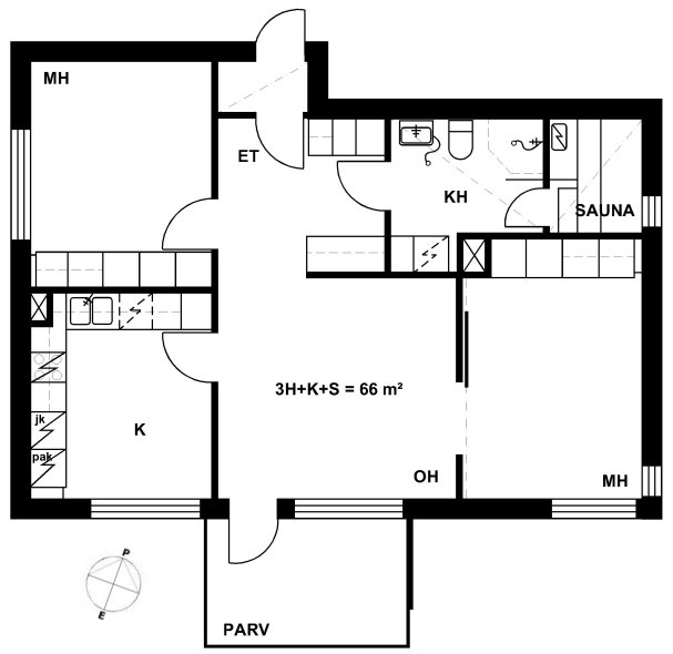
Höyhenkuja 1 C 34
3h+k+s
, Kerrostalo
66 m2
2/4
Höyhenkuja 1 C 34
3h+k+s
, Kerrostalo
66 m2
Kerros 2/4
Höyhenkuja 1 C 46
3h+k+s
, Kerrostalo
66 m2
4/4
Höyhenkuja 1 C 46
3h+k+s
, Kerrostalo
66 m2
Kerros 4/4
Höyhenkuja 1 C 40
3h+k+s
, Kerrostalo
66 m2
Kerros 3/4
Höyhenkuja 1 C 28
3h+k+s
, Kerrostalo
66 m2
1/4
Höyhenkuja 1 C 28
3h+k+s
, Kerrostalo
66 m2
Kerros 1/4
Höyhenkuja 1 A 2
3h+k+s
, Kerrostalo
75 m2
1/4
Höyhenkuja 1 A 2
3h+k+s
, Kerrostalo
75 m2
Kerros 1/4
Höyhenkuja 1 A 5
3h+k+s
, Kerrostalo
75 m2
/4
Höyhenkuja 1 A 5
3h+k+s
, Kerrostalo
75 m2
Kerros /4
Höyhenkuja 1 A 11
3h+k+s
, Kerrostalo
75 m2
4/4
Höyhenkuja 1 A 11
3h+k+s
, Kerrostalo
75 m2
Kerros 4/4
Höyhenkuja 1 A 8
3h+k+s
, Kerrostalo
75 m2
3/4
Höyhenkuja 1 A 8
3h+k+s
, Kerrostalo
75 m2
Kerros 3/4
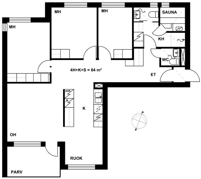
Höyhenkuja 1 B 14
4h+k+s
, Kerrostalo
84 m2
2/4
Höyhenkuja 1 B 14
4h+k+s
, Kerrostalo
84 m2
Kerros 2/4
Höyhenkuja 1 B 22
4h+k+s
, Kerrostalo
84 m2
4/4
Höyhenkuja 1 B 22
4h+k+s
, Kerrostalo
84 m2
Kerros 4/4
Höyhenkuja 1 B 17
4h+k+s
, Kerrostalo
84 m2
2/4
Höyhenkuja 1 B 17
4h+k+s
, Kerrostalo
84 m2
Kerros 2/4
Höyhenkuja 1 B 13
4h+k+s
, Kerrostalo
84 m2
1./4
Höyhenkuja 1 B 13
4h+k+s
, Kerrostalo
84 m2
Kerros 1./4
Höyhenkuja 1 B 18
4h+k+s
, Kerrostalo
84 m2
3/4
Höyhenkuja 1 B 18
4h+k+s
, Kerrostalo
84 m2
Kerros 3/4
Höyhenkuja 1 B 12
4h+k+s
, Kerrostalo
84 m2
1./4
Höyhenkuja 1 B 12
4h+k+s
, Kerrostalo
84 m2
Kerros 1./4
Höyhenkuja 1 B 25
4h+k+s
, Kerrostalo
84 m2
4/4
Höyhenkuja 1 B 25
4h+k+s
, Kerrostalo
84 m2
Kerros 4/4
Höyhenkuja 1 B 21
4h+k+s
, Kerrostalo
84 m2
3/4
Höyhenkuja 1 B 21
4h+k+s
, Kerrostalo
84 m2
Kerros 3/4
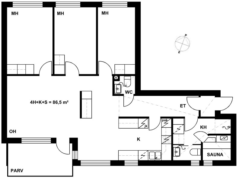
Höyhenkuja 1 C 26
4h+k+s
, Kerrostalo
86.5 m2
1/4
Höyhenkuja 1 C 26
4h+k+s
, Kerrostalo
86.5 m2
Kerros 1/4
Höyhenkuja 1 C 29
4h+k+s
, Kerrostalo
86.5 m2
2/4
Höyhenkuja 1 C 29
4h+k+s
, Kerrostalo
86.5 m2
Kerros 2/4
Höyhenkuja 1 C 41
4h+k+s
, Kerrostalo
86.5 m2
4/4
Höyhenkuja 1 C 41
4h+k+s
, Kerrostalo
86.5 m2
Kerros 4/4
Höyhenkuja 1 C 35
4h+k+s
, Kerrostalo
86.5 m2
3/4
Höyhenkuja 1 C 35
4h+k+s
, Kerrostalo
86.5 m2
Kerros 3/4
Höyhenkuja 1 A 9
5h+k+s
, Kerrostalo
95 m2
4/4
Höyhenkuja 1 A 9
5h+k+s
, Kerrostalo
95 m2
Kerros 4/4
Höyhenkuja 1 A 3
5h+k+s
, Kerrostalo
95 m2
2/4
Höyhenkuja 1 A 3
5h+k+s
, Kerrostalo
95 m2
Kerros 2/4
Höyhenkuja 1 A 1
5h+k+s
, Kerrostalo
95 m2
1/4
Höyhenkuja 1 A 1
5h+k+s
, Kerrostalo
95 m2
Kerros 1/4
Höyhenkuja 1 A 6
5h+k+s
, Kerrostalo
95 m2
3/4
Höyhenkuja 1 A 6
5h+k+s
, Kerrostalo
95 m2
Kerros 3/4