Kohteen esittely
Oulun Kaupungin eteläosassa, Heinäpään Paasikorttelissa sijaitseva 6-kerroksinen hissillinen asuinkerrostalo. Kaikki keskustan alueen palvelut on kävelymatkan päässä. Suojainen ja viihtyisä sisäpiha jossa lapsille on turvallinen leikkialue. Mahdollisuus vuokrata autolle paikka parkkihallista.
Miksi Asuntosäätiö?
Me uskomme, että onnellinen koti ja laadukas asuminen kuuluvat kaikille. Emme tavoittele voittoa, vaan käytämme kaikki vastikkeista ja vuokrista saadut tulot toimintamme kehittämiseen. Jo yli 33 000 suomalaista on valinnut Asuntosäätiön tarjoaman kodin. Tiesithän, että myös lemmikit ovat tervetulleita kaikkiin koteihimme!
Rakennuksen tiedot
- Asumismuoto Asokoti
- Keskimääräinen asumisoikeusmaksu / jm² 340,21€
- Hissit 3
- Talosauna Ei
- Pyykkitupa Kyllä
- Kuivaushuone Kyllä
- Asuntoja 74
- Asuinrakennuksia 1
- Käyttövastike / kk / jm² 12,54€
- Valmistumisvuosi 1995
- Peruskorjattu 2025
- Porrashuoneet 3
- Energialuokka E
- Lämmitysmuoto Kauko
- Autopaikat 67
- Kerhohuone 2
- Laajakaista DNA Welho
- Antennijärjestelmä Kaapeli
- KaapeliTV DNA
- Kattomateriaali Huopa
- Runkomateriaali Betoni
- Lemmikit Sallittu
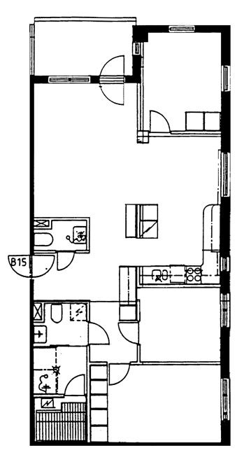
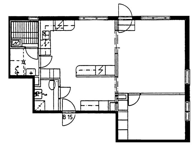
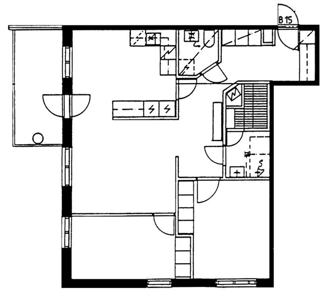
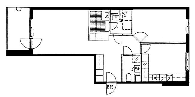
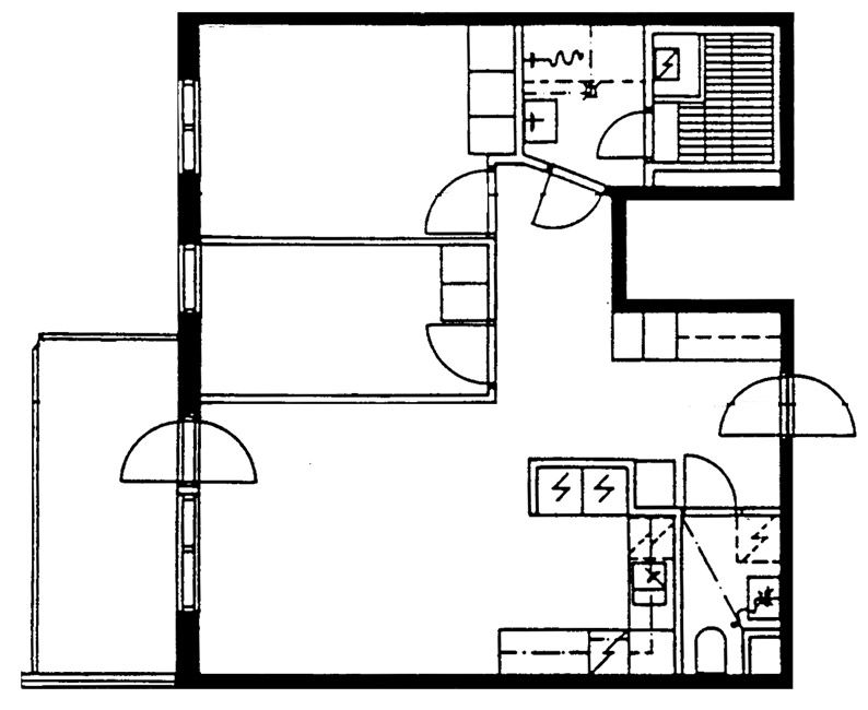
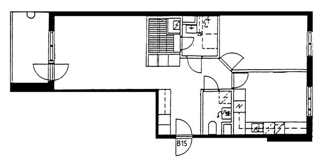
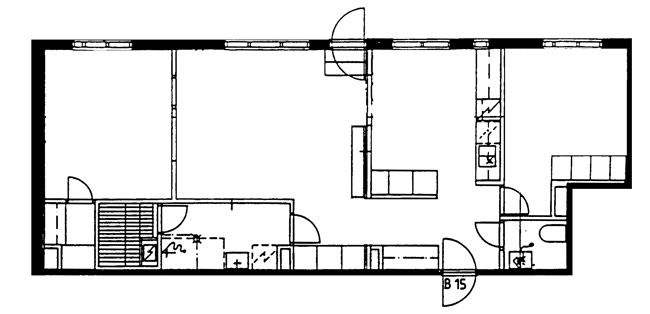
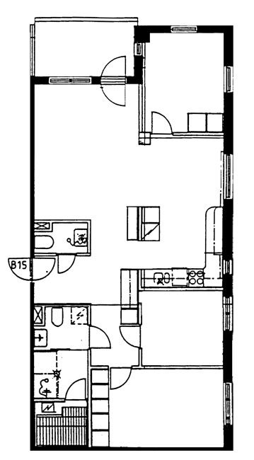
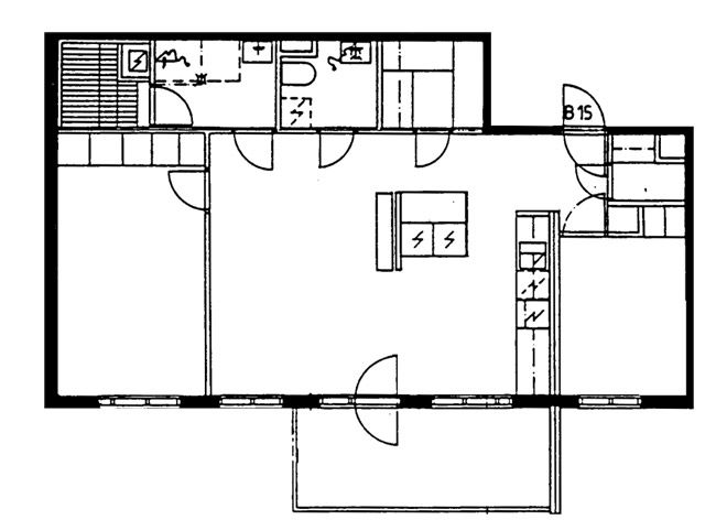
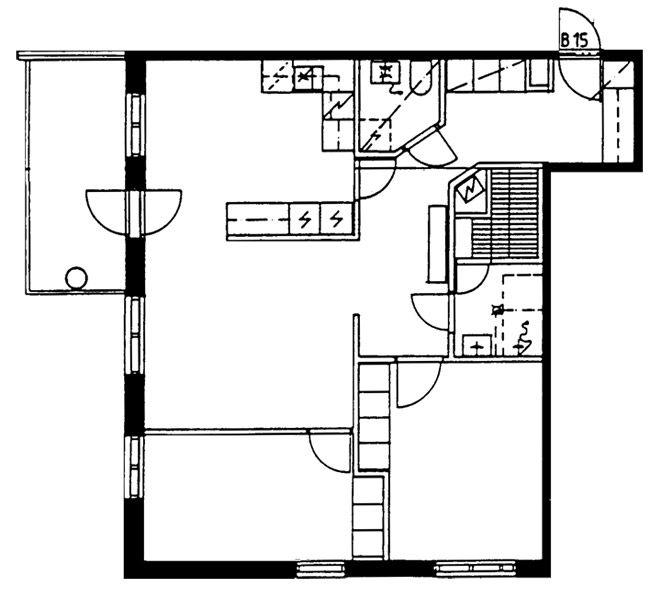
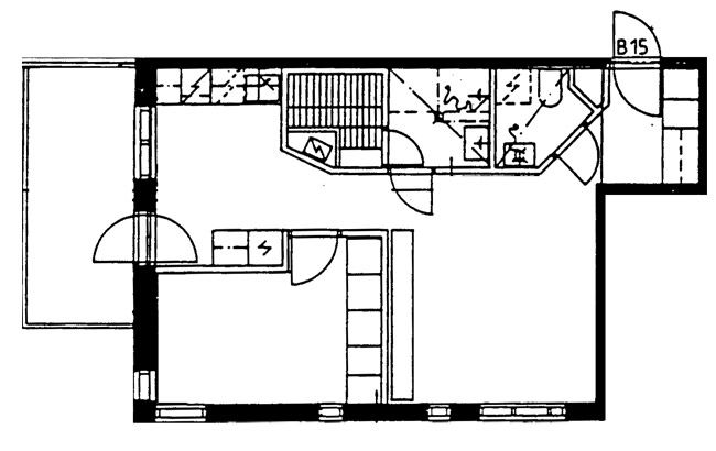
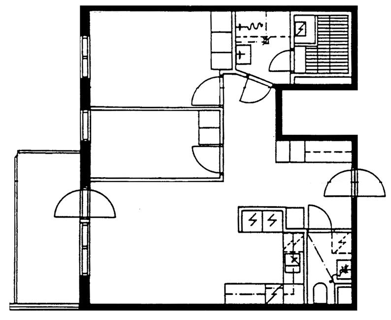
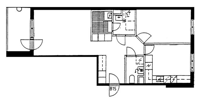
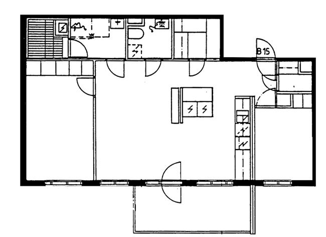
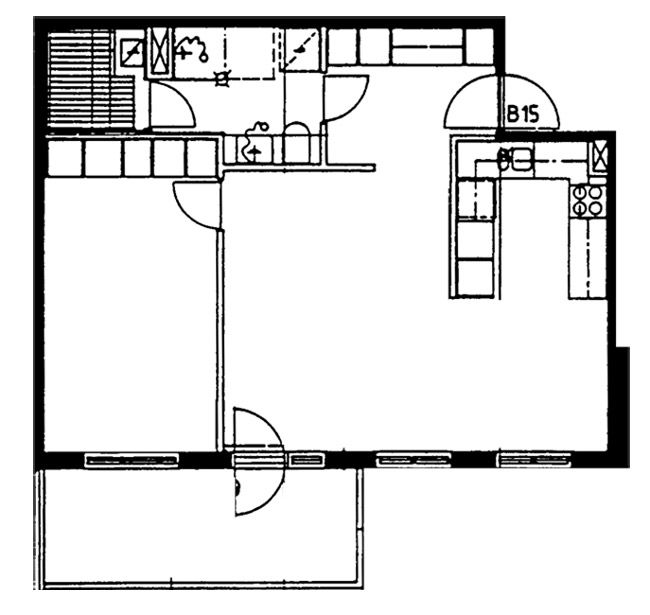
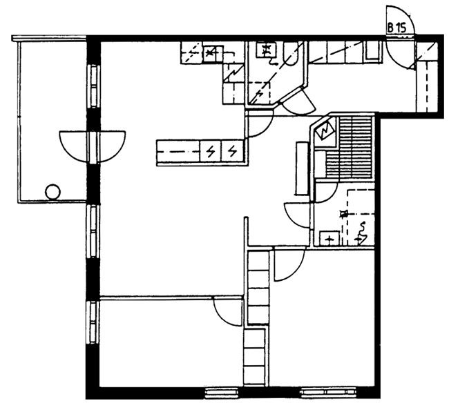
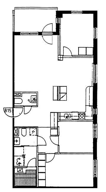
Huoneistot ja pohjakuvat: Uusikatu 43, Kerrostalo
Lisää hakemukselle kaikki haluamasi asuntotyypit. Mahdollisuutesi asunnon saamiseksi paranevat, kun voimme tarjota sinulle kaikkia valitsemasi asuntotyypin asuntoja, jotka mahdollisesti vapautuvat myöhemmin tästä kohteesta. Olet automaattisesti näiden asuntotyyppien hakuprosessissa.
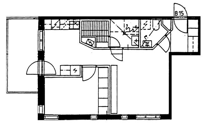
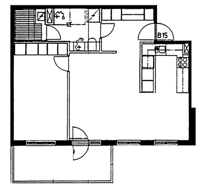
Uusikatu 43 B 40
1h+tk
, Kerrostalo
38 m2
4/6
Uusikatu 43 B 40
1h+tk
, Kerrostalo
38 m2
Kerros 4/6
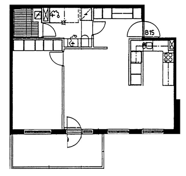
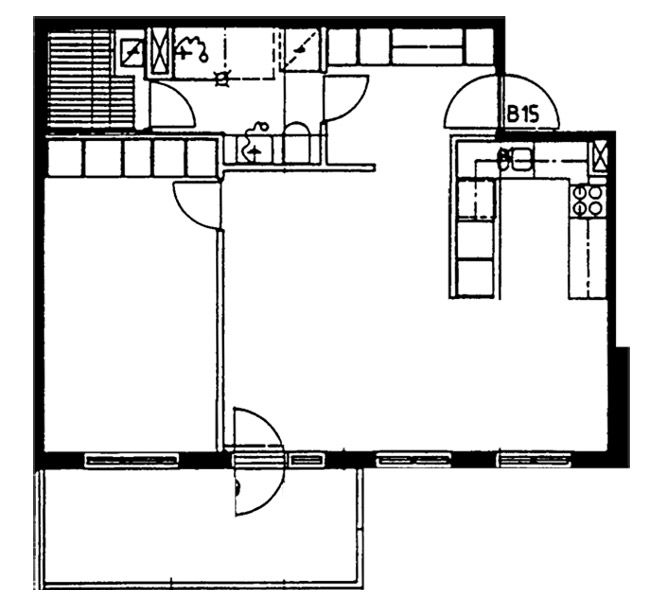
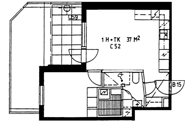
Uusikatu 43 C 52
1h+tk+s
, Kerrostalo
37 m2
1/6
Uusikatu 43 C 52
1h+tk+s
, Kerrostalo
37 m2
Kerros 1/6
Uusikatu 43 B 35
1h+tk+s
, Kerrostalo
38 m2
3/6
Uusikatu 43 B 35
1h+tk+s
, Kerrostalo
38 m2
Kerros 3/6
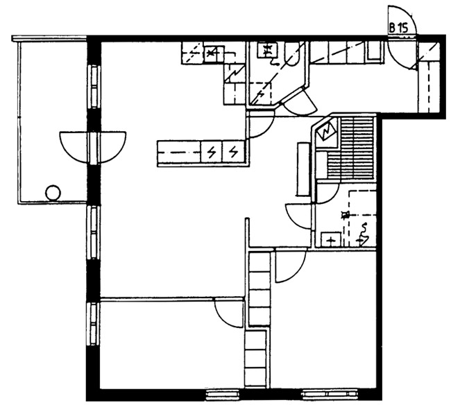
Uusikatu 43 B 45
1h+tk+s
, Kerrostalo
38 m2
5/6
Uusikatu 43 B 45
1h+tk+s
, Kerrostalo
38 m2
Kerros 5/6
Uusikatu 43 A 20
1h+tk+s
, Kerrostalo
38 m2
5/6
Uusikatu 43 A 20
1h+tk+s
, Kerrostalo
38 m2
Kerros 5/6
Uusikatu 43 A 15
1h+tk+s
, Kerrostalo
38 m2
4/6
Uusikatu 43 A 15
1h+tk+s
, Kerrostalo
38 m2
Kerros 4/6
Uusikatu 43 B 30
1h+tk+s
, Kerrostalo
38 m2
2/6
Uusikatu 43 B 30
1h+tk+s
, Kerrostalo
38 m2
Kerros 2/6
Uusikatu 43 A 5
1h+tk+s
, Kerrostalo
38 m2
2/6
Uusikatu 43 A 5
1h+tk+s
, Kerrostalo
38 m2
Kerros 2/6
Uusikatu 43 A 10
1h+tk+s
, Kerrostalo
38 m2
3/6
Uusikatu 43 A 10
1h+tk+s
, Kerrostalo
38 m2
Kerros 3/6
Uusikatu 43 C 53
1h+tk+s
, Kerrostalo
40.5 m2
1/6
Uusikatu 43 C 53
1h+tk+s
, Kerrostalo
40.5 m2
Kerros 1/6
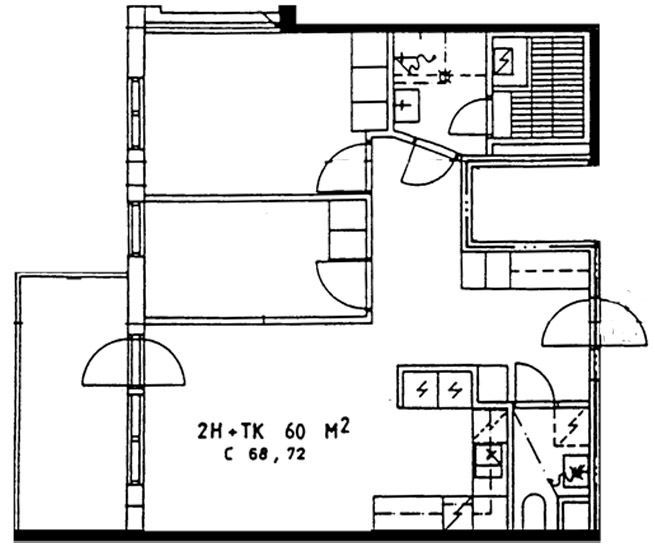
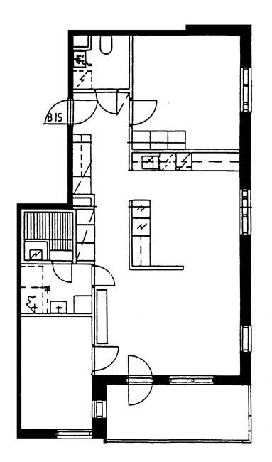
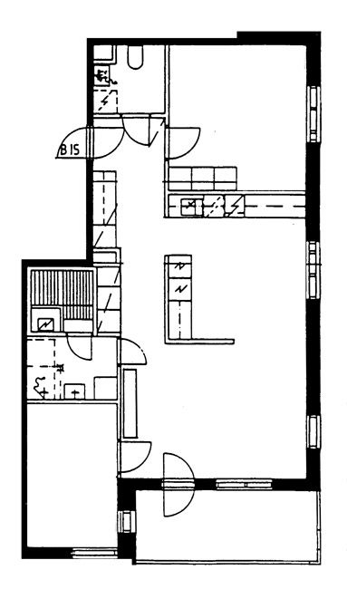
Uusikatu 43 B 37
2h+k+s
, Kerrostalo
55 m2
3/6
Uusikatu 43 B 37
2h+k+s
, Kerrostalo
55 m2
Kerros 3/6
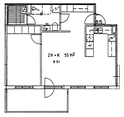
Uusikatu 43 B 51
2h+k+s
, Kerrostalo
55 m2
6/6
Uusikatu 43 B 51
2h+k+s
, Kerrostalo
55 m2
Kerros 6/6
Uusikatu 43 B 47
2h+k+s
, Kerrostalo
55 m2
5/6
Uusikatu 43 B 47
2h+k+s
, Kerrostalo
55 m2
Kerros 5/6
Uusikatu 43 B 32
2h+k+s
, Kerrostalo
55 m2
2/6
Uusikatu 43 B 32
2h+k+s
, Kerrostalo
55 m2
Kerros 2/6
Uusikatu 43 B 42
2h+k+s
, Kerrostalo
55 m2
4/6
Uusikatu 43 B 42
2h+k+s
, Kerrostalo
55 m2
Kerros 4/6
Uusikatu 43 C 74
2h+k+s
, Kerrostalo
58.5 m2
6/6
Uusikatu 43 C 74
2h+k+s
, Kerrostalo
58.5 m2
Kerros 6/6
Uusikatu 43 B 49
2h+k+s
, Kerrostalo
60.5 m2
6/6
Uusikatu 43 B 49
2h+k+s
, Kerrostalo
60.5 m2
Kerros 6/6
Uusikatu 43 C 59
2h+k+s
, Kerrostalo
62 m2
3/6
Uusikatu 43 C 59
2h+k+s
, Kerrostalo
62 m2
Kerros 3/6
Uusikatu 43 C 63
2h+k+s
, Kerrostalo
62 m2
4/6
Uusikatu 43 C 63
2h+k+s
, Kerrostalo
62 m2
Kerros 4/6
Uusikatu 43 C 55
2h+k+s
, Kerrostalo
62 m2
2/6
Uusikatu 43 C 55
2h+k+s
, Kerrostalo
62 m2
Kerros 2/6
Uusikatu 43 C 67
2h+k+s
, Kerrostalo
62 m2
5/6
Uusikatu 43 C 67
2h+k+s
, Kerrostalo
62 m2
Kerros 5/6
Uusikatu 43 C 69
2h+kk+s
, Kerrostalo
46 m2
5/6
Uusikatu 43 C 69
2h+kk+s
, Kerrostalo
46 m2
Kerros 5/6
Uusikatu 43 C 73
2h+kk+s
, Kerrostalo
46 m2
6/6
Uusikatu 43 C 73
2h+kk+s
, Kerrostalo
46 m2
Kerros 6/6
Uusikatu 43 B 27
2h+kk+s
, Kerrostalo
47 m2
1/6
Uusikatu 43 B 27
2h+kk+s
, Kerrostalo
47 m2
Kerros 1/6
Uusikatu 43 A 1
2h+kk+s
, Kerrostalo
47 m2
1/6
Uusikatu 43 A 1
2h+kk+s
, Kerrostalo
47 m2
Kerros 1/6
Uusikatu 43 A 24
2h+kk+s
, Kerrostalo
47.5 m2
6/6
Uusikatu 43 A 24
2h+kk+s
, Kerrostalo
47.5 m2
Kerros 6/6
Uusikatu 43 B 50
2h+kk+s
, Kerrostalo
47.5 m2
6/6
Uusikatu 43 B 50
2h+kk+s
, Kerrostalo
47.5 m2
Kerros 6/6
Uusikatu 43 C 71
2h+kk+s
, Kerrostalo
50 m2
6/6
Uusikatu 43 C 71
2h+kk+s
, Kerrostalo
50 m2
Kerros 6/6
Uusikatu 43 A 16
2h+kk+s
, Kerrostalo
55 m2
4/6
Uusikatu 43 A 16
2h+kk+s
, Kerrostalo
55 m2
Kerros 4/6
Uusikatu 43 A 11
2h+kk+s
, Kerrostalo
55 m2
3/6
Uusikatu 43 A 11
2h+kk+s
, Kerrostalo
55 m2
Kerros 3/6
Uusikatu 43 A 21
2h+kk+s
, Kerrostalo
55.5 m2
5/6
Uusikatu 43 A 21
2h+kk+s
, Kerrostalo
55.5 m2
Kerros 5/6
Uusikatu 43 A 3
2h+tk+s
, Kerrostalo
55 m2
2/6
Uusikatu 43 A 3
2h+tk+s
, Kerrostalo
55 m2
Kerros 2/6
Uusikatu 43 A 8
2h+tk+s
, Kerrostalo
55 m2
3/6
Uusikatu 43 A 8
2h+tk+s
, Kerrostalo
55 m2
Kerros 3/6
Uusikatu 43 A 13
2h+tk+s
, Kerrostalo
55 m2
4/6
Uusikatu 43 A 13
2h+tk+s
, Kerrostalo
55 m2
Kerros 4/6
Uusikatu 43 A 18
2h+tk+s
, Kerrostalo
55 m2
5/6
Uusikatu 43 A 18
2h+tk+s
, Kerrostalo
55 m2
Kerros 5/6
Uusikatu 43 A 23
2h+tk+s
, Kerrostalo
55 m2
6/6
Uusikatu 43 A 23
2h+tk+s
, Kerrostalo
55 m2
Kerros 6/6
Uusikatu 43 A 19
2h+tk+s
, Kerrostalo
59 m2
5/6
Uusikatu 43 A 19
2h+tk+s
, Kerrostalo
59 m2
Kerros 5/6
Uusikatu 43 B 31
2h+tk+s
, Kerrostalo
59 m2
2/6
Uusikatu 43 B 31
2h+tk+s
, Kerrostalo
59 m2
Kerros 2/6
Uusikatu 43 A 9
2h+tk+s
, Kerrostalo
59 m2
3/6
Uusikatu 43 A 9
2h+tk+s
, Kerrostalo
59 m2
Kerros 3/6
Uusikatu 43 B 41
2h+tk+s
, Kerrostalo
59 m2
4/6
Uusikatu 43 B 41
2h+tk+s
, Kerrostalo
59 m2
Kerros 4/6
Uusikatu 43 B 36
2h+tk+s
, Kerrostalo
59 m2
3/6
Uusikatu 43 B 36
2h+tk+s
, Kerrostalo
59 m2
Kerros 3/6
Uusikatu 43 A 4
2h+tk+s
, Kerrostalo
59 m2
2/6
Uusikatu 43 A 4
2h+tk+s
, Kerrostalo
59 m2
Kerros 2/6
Uusikatu 43 A 14
2h+tk+s
, Kerrostalo
59 m2
4/6
Uusikatu 43 A 14
2h+tk+s
, Kerrostalo
59 m2
Kerros 4/6
Uusikatu 43 B 46
2h+tk+s
, Kerrostalo
59 m2
5/6
Uusikatu 43 B 46
2h+tk+s
, Kerrostalo
59 m2
Kerros 5/6
Uusikatu 43 C 64
2h+tk+s
, Kerrostalo
60 m2
4/6
Uusikatu 43 C 64
2h+tk+s
, Kerrostalo
60 m2
Kerros 4/6
Uusikatu 43 C 56
2h+tk+s
, Kerrostalo
60 m2
2/6
Uusikatu 43 C 56
2h+tk+s
, Kerrostalo
60 m2
Kerros 2/6
Uusikatu 43 C 68
2h+tk+s
, Kerrostalo
60 m2
5/6
Uusikatu 43 C 68
2h+tk+s
, Kerrostalo
60 m2
Kerros 5/6
Uusikatu 43 C 72
2h+tk+s
, Kerrostalo
60 m2
6/6
Uusikatu 43 C 72
2h+tk+s
, Kerrostalo
60 m2
Kerros 6/6
Uusikatu 43 C 60
2h+tk+s
, Kerrostalo
60 m2
3/6
Uusikatu 43 C 60
2h+tk+s
, Kerrostalo
60 m2
Kerros 3/6
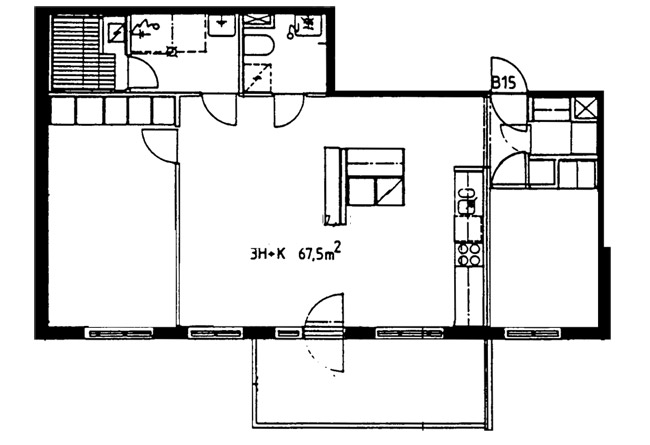
Uusikatu 43 A 22
3h+k+s
, Kerrostalo
67.5 m2
5/6
Uusikatu 43 A 22
3h+k+s
, Kerrostalo
67.5 m2
Kerros 5/6
Uusikatu 43 A 12
3h+k+s
, Kerrostalo
67.5 m2
3/6
Uusikatu 43 A 12
3h+k+s
, Kerrostalo
67.5 m2
Kerros 3/6
Uusikatu 43 A 17
3h+k+s
, Kerrostalo
67.5 m2
4/6
Uusikatu 43 A 17
3h+k+s
, Kerrostalo
67.5 m2
Kerros 4/6
Uusikatu 43 A 7
3h+k+s
, Kerrostalo
67.5 m2
2/6
Uusikatu 43 A 7
3h+k+s
, Kerrostalo
67.5 m2
Kerros 2/6
Uusikatu 43 A 2
3h+k+s
, Kerrostalo
70 m2
1/6
Uusikatu 43 A 2
3h+k+s
, Kerrostalo
70 m2
Kerros 1/6
Uusikatu 43 A 26
3h+k+s
, Kerrostalo
70 m2
6/6
Uusikatu 43 A 26
3h+k+s
, Kerrostalo
70 m2
Kerros 6/6
Uusikatu 43 A 25
3h+k+s
, Kerrostalo
74.5 m2
6/6
Uusikatu 43 A 25
3h+k+s
, Kerrostalo
74.5 m2
Kerros 6/6
Uusikatu 43 C 54
3h+k+s
, Kerrostalo
75 m2
1/6
Uusikatu 43 C 54
3h+k+s
, Kerrostalo
75 m2
Kerros 1/6
Uusikatu 43 C 65
3h+k+s
, Kerrostalo
75 m2
4/6
Uusikatu 43 C 65
3h+k+s
, Kerrostalo
75 m2
Kerros 4/6
Uusikatu 43 C 61
3h+k+s
, Kerrostalo
75 m2
3/6
Uusikatu 43 C 61
3h+k+s
, Kerrostalo
75 m2
Kerros 3/6
Uusikatu 43 C 57
3h+k+s
, Kerrostalo
75 m2
2/6
Uusikatu 43 C 57
3h+k+s
, Kerrostalo
75 m2
Kerros 2/6
Uusikatu 43 C 58
3h+k+s
, Kerrostalo
76.5 m2
2/6
Uusikatu 43 C 58
3h+k+s
, Kerrostalo
76.5 m2
Kerros 2/6
Uusikatu 43 C 66
3h+k+s
, Kerrostalo
76.5 m2
4/6
Uusikatu 43 C 66
3h+k+s
, Kerrostalo
76.5 m2
Kerros 4/6
Uusikatu 43 C 62
3h+k+s
, Kerrostalo
76.5 m2
3/6
Uusikatu 43 C 62
3h+k+s
, Kerrostalo
76.5 m2
Kerros 3/6
Uusikatu 43 B 38
3h+k+s
, Kerrostalo
81 m2
4/6
Uusikatu 43 B 38
3h+k+s
, Kerrostalo
81 m2
Kerros 4/6
Uusikatu 43 B 43
3h+k+s
, Kerrostalo
81 m2
5/6
Uusikatu 43 B 43
3h+k+s
, Kerrostalo
81 m2
Kerros 5/6
Uusikatu 43 B 33
3h+k+s
, Kerrostalo
81 m2
3/6
Uusikatu 43 B 33
3h+k+s
, Kerrostalo
81 m2
Kerros 3/6
Uusikatu 43 B 28
3h+k+s
, Kerrostalo
81 m2
2/6
Uusikatu 43 B 28
3h+k+s
, Kerrostalo
81 m2
Kerros 2/6
Uusikatu 43 B 39
4h+k+s
, Kerrostalo
85 m2
4/6
Uusikatu 43 B 39
4h+k+s
, Kerrostalo
85 m2
Kerros 4/6
Uusikatu 43 B 29
4h+k+s
, Kerrostalo
85 m2
2/6
Uusikatu 43 B 29
4h+k+s
, Kerrostalo
85 m2
Kerros 2/6
Uusikatu 43 B 44
4h+k+s
, Kerrostalo
85 m2
5./6/6
Uusikatu 43 B 44
4h+k+s
, Kerrostalo
85 m2
Kerros 5./6/6
Uusikatu 43 B 34
4h+k+s
, Kerrostalo
85 m2
3/6
Uusikatu 43 B 34
4h+k+s
, Kerrostalo
85 m2
Kerros 3/6
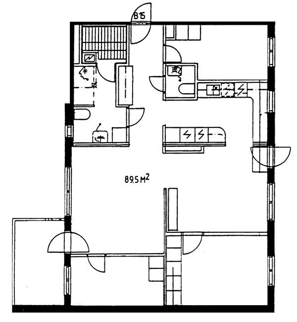
Uusikatu 43 B 48
4h+k+s
, Kerrostalo
89.5 m2
6/6
Uusikatu 43 B 48
4h+k+s
, Kerrostalo
89.5 m2
Kerros 6/6

