Kohteen esittely
Sihtikuja 1 on kolmen hissillisen kerrostalon kokonaisuus Meri-Toppilassa. Asuntojen koot vaihtelevat yksiöistä ja kaksioista 3- 4 huoneen ja keittiön asuntoihin. Kaikissa asunnoissa on oma sauna. Kohteessa on talopesula. Talojen sisäpihalla on vehreä ja turvallinen leikki- ja oleskelualue. Mahdollisuus vuokrata autolle paikka parkkitalosta.
Alueella on hyvät ulkoilureitit meren rannassa ja sillan kautta yhteys Toppilansaareen, jossa on mm. Nallikarin upea hiekkaranta kylpylöineen. Lähellä kauppapalvelut ja esimerkiksi frisbeegolfkenttä ja kiipeilykeskus. Nopea kulku yliopistolle ja Teknologiakylään.
Miksi Asuntosäätiö?
Me uskomme, että onnellinen koti ja laadukas asuminen kuuluvat kaikille. Emme tavoittele voittoa, vaan käytämme kaikki vastikkeista ja vuokrista saadut tulot toimintamme kehittämiseen. Jo yli 33 000 suomalaista on valinnut Asuntosäätiön tarjoaman kodin. Tiesithän, että myös lemmikit ovat tervetulleita kaikkiin koteihimme!
Rakennuksen tiedot
- Asumismuoto Asokoti
- Keskimääräinen asumisoikeusmaksu / jm² 241,79€
- Hissit 5
- Talosauna Ei
- Pyykkitupa Kyllä
- Kuivaushuone Kyllä
- Asuntoja 65
- Asuinrakennuksia 3
- Käyttövastike / kk / jm² 8,49€
- Valmistumisvuosi 1994
- Peruskorjattu 2025
- Porrashuoneet 5
- Energialuokka E
- Lämmitysmuoto Kauko
- Autopaikat 66
- Kerhohuone 1
- Laajakaista DNA Welho
- Antennijärjestelmä Kaapeli
- KaapeliTV DNA
- Kattomateriaali Pelti
- Runkomateriaali Betoni
- Lemmikit Sallittu
Huoneistot ja pohjakuvat: Sihtikuja 1, , Kerrostalo
Lisää hakemukselle kaikki haluamasi asuntotyypit. Mahdollisuutesi asunnon saamiseksi paranevat, kun voimme tarjota sinulle kaikkia valitsemasi asuntotyypin asuntoja, jotka mahdollisesti vapautuvat myöhemmin tästä kohteesta. Olet automaattisesti näiden asuntotyyppien hakuprosessissa.
Sihtikuja 1 B 20
1h+k+s
, Kerrostalo
40 m2
4/4
Sihtikuja 1 B 20
1h+k+s
, Kerrostalo
40 m2
Kerros 4/4
Sihtikuja 1 B 14
1h+k+s
, Kerrostalo
40 m2
Kerros 2/4
Sihtikuja 1 B 17
1h+k+s
, Kerrostalo
40 m2
/4
Sihtikuja 1 B 17
1h+k+s
, Kerrostalo
40 m2
Kerros /4
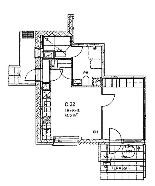
Sihtikuja 1 C 22
1h+k+s
, Kerrostalo
41.5 m2
1/5
Sihtikuja 1 C 22
1h+k+s
, Kerrostalo
41.5 m2
Kerros 1/5
Sihtikuja 1 B 21
2h+k+s
, Kerrostalo
59.5 m2
4/4
Sihtikuja 1 B 21
2h+k+s
, Kerrostalo
59.5 m2
Kerros 4/4
Sihtikuja 1 B 15
2h+k+s
, Kerrostalo
59.5 m2
2/4
Sihtikuja 1 B 15
2h+k+s
, Kerrostalo
59.5 m2
Kerros 2/4
Sihtikuja 1 B 18
2h+k+s
, Kerrostalo
59.5 m2
3/4
Sihtikuja 1 B 18
2h+k+s
, Kerrostalo
59.5 m2
Kerros 3/4
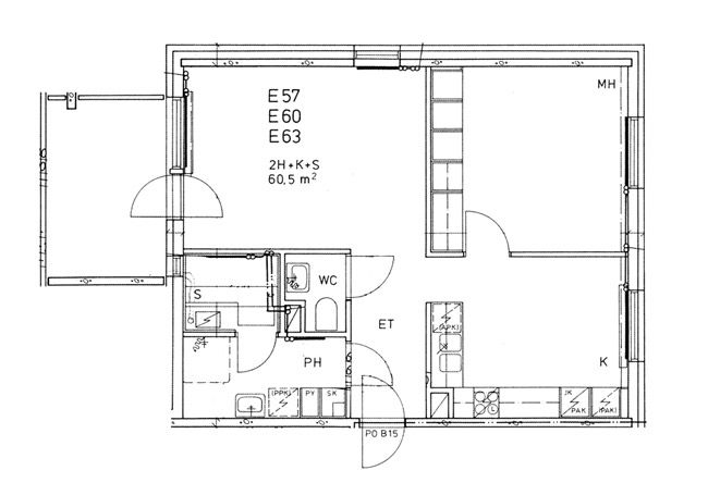
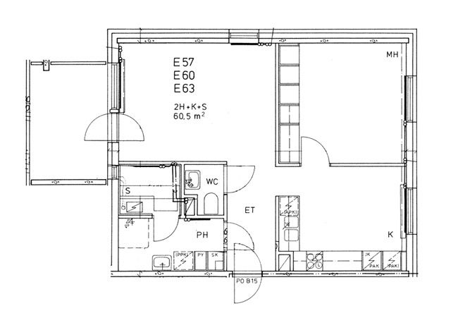
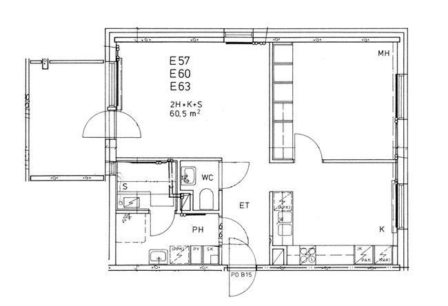
Sihtikuja 1 E 60
2h+k+s
, Kerrostalo
60.5 m2
3/4
Sihtikuja 1 E 60
2h+k+s
, Kerrostalo
60.5 m2
Kerros 3/4
Sihtikuja 1 E 57
2h+k+s
, Kerrostalo
60.5 m2
2/4
Sihtikuja 1 E 57
2h+k+s
, Kerrostalo
60.5 m2
Kerros 2/4
Sihtikuja 1 E 54
2h+k+s
, Kerrostalo
60.5 m2
1/4
Sihtikuja 1 E 54
2h+k+s
, Kerrostalo
60.5 m2
Kerros 1/4
Sihtikuja 1 E 63
2h+k+s
, Kerrostalo
60.5 m2
/4
Sihtikuja 1 E 63
2h+k+s
, Kerrostalo
60.5 m2
Kerros /4
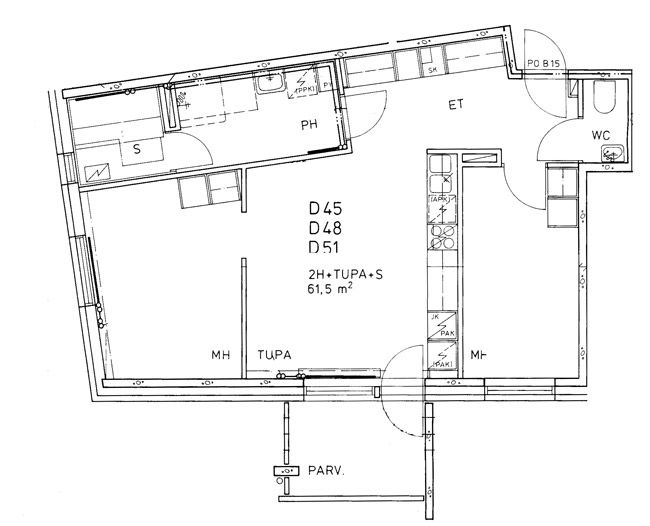
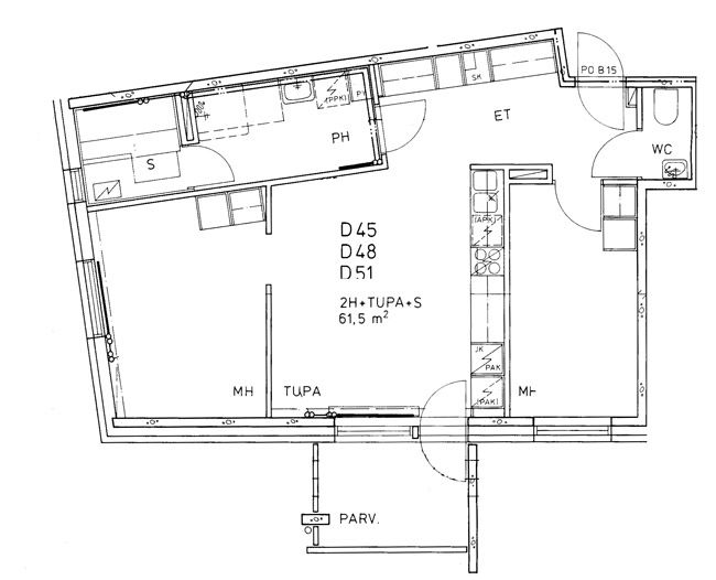
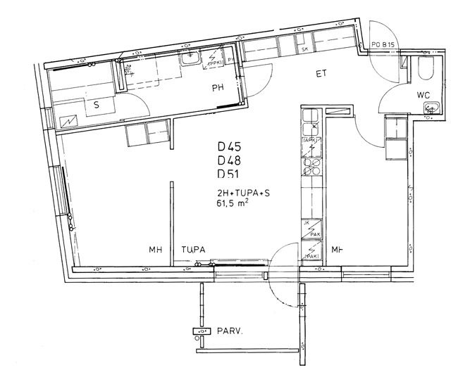
Sihtikuja 1 D 45
2h+k+s
, Kerrostalo
61.5 m2
2/4
Sihtikuja 1 D 45
2h+k+s
, Kerrostalo
61.5 m2
Kerros 2/4
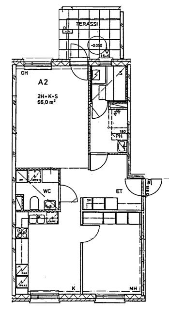
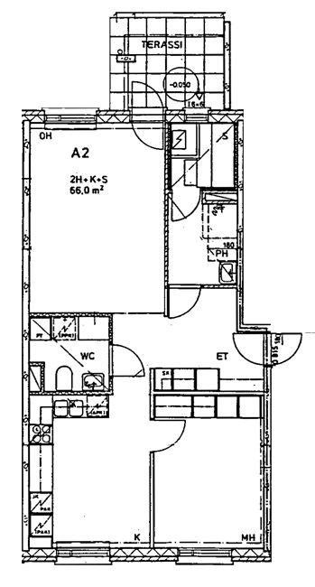
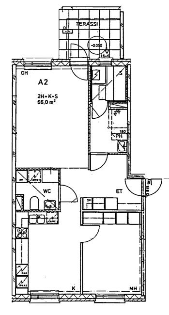
Sihtikuja 1 A 6
2h+k+s
, Kerrostalo
64 m2
3/4
Sihtikuja 1 A 6
2h+k+s
, Kerrostalo
64 m2
Kerros 3/4
Sihtikuja 1 A 9
2h+k+s
, Kerrostalo
64 m2
/4
Sihtikuja 1 A 9
2h+k+s
, Kerrostalo
64 m2
Kerros /4
Sihtikuja 1 A 1
2h+k+s
, Kerrostalo
64 m2
1/4
Sihtikuja 1 A 1
2h+k+s
, Kerrostalo
64 m2
Kerros 1/4
Sihtikuja 1 A 3
2h+k+s
, Kerrostalo
64 m2
1./4
Sihtikuja 1 A 3
2h+k+s
, Kerrostalo
64 m2
Kerros 1./4
Sihtikuja 1 A 11
2h+k+s
, Kerrostalo
66 m2
4./4
Sihtikuja 1 A 11
2h+k+s
, Kerrostalo
66 m2
Kerros 4./4
Sihtikuja 1 A 8
2h+k+s
, Kerrostalo
66 m2
3/4
Sihtikuja 1 A 8
2h+k+s
, Kerrostalo
66 m2
Kerros 3/4
Sihtikuja 1 B 13
2h+k+s
, Kerrostalo
66 m2
2/4
Sihtikuja 1 B 13
2h+k+s
, Kerrostalo
66 m2
Kerros 2/4
Sihtikuja 1 A 2
2h+k+s
, Kerrostalo
66 m2
1/4
Sihtikuja 1 A 2
2h+k+s
, Kerrostalo
66 m2
Kerros 1/4
Sihtikuja 1 B 19
2h+k+s
, Kerrostalo
66 m2
4/4
Sihtikuja 1 B 19
2h+k+s
, Kerrostalo
66 m2
Kerros 4/4
Sihtikuja 1 B 16
2h+k+s
, Kerrostalo
66 m2
/4
Sihtikuja 1 B 16
2h+k+s
, Kerrostalo
66 m2
Kerros /4
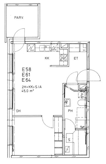
Sihtikuja 1 E 55
2h+kk+s
, Kerrostalo
45 m2
1/4
Sihtikuja 1 E 55
2h+kk+s
, Kerrostalo
45 m2
Kerros 1/4
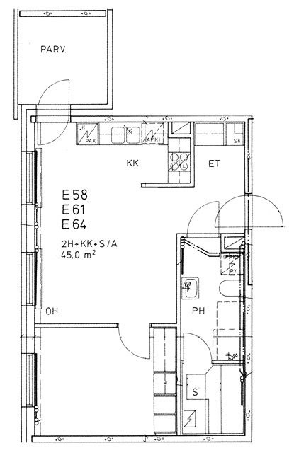
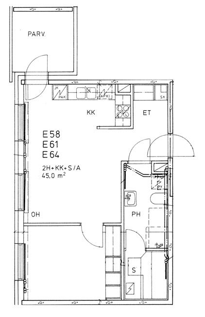
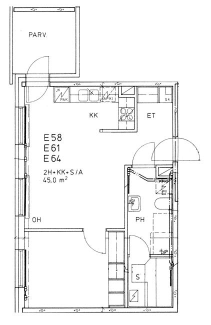
Sihtikuja 1 E 64
2h+kk+s
, Kerrostalo
45 m2
4/4
Sihtikuja 1 E 64
2h+kk+s
, Kerrostalo
45 m2
Kerros 4/4
Sihtikuja 1 E 58
2h+kk+s
, Kerrostalo
45 m2
2/4
Sihtikuja 1 E 58
2h+kk+s
, Kerrostalo
45 m2
Kerros 2/4
Sihtikuja 1 E 61
2h+kk+s
, Kerrostalo
45 m2
3/4
Sihtikuja 1 E 61
2h+kk+s
, Kerrostalo
45 m2
Kerros 3/4
Sihtikuja 1 C 23
2h+kk+s
, Kerrostalo
46 m2
1/5
Sihtikuja 1 C 23
2h+kk+s
, Kerrostalo
46 m2
Kerros 1/5
Sihtikuja 1 C 40
2h+kk+s
, Kerrostalo
46 m2
5/5
Sihtikuja 1 C 40
2h+kk+s
, Kerrostalo
46 m2
Kerros 5/5
Sihtikuja 1 C 32
2h+kk+s
, Kerrostalo
46 m2
3/5
Sihtikuja 1 C 32
2h+kk+s
, Kerrostalo
46 m2
Kerros 3/5
Sihtikuja 1 C 28
2h+kk+s
, Kerrostalo
46 m2
2/5
Sihtikuja 1 C 28
2h+kk+s
, Kerrostalo
46 m2
Kerros 2/5
Sihtikuja 1 C 36
2h+kk+s
, Kerrostalo
46 m2
4/5
Sihtikuja 1 C 36
2h+kk+s
, Kerrostalo
46 m2
Kerros 4/5
Sihtikuja 1 A 10
2h+kk+s
, Kerrostalo
46 m2
/4
Sihtikuja 1 A 10
2h+kk+s
, Kerrostalo
46 m2
Kerros /4
Sihtikuja 1 A 7
2h+kk+s
, Kerrostalo
46 m2
3/4
Sihtikuja 1 A 7
2h+kk+s
, Kerrostalo
46 m2
Kerros 3/4
Sihtikuja 1 A 4
2h+kk+s
, Kerrostalo
46 m2
2./4
Sihtikuja 1 A 4
2h+kk+s
, Kerrostalo
46 m2
Kerros 2./4
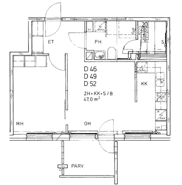
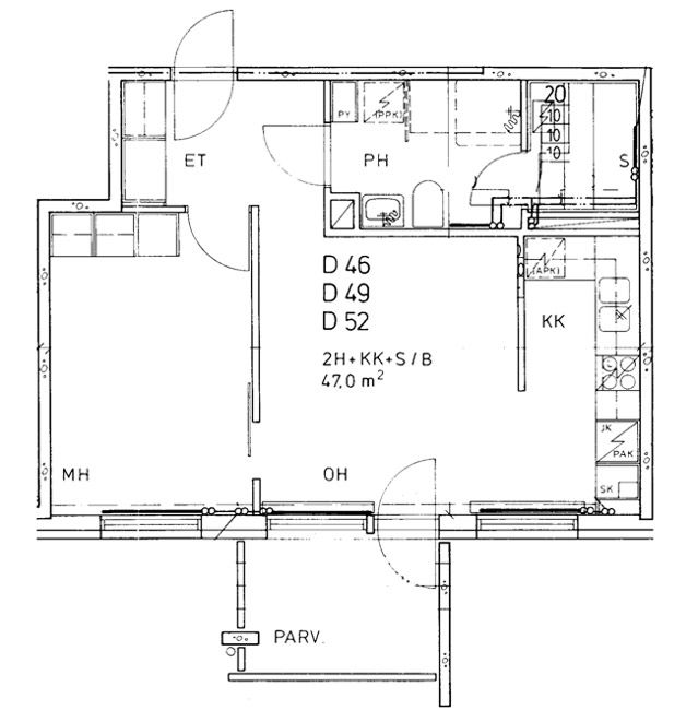
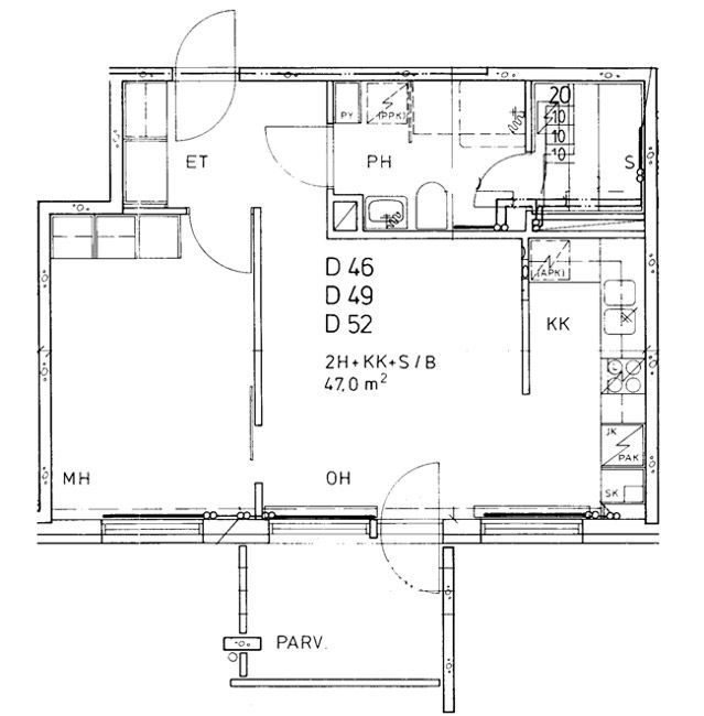
Sihtikuja 1 D 49
2h+kk+s
, Kerrostalo
47 m2
3/4
Sihtikuja 1 D 49
2h+kk+s
, Kerrostalo
47 m2
Kerros 3/4
Sihtikuja 1 D 46
2h+kk+s
, Kerrostalo
47 m2
2/4
Sihtikuja 1 D 46
2h+kk+s
, Kerrostalo
47 m2
Kerros 2/4
Sihtikuja 1 D 43
2h+kk+s
, Kerrostalo
47 m2
1/4
Sihtikuja 1 D 43
2h+kk+s
, Kerrostalo
47 m2
Kerros 1/4
Sihtikuja 1 D 52
2h+kk+s
, Kerrostalo
47 m2
4/4
Sihtikuja 1 D 52
2h+kk+s
, Kerrostalo
47 m2
Kerros 4/4
Sihtikuja 1 D 44
2h+tk+s
, Kerrostalo
61.5 m2
1/4
Sihtikuja 1 D 44
2h+tk+s
, Kerrostalo
61.5 m2
Kerros 1/4
Sihtikuja 1 D 48
2h+tk+s
, Kerrostalo
61.5 m2
3/4
Sihtikuja 1 D 48
2h+tk+s
, Kerrostalo
61.5 m2
Kerros 3/4
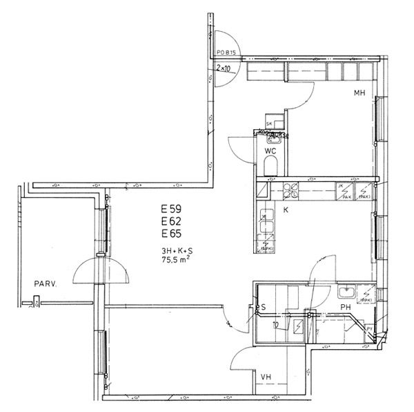
Sihtikuja 1 D 42
3h+k+s
, Kerrostalo
75.5 m2
1/4
Sihtikuja 1 D 42
3h+k+s
, Kerrostalo
75.5 m2
Kerros 1/4
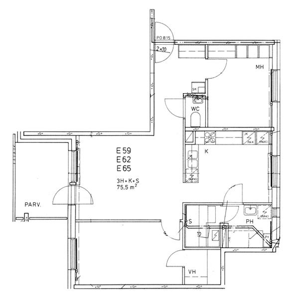
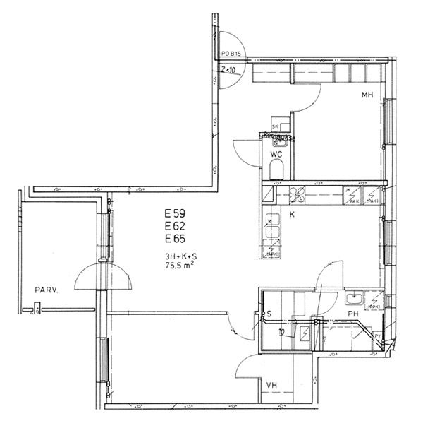
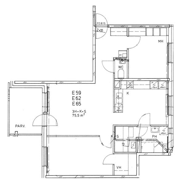
Sihtikuja 1 E 62
3h+k+s
, Kerrostalo
75.5 m2
3/4
Sihtikuja 1 E 62
3h+k+s
, Kerrostalo
75.5 m2
Kerros 3/4
Sihtikuja 1 E 56
3h+k+s
, Kerrostalo
75.5 m2
1/4
Sihtikuja 1 E 56
3h+k+s
, Kerrostalo
75.5 m2
Kerros 1/4
Sihtikuja 1 E 65
3h+k+s
, Kerrostalo
75.5 m2
4/4
Sihtikuja 1 E 65
3h+k+s
, Kerrostalo
75.5 m2
Kerros 4/4
Sihtikuja 1 E 59
3h+k+s
, Kerrostalo
75.5 m2
2/4
Sihtikuja 1 E 59
3h+k+s
, Kerrostalo
75.5 m2
Kerros 2/4
Sihtikuja 1 C 38
3h+k+s
, Kerrostalo
76 m2
5/5
Sihtikuja 1 C 38
3h+k+s
, Kerrostalo
76 m2
Kerros 5/5
Sihtikuja 1 C 25
3h+k+s
, Kerrostalo
76 m2
1/5
Sihtikuja 1 C 25
3h+k+s
, Kerrostalo
76 m2
Kerros 1/5
Sihtikuja 1 C 26
3h+k+s
, Kerrostalo
76 m2
2/5
Sihtikuja 1 C 26
3h+k+s
, Kerrostalo
76 m2
Kerros 2/5
Sihtikuja 1 C 30
3h+k+s
, Kerrostalo
76 m2
3/5
Sihtikuja 1 C 30
3h+k+s
, Kerrostalo
76 m2
Kerros 3/5
Sihtikuja 1 C 34
3h+k+s
, Kerrostalo
76 m2
4/5
Sihtikuja 1 C 34
3h+k+s
, Kerrostalo
76 m2
Kerros 4/5
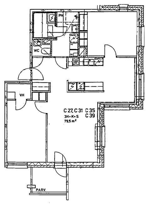
Sihtikuja 1 C 35
3h+k+s
, Kerrostalo
79.5 m2
4/5
Sihtikuja 1 C 35
3h+k+s
, Kerrostalo
79.5 m2
Kerros 4/5
Sihtikuja 1 C 24
3h+k+s
, Kerrostalo
79.5 m2
1/5
Sihtikuja 1 C 24
3h+k+s
, Kerrostalo
79.5 m2
Kerros 1/5
Sihtikuja 1 C 39
3h+k+s
, Kerrostalo
79.5 m2
5/5
Sihtikuja 1 C 39
3h+k+s
, Kerrostalo
79.5 m2
Kerros 5/5
Sihtikuja 1 C 27
3h+k+s
, Kerrostalo
79.5 m2
2/5
Sihtikuja 1 C 27
3h+k+s
, Kerrostalo
79.5 m2
Kerros 2/5
Sihtikuja 1 C 33
3h+k+s
, Kerrostalo
80.5 m2
3/5
Sihtikuja 1 C 33
3h+k+s
, Kerrostalo
80.5 m2
Kerros 3/5
Sihtikuja 1 C 29
3h+k+s
, Kerrostalo
80.5 m2
2/5
Sihtikuja 1 C 29
3h+k+s
, Kerrostalo
80.5 m2
Kerros 2/5
Sihtikuja 1 C 41
3h+k+s
, Kerrostalo
80.5 m2
5/5
Sihtikuja 1 C 41
3h+k+s
, Kerrostalo
80.5 m2
Kerros 5/5
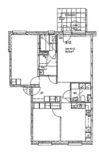
Sihtikuja 1 B 12
3h+k+s
, Kerrostalo
81.5 m2
1/4
Sihtikuja 1 B 12
3h+k+s
, Kerrostalo
81.5 m2
Kerros 1/4
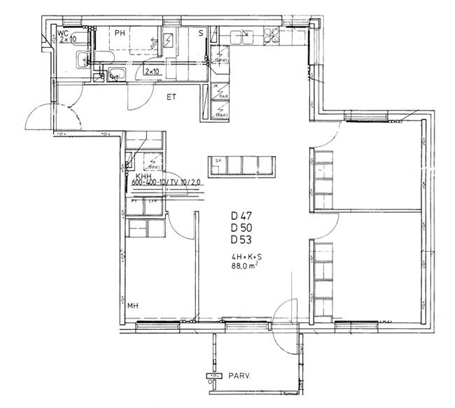
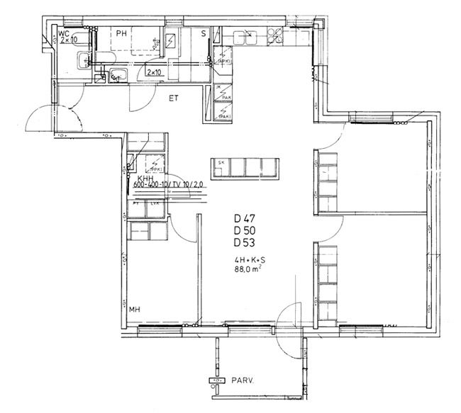
Sihtikuja 1 D 47
4h+k+s
, Kerrostalo
88 m2
2/4
Sihtikuja 1 D 47
4h+k+s
, Kerrostalo
88 m2
Kerros 2/4
Sihtikuja 1 D 50
4h+k+s
, Kerrostalo
88 m2
3/4
Sihtikuja 1 D 50
4h+k+s
, Kerrostalo
88 m2
Kerros 3/4
Sihtikuja 1 D 53
4h+k+s
, Kerrostalo
88 m2
4/4
Sihtikuja 1 D 53
4h+k+s
, Kerrostalo
88 m2
Kerros 4/4

