Kohteen esittely
Rauhallinen rivitalokohde Haikkoossa. Asunnot ovat 1-4 huoneen ja keittiön huoneistoja, joissa on omat sauna ja piha. Asukkaiden käytössä on pesutupa ja kuivaushuone, sekä jokaisella huoneistolla oma varastokoppi lämpimässä kellaritilassa.
Alueella on päiväkoteja, joista lähin aivan vieressä. Koulut sekä Hamarissa että Tolkkisissa. Lähellä on myös ruokakauppa ja koirapuisto. Merenrantaan on reilu puoli kilometriä. Noin kilometrin päässä Haikkoon kartanosta, jossa kylpylä ja ravintola.
Miksi Asuntosäätiö?
Me uskomme, että onnellinen koti ja laadukas asuminen kuuluvat kaikille. Emme tavoittele voittoa, vaan käytämme kaikki vastikkeista ja vuokrista saadut tulot toimintamme kehittämiseen. Jo yli 33 000 suomalaista on valinnut Asuntosäätiön tarjoaman kodin. Tiesithän, että myös lemmikit ovat tervetulleita kaikkiin koteihimme!
Rakennuksen tiedot
- Asumismuoto Asokoti
- Keskimääräinen asumisoikeusmaksu / jm² 305,02€
- Hissit Ei
- Talosauna Ei
- Pyykkitupa Kyllä
- Kuivaushuone Kyllä
- Asuntoja 26
- Asuinrakennuksia 5
- Käyttövastike / kk / jm² 12,77€
- Valmistumisvuosi 1994
- Peruskorjattu 2024
- Energialuokka D
- Lämmitysmuoto Kauko
- Autopaikat 28
- Kerhohuone 1
- Laajakaista DNA 4G
- Antennijärjestelmä Kaapeli
- KaapeliTV Telia
- Kattomateriaali Pelti
- Runkomateriaali Betoni
- Lemmikit Sallittu
Huoneistot ja pohjakuvat: Keltavuokontie 4, Piharakennus, Rivitalo
Lisää hakemukselle kaikki haluamasi asuntotyypit. Mahdollisuutesi asunnon saamiseksi paranevat, kun voimme tarjota sinulle kaikkia valitsemasi asuntotyypin asuntoja, jotka mahdollisesti vapautuvat myöhemmin tästä kohteesta. Olet automaattisesti näiden asuntotyyppien hakuprosessissa.
Keltavuokontie 4 E 26
1h+k+s
, Rivitalo
42 m2
2/2
Keltavuokontie 4 E 26
1h+k+s
, Rivitalo
42 m2
Kerros 2/2
Keltavuokontie 4 B 9
1h+k+s
, Rivitalo
42 m2
1/1
Keltavuokontie 4 B 9
1h+k+s
, Rivitalo
42 m2
Kerros 1/1
Keltavuokontie 4 B 7
2h+k+s
, Rivitalo
62 m2
1/1
Keltavuokontie 4 B 7
2h+k+s
, Rivitalo
62 m2
Kerros 1/1
Keltavuokontie 4 B 8
2h+k+s
, Rivitalo
62 m2
1/1
Keltavuokontie 4 B 8
2h+k+s
, Rivitalo
62 m2
Kerros 1/1
Keltavuokontie 4 A 6
2h+kk+s
, Rivitalo
48 m2
2/2
Keltavuokontie 4 A 6
2h+kk+s
, Rivitalo
48 m2
Kerros 2/2
Keltavuokontie 4 A 5
2h+kk+s
, Rivitalo
48 m2
1/2
Keltavuokontie 4 A 5
2h+kk+s
, Rivitalo
48 m2
Kerros 1/2
Keltavuokontie 4 E 25
2h+kk+s
, Rivitalo
53 m2
2/2
Keltavuokontie 4 E 25
2h+kk+s
, Rivitalo
53 m2
Kerros 2/2
Keltavuokontie 4 A 2
2h+kk+s
, Rivitalo
53 m2
2/2
Keltavuokontie 4 A 2
2h+kk+s
, Rivitalo
53 m2
Kerros 2/2
Keltavuokontie 4 A 1
2h+kk+s
, Rivitalo
53 m2
2/2
Keltavuokontie 4 A 1
2h+kk+s
, Rivitalo
53 m2
Kerros 2/2
Keltavuokontie 4 C 12
3h+k+s
, Rivitalo
80 m2
1-2/2
Keltavuokontie 4 C 12
3h+k+s
, Rivitalo
80 m2
Kerros 1-2/2
Keltavuokontie 4 C 13
3h+k+s
, Rivitalo
80 m2
1-2/2
Keltavuokontie 4 C 13
3h+k+s
, Rivitalo
80 m2
Kerros 1-2/2
Keltavuokontie 4 E 24
3h+k+s
, Rivitalo
80 m2
1-2/2
Keltavuokontie 4 E 24
3h+k+s
, Rivitalo
80 m2
Kerros 1-2/2
Keltavuokontie 4 E 23
3h+k+s
, Rivitalo
80 m2
1-2/2
Keltavuokontie 4 E 23
3h+k+s
, Rivitalo
80 m2
Kerros 1-2/2
Keltavuokontie 4 D 17
3h+k+s
, Rivitalo
80 m2
1-2/2
Keltavuokontie 4 D 17
3h+k+s
, Rivitalo
80 m2
Kerros 1-2/2
Keltavuokontie 4 D 18
3h+k+s
, Rivitalo
80 m2
1-2/2
Keltavuokontie 4 D 18
3h+k+s
, Rivitalo
80 m2
Kerros 1-2/2
Keltavuokontie 4 A 3
3h+k+s
, Rivitalo
80 m2
1-2/2
Keltavuokontie 4 A 3
3h+k+s
, Rivitalo
80 m2
Kerros 1-2/2
Keltavuokontie 4 A 4
3h+k+s
, Rivitalo
80 m2
1-2/2
Keltavuokontie 4 A 4
3h+k+s
, Rivitalo
80 m2
Kerros 1-2/2
Keltavuokontie 4 E 22
3h+k+s
, Rivitalo
80.5 m2
1-2/2
Keltavuokontie 4 E 22
3h+k+s
, Rivitalo
80.5 m2
Kerros 1-2/2
Keltavuokontie 4 C 10
3h+k+s
, Rivitalo
80.5 m2
1-2/2
Keltavuokontie 4 C 10
3h+k+s
, Rivitalo
80.5 m2
Kerros 1-2/2
Keltavuokontie 4 C 11
3h+k+s
, Rivitalo
80.5 m2
1-2/2
Keltavuokontie 4 C 11
3h+k+s
, Rivitalo
80.5 m2
Kerros 1-2/2
Keltavuokontie 4 D 15
3h+k+s
, Rivitalo
80.5 m2
1-2/2
Keltavuokontie 4 D 15
3h+k+s
, Rivitalo
80.5 m2
Kerros 1-2/2
Keltavuokontie 4 D 16
3h+k+s
, Rivitalo
80.5 m2
1-2/2
Keltavuokontie 4 D 16
3h+k+s
, Rivitalo
80.5 m2
Kerros 1-2/2
Keltavuokontie 4 D 19
3h+k+s
, Rivitalo
80.5 m2
1-2/2
Keltavuokontie 4 D 19
3h+k+s
, Rivitalo
80.5 m2
Kerros 1-2/2
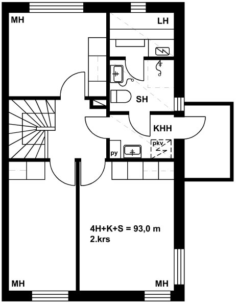
Keltavuokontie 4 C 14
4h+k+s
, Rivitalo
93 m2
1-2/2
Keltavuokontie 4 C 14
4h+k+s
, Rivitalo
93 m2
Kerros 1-2/2
Keltavuokontie 4 E 21
4h+k+s
, Rivitalo
93 m2
1-2/2
Keltavuokontie 4 E 21
4h+k+s
, Rivitalo
93 m2
Kerros 1-2/2
Keltavuokontie 4 D 20
4h+k+s
, Rivitalo
93 m2
1-2/2
Keltavuokontie 4 D 20
4h+k+s
, Rivitalo
93 m2
Kerros 1-2/2