Kohteen esittely
Peippolassa sijaitseva rivitalokohde, jossa valoisat asunnot ja aurinkoiset pihat. Osa huoneistoista on kaksikerroksisia, osa yhdessä tasossa. Kaikissa asunnoissa on oma sauna ja piha. Kohteessa on omatoimiviherhoito.
Läheltä löytyy päiväkodit, koulut ja arjen palvelut kaupoista harrastusmahdollisuuksiin. Porvoon keskustan palvelutkin ovat vain reilun kilometrin päässä.
Miksi Asuntosäätiö?
Me uskomme, että onnellinen koti ja laadukas asuminen kuuluvat kaikille. Emme tavoittele voittoa, vaan käytämme kaikki vastikkeista ja vuokrista saadut tulot toimintamme kehittämiseen. Jo yli 33 000 suomalaista on valinnut Asuntosäätiön tarjoaman kodin. Tiesithän, että myös lemmikit ovat tervetulleita kaikkiin koteihimme!
Rakennuksen tiedot
- Asumismuoto Asokoti
- Keskimääräinen asumisoikeusmaksu / jm² 392,79€
- Hissit Ei
- Talosauna Ei
- Asuntoja 18
- Asuinrakennuksia 4
- Käyttövastike / kk / jm² 12,82€
- Valmistumisvuosi 2005
- Energialuokka D
- Lämmitysmuoto Kauko
- Autopaikat 20
- Laajakaista DNA 4G
- Antennijärjestelmä Kaapeli
- KaapeliTV Telia
- Kattomateriaali Tiili
- Runkomateriaali Puu
- Lemmikit Sallittu
Huoneistot ja pohjakuvat: Pohjoispellontie 1, Rivitalo
Lisää hakemukselle kaikki haluamasi asuntotyypit. Mahdollisuutesi asunnon saamiseksi paranevat, kun voimme tarjota sinulle kaikkia valitsemasi asuntotyypin asuntoja, jotka mahdollisesti vapautuvat myöhemmin tästä kohteesta. Olet automaattisesti näiden asuntotyyppien hakuprosessissa.
Pohjoispellontie 1 A 2
2h+k+s
, Rivitalo
63.5 m2
1/1
Pohjoispellontie 1 A 2
2h+k+s
, Rivitalo
63.5 m2
Kerros 1/1
Pohjoispellontie 1 A 3
2h+k+s
, Rivitalo
63.5 m2
1/1
Pohjoispellontie 1 A 3
2h+k+s
, Rivitalo
63.5 m2
Kerros 1/1
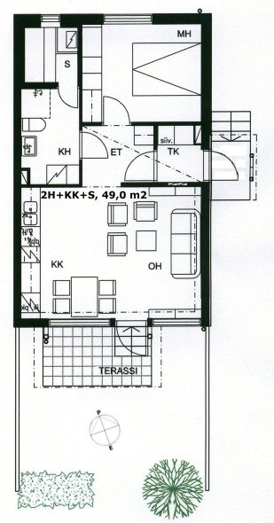
Pohjoispellontie 1 A 1
2h+kk+s
, Rivitalo
49 m2
1/1
Pohjoispellontie 1 A 1
2h+kk+s
, Rivitalo
49 m2
Kerros 1/1
Pohjoispellontie 1 A 4
2h+kk+s
, Rivitalo
49 m2
1/1
Pohjoispellontie 1 A 4
2h+kk+s
, Rivitalo
49 m2
Kerros 1/1
Pohjoispellontie 1 B 6
3h+k+s
, Rivitalo
83 m2
1-2/2
Pohjoispellontie 1 B 6
3h+k+s
, Rivitalo
83 m2
Kerros 1-2/2
Pohjoispellontie 1 C 10
3h+k+s
, Rivitalo
83 m2
1-2/2
Pohjoispellontie 1 C 10
3h+k+s
, Rivitalo
83 m2
Kerros 1-2/2
Pohjoispellontie 1 D 16
3h+k+s
, Rivitalo
83 m2
1-2/1
Pohjoispellontie 1 D 16
3h+k+s
, Rivitalo
83 m2
Kerros 1-2/1
Pohjoispellontie 1 C 11
3h+k+s
, Rivitalo
83.5 m2
1-2/2
Pohjoispellontie 1 C 11
3h+k+s
, Rivitalo
83.5 m2
Kerros 1-2/2
Pohjoispellontie 1 C 12
3h+k+s
, Rivitalo
83.5 m2
1-2/2
Pohjoispellontie 1 C 12
3h+k+s
, Rivitalo
83.5 m2
Kerros 1-2/2
Pohjoispellontie 1 D 17
3h+k+s
, Rivitalo
83.5 m2
1-2/1
Pohjoispellontie 1 D 17
3h+k+s
, Rivitalo
83.5 m2
Kerros 1-2/1
Pohjoispellontie 1 B 5
3h+k+s
, Rivitalo
84.5 m2
1-2/2
Pohjoispellontie 1 B 5
3h+k+s
, Rivitalo
84.5 m2
Kerros 1-2/2
Pohjoispellontie 1 B 7
3h+k+s
, Rivitalo
84.5 m2
1-2/2
Pohjoispellontie 1 B 7
3h+k+s
, Rivitalo
84.5 m2
Kerros 1-2/2
Pohjoispellontie 1 C 13
3h+k+s
, Rivitalo
84.5 m2
1-2/2
Pohjoispellontie 1 C 13
3h+k+s
, Rivitalo
84.5 m2
Kerros 1-2/2
Pohjoispellontie 1 D 18
3h+k+s
, Rivitalo
84.5 m2
1-2/1
Pohjoispellontie 1 D 18
3h+k+s
, Rivitalo
84.5 m2
Kerros 1-2/1
Pohjoispellontie 1 C 9
4h+k+s
, Rivitalo
95.5 m2
1-2/2
Pohjoispellontie 1 C 9
4h+k+s
, Rivitalo
95.5 m2
Kerros 1-2/2
Pohjoispellontie 1 D 15
4h+k+s
, Rivitalo
95.5 m2
1-2/1
Pohjoispellontie 1 D 15
4h+k+s
, Rivitalo
95.5 m2
Kerros 1-2/1
Pohjoispellontie 1 C 8
4h+k+s
, Rivitalo
97 m2
1-2/2
Pohjoispellontie 1 C 8
4h+k+s
, Rivitalo
97 m2
Kerros 1-2/2
Pohjoispellontie 1 D 14
4h+k+s
, Rivitalo
97 m2
1-2/1
Pohjoispellontie 1 D 14
4h+k+s
, Rivitalo
97 m2
Kerros 1-2/1