Kohteen esittely
Härmälässä Partolakeskuksen ja Tampereen messu-ja urheilukeskuksen läheisyydessä sijaitseva 2:sta talosta koostuva yhtiö. Asukkaiden käytössä talopesula ja kuivaushuoneet. Kesällä asukkaille myös soutuvene Pyhäjärven rannassa.
Miksi Asuntosäätiö?
Me uskomme, että onnellinen koti ja laadukas asuminen kuuluvat kaikille. Emme tavoittele voittoa, vaan käytämme kaikki vastikkeista ja vuokrista saadut tulot toimintamme kehittämiseen. Jo yli 33 000 suomalaista on valinnut Asuntosäätiön tarjoaman kodin. Tiesithän, että myös lemmikit ovat tervetulleita kaikkiin koteihimme!
Rakennuksen tiedot
- Asumismuoto Asokoti
- Keskimääräinen asumisoikeusmaksu / jm² 325,48€
- Hissit 2
- Talosauna Ei
- Pyykkitupa Kyllä
- Kuivaushuone Kyllä
- Asuntoja 78
- Asuinrakennuksia 2
- Käyttövastike / kk / jm² 12,05€
- Valmistumisvuosi 2000
- Porrashuoneet 2
- Energialuokka E
- Lämmitysmuoto Kauko
- Autopaikat 62
- Kerhohuone 1
- Laajakaista Elisa
- Antennijärjestelmä Kaapeli
- KaapeliTV Elisa
- Kattomateriaali Huopa
- Runkomateriaali Betoni
- Lemmikit Sallittu
Huoneistot ja pohjakuvat: Perkiönkatu 64, Kerrostalo, Piharakennus
Lisää hakemukselle kaikki haluamasi asuntotyypit. Mahdollisuutesi asunnon saamiseksi paranevat, kun voimme tarjota sinulle kaikkia valitsemasi asuntotyypin asuntoja, jotka mahdollisesti vapautuvat myöhemmin tästä kohteesta. Olet automaattisesti näiden asuntotyyppien hakuprosessissa.
Perkiönkatu 64 A 25
1h+tk+s
, Kerrostalo
37.5 m2
4/6
Perkiönkatu 64 A 25
1h+tk+s
, Kerrostalo
37.5 m2
Kerros 4/6
Perkiönkatu 64 A 11
1h+tk+s
, Kerrostalo
37.5 m2
/6
Perkiönkatu 64 A 11
1h+tk+s
, Kerrostalo
37.5 m2
Kerros /6
Perkiönkatu 64 A 18
1h+tk+s
, Kerrostalo
37.5 m2
/6
Perkiönkatu 64 A 18
1h+tk+s
, Kerrostalo
37.5 m2
Kerros /6
Perkiönkatu 64 A 39
1h+tk+s
, Kerrostalo
37.5 m2
6./6
Perkiönkatu 64 A 39
1h+tk+s
, Kerrostalo
37.5 m2
Kerros 6./6
Perkiönkatu 64 A 32
1h+tk+s
, Kerrostalo
37.5 m2
5/6
Perkiönkatu 64 A 32
1h+tk+s
, Kerrostalo
37.5 m2
Kerros 5/6
Perkiönkatu 64 B 78
1h+tk+s
, Kerrostalo
37.5 m2
6/6
Perkiönkatu 64 B 78
1h+tk+s
, Kerrostalo
37.5 m2
Kerros 6/6
Perkiönkatu 64 B 71
1h+tk+s
, Kerrostalo
37.5 m2
5/6
Perkiönkatu 64 B 71
1h+tk+s
, Kerrostalo
37.5 m2
Kerros 5/6
Perkiönkatu 64 B 57
1h+tk+s
, Kerrostalo
37.5 m2
3/6
Perkiönkatu 64 B 57
1h+tk+s
, Kerrostalo
37.5 m2
Kerros 3/6
Perkiönkatu 64 B 50
1h+tk+s
, Kerrostalo
37.5 m2
2/6
Perkiönkatu 64 B 50
1h+tk+s
, Kerrostalo
37.5 m2
Kerros 2/6
Perkiönkatu 64 B 64
1h+tk+s
, Kerrostalo
37.5 m2
4/6
Perkiönkatu 64 B 64
1h+tk+s
, Kerrostalo
37.5 m2
Kerros 4/6
Perkiönkatu 64 A 36
2h+kk+s
, Kerrostalo
45.5 m2
/6
Perkiönkatu 64 A 36
2h+kk+s
, Kerrostalo
45.5 m2
Kerros /6
Perkiönkatu 64 A 15
2h+kk+s
, Kerrostalo
45.5 m2
3/6
Perkiönkatu 64 A 15
2h+kk+s
, Kerrostalo
45.5 m2
Kerros 3/6
Perkiönkatu 64 A 8
2h+kk+s
, Kerrostalo
45.5 m2
/6
Perkiönkatu 64 A 8
2h+kk+s
, Kerrostalo
45.5 m2
Kerros /6
Perkiönkatu 64 A 21
2h+kk+s
, Kerrostalo
45.5 m2
4/6
Perkiönkatu 64 A 21
2h+kk+s
, Kerrostalo
45.5 m2
Kerros 4/6
Perkiönkatu 64 A 2
2h+kk+s
, Kerrostalo
45.5 m2
1/6
Perkiönkatu 64 A 2
2h+kk+s
, Kerrostalo
45.5 m2
Kerros 1/6
Perkiönkatu 64 A 35
2h+kk+s
, Kerrostalo
45.5 m2
/6
Perkiönkatu 64 A 35
2h+kk+s
, Kerrostalo
45.5 m2
Kerros /6
Perkiönkatu 64 A 22
2h+kk+s
, Kerrostalo
45.5 m2
4/6
Perkiönkatu 64 A 22
2h+kk+s
, Kerrostalo
45.5 m2
Kerros 4/6
Perkiönkatu 64 A 29
2h+kk+s
, Kerrostalo
45.5 m2
/6
Perkiönkatu 64 A 29
2h+kk+s
, Kerrostalo
45.5 m2
Kerros /6
Perkiönkatu 64 A 7
2h+kk+s
, Kerrostalo
45.5 m2
2/6
Perkiönkatu 64 A 7
2h+kk+s
, Kerrostalo
45.5 m2
Kerros 2/6
Perkiönkatu 64 A 3
2h+kk+s
, Kerrostalo
45.5 m2
1/6
Perkiönkatu 64 A 3
2h+kk+s
, Kerrostalo
45.5 m2
Kerros 1/6
Perkiönkatu 64 A 14
2h+kk+s
, Kerrostalo
45.5 m2
3/6
Perkiönkatu 64 A 14
2h+kk+s
, Kerrostalo
45.5 m2
Kerros 3/6
Perkiönkatu 64 A 28
2h+kk+s
, Kerrostalo
45.5 m2
5/6
Perkiönkatu 64 A 28
2h+kk+s
, Kerrostalo
45.5 m2
Kerros 5/6
Perkiönkatu 64 B 60
2h+kk+s
, Kerrostalo
45.5 m2
4/6
Perkiönkatu 64 B 60
2h+kk+s
, Kerrostalo
45.5 m2
Kerros 4/6
Perkiönkatu 64 B 53
2h+kk+s
, Kerrostalo
45.5 m2
3/6
Perkiönkatu 64 B 53
2h+kk+s
, Kerrostalo
45.5 m2
Kerros 3/6
Perkiönkatu 64 B 61
2h+kk+s
, Kerrostalo
45.5 m2
4/6
Perkiönkatu 64 B 61
2h+kk+s
, Kerrostalo
45.5 m2
Kerros 4/6
Perkiönkatu 64 B 74
2h+kk+s
, Kerrostalo
45.5 m2
6/6
Perkiönkatu 64 B 74
2h+kk+s
, Kerrostalo
45.5 m2
Kerros 6/6
Perkiönkatu 64 B 54
2h+kk+s
, Kerrostalo
45.5 m2
3/6
Perkiönkatu 64 B 54
2h+kk+s
, Kerrostalo
45.5 m2
Kerros 3/6
Perkiönkatu 64 B 47
2h+kk+s
, Kerrostalo
45.5 m2
2/6
Perkiönkatu 64 B 47
2h+kk+s
, Kerrostalo
45.5 m2
Kerros 2/6
Perkiönkatu 64 B 42
2h+kk+s
, Kerrostalo
45.5 m2
1/6
Perkiönkatu 64 B 42
2h+kk+s
, Kerrostalo
45.5 m2
Kerros 1/6
Perkiönkatu 64 B 46
2h+kk+s
, Kerrostalo
45.5 m2
2/6
Perkiönkatu 64 B 46
2h+kk+s
, Kerrostalo
45.5 m2
Kerros 2/6
Perkiönkatu 64 B 68
2h+kk+s
, Kerrostalo
45.5 m2
5/6
Perkiönkatu 64 B 68
2h+kk+s
, Kerrostalo
45.5 m2
Kerros 5/6
Perkiönkatu 64 B 75
2h+kk+s
, Kerrostalo
45.5 m2
6/6
Perkiönkatu 64 B 75
2h+kk+s
, Kerrostalo
45.5 m2
Kerros 6/6
Perkiönkatu 64 B 41
2h+kk+s
, Kerrostalo
45.5 m2
1/6
Perkiönkatu 64 B 41
2h+kk+s
, Kerrostalo
45.5 m2
Kerros 1/6
Perkiönkatu 64 B 67
2h+kk+s
, Kerrostalo
45.5 m2
5/6
Perkiönkatu 64 B 67
2h+kk+s
, Kerrostalo
45.5 m2
Kerros 5/6
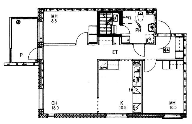
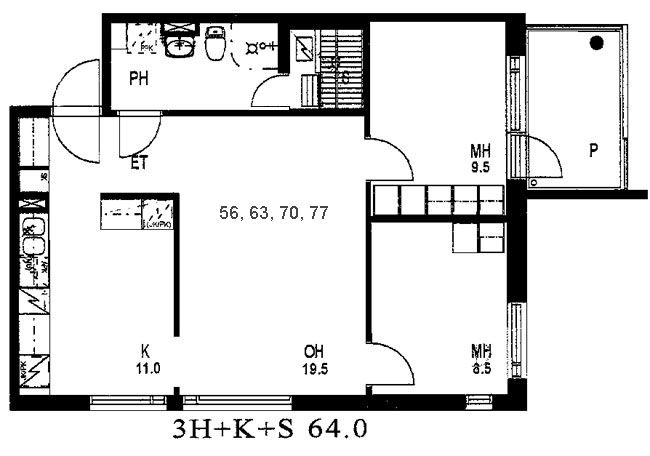
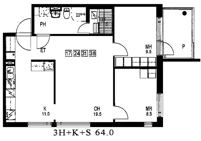
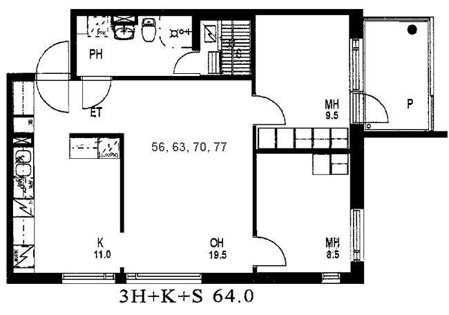
Perkiönkatu 64 A 17
3h+k+s
, Kerrostalo
64 m2
3/6
Perkiönkatu 64 A 17
3h+k+s
, Kerrostalo
64 m2
Kerros 3/6
Perkiönkatu 64 A 31
3h+k+s
, Kerrostalo
64 m2
5/6
Perkiönkatu 64 A 31
3h+k+s
, Kerrostalo
64 m2
Kerros 5/6
Perkiönkatu 64 A 38
3h+k+s
, Kerrostalo
64 m2
6/6
Perkiönkatu 64 A 38
3h+k+s
, Kerrostalo
64 m2
Kerros 6/6
Perkiönkatu 64 A 24
3h+k+s
, Kerrostalo
64 m2
4/6
Perkiönkatu 64 A 24
3h+k+s
, Kerrostalo
64 m2
Kerros 4/6
Perkiönkatu 64 A 10
3h+k+s
, Kerrostalo
64 m2
2/6
Perkiönkatu 64 A 10
3h+k+s
, Kerrostalo
64 m2
Kerros 2/6
Perkiönkatu 64 B 49
3h+k+s
, Kerrostalo
64 m2
2/6
Perkiönkatu 64 B 49
3h+k+s
, Kerrostalo
64 m2
Kerros 2/6
Perkiönkatu 64 B 56
3h+k+s
, Kerrostalo
64 m2
3/6
Perkiönkatu 64 B 56
3h+k+s
, Kerrostalo
64 m2
Kerros 3/6
Perkiönkatu 64 B 70
3h+k+s
, Kerrostalo
64 m2
5/6
Perkiönkatu 64 B 70
3h+k+s
, Kerrostalo
64 m2
Kerros 5/6
Perkiönkatu 64 B 77
3h+k+s
, Kerrostalo
64 m2
6/6
Perkiönkatu 64 B 77
3h+k+s
, Kerrostalo
64 m2
Kerros 6/6
Perkiönkatu 64 B 63
3h+k+s
, Kerrostalo
64 m2
4/6
Perkiönkatu 64 B 63
3h+k+s
, Kerrostalo
64 m2
Kerros 4/6
Perkiönkatu 64 A 5
3h+k+s
, Kerrostalo
67 m2
/6
Perkiönkatu 64 A 5
3h+k+s
, Kerrostalo
67 m2
Kerros /6
Perkiönkatu 64 B 44
3h+k+s
, Kerrostalo
67 m2
2/6
Perkiönkatu 64 B 44
3h+k+s
, Kerrostalo
67 m2
Kerros 2/6
Perkiönkatu 64 A 13
3h+k+s
, Kerrostalo
67.5 m2
3/6
Perkiönkatu 64 A 13
3h+k+s
, Kerrostalo
67.5 m2
Kerros 3/6
Perkiönkatu 64 A 30
3h+k+s
, Kerrostalo
67.5 m2
4/6
Perkiönkatu 64 A 30
3h+k+s
, Kerrostalo
67.5 m2
Kerros 4/6
Perkiönkatu 64 A 27
3h+k+s
, Kerrostalo
67.5 m2
/6
Perkiönkatu 64 A 27
3h+k+s
, Kerrostalo
67.5 m2
Kerros /6
Perkiönkatu 64 A 20
3h+k+s
, Kerrostalo
67.5 m2
4/6
Perkiönkatu 64 A 20
3h+k+s
, Kerrostalo
67.5 m2
Kerros 4/6
Perkiönkatu 64 A 34
3h+k+s
, Kerrostalo
67.5 m2
/6
Perkiönkatu 64 A 34
3h+k+s
, Kerrostalo
67.5 m2
Kerros /6
Perkiönkatu 64 A 37
3h+k+s
, Kerrostalo
67.5 m2
6/6
Perkiönkatu 64 A 37
3h+k+s
, Kerrostalo
67.5 m2
Kerros 6/6
Perkiönkatu 64 A 23
3h+k+s
, Kerrostalo
67.5 m2
/6
Perkiönkatu 64 A 23
3h+k+s
, Kerrostalo
67.5 m2
Kerros /6
Perkiönkatu 64 A 6
3h+k+s
, Kerrostalo
67.5 m2
/6
Perkiönkatu 64 A 6
3h+k+s
, Kerrostalo
67.5 m2
Kerros /6
Perkiönkatu 64 A 16
3h+k+s
, Kerrostalo
67.5 m2
3/6
Perkiönkatu 64 A 16
3h+k+s
, Kerrostalo
67.5 m2
Kerros 3/6
Perkiönkatu 64 A 1
3h+k+s
, Kerrostalo
67.5 m2
1/6
Perkiönkatu 64 A 1
3h+k+s
, Kerrostalo
67.5 m2
Kerros 1/6
Perkiönkatu 64 A 4
3h+k+s
, Kerrostalo
67.5 m2
1./6
Perkiönkatu 64 A 4
3h+k+s
, Kerrostalo
67.5 m2
Kerros 1./6
Perkiönkatu 64 A 9
3h+k+s
, Kerrostalo
67.5 m2
/6
Perkiönkatu 64 A 9
3h+k+s
, Kerrostalo
67.5 m2
Kerros /6
Perkiönkatu 64 B 55
3h+k+s
, Kerrostalo
67.5 m2
3/6
Perkiönkatu 64 B 55
3h+k+s
, Kerrostalo
67.5 m2
Kerros 3/6
Perkiönkatu 64 B 69
3h+k+s
, Kerrostalo
67.5 m2
5/6
Perkiönkatu 64 B 69
3h+k+s
, Kerrostalo
67.5 m2
Kerros 5/6
Perkiönkatu 64 B 40
3h+k+s
, Kerrostalo
67.5 m2
1/6
Perkiönkatu 64 B 40
3h+k+s
, Kerrostalo
67.5 m2
Kerros 1/6
Perkiönkatu 64 B 62
3h+k+s
, Kerrostalo
67.5 m2
4/6
Perkiönkatu 64 B 62
3h+k+s
, Kerrostalo
67.5 m2
Kerros 4/6
Perkiönkatu 64 B 66
3h+k+s
, Kerrostalo
67.5 m2
5/6
Perkiönkatu 64 B 66
3h+k+s
, Kerrostalo
67.5 m2
Kerros 5/6
Perkiönkatu 64 B 45
3h+k+s
, Kerrostalo
67.5 m2
2/6
Perkiönkatu 64 B 45
3h+k+s
, Kerrostalo
67.5 m2
Kerros 2/6
Perkiönkatu 64 B 48
3h+k+s
, Kerrostalo
67.5 m2
2/6
Perkiönkatu 64 B 48
3h+k+s
, Kerrostalo
67.5 m2
Kerros 2/6
Perkiönkatu 64 B 43
3h+k+s
, Kerrostalo
67.5 m2
1/6
Perkiönkatu 64 B 43
3h+k+s
, Kerrostalo
67.5 m2
Kerros 1/6
Perkiönkatu 64 B 52
3h+k+s
, Kerrostalo
67.5 m2
3/6
Perkiönkatu 64 B 52
3h+k+s
, Kerrostalo
67.5 m2
Kerros 3/6
Perkiönkatu 64 B 73
3h+k+s
, Kerrostalo
67.5 m2
6/6
Perkiönkatu 64 B 73
3h+k+s
, Kerrostalo
67.5 m2
Kerros 6/6
Perkiönkatu 64 B 59
3h+k+s
, Kerrostalo
67.5 m2
4/6
Perkiönkatu 64 B 59
3h+k+s
, Kerrostalo
67.5 m2
Kerros 4/6
Perkiönkatu 64 B 76
3h+k+s
, Kerrostalo
67.5 m2
6/6
Perkiönkatu 64 B 76
3h+k+s
, Kerrostalo
67.5 m2
Kerros 6/6
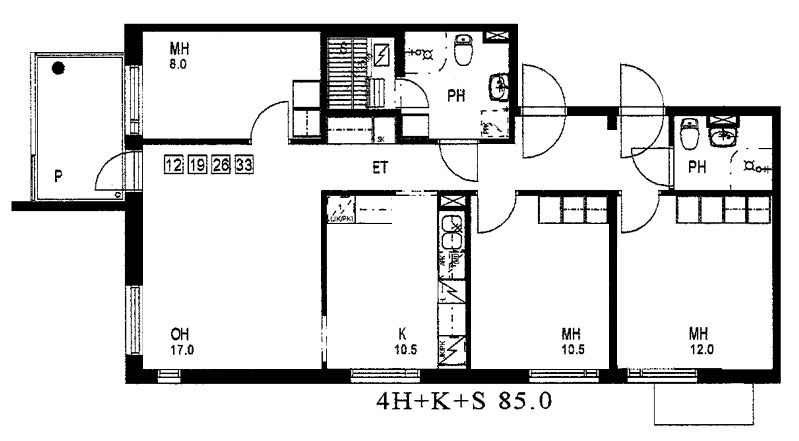
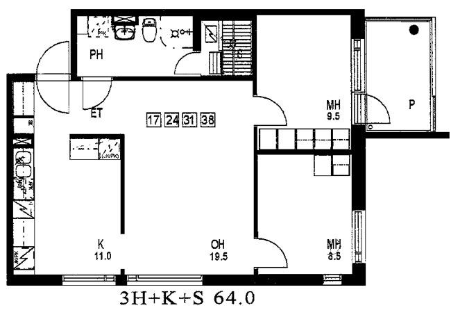
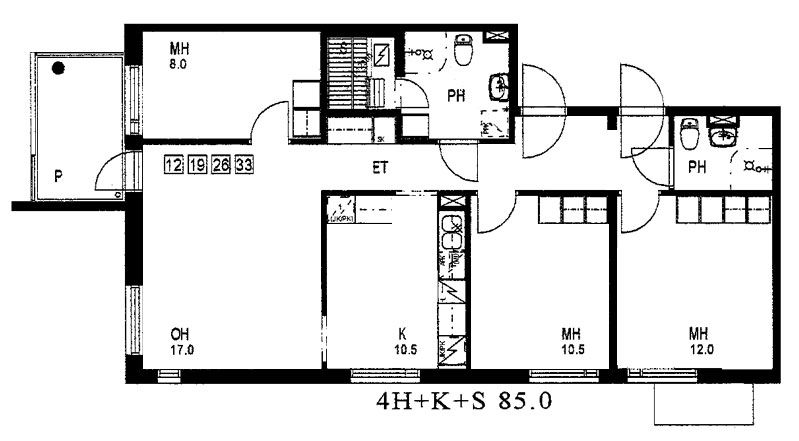
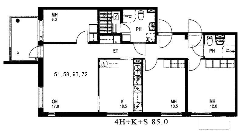
Perkiönkatu 64 A 19
4h+k+s
, Kerrostalo
85 m2
4/6
Perkiönkatu 64 A 19
4h+k+s
, Kerrostalo
85 m2
Kerros 4/6
Perkiönkatu 64 A 12
4h+k+s
, Kerrostalo
85 m2
3/6
Perkiönkatu 64 A 12
4h+k+s
, Kerrostalo
85 m2
Kerros 3/6
Perkiönkatu 64 A 26
4h+k+s
, Kerrostalo
85 m2
/6
Perkiönkatu 64 A 26
4h+k+s
, Kerrostalo
85 m2
Kerros /6
Perkiönkatu 64 B 58
4h+k+s
, Kerrostalo
85 m2
4/6
Perkiönkatu 64 B 58
4h+k+s
, Kerrostalo
85 m2
Kerros 4/6
Perkiönkatu 64 B 72
4h+k+s
, Kerrostalo
85 m2
6/6
Perkiönkatu 64 B 72
4h+k+s
, Kerrostalo
85 m2
Kerros 6/6


