Kohteen esittely
Miksi Asuntosäätiö?
Me uskomme, että onnellinen koti ja laadukas asuminen kuuluvat kaikille. Emme tavoittele voittoa, vaan käytämme kaikki vastikkeista ja vuokrista saadut tulot toimintamme kehittämiseen. Jo yli 33 000 suomalaista on valinnut Asuntosäätiön tarjoaman kodin. Tiesithän, että myös lemmikit ovat tervetulleita kaikkiin koteihimme!
Rakennuksen tiedot
- Asumismuoto Asokoti
- Keskimääräinen asumisoikeusmaksu / jm² 306,21€
- Hissit Ei
- Talosauna Ei
- Asuntoja 16
- Asuinrakennuksia 3
- Käyttövastike / kk / jm² 13,02€
- Valmistumisvuosi 1997
- Energialuokka D
- Lämmitysmuoto Kauko
- Autopaikat 17
- Laajakaista Elisa
- Antennijärjestelmä Kaapeli
- KaapeliTV Elisa
- Kattomateriaali Tiili
- Runkomateriaali Puu
- Lemmikit Sallittu
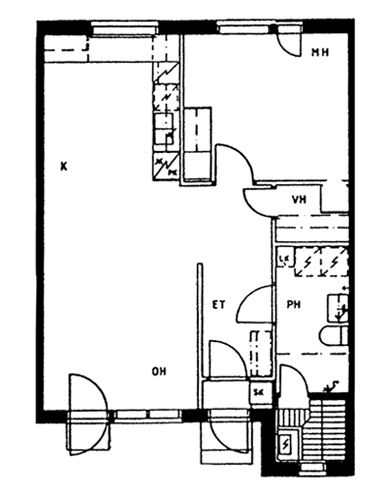
Huoneistot ja pohjakuvat: Hussankatu 19, Rivitalo, Piharakennus
Lisää hakemukselle kaikki haluamasi asuntotyypit. Mahdollisuutesi asunnon saamiseksi paranevat, kun voimme tarjota sinulle kaikkia valitsemasi asuntotyypin asuntoja, jotka mahdollisesti vapautuvat myöhemmin tästä kohteesta. Olet automaattisesti näiden asuntotyyppien hakuprosessissa.
Hussankatu 19 B 6
1h+k+s
, Rivitalo
42 m2
/1
Hussankatu 19 B 6
1h+k+s
, Rivitalo
42 m2
Kerros /1
Hussankatu 19 C 12
1h+tk+s
, Rivitalo
42 m2
/1
Hussankatu 19 C 12
1h+tk+s
, Rivitalo
42 m2
Kerros /1
Hussankatu 19 C 16
1h+tk+s
, Rivitalo
42 m2
/1
Hussankatu 19 C 16
1h+tk+s
, Rivitalo
42 m2
Kerros /1
Hussankatu 19 B 11
1h+tk+s
, Rivitalo
42 m2
/1
Hussankatu 19 B 11
1h+tk+s
, Rivitalo
42 m2
Kerros /1
Hussankatu 19 B 10
2h+k+s
, Rivitalo
53 m2
1/1
Hussankatu 19 B 10
2h+k+s
, Rivitalo
53 m2
Kerros 1/1
Hussankatu 19 B 9
2h+k+s
, Rivitalo
53 m2
/1
Hussankatu 19 B 9
2h+k+s
, Rivitalo
53 m2
Kerros /1
Hussankatu 19 B 7
2h+k+s
, Rivitalo
53 m2
1. krs/1
Hussankatu 19 B 7
2h+k+s
, Rivitalo
53 m2
Kerros 1. krs/1
Hussankatu 19 B 8
2h+k+s
, Rivitalo
53 m2
/1
Hussankatu 19 B 8
2h+k+s
, Rivitalo
53 m2
Kerros /1
Hussankatu 19 C 13
2h+k+s
, Rivitalo
57.5 m2
/1
Hussankatu 19 C 13
2h+k+s
, Rivitalo
57.5 m2
Kerros /1
Hussankatu 19 C 14
2h+k+s
, Rivitalo
57.5 m2
/1
Hussankatu 19 C 14
2h+k+s
, Rivitalo
57.5 m2
Kerros /1
Hussankatu 19 C 15
2h+k+s
, Rivitalo
57.5 m2
/1
Hussankatu 19 C 15
2h+k+s
, Rivitalo
57.5 m2
Kerros /1
Hussankatu 19 A 5
3h+k+s
, Rivitalo
77 m2
/2
Hussankatu 19 A 5
3h+k+s
, Rivitalo
77 m2
Kerros /2
Hussankatu 19 A 1
3h+k+s
, Rivitalo
77 m2
/2
Hussankatu 19 A 1
3h+k+s
, Rivitalo
77 m2
Kerros /2
Hussankatu 19 A 4
3h+k+s
, Rivitalo
77.5 m2
/2
Hussankatu 19 A 4
3h+k+s
, Rivitalo
77.5 m2
Kerros /2
Hussankatu 19 A 3
4h+k+s
, Rivitalo
90 m2
/2
Hussankatu 19 A 3
4h+k+s
, Rivitalo
90 m2
Kerros /2
Hussankatu 19 A 2
4h+k+s
, Rivitalo
90 m2
/2
Hussankatu 19 A 2
4h+k+s
, Rivitalo
90 m2
Kerros /2