Kohteen esittely
Miksi Asuntosäätiö?
Me uskomme, että onnellinen koti ja laadukas asuminen kuuluvat kaikille. Emme tavoittele voittoa, vaan käytämme kaikki vastikkeista ja vuokrista saadut tulot toimintamme kehittämiseen. Jo yli 33 000 suomalaista on valinnut Asuntosäätiön tarjoaman kodin. Tiesithän, että myös lemmikit ovat tervetulleita kaikkiin koteihimme!
Rakennuksen tiedot
- Asumismuoto Asokoti
- Keskimääräinen asumisoikeusmaksu / jm² 332,12€
- Hissit 1
- Talosauna Ei
- Kuivaushuone Kyllä
- Asuntoja 30
- Asuinrakennuksia 1
- Käyttövastike / kk / jm² 14,55€
- Valmistumisvuosi 1996
- Porrashuoneet 1
- Energialuokka E
- Lämmitysmuoto Kauko
- Autopaikat 30
- Kerhohuone 1
- Laajakaista Elisa
- Antennijärjestelmä Kaapeli
- KaapeliTV Elisa
- Kattomateriaali Pelti
- Runkomateriaali Betoni
- Lemmikit Sallittu
Huoneistot ja pohjakuvat: Lapinniemenranta 16, Piharakennus, Kerrostalo
Lisää hakemukselle kaikki haluamasi asuntotyypit. Mahdollisuutesi asunnon saamiseksi paranevat, kun voimme tarjota sinulle kaikkia valitsemasi asuntotyypin asuntoja, jotka mahdollisesti vapautuvat myöhemmin tästä kohteesta. Olet automaattisesti näiden asuntotyyppien hakuprosessissa.
Lapinniemenranta 16 A 15
1h+tk+s
, Kerrostalo
42.5 m2
4/9
Lapinniemenranta 16 A 15
1h+tk+s
, Kerrostalo
42.5 m2
Kerros 4/9
Lapinniemenranta 16 A 7
1h+tk+s
, Kerrostalo
42.5 m2
2/9
Lapinniemenranta 16 A 7
1h+tk+s
, Kerrostalo
42.5 m2
Kerros 2/9
Lapinniemenranta 16 A 3
1h+tk+s
, Kerrostalo
42.5 m2
1/9
Lapinniemenranta 16 A 3
1h+tk+s
, Kerrostalo
42.5 m2
Kerros 1/9
Lapinniemenranta 16 A 11
1h+tk+s
, Kerrostalo
42.5 m2
3/9
Lapinniemenranta 16 A 11
1h+tk+s
, Kerrostalo
42.5 m2
Kerros 3/9
Lapinniemenranta 16 A 27
1h+tk+s
, Kerrostalo
42.5 m2
7/9
Lapinniemenranta 16 A 27
1h+tk+s
, Kerrostalo
42.5 m2
Kerros 7/9
Lapinniemenranta 16 A 19
1h+tk+s
, Kerrostalo
42.5 m2
5/9
Lapinniemenranta 16 A 19
1h+tk+s
, Kerrostalo
42.5 m2
Kerros 5/9
Lapinniemenranta 16 A 23
1h+tk+s
, Kerrostalo
42.5 m2
6/9
Lapinniemenranta 16 A 23
1h+tk+s
, Kerrostalo
42.5 m2
Kerros 6/9
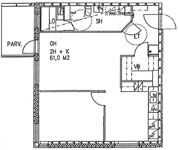
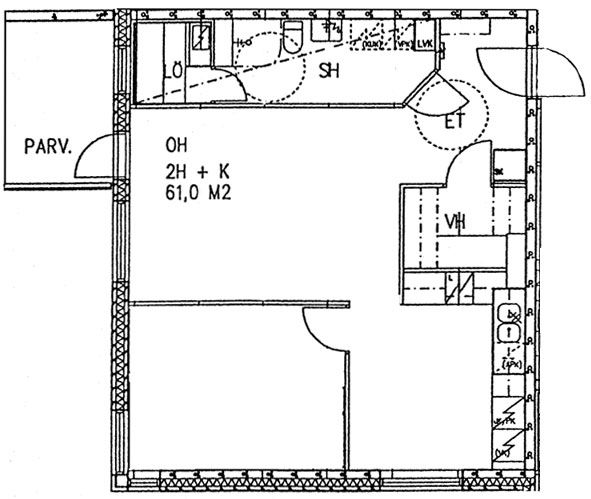
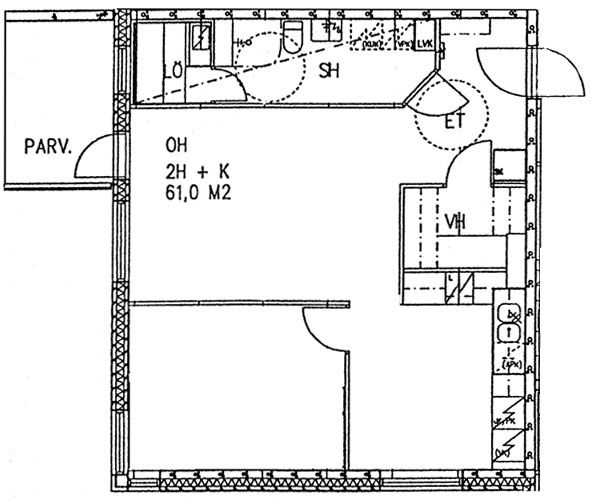
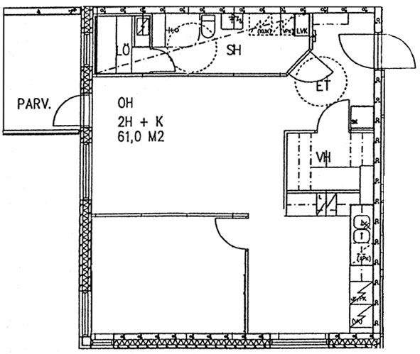
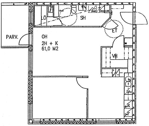
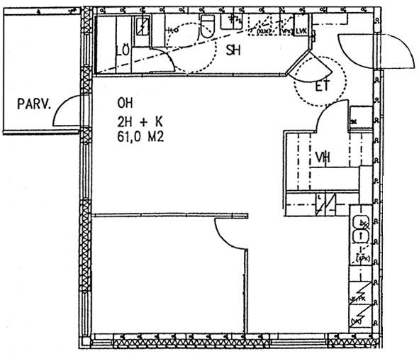
Lapinniemenranta 16 A 2
2h+k+s
, Kerrostalo
61 m2
1/9
Lapinniemenranta 16 A 2
2h+k+s
, Kerrostalo
61 m2
Kerros 1/9
Lapinniemenranta 16 A 26
2h+k+s
, Kerrostalo
61 m2
7/9
Lapinniemenranta 16 A 26
2h+k+s
, Kerrostalo
61 m2
Kerros 7/9
Lapinniemenranta 16 A 22
2h+k+s
, Kerrostalo
61 m2
6/9
Lapinniemenranta 16 A 22
2h+k+s
, Kerrostalo
61 m2
Kerros 6/9
Lapinniemenranta 16 A 10
2h+k+s
, Kerrostalo
61 m2
3/9
Lapinniemenranta 16 A 10
2h+k+s
, Kerrostalo
61 m2
Kerros 3/9
Lapinniemenranta 16 A 18
2h+k+s
, Kerrostalo
61 m2
5/9
Lapinniemenranta 16 A 18
2h+k+s
, Kerrostalo
61 m2
Kerros 5/9
Lapinniemenranta 16 A 6
2h+k+s
, Kerrostalo
61 m2
2/9
Lapinniemenranta 16 A 6
2h+k+s
, Kerrostalo
61 m2
Kerros 2/9
Lapinniemenranta 16 A 14
2h+k+s
, Kerrostalo
61 m2
4/9
Lapinniemenranta 16 A 14
2h+k+s
, Kerrostalo
61 m2
Kerros 4/9
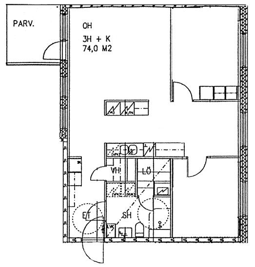
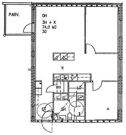
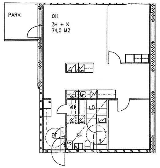
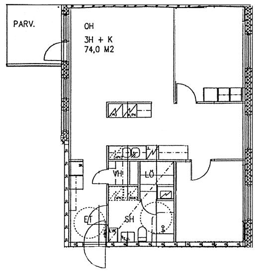
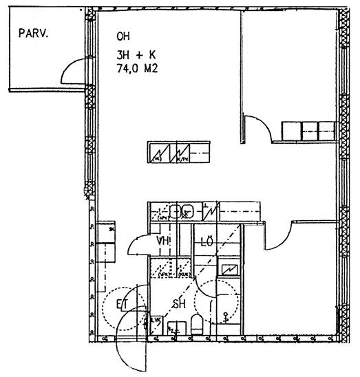
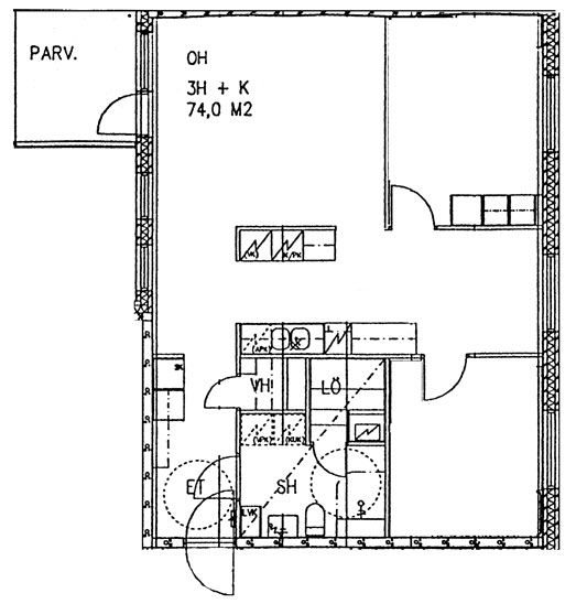
Lapinniemenranta 16 A 20
3h+k+s
, Kerrostalo
74 m2
5/9
Lapinniemenranta 16 A 20
3h+k+s
, Kerrostalo
74 m2
Kerros 5/9
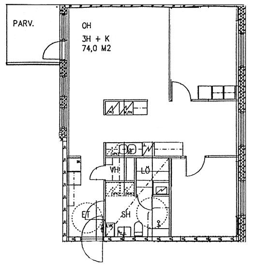
Lapinniemenranta 16 A 16
3h+k+s
, Kerrostalo
74 m2
4/9
Lapinniemenranta 16 A 16
3h+k+s
, Kerrostalo
74 m2
Kerros 4/9
Lapinniemenranta 16 A 24
3h+k+s
, Kerrostalo
74 m2
6/9
Lapinniemenranta 16 A 24
3h+k+s
, Kerrostalo
74 m2
Kerros 6/9
Lapinniemenranta 16 A 8
3h+k+s
, Kerrostalo
74 m2
2. krs/9
Lapinniemenranta 16 A 8
3h+k+s
, Kerrostalo
74 m2
Kerros 2. krs/9
Lapinniemenranta 16 A 4
3h+k+s
, Kerrostalo
74 m2
1/9
Lapinniemenranta 16 A 4
3h+k+s
, Kerrostalo
74 m2
Kerros 1/9
Lapinniemenranta 16 A 12
3h+k+s
, Kerrostalo
74 m2
3/9
Lapinniemenranta 16 A 12
3h+k+s
, Kerrostalo
74 m2
Kerros 3/9
Lapinniemenranta 16 A 30
3h+k+s
, Kerrostalo
74 m2
8/9
Lapinniemenranta 16 A 30
3h+k+s
, Kerrostalo
74 m2
Kerros 8/9
Lapinniemenranta 16 A 28
3h+k+s
, Kerrostalo
74 m2
7/9
Lapinniemenranta 16 A 28
3h+k+s
, Kerrostalo
74 m2
Kerros 7/9
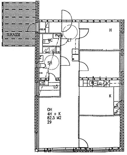
Lapinniemenranta 16 A 29
3h+k+s
, Kerrostalo
82.5 m2
8/9
Lapinniemenranta 16 A 29
3h+k+s
, Kerrostalo
82.5 m2
Kerros 8/9
Lapinniemenranta 16 A 5
4h+k+s
, Kerrostalo
82.5 m2
2/9
Lapinniemenranta 16 A 5
4h+k+s
, Kerrostalo
82.5 m2
Kerros 2/9
Lapinniemenranta 16 A 25
4h+k+s
, Kerrostalo
82.5 m2
7/9
Lapinniemenranta 16 A 25
4h+k+s
, Kerrostalo
82.5 m2
Kerros 7/9
Lapinniemenranta 16 A 13
4h+k+s
, Kerrostalo
82.5 m2
4/9
Lapinniemenranta 16 A 13
4h+k+s
, Kerrostalo
82.5 m2
Kerros 4/9
Lapinniemenranta 16 A 9
4h+k+s
, Kerrostalo
82.5 m2
3/9
Lapinniemenranta 16 A 9
4h+k+s
, Kerrostalo
82.5 m2
Kerros 3/9
Lapinniemenranta 16 A 21
4h+k+s
, Kerrostalo
82.5 m2
6/9
Lapinniemenranta 16 A 21
4h+k+s
, Kerrostalo
82.5 m2
Kerros 6/9
Lapinniemenranta 16 A 1
4h+k+s
, Kerrostalo
82.5 m2
1/9
Lapinniemenranta 16 A 1
4h+k+s
, Kerrostalo
82.5 m2
Kerros 1/9
Lapinniemenranta 16 A 17
4h+k+s
, Kerrostalo
82.5 m2
5/9
Lapinniemenranta 16 A 17
4h+k+s
, Kerrostalo
82.5 m2
Kerros 5/9