Kohteen esittely
Miksi Asuntosäätiö?
Me uskomme, että onnellinen koti ja laadukas asuminen kuuluvat kaikille. Emme tavoittele voittoa, vaan käytämme kaikki vastikkeista ja vuokrista saadut tulot toimintamme kehittämiseen. Jo yli 33 000 suomalaista on valinnut Asuntosäätiön tarjoaman kodin. Tiesithän, että myös lemmikit ovat tervetulleita kaikkiin koteihimme!
Rakennuksen tiedot
- Asumismuoto Asokoti
- Keskimääräinen asumisoikeusmaksu / jm² 336,43€
- Hissit Ei
- Talosauna Ei
- Asuntoja 52
- Asuinrakennuksia 23
- Käyttövastike / kk / jm² 10,71€
- Valmistumisvuosi 2000
- Energialuokka D, E
- Lämmitysmuoto Kauko
- Autopaikat 66
- Kerhohuone 1
- Laajakaista Elisa
- Antennijärjestelmä Kaapeli
- KaapeliTV Elisa
- Kattomateriaali Huopa
- Runkomateriaali Puu
- Lemmikit Sallittu
Huoneistot ja pohjakuvat: Pullerikinahde 2 ja 4 sekä 6 ja 10, Piharakennus, Paritalo, Rivitalo, Pienkerrostalo
Lisää hakemukselle kaikki haluamasi asuntotyypit. Mahdollisuutesi asunnon saamiseksi paranevat, kun voimme tarjota sinulle kaikkia valitsemasi asuntotyypin asuntoja, jotka mahdollisesti vapautuvat myöhemmin tästä kohteesta. Olet automaattisesti näiden asuntotyyppien hakuprosessissa.
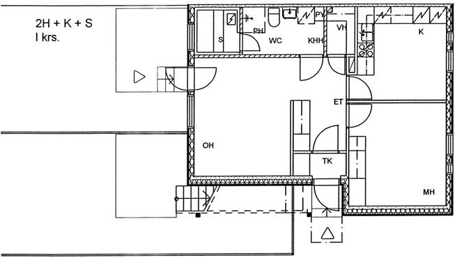
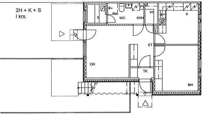
Pullerikinahde 6 H 17
2h+k+s
, Pienkerrostalo
59 m2
/2
Pullerikinahde 6 H 17
2h+k+s
, Pienkerrostalo
59 m2
Kerros /2
Pullerikinahde 6 H 18
2h+k+s
, Pienkerrostalo
59 m2
/2
Pullerikinahde 6 H 18
2h+k+s
, Pienkerrostalo
59 m2
Kerros /2
Pullerikinahde 6 G 16
2h+k+s
, Pienkerrostalo
59 m2
Kerros /2
Pullerikinahde 6 G 15
2h+k+s
, Pienkerrostalo
59 m2
/2
Pullerikinahde 6 G 15
2h+k+s
, Pienkerrostalo
59 m2
Kerros /2
Pullerikinahde 6 A 2
2h+k+s
, Pienkerrostalo
59 m2
Kerros /2
Pullerikinahde 6 A 1
2h+k+s
, Pienkerrostalo
59 m2
/2
Pullerikinahde 6 A 1
2h+k+s
, Pienkerrostalo
59 m2
Kerros /2
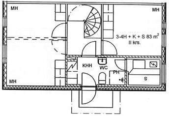
Pullerikinahde 4 G 15
3h+k+s
, Paritalo
83 m2
/2
Pullerikinahde 4 G 15
3h+k+s
, Paritalo
83 m2
Kerros /2
Pullerikinahde 4 J 22
3h+k+s
, Rivitalo
83 m2
2/2/2
Pullerikinahde 4 J 22
3h+k+s
, Rivitalo
83 m2
Kerros 2/2/2
Pullerikinahde 4 J 20
3h+k+s
, Rivitalo
83 m2
/2
Pullerikinahde 4 J 20
3h+k+s
, Rivitalo
83 m2
Kerros /2
Pullerikinahde 10 I 22
3h+k+s
, Rivitalo
83 m2
/2
Pullerikinahde 10 I 22
3h+k+s
, Rivitalo
83 m2
Kerros /2
Pullerikinahde 2 F 11
3h+k+s
, Rivitalo
83 m2
/2
Pullerikinahde 2 F 11
3h+k+s
, Rivitalo
83 m2
Kerros /2
Pullerikinahde 10 K 25
3h+k+s
, Paritalo
83 m2
/2
Pullerikinahde 10 K 25
3h+k+s
, Paritalo
83 m2
Kerros /2
Pullerikinahde 6 B 5
3h+k+s
, Paritalo
83 m2
/2
Pullerikinahde 6 B 5
3h+k+s
, Paritalo
83 m2
Kerros /2
Pullerikinahde 2 A 2
3h+k+s
, Paritalo
83 m2
/2
Pullerikinahde 2 A 2
3h+k+s
, Paritalo
83 m2
Kerros /2
Pullerikinahde 4 H 16
3h+k+s
, Paritalo
83 m2
/2
Pullerikinahde 4 H 16
3h+k+s
, Paritalo
83 m2
Kerros /2
Pullerikinahde 4 H 17
3h+k+s
, Paritalo
83 m2
/2
Pullerikinahde 4 H 17
3h+k+s
, Paritalo
83 m2
Kerros /2
Pullerikinahde 10 I 20
3h+k+s
, Rivitalo
83 m2
/2
Pullerikinahde 10 I 20
3h+k+s
, Rivitalo
83 m2
Kerros /2
Pullerikinahde 6 E 10
3h+k+s
, Paritalo
83 m2
/2
Pullerikinahde 6 E 10
3h+k+s
, Paritalo
83 m2
Kerros /2
Pullerikinahde 2 E 10
3h+k+s
, Paritalo
83 m2
/2
Pullerikinahde 2 E 10
3h+k+s
, Paritalo
83 m2
Kerros /2
Pullerikinahde 2 B 3
3h+k+s
, Paritalo
83 m2
/2
Pullerikinahde 2 B 3
3h+k+s
, Paritalo
83 m2
Kerros /2
Pullerikinahde 4 K 23
3h+k+s
, Paritalo
83 m2
/2
Pullerikinahde 4 K 23
3h+k+s
, Paritalo
83 m2
Kerros /2
Pullerikinahde 4 K 24
3h+k+s
, Paritalo
83 m2
/2
Pullerikinahde 4 K 24
3h+k+s
, Paritalo
83 m2
Kerros /2
Pullerikinahde 2 A 1
3h+k+s
, Paritalo
83 m2
/2
Pullerikinahde 2 A 1
3h+k+s
, Paritalo
83 m2
Kerros /2
Pullerikinahde 2 C 5
3h+k+s
, Paritalo
83 m2
/2
Pullerikinahde 2 C 5
3h+k+s
, Paritalo
83 m2
Kerros /2
Pullerikinahde 2 C 6
3h+k+s
, Paritalo
83 m2
/2
Pullerikinahde 2 C 6
3h+k+s
, Paritalo
83 m2
Kerros /2
Pullerikinahde 4 G 14
3h+k+s
, Paritalo
83 m2
/2
Pullerikinahde 4 G 14
3h+k+s
, Paritalo
83 m2
Kerros /2
Pullerikinahde 2 B 4
4h+k+s
, Paritalo
83 m2
/2
Pullerikinahde 2 B 4
4h+k+s
, Paritalo
83 m2
Kerros /2
Pullerikinahde 2 F 13
4h+k+s
, Rivitalo
83 m2
/2
Pullerikinahde 2 F 13
4h+k+s
, Rivitalo
83 m2
Kerros /2
Pullerikinahde 2 E 9
4h+k+s
, Paritalo
83 m2
/2
Pullerikinahde 2 E 9
4h+k+s
, Paritalo
83 m2
Kerros /2
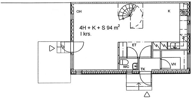
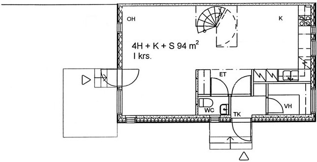
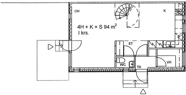
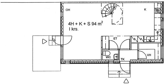
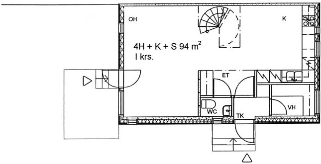
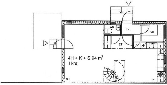
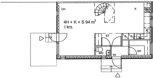
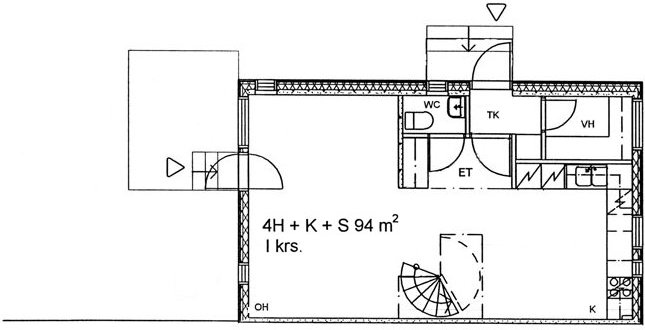
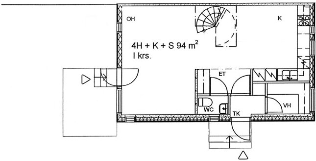
Pullerikinahde 10 J 23
4h+k+s
, Paritalo
94 m2
/2
Pullerikinahde 10 J 23
4h+k+s
, Paritalo
94 m2
Kerros /2
Pullerikinahde 10 L 28
4h+k+s
, Paritalo
94 m2
/2
Pullerikinahde 10 L 28
4h+k+s
, Paritalo
94 m2
Kerros /2
Pullerikinahde 10 J 24
4h+k+s
, Paritalo
94 m2
1-2. krs/2
Pullerikinahde 10 J 24
4h+k+s
, Paritalo
94 m2
Kerros 1-2. krs/2
Pullerikinahde 6 F 12
4h+k+s
, Paritalo
94 m2
2/2/2
Pullerikinahde 6 F 12
4h+k+s
, Paritalo
94 m2
Kerros 2/2/2
Pullerikinahde 6 F 13
4h+k+s
, Paritalo
94 m2
/2
Pullerikinahde 6 F 13
4h+k+s
, Paritalo
94 m2
Kerros /2
Pullerikinahde 6 H 19
4h+k+s
, Pienkerrostalo
94 m2
/2
Pullerikinahde 6 H 19
4h+k+s
, Pienkerrostalo
94 m2
Kerros /2
Pullerikinahde 6 G 14
4h+k+s
, Pienkerrostalo
94 m2
/2
Pullerikinahde 6 G 14
4h+k+s
, Pienkerrostalo
94 m2
Kerros /2
Pullerikinahde 10 L 27
4h+k+s
, Paritalo
94 m2
/2
Pullerikinahde 10 L 27
4h+k+s
, Paritalo
94 m2
Kerros /2
Pullerikinahde 10 K 26
4h+k+s
, Paritalo
94 m2
/2
Pullerikinahde 10 K 26
4h+k+s
, Paritalo
94 m2
Kerros /2
Pullerikinahde 6 A 3
4h+k+s
, Pienkerrostalo
94 m2
/2
Pullerikinahde 6 A 3
4h+k+s
, Pienkerrostalo
94 m2
Kerros /2
Pullerikinahde 6 C 7
4h+k+s
, Paritalo
94 m2
/2
Pullerikinahde 6 C 7
4h+k+s
, Paritalo
94 m2
Kerros /2
Pullerikinahde 6 C 6
4h+k+s
, Paritalo
94 m2
/2
Pullerikinahde 6 C 6
4h+k+s
, Paritalo
94 m2
Kerros /2
Pullerikinahde 6 B 4
4h+k+s
, Paritalo
94 m2
/2
Pullerikinahde 6 B 4
4h+k+s
, Paritalo
94 m2
Kerros /2
Pullerikinahde 6 E 11
4h+k+s
, Paritalo
94 m2
/2
Pullerikinahde 6 E 11
4h+k+s
, Paritalo
94 m2
Kerros /2
Pullerikinahde 4 J 21
4h+k+s
, Rivitalo
94.5 m2
/2
Pullerikinahde 4 J 21
4h+k+s
, Rivitalo
94.5 m2
Kerros /2
Pullerikinahde 10 I 21
4h+k+s
, Rivitalo
94.5 m2
/2
Pullerikinahde 10 I 21
4h+k+s
, Rivitalo
94.5 m2
Kerros /2
Pullerikinahde 2 F 12
4h+k+s
, Rivitalo
94.5 m2
/2
Pullerikinahde 2 F 12
4h+k+s
, Rivitalo
94.5 m2
Kerros /2
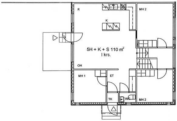
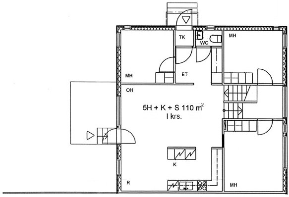
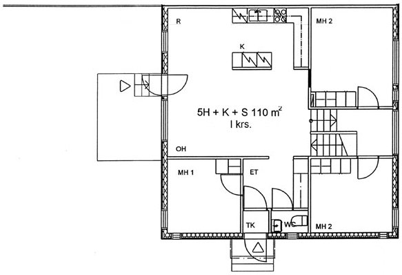
Pullerikinahde 2 D 8
5h+k+s
, Paritalo
110 m2
/2
Pullerikinahde 2 D 8
5h+k+s
, Paritalo
110 m2
Kerros /2
Pullerikinahde 2 D 7
5h+k+s
, Paritalo
110 m2
/2
Pullerikinahde 2 D 7
5h+k+s
, Paritalo
110 m2
Kerros /2
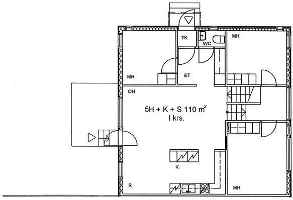
Pullerikinahde 6 D 9
5h+k+s
, Paritalo
110 m2
/2
Pullerikinahde 6 D 9
5h+k+s
, Paritalo
110 m2
Kerros /2
Pullerikinahde 6 D 8
5h+k+s
, Paritalo
110 m2
/2
Pullerikinahde 6 D 8
5h+k+s
, Paritalo
110 m2
Kerros /2
Pullerikinahde 4 I 18
5h+k+s
, Paritalo
110 m2
/2
Pullerikinahde 4 I 18
5h+k+s
, Paritalo
110 m2
Kerros /2
Pullerikinahde 4 I 19
5h+k+s
, Paritalo
110 m2
/2
Pullerikinahde 4 I 19
5h+k+s
, Paritalo
110 m2
Kerros /2

