Kohteen esittely
Swingintie 8 on kaksikerroksinen pienkerrostalo, jossa on kaksioita ja kolmioita. Lisäksi yhtiöön kuuluu paritalo (Topperitie 1) jotka ovat kolmioita. Asunnoissa on isot ja valoisat huoneet.
Kohteessa tehdään peruskorjaus maalis-syyskuussa 2026. Lue lisää sivuiltamme: www.asuntosaatio.fi/asukkaalle/tietoa-asokoti-asukkaalle/asokotien-peruskorjaus
Täältä on lyhyt matka Tuusulanjärven uuteen kouluun ja Tuusulan golfkentälle. Kesäteatteri sekä Tuusulanjärven ulkoilureitit ja kulttuurikohteet ovat myös lähellä. Krapin Pajalla on konserttitarjontaa ympäri vuoden ja etenkin kesällä Rantatien alueella on paljon nähtävää ja koettavaa.
Miksi Asuntosäätiö?
Me uskomme, että onnellinen koti ja laadukas asuminen kuuluvat kaikille. Emme tavoittele voittoa, vaan käytämme kaikki vastikkeista ja vuokrista saadut tulot toimintamme kehittämiseen. Jo yli 33 000 suomalaista on valinnut Asuntosäätiön tarjoaman kodin. Tiesithän, että myös lemmikit ovat tervetulleita kaikkiin koteihimme!
Rakennuksen tiedot
- Asumismuoto Asokoti
- Keskimääräinen asumisoikeusmaksu / jm² 331,02€
- Hissit Ei
- Talosauna Ei
- Kuivaushuone Kyllä
- Asuntoja 18
- Asuinrakennuksia 3
- Käyttövastike / kk / jm² 13€
- Valmistumisvuosi 1995
- Porrashuoneet 2
- Energialuokka C, D
- Lämmitysmuoto Maalämpö
- Autopaikat 18
- Askarteluhuone 1
- Laajakaista Elisa
- Antennijärjestelmä Kaapeli
- KaapeliTV Elisa
- Kattomateriaali Tiili
- Runkomateriaali Betoni
- Lemmikit Sallittu
Huoneistot ja pohjakuvat: Swingitie 8 ja Topperitie 1, Pienkerrostalo, Piharakennus, Paritalo
Lisää hakemukselle kaikki haluamasi asuntotyypit. Mahdollisuutesi asunnon saamiseksi paranevat, kun voimme tarjota sinulle kaikkia valitsemasi asuntotyypin asuntoja, jotka mahdollisesti vapautuvat myöhemmin tästä kohteesta. Olet automaattisesti näiden asuntotyyppien hakuprosessissa.
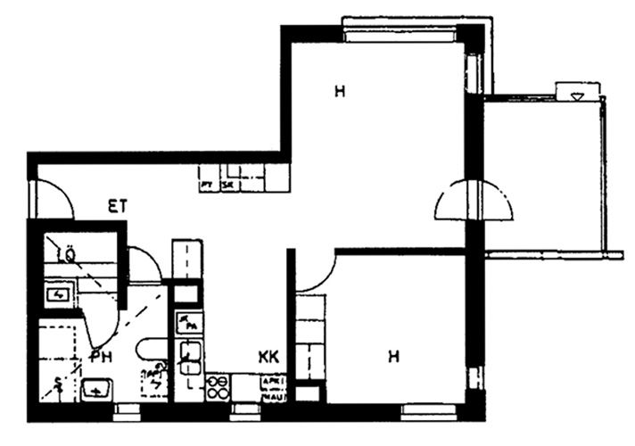
Swingitie 8 A 3
2h+kk+s
, Pienkerrostalo
44.5 m2
1/2
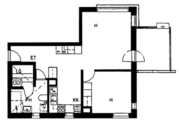
Swingitie 8 A 3
2h+kk+s
, Pienkerrostalo
44.5 m2
Kerros 1/2
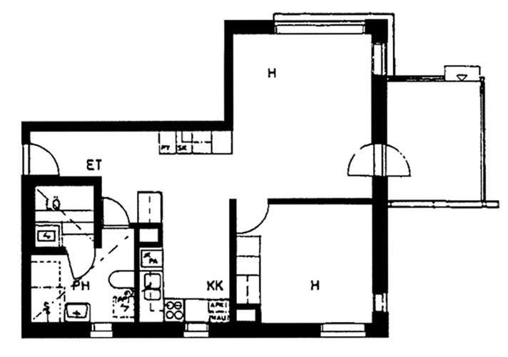
Swingitie 8 A 7
2h+kk+s
, Pienkerrostalo
44.5 m2
2/2
Swingitie 8 A 7
2h+kk+s
, Pienkerrostalo
44.5 m2
Kerros 2/2
Swingitie 8 A 2
2h+kk+s
, Pienkerrostalo
44.5 m2
1/2
Swingitie 8 A 2
2h+kk+s
, Pienkerrostalo
44.5 m2
Kerros 1/2
Swingitie 8 A 6
2h+kk+s
, Pienkerrostalo
44.5 m2
2/2
Swingitie 8 A 6
2h+kk+s
, Pienkerrostalo
44.5 m2
Kerros 2/2
Swingitie 8 B 11
2h+kk+s
, Pienkerrostalo
44.5 m2
1/2
Swingitie 8 B 11
2h+kk+s
, Pienkerrostalo
44.5 m2
Kerros 1/2
Swingitie 8 B 15
2h+kk+s
, Pienkerrostalo
44.5 m2
2/2
Swingitie 8 B 15
2h+kk+s
, Pienkerrostalo
44.5 m2
Kerros 2/2
Swingitie 8 B 10
2h+kk+s
, Pienkerrostalo
44.5 m2
1/2
Swingitie 8 B 10
2h+kk+s
, Pienkerrostalo
44.5 m2
Kerros 1/2
Swingitie 8 B 14
2h+kk+s
, Pienkerrostalo
44.5 m2
2/2
Swingitie 8 B 14
2h+kk+s
, Pienkerrostalo
44.5 m2
Kerros 2/2
Swingitie 8 A 5
2h+kk+s
, Pienkerrostalo
51 m2
2/2
Swingitie 8 A 5
2h+kk+s
, Pienkerrostalo
51 m2
Kerros 2/2
Swingitie 8 A 1
2h+kk+s
, Pienkerrostalo
51 m2
1/2
Swingitie 8 A 1
2h+kk+s
, Pienkerrostalo
51 m2
Kerros 1/2
Swingitie 8 B 13
2h+kk+s
, Pienkerrostalo
51 m2
2/2
Swingitie 8 B 13
2h+kk+s
, Pienkerrostalo
51 m2
Kerros 2/2
Swingitie 8 B 9
2h+kk+s
, Pienkerrostalo
51 m2
1/2
Swingitie 8 B 9
2h+kk+s
, Pienkerrostalo
51 m2
Kerros 1/2
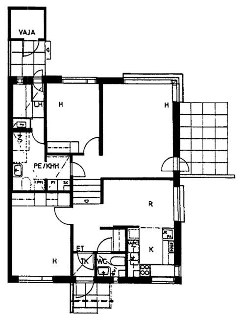
Swingitie 8 A 4
3h+k+s
, Pienkerrostalo
72 m2
1/2
Swingitie 8 A 4
3h+k+s
, Pienkerrostalo
72 m2
Kerros 1/2
Swingitie 8 B 12
3h+k+s
, Pienkerrostalo
72 m2
1/2
Swingitie 8 B 12
3h+k+s
, Pienkerrostalo
72 m2
Kerros 1/2
Swingitie 8 B 16
3h+k+s
, Pienkerrostalo
72 m2
2/2
Swingitie 8 B 16
3h+k+s
, Pienkerrostalo
72 m2
Kerros 2/2
Topperitie 1 B 1
3h+k+s
, Paritalo
78.5 m2
1/1
Topperitie 1 B 1
3h+k+s
, Paritalo
78.5 m2
Kerros 1/1
Topperitie 1 A 1
3h+k+s
, Paritalo
78.5 m2
1/1
Topperitie 1 A 1
3h+k+s
, Paritalo
78.5 m2
Kerros 1/1
