Kohteen esittely
Pieni, kotoisa rivitalokohde Jokiniemessä. Asunnot ovat 3-5 huoneen ja erillisen keittiön huoneistoja, joihin kuuluu oma sauna ja piha. Kohteessa on omatoimiviherhoito.
Koulut ja urheilupuisto aivan vieressä. Alueella on myös päiväkoti ja golf-kenttä. Juna-asemalle muutaman sadan metrin matka.
Miksi Asuntosäätiö?
Me uskomme, että onnellinen koti ja laadukas asuminen kuuluvat kaikille. Emme tavoittele voittoa, vaan käytämme kaikki vastikkeista ja vuokrista saadut tulot toimintamme kehittämiseen. Jo yli 33 000 suomalaista on valinnut Asuntosäätiön tarjoaman kodin. Tiesithän, että myös lemmikit ovat tervetulleita kaikkiin koteihimme!
Rakennuksen tiedot
- Asumismuoto Asokoti
- Keskimääräinen asumisoikeusmaksu / jm² 416,84€
- Hissit Ei
- Talosauna Ei
- Asuntoja 5
- Asuinrakennuksia 3
- Käyttövastike / kk / jm² 14,88€
- Valmistumisvuosi 1996
- Energialuokka D
- Lämmitysmuoto Kauko
- Autopaikat 6
- Laajakaista DNA 4G
- Antennijärjestelmä Harava
- Kattomateriaali Tiili
- Runkomateriaali Betoni
- Lemmikit Sallittu
Huoneistot ja pohjakuvat: Kaurakuja 1, Piharakennus, Paritalo, Omakotitalo
Lisää hakemukselle kaikki haluamasi asuntotyypit. Mahdollisuutesi asunnon saamiseksi paranevat, kun voimme tarjota sinulle kaikkia valitsemasi asuntotyypin asuntoja, jotka mahdollisesti vapautuvat myöhemmin tästä kohteesta. Olet automaattisesti näiden asuntotyyppien hakuprosessissa.
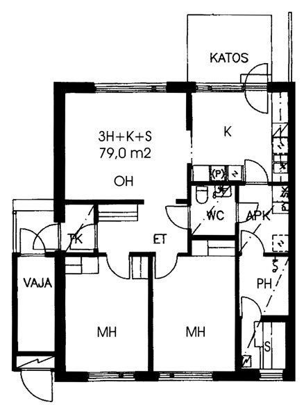
Kaurakuja 1 A 1
3h+k+s
, Paritalo
79 m2
1/1
Kaurakuja 1 A 1
3h+k+s
, Paritalo
79 m2
Kerros 1/1
Kaurakuja 1 B 3
3h+k+s
, Paritalo
79 m2
1/1
Kaurakuja 1 B 3
3h+k+s
, Paritalo
79 m2
Kerros 1/1
Kaurakuja 1 A 2
4h+k+s
, Paritalo
91.5 m2
1/1
Kaurakuja 1 A 2
4h+k+s
, Paritalo
91.5 m2
Kerros 1/1
Kaurakuja 1 B 4
4h+k+s
, Paritalo
91.5 m2
1/1
Kaurakuja 1 B 4
4h+k+s
, Paritalo
91.5 m2
Kerros 1/1
Kaurakuja 1 C 5
5h+k+s
, Omakotitalo
100.5 m2
1/1
Kaurakuja 1 C 5
5h+k+s
, Omakotitalo
100.5 m2
Kerros 1/1