Kohteen esittely
Viihtyisä kerrostalokohde palveluiden äärellä. A-rapun asuntoihin kuljetaan luhtikäytävältä. Autopaikat sijaitsevat viereisessä parkkihallissa.
Hyvät ulkoilumahdollisuudet mm. Korsonojan äärellä tai alueen puistoissa. Erinomaiset liikenneyhteydet: Bussipysäkki lähes talon edessä, juna-asemalle parinsadan metrin matka.
Miksi Asuntosäätiö?
Me uskomme, että onnellinen koti ja laadukas asuminen kuuluvat kaikille. Emme tavoittele voittoa, vaan käytämme kaikki vastikkeista ja vuokrista saadut tulot toimintamme kehittämiseen. Jo yli 33 000 suomalaista on valinnut Asuntosäätiön tarjoaman kodin. Tiesithän, että myös lemmikit ovat tervetulleita kaikkiin koteihimme!
Rakennuksen tiedot
- Asumismuoto Asokoti
- Keskimääräinen asumisoikeusmaksu / jm² 464,58€
- Hissit 2
- Talosauna Ei
- Asuntoja 74
- Asuinrakennuksia 1
- Käyttövastike / kk / jm² 13,89€
- Valmistumisvuosi 2003
- Porrashuoneet 2
- Energialuokka F
- Lämmitysmuoto Kauko
- Autopaikat 76
- Laajakaista DNA Welho
- Antennijärjestelmä Kaapeli
- KaapeliTV DNA
- Kattomateriaali Huopa
- Runkomateriaali Betoni
- Lemmikit Sallittu
Huoneistot ja pohjakuvat: Metsolantie 7, Piharakennus, Kerrostalo
Lisää hakemukselle kaikki haluamasi asuntotyypit. Mahdollisuutesi asunnon saamiseksi paranevat, kun voimme tarjota sinulle kaikkia valitsemasi asuntotyypin asuntoja, jotka mahdollisesti vapautuvat myöhemmin tästä kohteesta. Olet automaattisesti näiden asuntotyyppien hakuprosessissa.
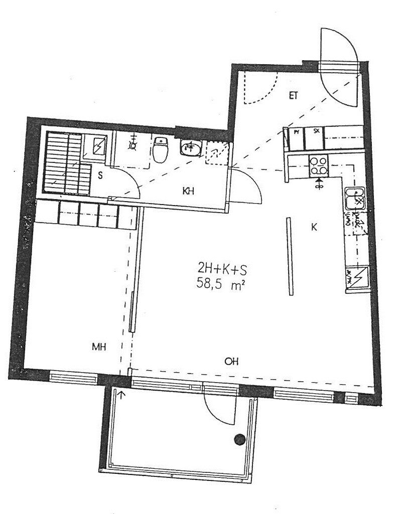
Metsolantie 7 A 2
1h+k
, Kerrostalo
58.5 m2
1/5
Metsolantie 7 A 2
1h+k
, Kerrostalo
58.5 m2
Kerros 1/5
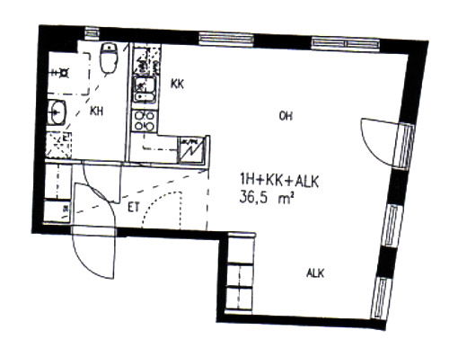
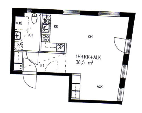
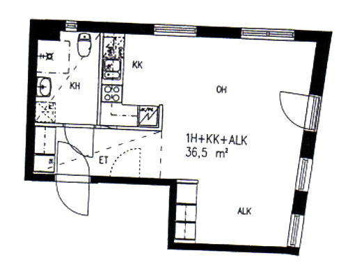
Metsolantie 7 B 70
1h+kk
, Kerrostalo
36.5 m2
5/5
Metsolantie 7 B 70
1h+kk
, Kerrostalo
36.5 m2
Kerros 5/5
Metsolantie 7 B 65
1h+kk
, Kerrostalo
36.5 m2
4/5
Metsolantie 7 B 65
1h+kk
, Kerrostalo
36.5 m2
Kerros 4/5
Metsolantie 7 B 60
1h+kk
, Kerrostalo
36.5 m2
Kerros 3/5
Metsolantie 7 B 55
1h+kk
, Kerrostalo
36.5 m2
2/5
Metsolantie 7 B 55
1h+kk
, Kerrostalo
36.5 m2
Kerros 2/5
Metsolantie 7 A 11
1h+kk
, Kerrostalo
38.5 m2
2/5
Metsolantie 7 A 11
1h+kk
, Kerrostalo
38.5 m2
Kerros 2/5
Metsolantie 7 A 23
1h+kk
, Kerrostalo
38.5 m2
3/5
Metsolantie 7 A 23
1h+kk
, Kerrostalo
38.5 m2
Kerros 3/5
Metsolantie 7 A 35
1h+kk
, Kerrostalo
38.5 m2
4/5
Metsolantie 7 A 35
1h+kk
, Kerrostalo
38.5 m2
Kerros 4/5
Metsolantie 7 A 1
1h+kk
, Kerrostalo
38.5 m2
1/5
Metsolantie 7 A 1
1h+kk
, Kerrostalo
38.5 m2
Kerros 1/5
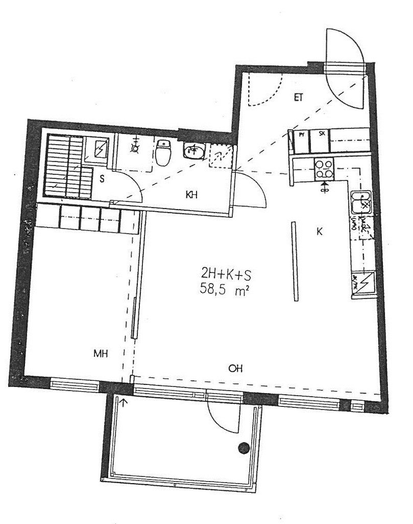
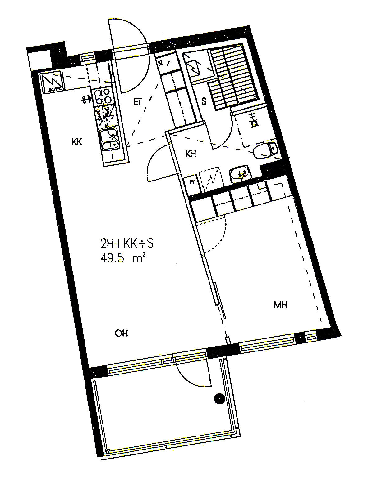
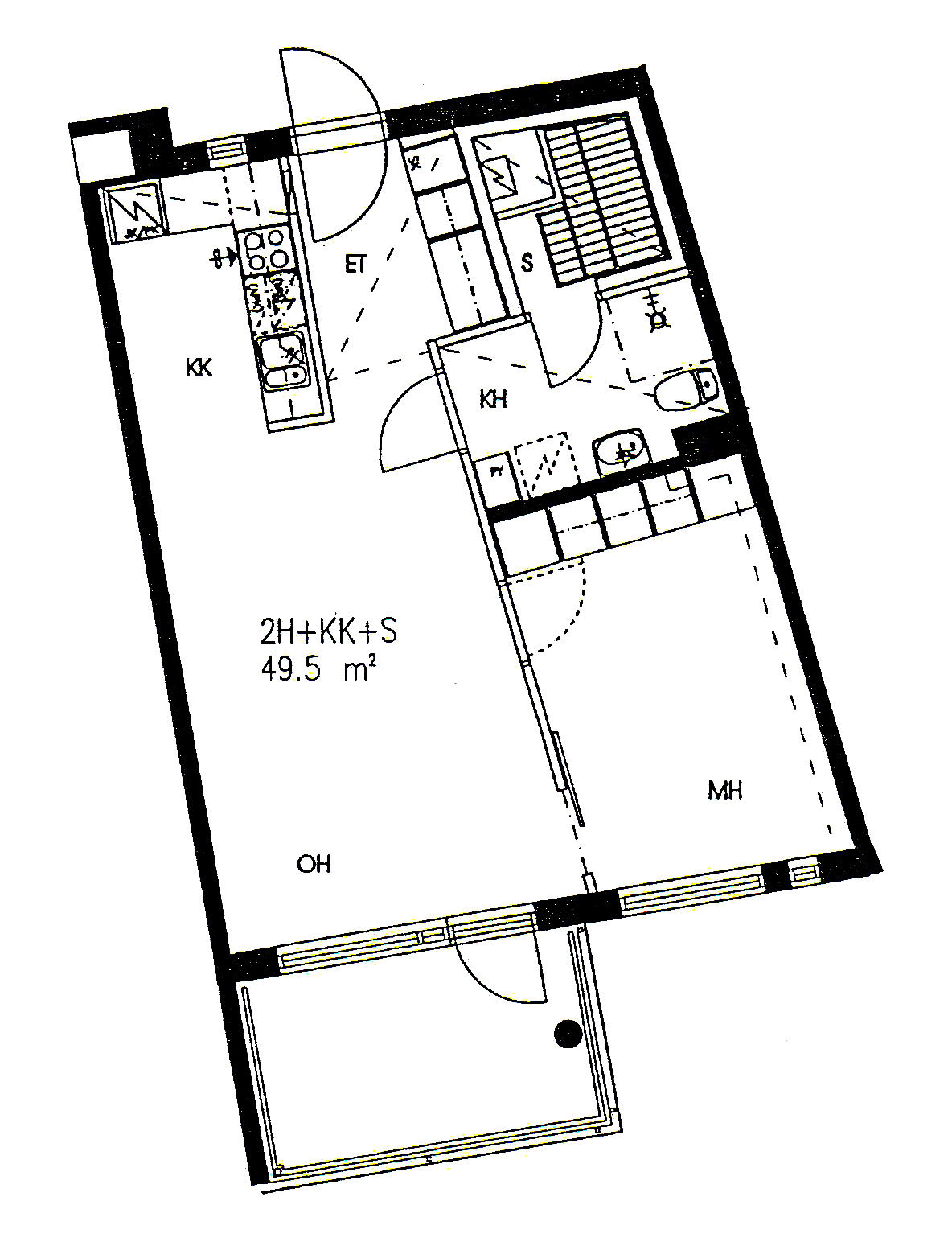
Metsolantie 7 A 25
2h+k+s
, Kerrostalo
49.5 m2
3/5
Metsolantie 7 A 25
2h+k+s
, Kerrostalo
49.5 m2
Kerros 3/5
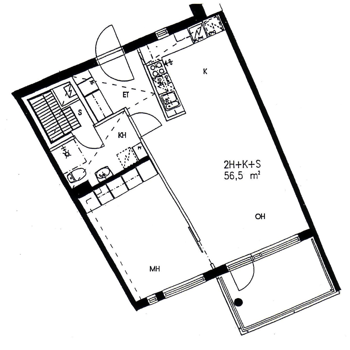
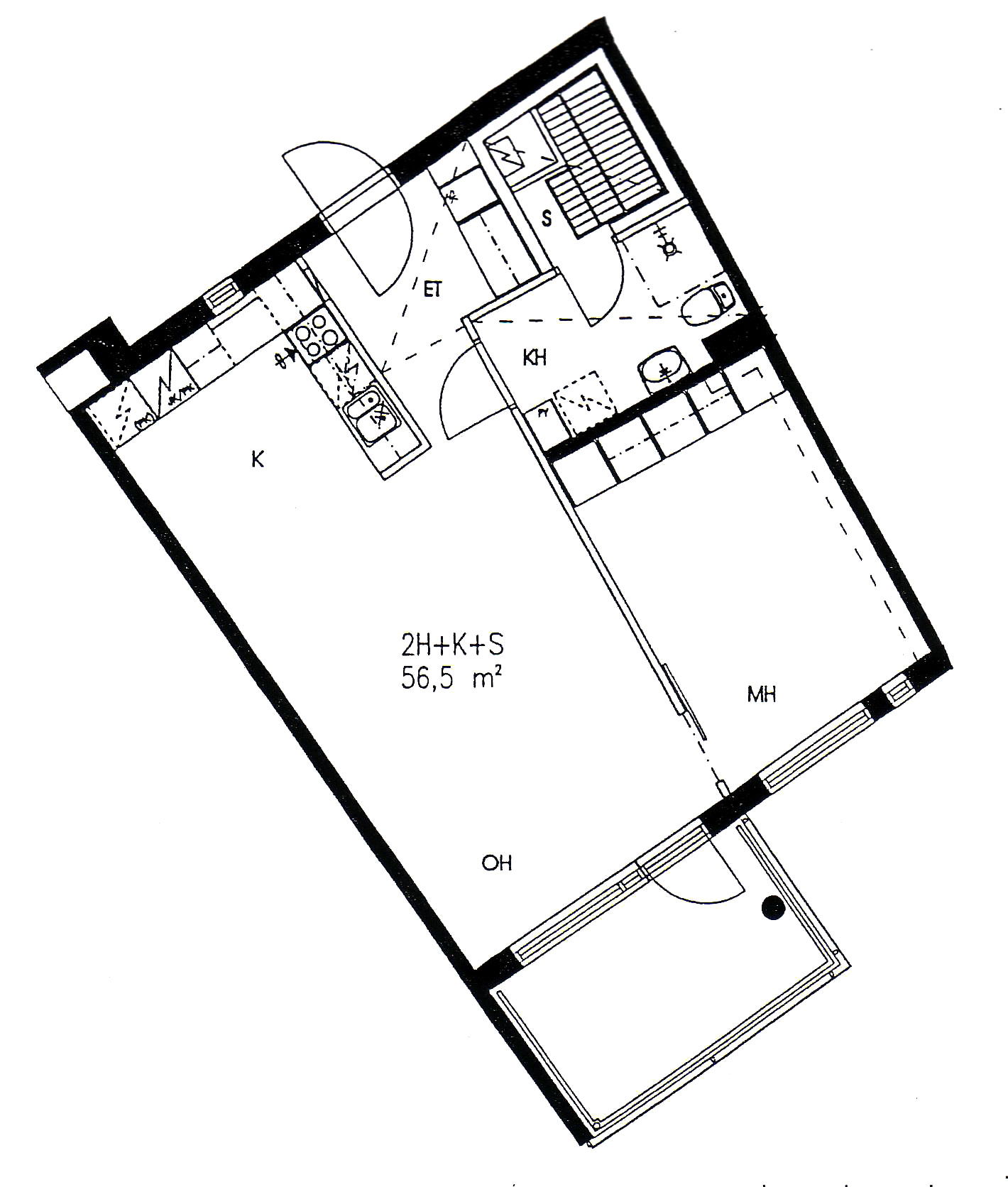
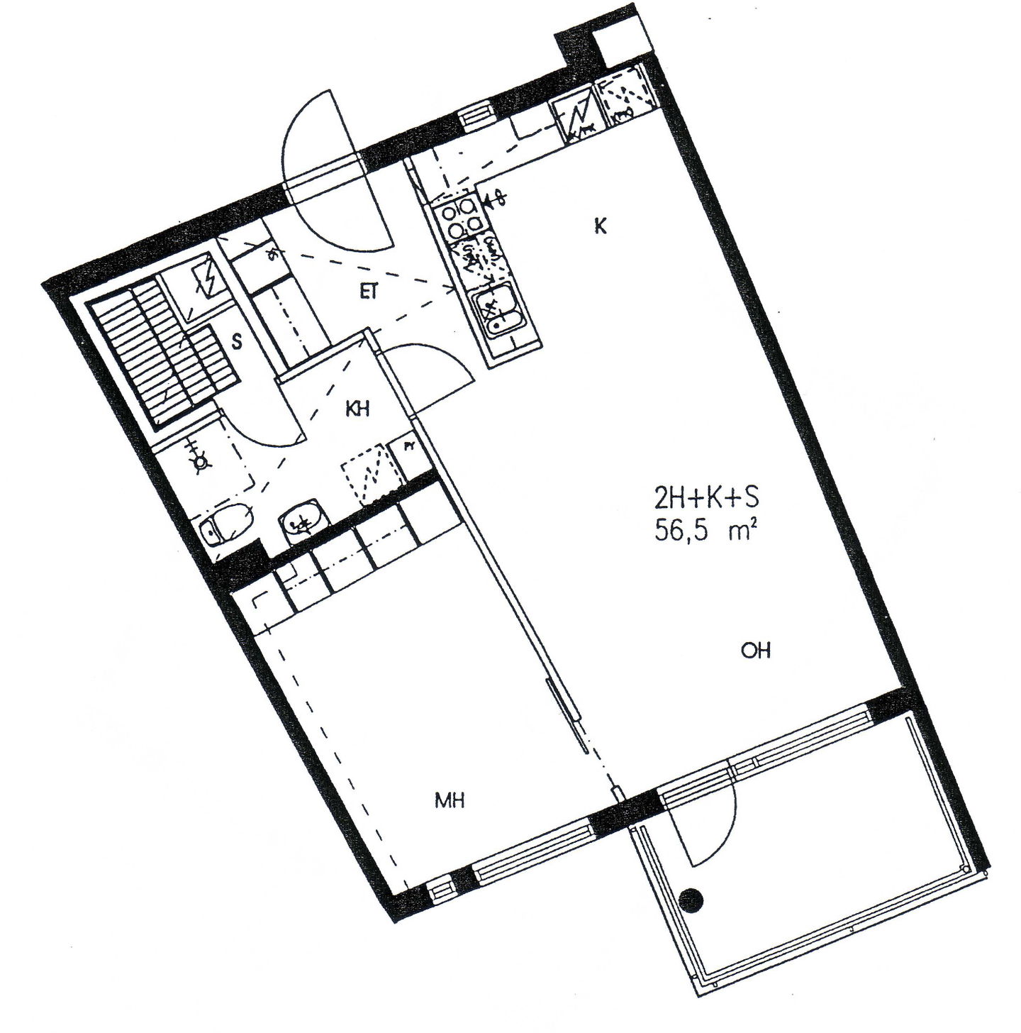
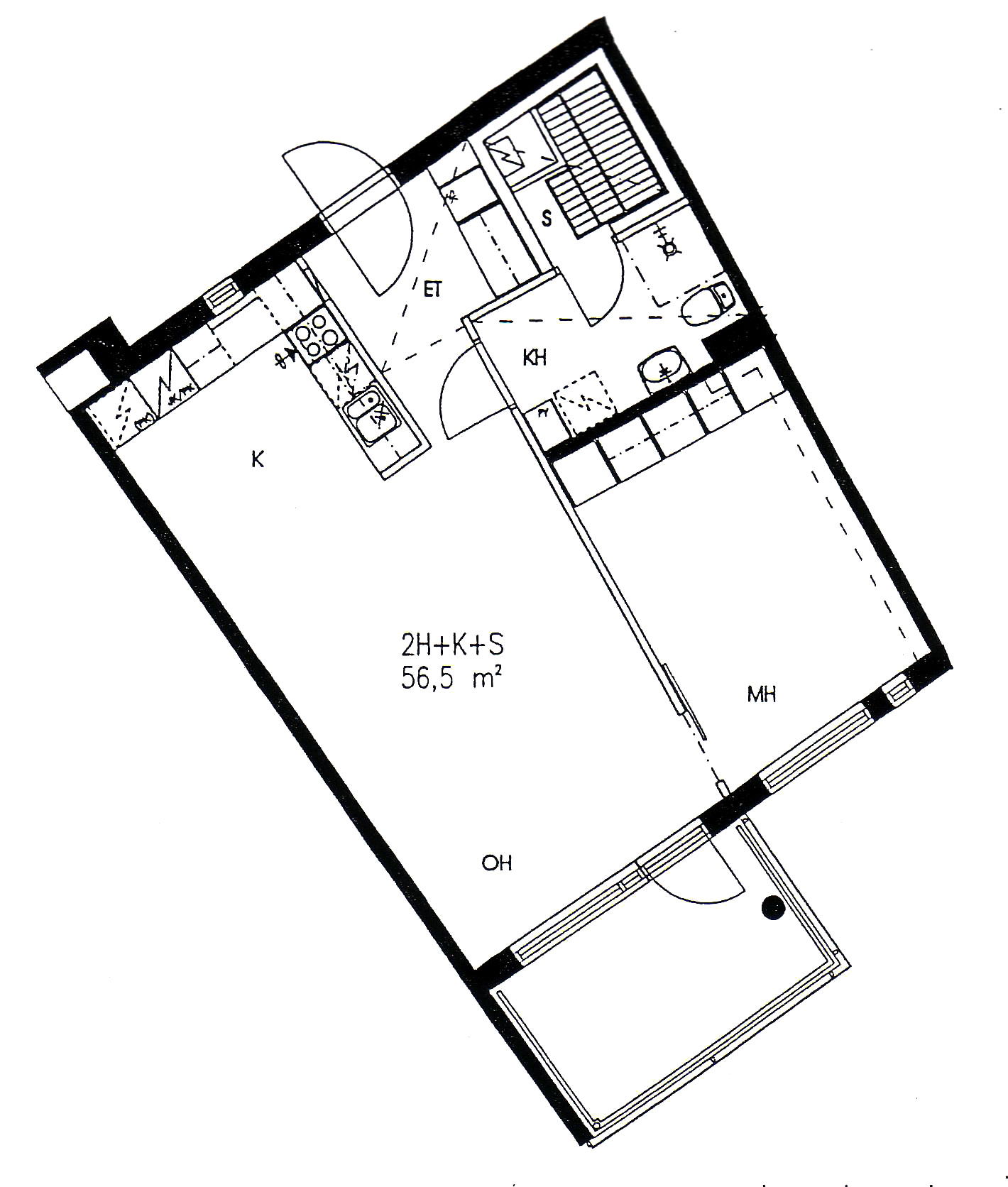
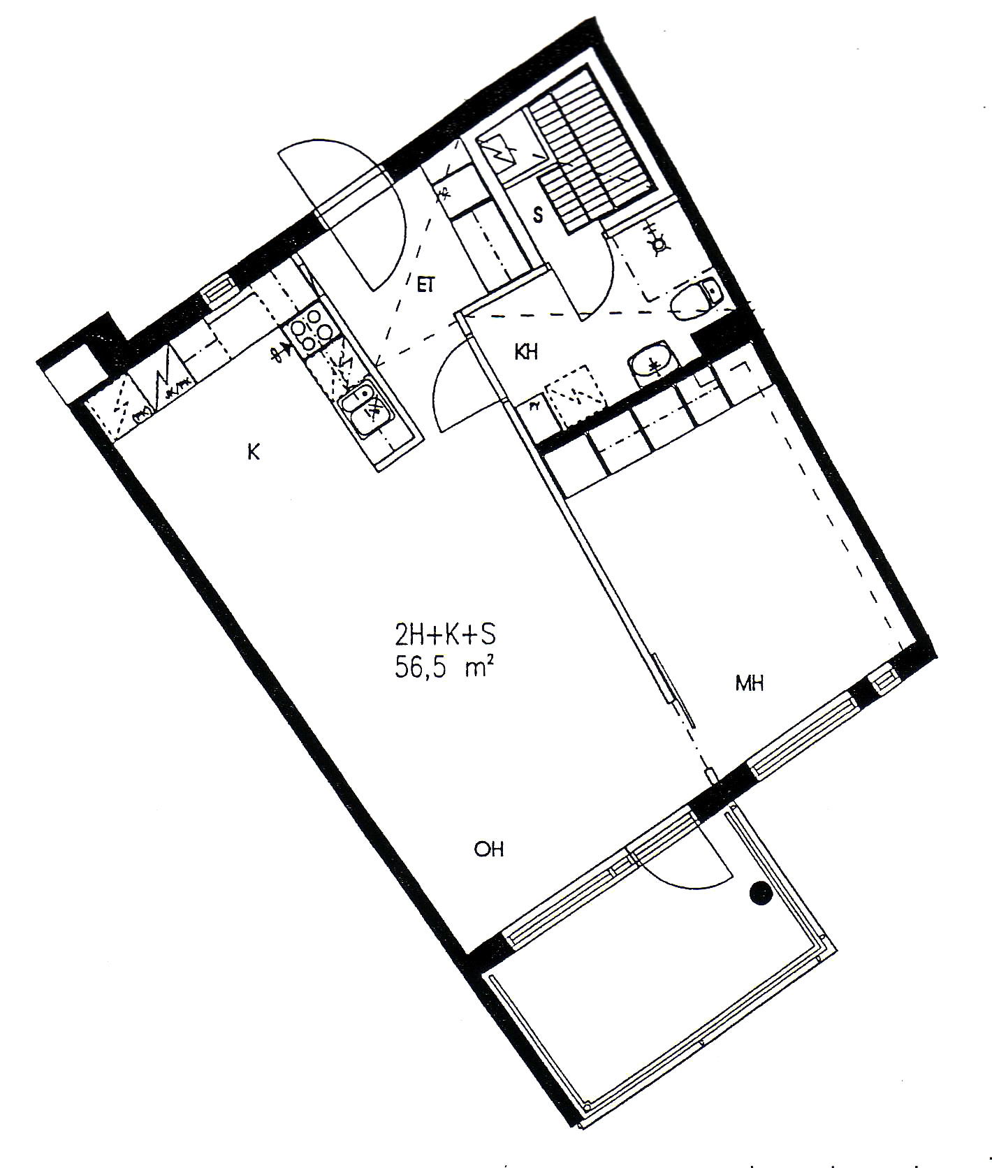
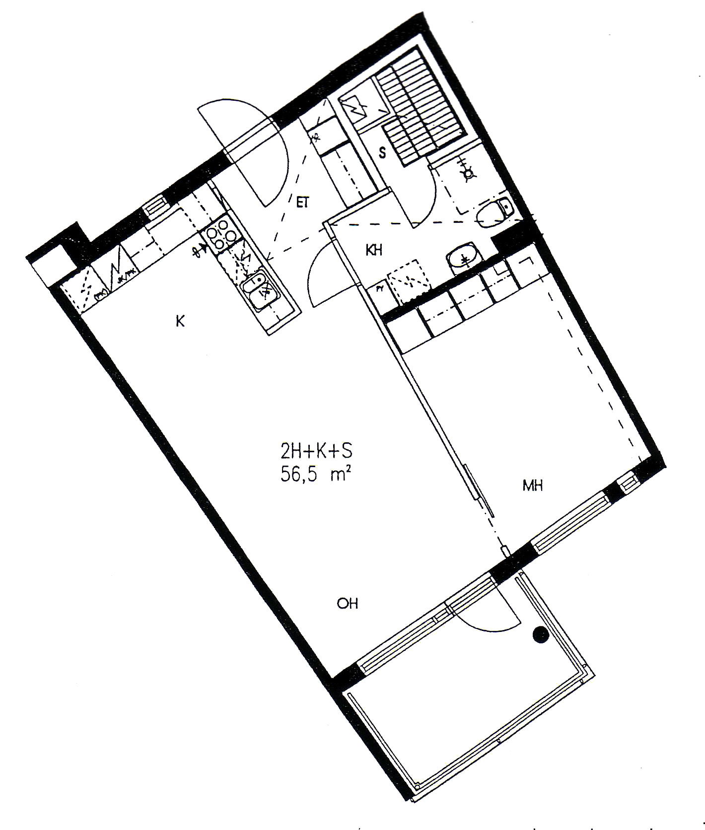
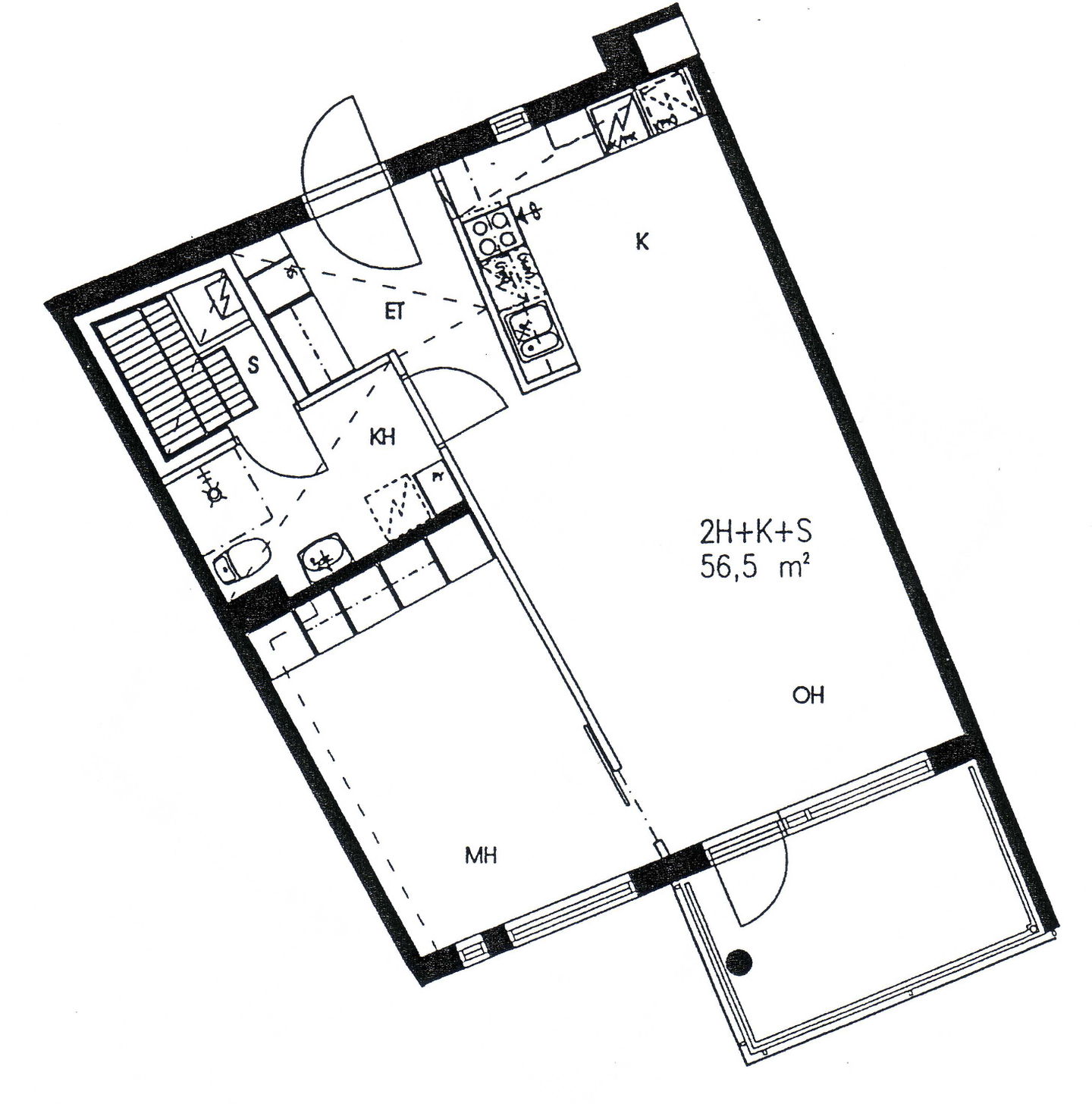
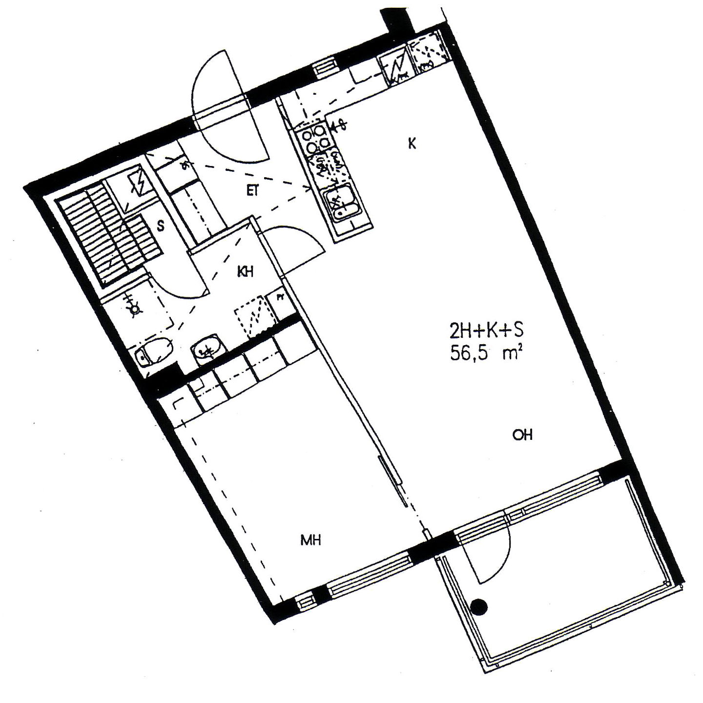
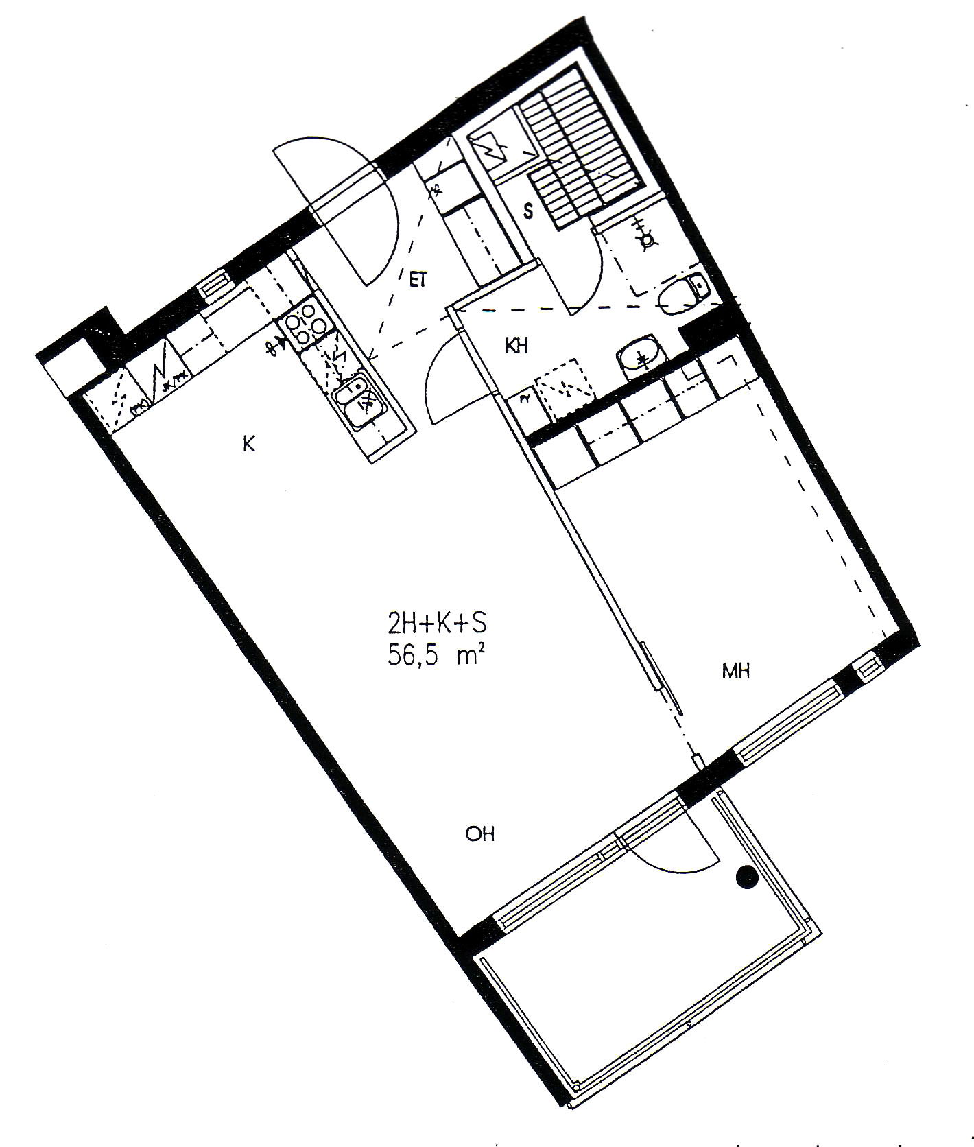
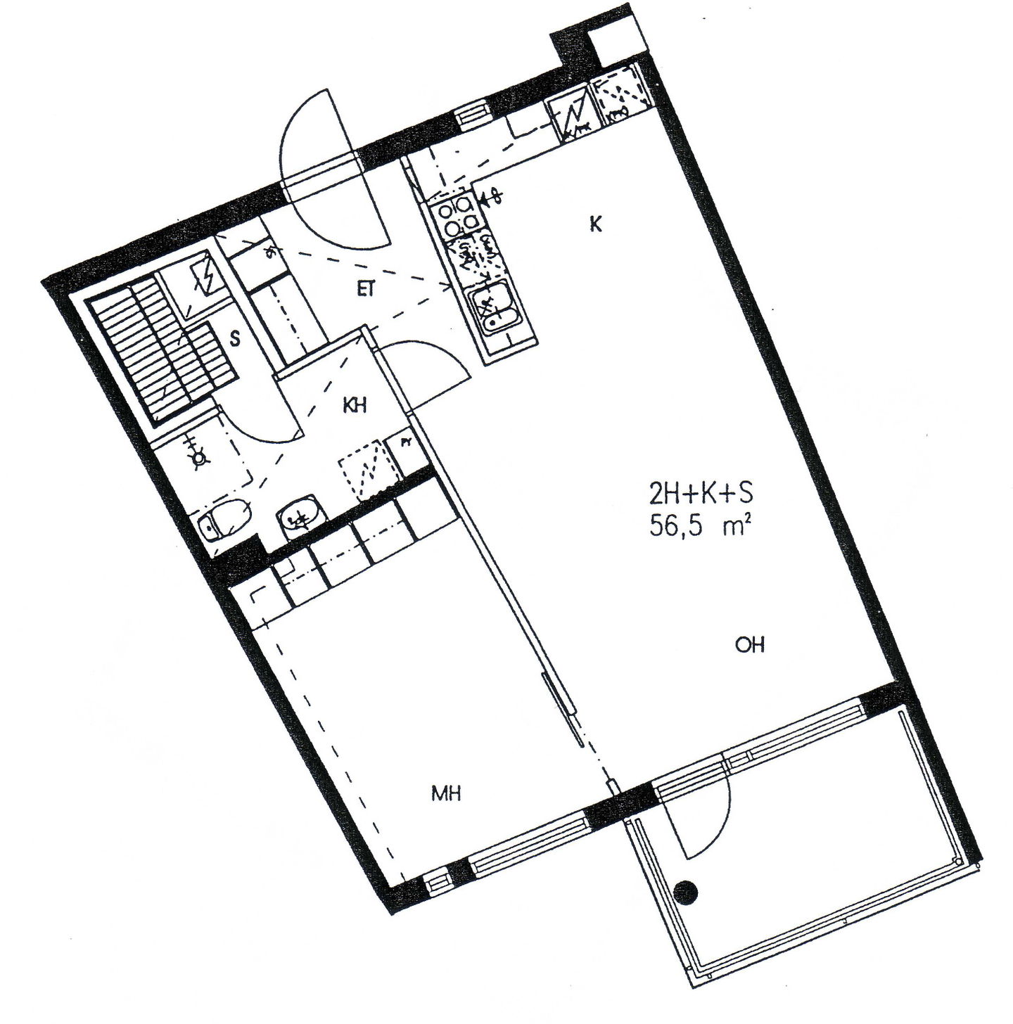
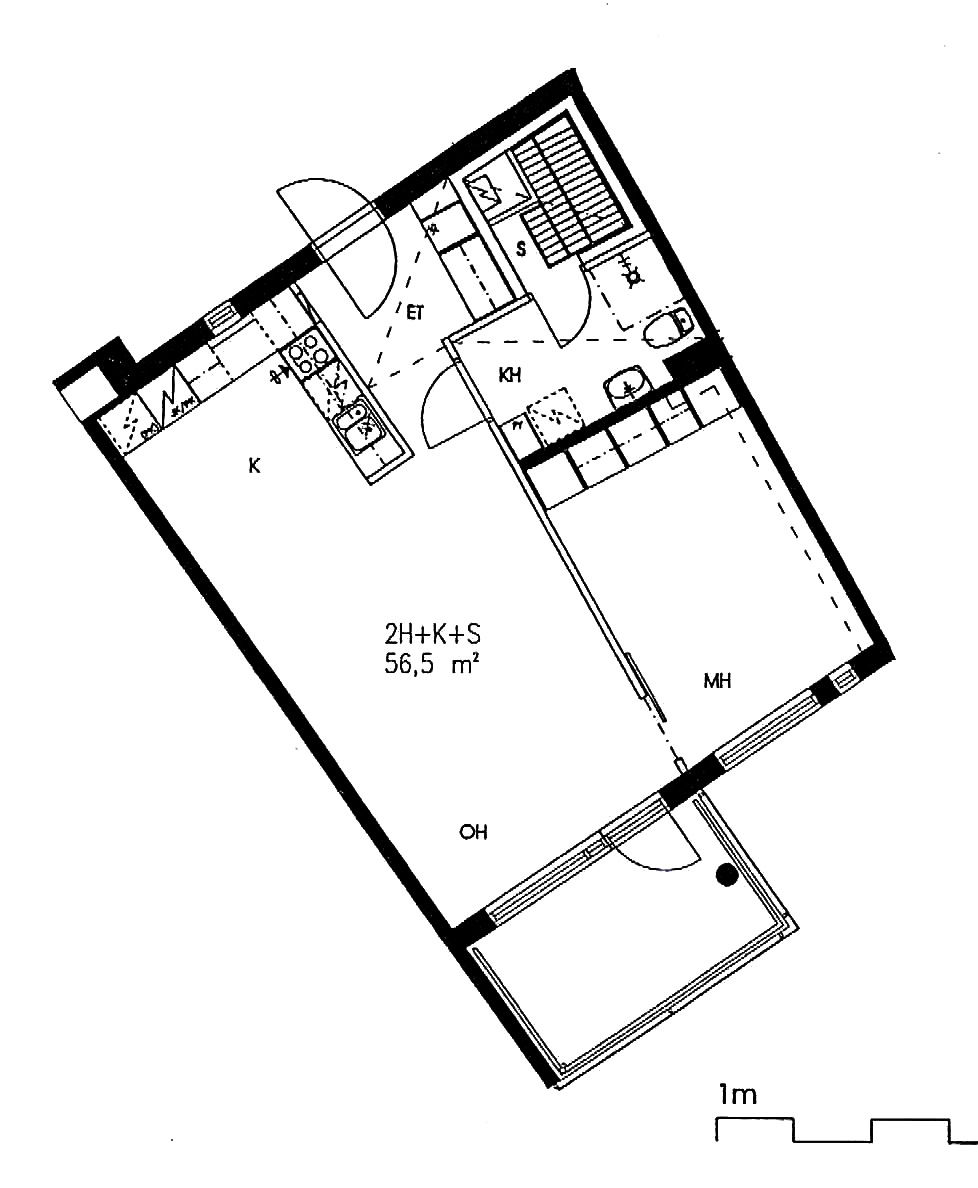
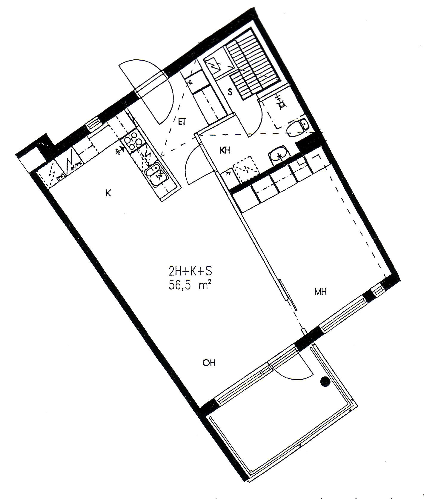
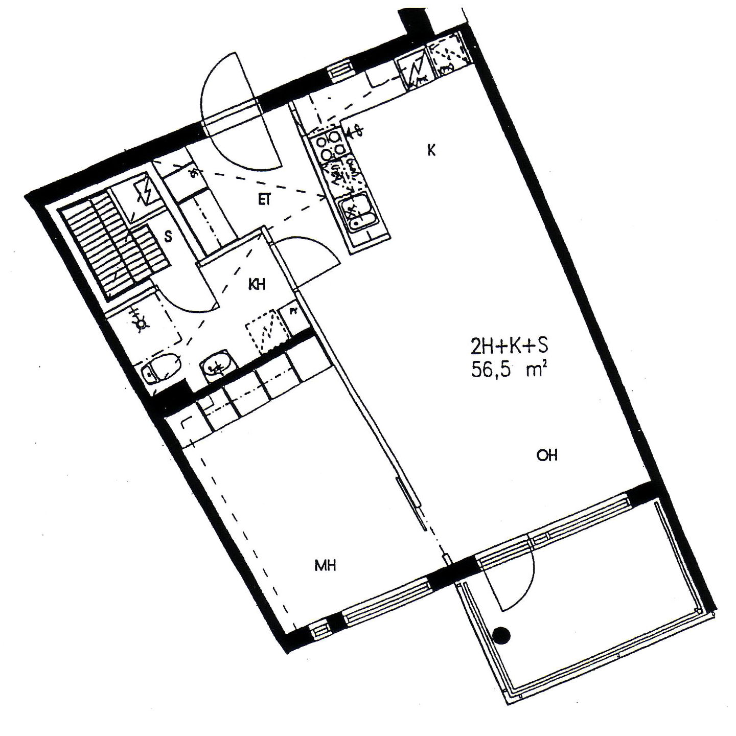
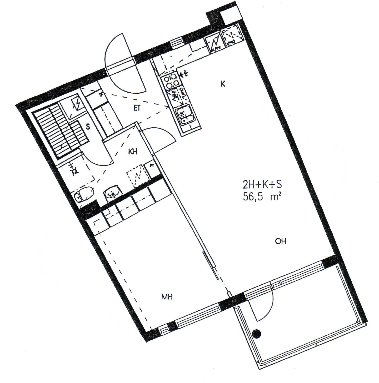
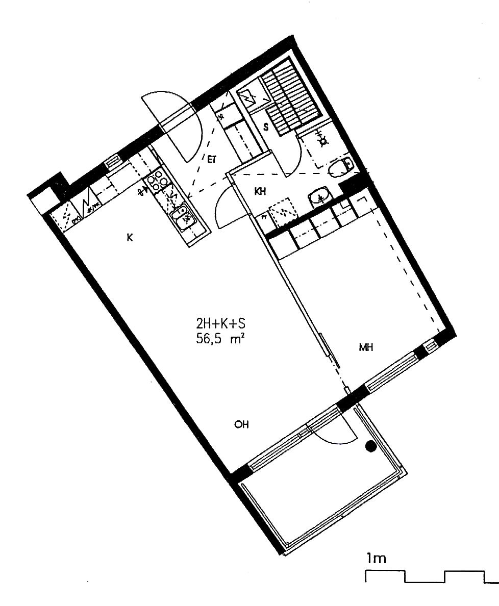
Metsolantie 7 A 45
2h+k+s
, Kerrostalo
56.5 m2
4/5
Metsolantie 7 A 45
2h+k+s
, Kerrostalo
56.5 m2
Kerros 4/5
Metsolantie 7 A 43
2h+k+s
, Kerrostalo
56.5 m2
4/5
Metsolantie 7 A 43
2h+k+s
, Kerrostalo
56.5 m2
Kerros 4/5
Metsolantie 7 A 54
2h+k+s
, Kerrostalo
56.5 m2
5/5
Metsolantie 7 A 54
2h+k+s
, Kerrostalo
56.5 m2
Kerros 5/5
Metsolantie 7 A 51
2h+k+s
, Kerrostalo
56.5 m2
5/5
Metsolantie 7 A 51
2h+k+s
, Kerrostalo
56.5 m2
Kerros 5/5
Metsolantie 7 A 33
2h+k+s
, Kerrostalo
56.5 m2
3/5
Metsolantie 7 A 33
2h+k+s
, Kerrostalo
56.5 m2
Kerros 3/5
Metsolantie 7 A 22
2h+k+s
, Kerrostalo
56.5 m2
2/5
Metsolantie 7 A 22
2h+k+s
, Kerrostalo
56.5 m2
Kerros 2/5
Metsolantie 7 A 32
2h+k+s
, Kerrostalo
56.5 m2
3/5
Metsolantie 7 A 32
2h+k+s
, Kerrostalo
56.5 m2
Kerros 3/5
Metsolantie 7 A 19
2h+k+s
, Kerrostalo
56.5 m2
2/5
Metsolantie 7 A 19
2h+k+s
, Kerrostalo
56.5 m2
Kerros 2/5
Metsolantie 7 A 30
2h+k+s
, Kerrostalo
56.5 m2
3/5
Metsolantie 7 A 30
2h+k+s
, Kerrostalo
56.5 m2
Kerros 3/5
Metsolantie 7 A 20
2h+k+s
, Kerrostalo
56.5 m2
2/5
Metsolantie 7 A 20
2h+k+s
, Kerrostalo
56.5 m2
Kerros 2/5
Metsolantie 7 A 8
2h+k+s
, Kerrostalo
56.5 m2
1/5
Metsolantie 7 A 8
2h+k+s
, Kerrostalo
56.5 m2
Kerros 1/5
Metsolantie 7 A 50
2h+k+s
, Kerrostalo
56.5 m2
5/5
Metsolantie 7 A 50
2h+k+s
, Kerrostalo
56.5 m2
Kerros 5/5
Metsolantie 7 A 52
2h+k+s
, Kerrostalo
56.5 m2
5/5
Metsolantie 7 A 52
2h+k+s
, Kerrostalo
56.5 m2
Kerros 5/5
Metsolantie 7 A 10
2h+k+s
, Kerrostalo
56.5 m2
1/5
Metsolantie 7 A 10
2h+k+s
, Kerrostalo
56.5 m2
Kerros 1/5
Metsolantie 7 A 46
2h+k+s
, Kerrostalo
56.5 m2
4/5
Metsolantie 7 A 46
2h+k+s
, Kerrostalo
56.5 m2
Kerros 4/5
Metsolantie 7 A 53
2h+k+s
, Kerrostalo
56.5 m2
5/5
Metsolantie 7 A 53
2h+k+s
, Kerrostalo
56.5 m2
Kerros 5/5
Metsolantie 7 A 21
2h+k+s
, Kerrostalo
56.5 m2
2/5
Metsolantie 7 A 21
2h+k+s
, Kerrostalo
56.5 m2
Kerros 2/5
Metsolantie 7 A 44
2h+k+s
, Kerrostalo
56.5 m2
4/5
Metsolantie 7 A 44
2h+k+s
, Kerrostalo
56.5 m2
Kerros 4/5
Metsolantie 7 A 34
2h+k+s
, Kerrostalo
56.5 m2
3/5
Metsolantie 7 A 34
2h+k+s
, Kerrostalo
56.5 m2
Kerros 3/5
Metsolantie 7 A 18
2h+k+s
, Kerrostalo
56.5 m2
Kerros 2/5
Metsolantie 7 A 42
2h+k+s
, Kerrostalo
56.5 m2
4/5
Metsolantie 7 A 42
2h+k+s
, Kerrostalo
56.5 m2
Kerros 4/5
Metsolantie 7 A 31
2h+k+s
, Kerrostalo
56.5 m2
3/5
Metsolantie 7 A 31
2h+k+s
, Kerrostalo
56.5 m2
Kerros 3/5
Metsolantie 7 A 9
2h+k+s
, Kerrostalo
56.5 m2
1/5
Metsolantie 7 A 9
2h+k+s
, Kerrostalo
56.5 m2
Kerros 1/5
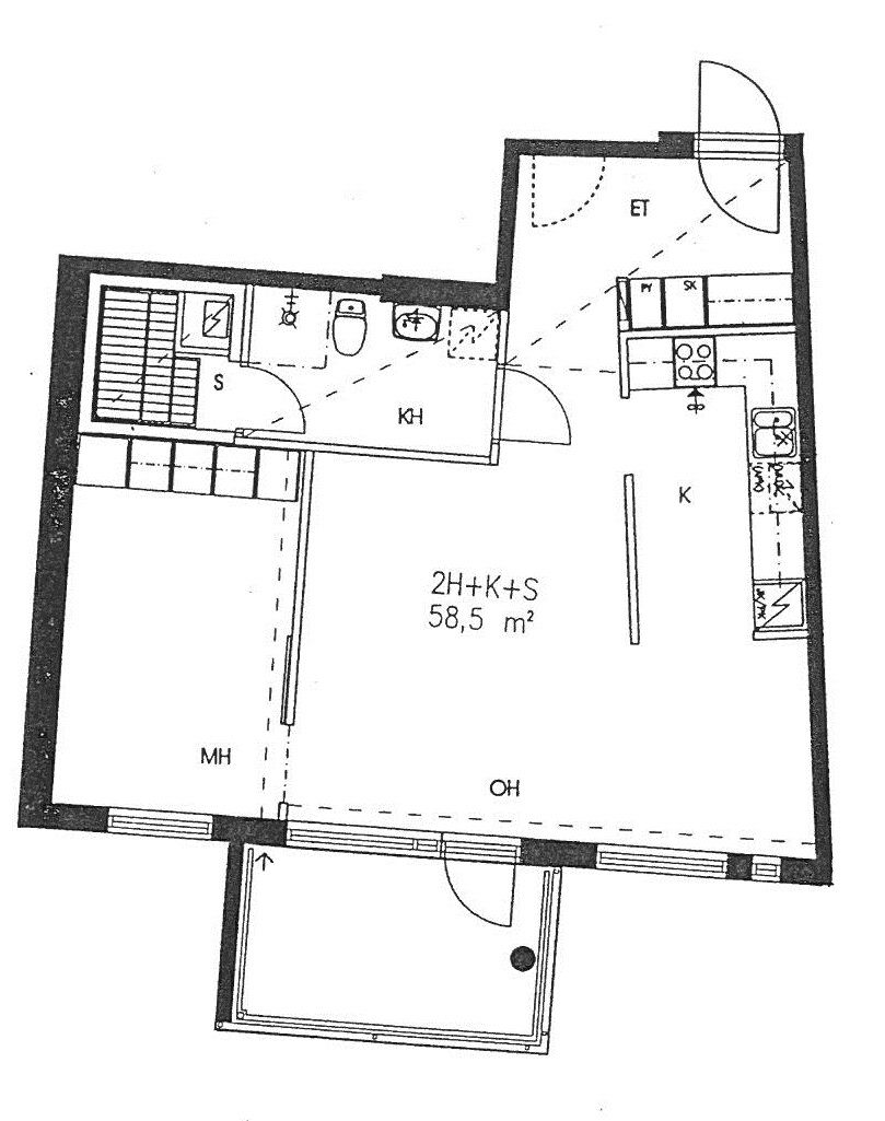
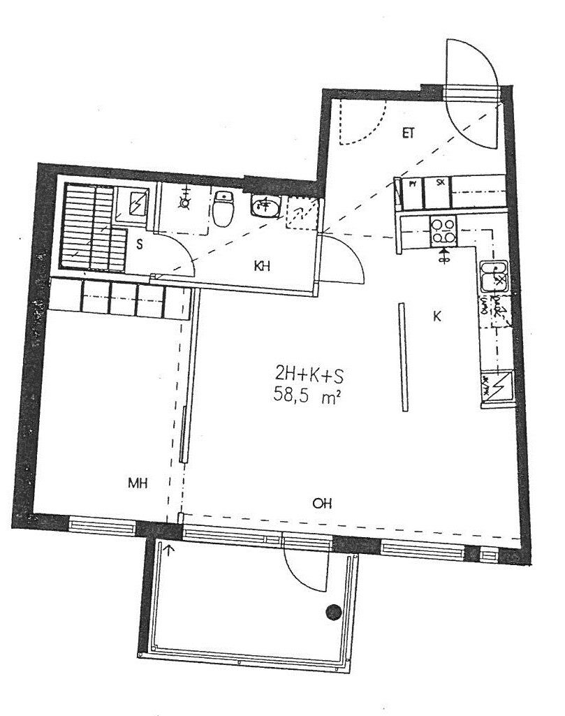
Metsolantie 7 A 24
2h+k+s
, Kerrostalo
58.5 m2
3/5
Metsolantie 7 A 24
2h+k+s
, Kerrostalo
58.5 m2
Kerros 3/5
Metsolantie 7 A 36
2h+k+s
, Kerrostalo
58.5 m2
4/5
Metsolantie 7 A 36
2h+k+s
, Kerrostalo
58.5 m2
Kerros 4/5
Metsolantie 7 A 12
2h+k+s
, Kerrostalo
58.5 m2
2/5
Metsolantie 7 A 12
2h+k+s
, Kerrostalo
58.5 m2
Kerros 2/5
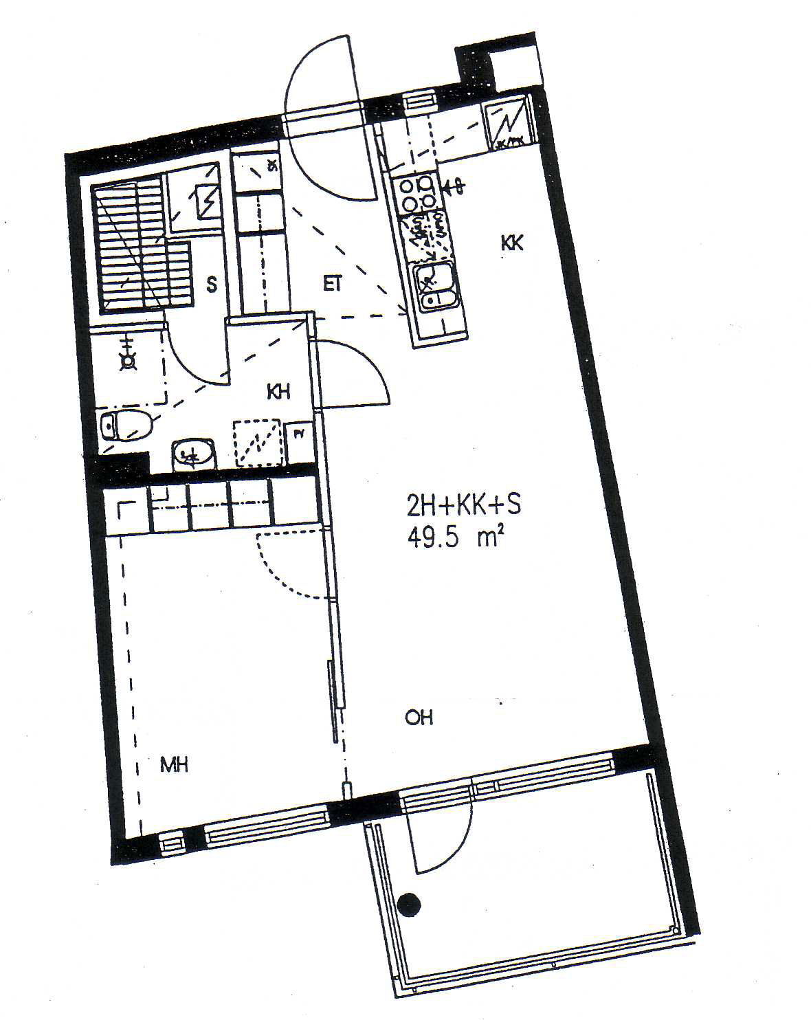
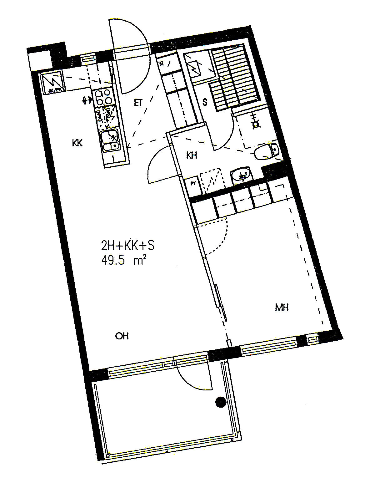
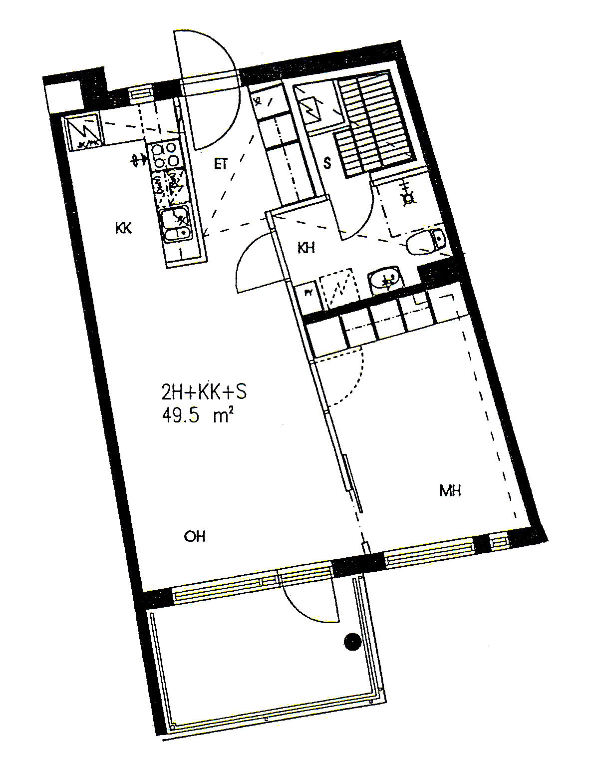
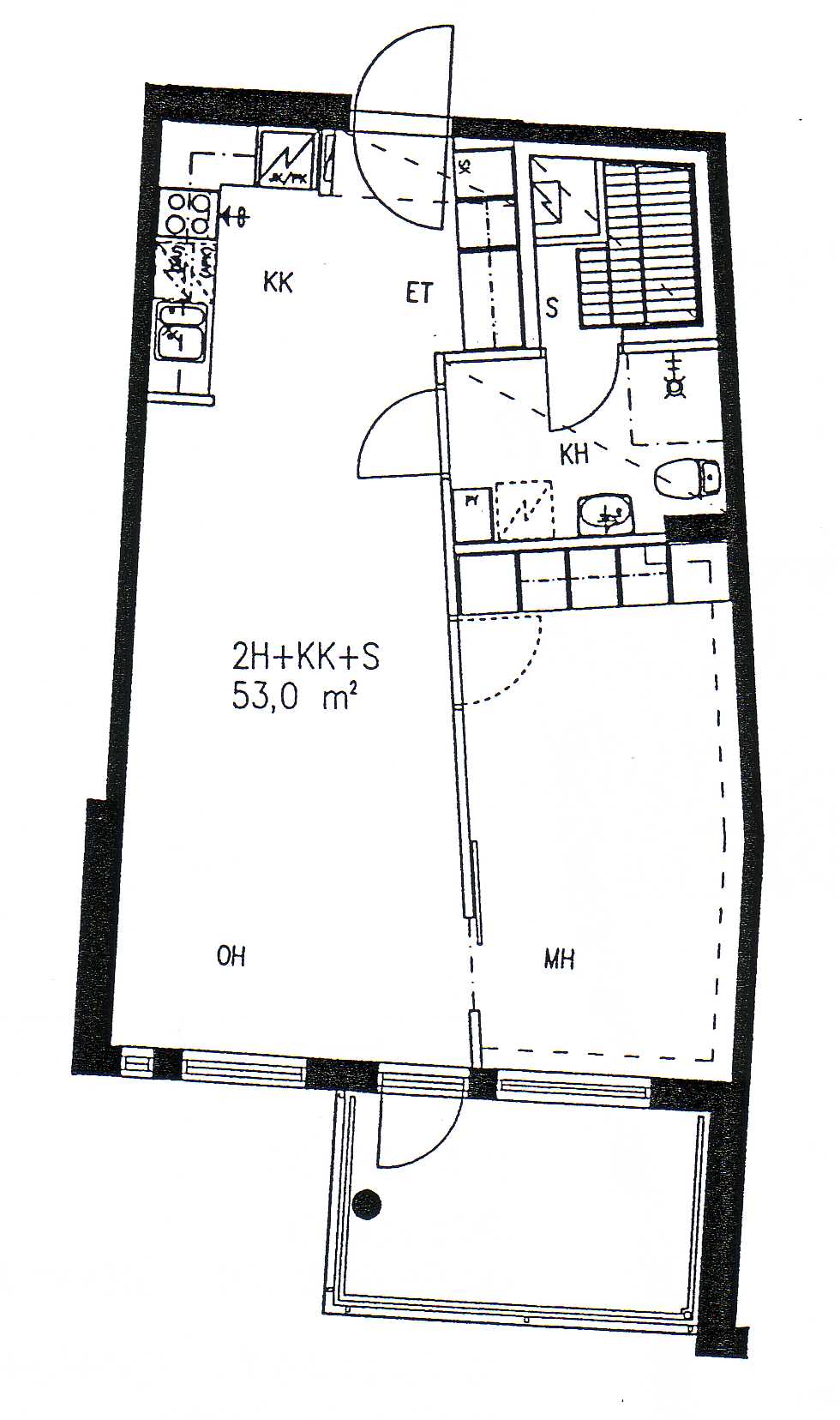
Metsolantie 7 A 28
2h+kk+s
, Kerrostalo
49.5 m2
3/5
Metsolantie 7 A 28
2h+kk+s
, Kerrostalo
49.5 m2
Kerros 3/5
Metsolantie 7 A 47
2h+kk+s
, Kerrostalo
49.5 m2
5/5
Metsolantie 7 A 47
2h+kk+s
, Kerrostalo
49.5 m2
Kerros 5/5
Metsolantie 7 A 5
2h+kk+s
, Kerrostalo
49.5 m2
1/5
Metsolantie 7 A 5
2h+kk+s
, Kerrostalo
49.5 m2
Kerros 1/5
Metsolantie 7 A 27
2h+kk+s
, Kerrostalo
49.5 m2
3/5
Metsolantie 7 A 27
2h+kk+s
, Kerrostalo
49.5 m2
Kerros 3/5
Metsolantie 7 A 6
2h+kk+s
, Kerrostalo
49.5 m2
1/5
Metsolantie 7 A 6
2h+kk+s
, Kerrostalo
49.5 m2
Kerros 1/5
Metsolantie 7 A 26
2h+kk+s
, Kerrostalo
49.5 m2
3/5
Metsolantie 7 A 26
2h+kk+s
, Kerrostalo
49.5 m2
Kerros 3/5
Metsolantie 7 A 4
2h+kk+s
, Kerrostalo
49.5 m2
1/5
Metsolantie 7 A 4
2h+kk+s
, Kerrostalo
49.5 m2
Kerros 1/5
Metsolantie 7 A 40
2h+kk+s
, Kerrostalo
49.5 m2
4/5
Metsolantie 7 A 40
2h+kk+s
, Kerrostalo
49.5 m2
Kerros 4/5
Metsolantie 7 A 13
2h+kk+s
, Kerrostalo
49.5 m2
2/5
Metsolantie 7 A 13
2h+kk+s
, Kerrostalo
49.5 m2
Kerros 2/5
Metsolantie 7 A 48
2h+kk+s
, Kerrostalo
49.5 m2
5/5
Metsolantie 7 A 48
2h+kk+s
, Kerrostalo
49.5 m2
Kerros 5/5
Metsolantie 7 A 38
2h+kk+s
, Kerrostalo
49.5 m2
4/5
Metsolantie 7 A 38
2h+kk+s
, Kerrostalo
49.5 m2
Kerros 4/5
Metsolantie 7 A 39
2h+kk+s
, Kerrostalo
49.5 m2
4/5
Metsolantie 7 A 39
2h+kk+s
, Kerrostalo
49.5 m2
Kerros 4/5
Metsolantie 7 A 14
2h+kk+s
, Kerrostalo
49.5 m2
2/5
Metsolantie 7 A 14
2h+kk+s
, Kerrostalo
49.5 m2
Kerros 2/5
Metsolantie 7 A 37
2h+kk+s
, Kerrostalo
49.5 m2
4/5
Metsolantie 7 A 37
2h+kk+s
, Kerrostalo
49.5 m2
Kerros 4/5
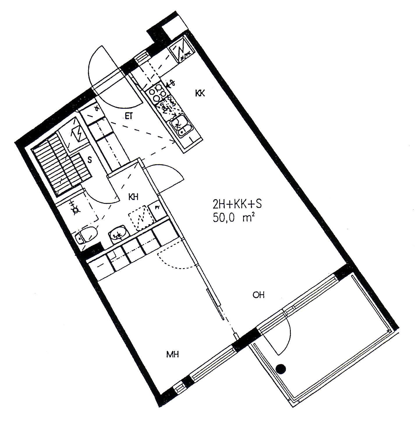
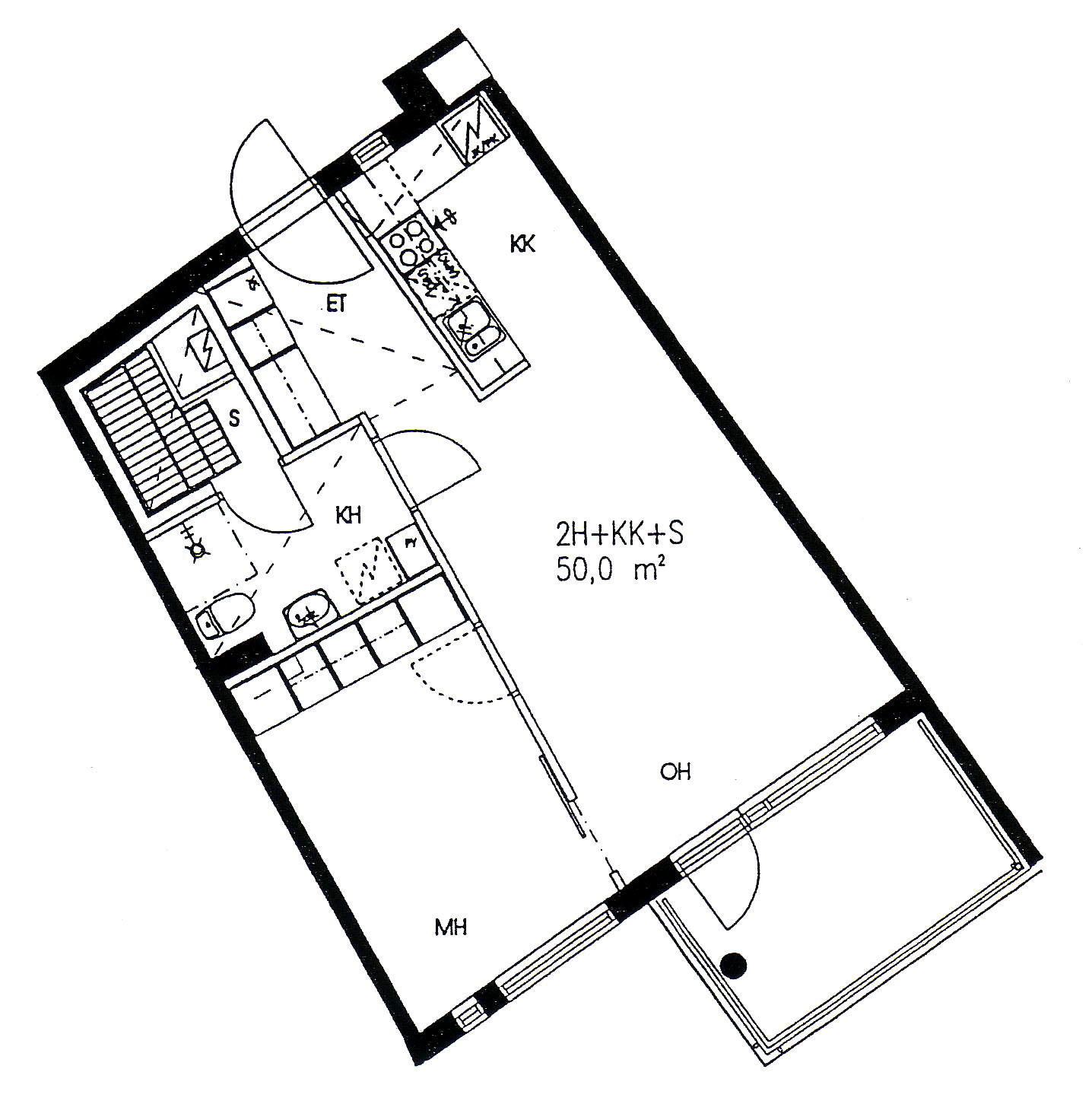
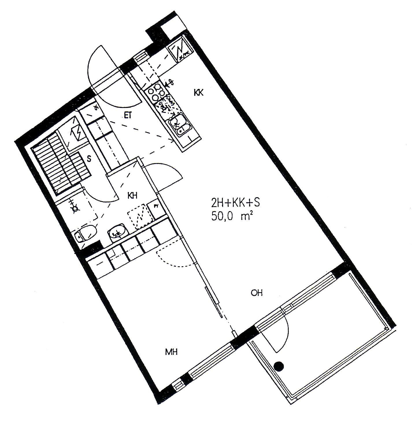
Metsolantie 7 A 41
2h+kk+s
, Kerrostalo
50 m2
4/5
Metsolantie 7 A 41
2h+kk+s
, Kerrostalo
50 m2
Kerros 4/5
Metsolantie 7 A 17
2h+kk+s
, Kerrostalo
50 m2
2/5
Metsolantie 7 A 17
2h+kk+s
, Kerrostalo
50 m2
Kerros 2/5
Metsolantie 7 A 29
2h+kk+s
, Kerrostalo
50 m2
3/5
Metsolantie 7 A 29
2h+kk+s
, Kerrostalo
50 m2
Kerros 3/5
Metsolantie 7 A 49
2h+kk+s
, Kerrostalo
50 m2
5/5
Metsolantie 7 A 49
2h+kk+s
, Kerrostalo
50 m2
Kerros 5/5
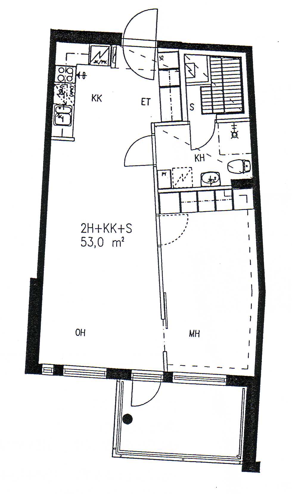
Metsolantie 7 B 67
2h+kk+s
, Kerrostalo
53 m2
4/5
Metsolantie 7 B 67
2h+kk+s
, Kerrostalo
53 m2
Kerros 4/5
Metsolantie 7 B 63
2h+kk+s
, Kerrostalo
53 m2
3/5
Metsolantie 7 B 63
2h+kk+s
, Kerrostalo
53 m2
Kerros 3/5
Metsolantie 7 B 57
2h+kk+s
, Kerrostalo
53 m2
2/5
Metsolantie 7 B 57
2h+kk+s
, Kerrostalo
53 m2
Kerros 2/5
Metsolantie 7 B 73
2h+kk+s
, Kerrostalo
53 m2
5/5
Metsolantie 7 B 73
2h+kk+s
, Kerrostalo
53 m2
Kerros 5/5
Metsolantie 7 B 68
2h+kk+s
, Kerrostalo
53 m2
4/5
Metsolantie 7 B 68
2h+kk+s
, Kerrostalo
53 m2
Kerros 4/5
Metsolantie 7 B 72
2h+kk+s
, Kerrostalo
53 m2
5/5
Metsolantie 7 B 72
2h+kk+s
, Kerrostalo
53 m2
Kerros 5/5
Metsolantie 7 B 62
2h+kk+s
, Kerrostalo
53 m2
3/5
Metsolantie 7 B 62
2h+kk+s
, Kerrostalo
53 m2
Kerros 3/5
Metsolantie 7 B 71
2h+kt+s
, Kerrostalo
52.5 m2
5/5
Metsolantie 7 B 71
2h+kt+s
, Kerrostalo
52.5 m2
Kerros 5/5
Metsolantie 7 B 56
2h+kt+s
, Kerrostalo
52.5 m2
2/5
Metsolantie 7 B 56
2h+kt+s
, Kerrostalo
52.5 m2
Kerros 2/5
Metsolantie 7 B 66
2h+kt+s
, Kerrostalo
52.5 m2
4/5
Metsolantie 7 B 66
2h+kt+s
, Kerrostalo
52.5 m2
Kerros 4/5
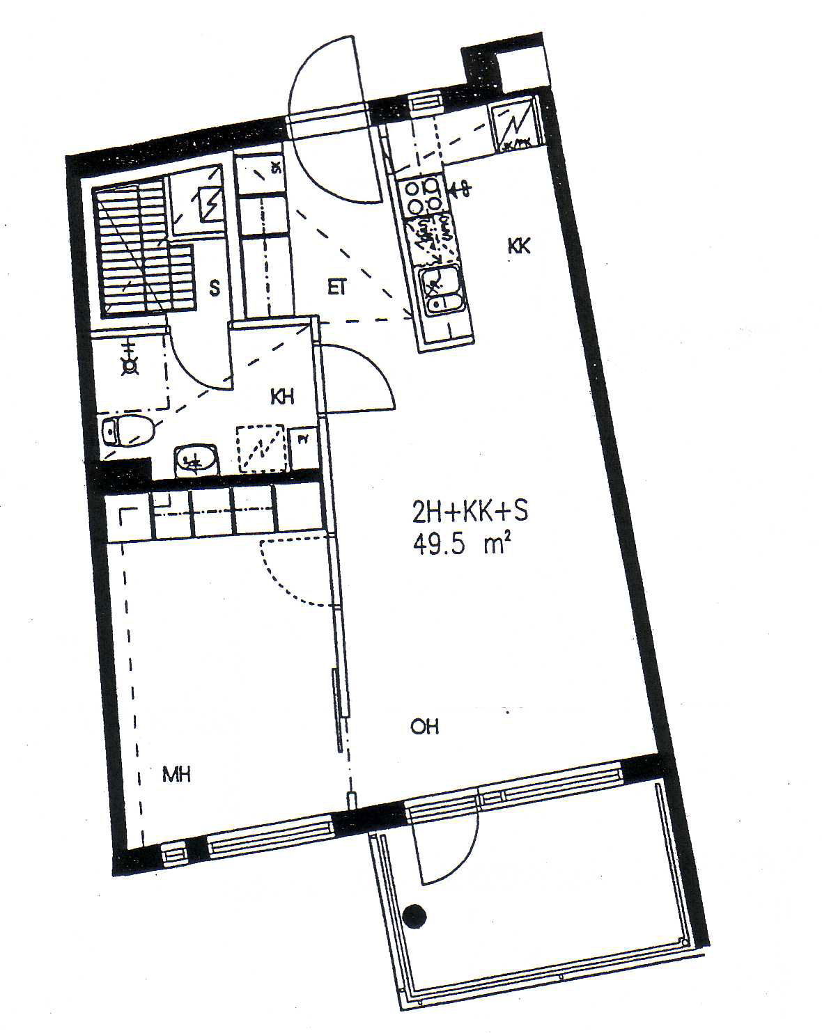
Metsolantie 7 A 15
2h+tk+s
, Kerrostalo
49.5 m2
2/5
Metsolantie 7 A 15
2h+tk+s
, Kerrostalo
49.5 m2
Kerros 2/5
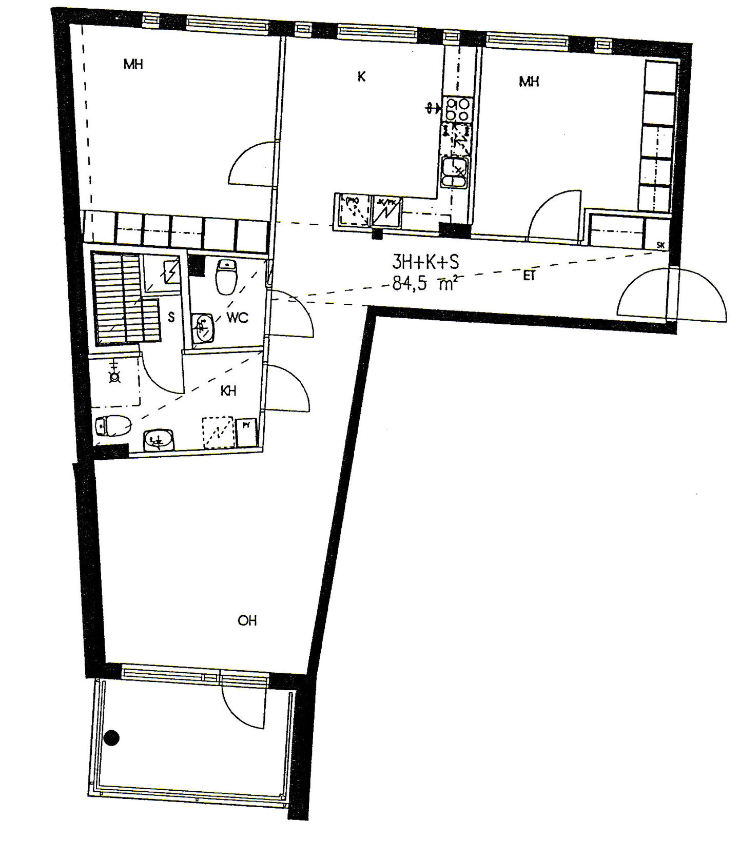
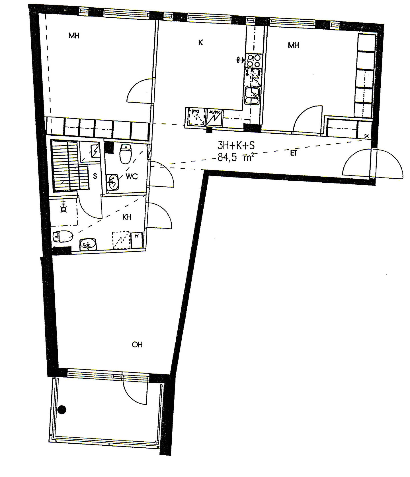
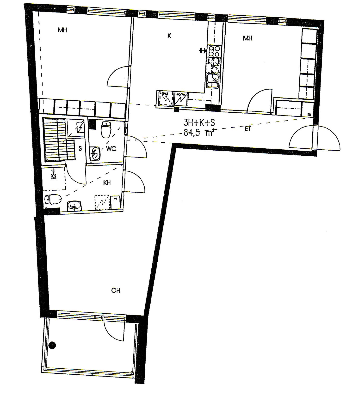
Metsolantie 7 B 74
3h+k+s
, Kerrostalo
84.5 m2
5/5
Metsolantie 7 B 74
3h+k+s
, Kerrostalo
84.5 m2
Kerros 5/5
Metsolantie 7 B 69
3h+k+s
, Kerrostalo
84.5 m2
4/5
Metsolantie 7 B 69
3h+k+s
, Kerrostalo
84.5 m2
Kerros 4/5
Metsolantie 7 B 59
3h+k+s
, Kerrostalo
84.5 m2
2/5
Metsolantie 7 B 59
3h+k+s
, Kerrostalo
84.5 m2
Kerros 2/5
Metsolantie 7 B 64
3h+k+s
, Kerrostalo
84.5 m2
3/5
Metsolantie 7 B 64
3h+k+s
, Kerrostalo
84.5 m2
Kerros 3/5


