Kohteen esittely
Kohde sijaitsee aivan Korson palveluiden tuntumassa. Kolmikerroksisessa talossa (B- ja C-raput) ei ole hissiä mutta nelikerroksisessa A-rapussa on hissi. Asuntojen pohjaratkaisut ovat toimivia ja asumisoikeusmaksut ovat edullisia. Kohde on peruskorjattu vuonna 2021.
Miksi Asuntosäätiö?
Me uskomme, että onnellinen koti ja laadukas asuminen kuuluvat kaikille. Emme tavoittele voittoa, vaan käytämme kaikki vastikkeista ja vuokrista saadut tulot toimintamme kehittämiseen. Jo yli 33 000 suomalaista on valinnut Asuntosäätiön tarjoaman kodin. Tiesithän, että myös lemmikit ovat tervetulleita kaikkiin koteihimme!
Rakennuksen tiedot
- Asumismuoto Asokoti
- Keskimääräinen asumisoikeusmaksu / jm² 179,26€
- Hissit 1
- Talosauna Ei
- Pyykkitupa Kyllä
- Kuivaushuone Kyllä
- Asuntoja 36
- Asuinrakennuksia 2
- Käyttövastike / kk / jm² 13,77€
- Valmistumisvuosi 1992
- Peruskorjattu 2021
- Porrashuoneet 3
- Energialuokka D
- Lämmitysmuoto Kauko
- Autopaikat 40
- Askarteluhuone 2
- Laajakaista DNA Welho
- Antennijärjestelmä Kaapeli
- KaapeliTV DNA
- Kattomateriaali Huopa
- Runkomateriaali Betoni
- Lemmikit Sallittu
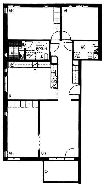
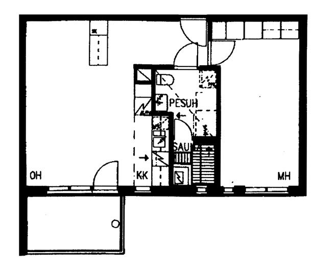
Huoneistot ja pohjakuvat: Minkkitie 10, Piharakennus, Kerrostalo
Lisää hakemukselle kaikki haluamasi asuntotyypit. Mahdollisuutesi asunnon saamiseksi paranevat, kun voimme tarjota sinulle kaikkia valitsemasi asuntotyypin asuntoja, jotka mahdollisesti vapautuvat myöhemmin tästä kohteesta. Olet automaattisesti näiden asuntotyyppien hakuprosessissa.
Minkkitie 10 C 26
1h+tk+s
, Kerrostalo
45 m2
K/4
Minkkitie 10 C 26
1h+tk+s
, Kerrostalo
45 m2
Kerros K/4
Minkkitie 10 B 16
1h+tk+s
, Kerrostalo
45 m2
K/4
Minkkitie 10 B 16
1h+tk+s
, Kerrostalo
45 m2
Kerros K/4
Minkkitie 10 B 17
2h+k+s
, Kerrostalo
58 m2
1/4
Minkkitie 10 B 17
2h+k+s
, Kerrostalo
58 m2
Kerros 1/4
Minkkitie 10 C 28
2h+k+s
, Kerrostalo
58 m2
1/4
Minkkitie 10 C 28
2h+k+s
, Kerrostalo
58 m2
Kerros 1/4
Minkkitie 10 C 31
2h+k+s
, Kerrostalo
65 m2
2/4
Minkkitie 10 C 31
2h+k+s
, Kerrostalo
65 m2
Kerros 2/4
Minkkitie 10 C 34
2h+k+s
, Kerrostalo
65 m2
3/4
Minkkitie 10 C 34
2h+k+s
, Kerrostalo
65 m2
Kerros 3/4
Minkkitie 10 B 20
2h+k+s
, Kerrostalo
65 m2
2/4
Minkkitie 10 B 20
2h+k+s
, Kerrostalo
65 m2
Kerros 2/4
Minkkitie 10 B 23
2h+k+s
, Kerrostalo
65 m2
3/4
Minkkitie 10 B 23
2h+k+s
, Kerrostalo
65 m2
Kerros 3/4
Minkkitie 10 A 12
2h+k+s
, Kerrostalo
66 m2
3/4
Minkkitie 10 A 12
2h+k+s
, Kerrostalo
66 m2
Kerros 3/4
Minkkitie 10 A 4
2h+k+s
, Kerrostalo
66 m2
1/4
Minkkitie 10 A 4
2h+k+s
, Kerrostalo
66 m2
Kerros 1/4
Minkkitie 10 A 8
2h+k+s
, Kerrostalo
66 m2
2/4
Minkkitie 10 A 8
2h+k+s
, Kerrostalo
66 m2
Kerros 2/4
Minkkitie 10 B 21
2h+kk+s
, Kerrostalo
44.5 m2
2/4
Minkkitie 10 B 21
2h+kk+s
, Kerrostalo
44.5 m2
Kerros 2/4
Minkkitie 10 C 35
2h+kk+s
, Kerrostalo
44.5 m2
3/4
Minkkitie 10 C 35
2h+kk+s
, Kerrostalo
44.5 m2
Kerros 3/4
Minkkitie 10 C 29
2h+kk+s
, Kerrostalo
44.5 m2
1/4
Minkkitie 10 C 29
2h+kk+s
, Kerrostalo
44.5 m2
Kerros 1/4
Minkkitie 10 B 18
2h+kk+s
, Kerrostalo
44.5 m2
1/4
Minkkitie 10 B 18
2h+kk+s
, Kerrostalo
44.5 m2
Kerros 1/4
Minkkitie 10 C 32
2h+kk+s
, Kerrostalo
44.5 m2
2/4
Minkkitie 10 C 32
2h+kk+s
, Kerrostalo
44.5 m2
Kerros 2/4
Minkkitie 10 B 24
2h+kk+s
, Kerrostalo
44.5 m2
3/4
Minkkitie 10 B 24
2h+kk+s
, Kerrostalo
44.5 m2
Kerros 3/4
Minkkitie 10 B 15
2h+kk+s
, Kerrostalo
45.5 m2
K/4
Minkkitie 10 B 15
2h+kk+s
, Kerrostalo
45.5 m2
Kerros K/4
Minkkitie 10 C 27
2h+kk+s
, Kerrostalo
45.5 m2
K/4
Minkkitie 10 C 27
2h+kk+s
, Kerrostalo
45.5 m2
Kerros K/4
Minkkitie 10 A 5
2h+kk+s
, Kerrostalo
50.5 m2
1/4
Minkkitie 10 A 5
2h+kk+s
, Kerrostalo
50.5 m2
Kerros 1/4
Minkkitie 10 A 1
2h+kk+s
, Kerrostalo
50.5 m2
K/4
Minkkitie 10 A 1
2h+kk+s
, Kerrostalo
50.5 m2
Kerros K/4
Minkkitie 10 A 13
2h+kk+s
, Kerrostalo
50.5 m2
3/4
Minkkitie 10 A 13
2h+kk+s
, Kerrostalo
50.5 m2
Kerros 3/4
Minkkitie 10 A 9
2h+kk+s
, Kerrostalo
50.5 m2
2/4
Minkkitie 10 A 9
2h+kk+s
, Kerrostalo
50.5 m2
Kerros 2/4
Minkkitie 10 A 11
3h+k+s
, Kerrostalo
76.5 m2
3/4
Minkkitie 10 A 11
3h+k+s
, Kerrostalo
76.5 m2
Kerros 3/4
Minkkitie 10 C 30
3h+k+s
, Kerrostalo
82 m2
1/4
Minkkitie 10 C 30
3h+k+s
, Kerrostalo
82 m2
Kerros 1/4
Minkkitie 10 B 25
3h+k+s
, Kerrostalo
82 m2
3/4
Minkkitie 10 B 25
3h+k+s
, Kerrostalo
82 m2
Kerros 3/4
Minkkitie 10 B 19
3h+k+s
, Kerrostalo
82 m2
1/4
Minkkitie 10 B 19
3h+k+s
, Kerrostalo
82 m2
Kerros 1/4
Minkkitie 10 C 33
3h+k+s
, Kerrostalo
82 m2
2/4
Minkkitie 10 C 33
3h+k+s
, Kerrostalo
82 m2
Kerros 2/4
Minkkitie 10 C 36
3h+k+s
, Kerrostalo
82 m2
3/4
Minkkitie 10 C 36
3h+k+s
, Kerrostalo
82 m2
Kerros 3/4
Minkkitie 10 B 22
3h+k+s
, Kerrostalo
82 m2
2/4
Minkkitie 10 B 22
3h+k+s
, Kerrostalo
82 m2
Kerros 2/4
Minkkitie 10 A 6
4h+k+s
, Kerrostalo
100 m2
1/4
Minkkitie 10 A 6
4h+k+s
, Kerrostalo
100 m2
Kerros 1/4
Minkkitie 10 A 14
4h+k+s
, Kerrostalo
100 m2
3/4
Minkkitie 10 A 14
4h+k+s
, Kerrostalo
100 m2
Kerros 3/4
Minkkitie 10 A 10
4h+k+s
, Kerrostalo
100 m2
2/4
Minkkitie 10 A 10
4h+k+s
, Kerrostalo
100 m2
Kerros 2/4
Minkkitie 10 A 2
4h+k+s
, Kerrostalo
100 m2
K/4
Minkkitie 10 A 2
4h+k+s
, Kerrostalo
100 m2
Kerros K/4

