Kohteen esittely
Kuninkaalan pientaloalueella kodikas pieparitalokohde, jossa asunnot ovat yhdessä tasossa. Asunnot ovat neljän huoneen ja keittiön huoneistoja, kooltaan 95,5 neliötä. Kaikkiin asuntoihin kuuluu oma piha.
Lähellä on Tikkurilan laajat palvelut ja Keravanjoki rantareitteineen. Hyvät liikenneyhteydet niin julkisilla kulkuneuvoilla kuin omalla autollakin.
Miksi Asuntosäätiö?
Me uskomme, että onnellinen koti ja laadukas asuminen kuuluvat kaikille. Emme tavoittele voittoa, vaan käytämme kaikki vastikkeista ja vuokrista saadut tulot toimintamme kehittämiseen. Jo yli 33 000 suomalaista on valinnut Asuntosäätiön tarjoaman kodin. Tiesithän, että myös lemmikit ovat tervetulleita kaikkiin koteihimme!
Rakennuksen tiedot
- Asumismuoto Asokoti
- Keskimääräinen asumisoikeusmaksu / jm² 375,37€
- Hissit Ei
- Talosauna Ei
- Asuntoja 6
- Asuinrakennuksia 3
- Käyttövastike / kk / jm² 15,6€
- Valmistumisvuosi 1998
- Energialuokka D
- Lämmitysmuoto Kauko
- Autopaikat 12
- Laajakaista DNA 4G
- Antennijärjestelmä Harava
- Kattomateriaali Tiili
- Runkomateriaali Betoni
- Lemmikit Sallittu
Huoneistot ja pohjakuvat: Ahjokuja 1, Taoskuja 2, Paritalo, Piharakennus
Lisää hakemukselle kaikki haluamasi asuntotyypit. Mahdollisuutesi asunnon saamiseksi paranevat, kun voimme tarjota sinulle kaikkia valitsemasi asuntotyypin asuntoja, jotka mahdollisesti vapautuvat myöhemmin tästä kohteesta. Olet automaattisesti näiden asuntotyyppien hakuprosessissa.
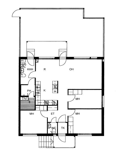
Taoskuja 2 A 2
4h+k+s
, Paritalo
95.5 m2
1/1
Taoskuja 2 A 2
4h+k+s
, Paritalo
95.5 m2
Kerros 1/1
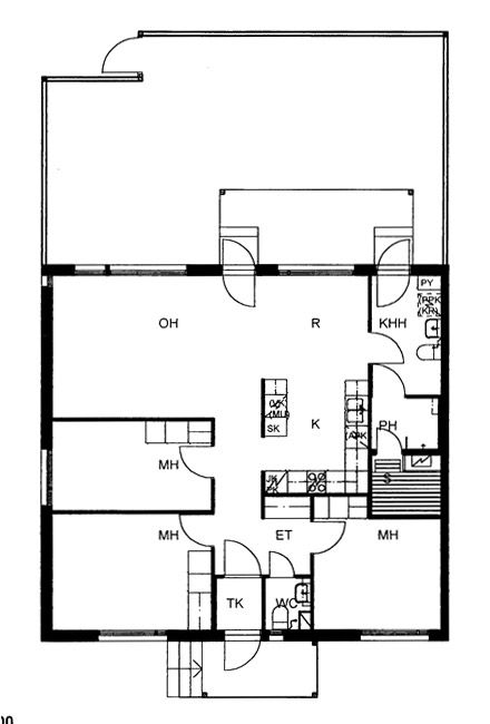
Taoskuja 2 A 1
4h+k+s
, Paritalo
95.5 m2
1/1
Taoskuja 2 A 1
4h+k+s
, Paritalo
95.5 m2
Kerros 1/1
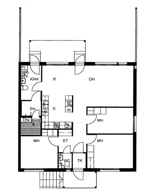
Taoskuja 2 B 3
4h+k+s
, Paritalo
95.5 m2
1/1
Taoskuja 2 B 3
4h+k+s
, Paritalo
95.5 m2
Kerros 1/1
Ahjokuja 1 C 6
4h+k+s
, Paritalo
95.5 m2
1/1
Ahjokuja 1 C 6
4h+k+s
, Paritalo
95.5 m2
Kerros 1/1

