Kohteen esittely
Viihtyisä pieni rivitalokohde lähellä Rajakylää. Asunnot ovat 3-4 huoneen ja erillisen keittiön huoneistoja, joissa on oma sauna ja piha. Asunnot kahdessa tasossa.
Lähialueella on useampi päiväkoti ja koulu sekä esimerkiksi ruokakaupat. Vierestä lähtee laajat ulkoilualueet Mustavuoren luonnonsuojelualueelle ja aina merenlahteen asti.
Miksi Asuntosäätiö?
Me uskomme, että onnellinen koti ja laadukas asuminen kuuluvat kaikille. Emme tavoittele voittoa, vaan käytämme kaikki vastikkeista ja vuokrista saadut tulot toimintamme kehittämiseen. Jo yli 33 000 suomalaista on valinnut Asuntosäätiön tarjoaman kodin. Tiesithän, että myös lemmikit ovat tervetulleita kaikkiin koteihimme!
Rakennuksen tiedot
- Asumismuoto Asokoti
- Keskimääräinen asumisoikeusmaksu / jm² 392,92€
- Hissit Ei
- Talosauna Ei
- Asuntoja 4
- Asuinrakennuksia 1
- Käyttövastike / kk / jm² 15,67€
- Valmistumisvuosi 1997
- Energialuokka D
- Lämmitysmuoto Kauko
- Autopaikat 8
- Laajakaista DNA Welho
- Antennijärjestelmä Kaapeli
- KaapeliTV DNA
- Kattomateriaali Tiili
- Runkomateriaali Betoni
- Lemmikit Sallittu
Huoneistot ja pohjakuvat: Vartiokuja 2, Piharakennus, Rivitalo
Lisää hakemukselle kaikki haluamasi asuntotyypit. Mahdollisuutesi asunnon saamiseksi paranevat, kun voimme tarjota sinulle kaikkia valitsemasi asuntotyypin asuntoja, jotka mahdollisesti vapautuvat myöhemmin tästä kohteesta. Olet automaattisesti näiden asuntotyyppien hakuprosessissa.
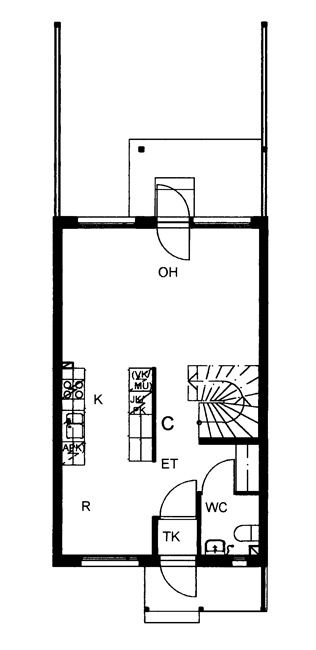
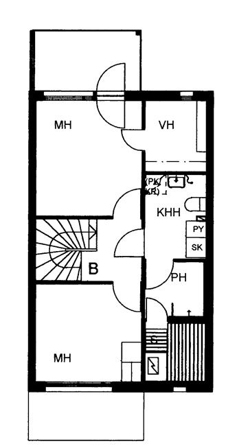
Vartiokuja 2 B 2
3h+k+s
, Rivitalo
84 m2
1-2/2
Vartiokuja 2 B 2
3h+k+s
, Rivitalo
84 m2
Kerros 1-2/2
Vartiokuja 2 A 1
4h+k+s
, Rivitalo
91.5 m2
1-2/2
Vartiokuja 2 A 1
4h+k+s
, Rivitalo
91.5 m2
Kerros 1-2/2
Vartiokuja 2 D 4
4h+k+s
, Rivitalo
91.5 m2
1-2/2
Vartiokuja 2 D 4
4h+k+s
, Rivitalo
91.5 m2
Kerros 1-2/2
