Kohteen esittely
Nelikerroksinen kerrostalokohde Leinelässä, joka sijaitsee aivan kehäradan juna-aseman tuntumassa. Asunnoissa on laminaattilattiat, laatoitetut kylpyhuoneet ja lasitetut parvekkeet.
Palvelut ovat Leinelässä kävelyetäisyydellä. Leinelässä on oma päiväkoti sekä ruokakauppa. Alueen läheisyydestä löytyy muun muassa ylä- ja alakouluja. Luontoa on säilytetty alueen rakentamisessa erityisen paljon, ja muun muassa alueen keskellä olevaan Kukkukallion puistoon on jätetty luonnontilaista mäntymetsää ja muuta kasvillisuutta. Lisäksi Leinelän läpi kulkee mukavia kävelyreittejä. Alueesta omaleimaisen tekee ympäristötaide, jonka teemana on elämän kiertokulku.
Miksi Asuntosäätiö?
Me uskomme, että onnellinen koti ja laadukas asuminen kuuluvat kaikille. Emme tavoittele voittoa, vaan käytämme kaikki vastikkeista ja vuokrista saadut tulot toimintamme kehittämiseen. Jo yli 33 000 suomalaista on valinnut Asuntosäätiön tarjoaman kodin. Tiesithän, että myös lemmikit ovat tervetulleita kaikkiin koteihimme!
Rakennuksen tiedot
- Asumismuoto Asokoti
- Keskimääräinen asumisoikeusmaksu / jm² 586,59€
- Hissit 2
- Talosauna 1
- Kuivaushuone Kyllä
- Asuntoja 33
- Asuinrakennuksia 1
- Käyttövastike / kk / jm² 16,33€
- Valmistumisvuosi 2013
- Porrashuoneet 2
- Energialuokka C
- Lämmitysmuoto Kauko
- Autopaikat 27
- Laajakaista DNA Welho
- Antennijärjestelmä Kaapeli
- KaapeliTV DNA
- Kattomateriaali Huopa
- Runkomateriaali Betoni
- Lemmikit Sallittu
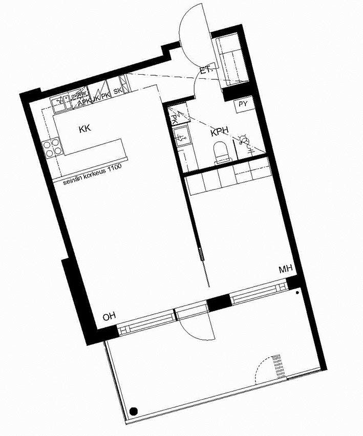
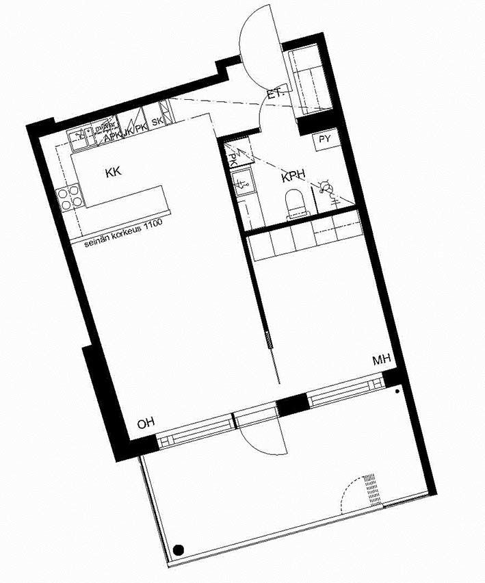
Huoneistot ja pohjakuvat: Leinelänkaari 6, Kerrostalo
Lisää hakemukselle kaikki haluamasi asuntotyypit. Mahdollisuutesi asunnon saamiseksi paranevat, kun voimme tarjota sinulle kaikkia valitsemasi asuntotyypin asuntoja, jotka mahdollisesti vapautuvat myöhemmin tästä kohteesta. Olet automaattisesti näiden asuntotyyppien hakuprosessissa.
Leinelänkaari 6 B 31
1h+tk
, Kerrostalo
40.5 m2
4/4
Leinelänkaari 6 B 31
1h+tk
, Kerrostalo
40.5 m2
Kerros 4/4
Leinelänkaari 6 B 26
1h+tk
, Kerrostalo
40.5 m2
3/4
Leinelänkaari 6 B 26
1h+tk
, Kerrostalo
40.5 m2
Kerros 3/4
Leinelänkaari 6 B 21
1h+tk
, Kerrostalo
40.5 m2
2/4
Leinelänkaari 6 B 21
1h+tk
, Kerrostalo
40.5 m2
Kerros 2/4
Leinelänkaari 6 A 10
2h+k
, Kerrostalo
62 m2
3/4
Leinelänkaari 6 A 10
2h+k
, Kerrostalo
62 m2
Kerros 3/4
Leinelänkaari 6 A 3
2h+k
, Kerrostalo
62 m2
1/4
Leinelänkaari 6 A 3
2h+k
, Kerrostalo
62 m2
Kerros 1/4
Leinelänkaari 6 A 13
2h+kk
, Kerrostalo
50 m2
4/4
Leinelänkaari 6 A 13
2h+kk
, Kerrostalo
50 m2
Kerros 4/4
Leinelänkaari 6 B 22
2h+kk
, Kerrostalo
50 m2
2/4
Leinelänkaari 6 B 22
2h+kk
, Kerrostalo
50 m2
Kerros 2/4
Leinelänkaari 6 B 27
2h+kk
, Kerrostalo
50 m2
3/4
Leinelänkaari 6 B 27
2h+kk
, Kerrostalo
50 m2
Kerros 3/4
Leinelänkaari 6 A 5
2h+kk
, Kerrostalo
50 m2
2/4
Leinelänkaari 6 A 5
2h+kk
, Kerrostalo
50 m2
Kerros 2/4
Leinelänkaari 6 B 17
2h+kk
, Kerrostalo
50 m2
1/4
Leinelänkaari 6 B 17
2h+kk
, Kerrostalo
50 m2
Kerros 1/4
Leinelänkaari 6 B 25
2h+kk
, Kerrostalo
50 m2
3/4
Leinelänkaari 6 B 25
2h+kk
, Kerrostalo
50 m2
Kerros 3/4
Leinelänkaari 6 B 30
2h+kk
, Kerrostalo
50 m2
4/4
Leinelänkaari 6 B 30
2h+kk
, Kerrostalo
50 m2
Kerros 4/4
Leinelänkaari 6 A 2
2h+kk
, Kerrostalo
50 m2
1/4
Leinelänkaari 6 A 2
2h+kk
, Kerrostalo
50 m2
Kerros 1/4
Leinelänkaari 6 B 32
2h+kk
, Kerrostalo
50 m2
4/4
Leinelänkaari 6 B 32
2h+kk
, Kerrostalo
50 m2
Kerros 4/4
Leinelänkaari 6 A 9
2h+kk
, Kerrostalo
50 m2
3/4
Leinelänkaari 6 A 9
2h+kk
, Kerrostalo
50 m2
Kerros 3/4
Leinelänkaari 6 A 1
3h+k+s
, Kerrostalo
78 m2
1/4
Leinelänkaari 6 A 1
3h+k+s
, Kerrostalo
78 m2
Kerros 1/4
Leinelänkaari 6 B 18
3h+k+s
, Kerrostalo
78 m2
1/4
Leinelänkaari 6 B 18
3h+k+s
, Kerrostalo
78 m2
Kerros 1/4
Leinelänkaari 6 B 33
3h+k+s
, Kerrostalo
78 m2
4/4
Leinelänkaari 6 B 33
3h+k+s
, Kerrostalo
78 m2
Kerros 4/4
Leinelänkaari 6 A 12
3h+k+s
, Kerrostalo
78 m2
4/4
Leinelänkaari 6 A 12
3h+k+s
, Kerrostalo
78 m2
Kerros 4/4
Leinelänkaari 6 A 8
3h+k+s
, Kerrostalo
78 m2
3/4
Leinelänkaari 6 A 8
3h+k+s
, Kerrostalo
78 m2
Kerros 3/4
Leinelänkaari 6 B 23
3h+k+s
, Kerrostalo
78 m2
2/4
Leinelänkaari 6 B 23
3h+k+s
, Kerrostalo
78 m2
Kerros 2/4
Leinelänkaari 6 B 28
3h+k+s
, Kerrostalo
78 m2
3/4
Leinelänkaari 6 B 28
3h+k+s
, Kerrostalo
78 m2
Kerros 3/4
Leinelänkaari 6 A 4
3h+k+s
, Kerrostalo
78 m2
2/4
Leinelänkaari 6 A 4
3h+k+s
, Kerrostalo
78 m2
Kerros 2/4
Leinelänkaari 6 B 29
4h+k+s
, Kerrostalo
96.5 m2
4/4
Leinelänkaari 6 B 29
4h+k+s
, Kerrostalo
96.5 m2
Kerros 4/4
Leinelänkaari 6 B 19
4h+k+s
, Kerrostalo
96.5 m2
2/4
Leinelänkaari 6 B 19
4h+k+s
, Kerrostalo
96.5 m2
Kerros 2/4
Leinelänkaari 6 B 24
4h+k+s
, Kerrostalo
96.5 m2
3/4
Leinelänkaari 6 B 24
4h+k+s
, Kerrostalo
96.5 m2
Kerros 3/4
Leinelänkaari 6 A 7
4h+k+s
, Kerrostalo
103 m2
2/4
Leinelänkaari 6 A 7
4h+k+s
, Kerrostalo
103 m2
Kerros 2/4
Leinelänkaari 6 A 11
4h+k+s
, Kerrostalo
103 m2
3/4
Leinelänkaari 6 A 11
4h+k+s
, Kerrostalo
103 m2
Kerros 3/4
Leinelänkaari 6 A 15
4h+k+s
, Kerrostalo
103 m2
Kerros 4/4


