Kohteen esittely
Leineläntie 15 kohteeseen kuuluu 27 pienkerrostalohuoneistoa ja 16 paritalohuoneistoa. Valittavana on asuntoja kaksioista tilaviin perheasuntoihin, kooltaan 47 – 113 m². Pienkerrostalon parvekkeet ovat lasitettuja. Talossa on hissi ja saunatilat. Paritalon huoneistoissa on oma sauna, parveke ja 2 autopaikkaa. Vesimittarit käytössä. Kohde on savuton.
Palvelut ovat Leinelässä kävelyetäisyydellä. Leinelässä on oma päiväkoti sekä ruokakauppa. Alueen läheisyydestä löytyy muun muassa ylä- ja alakouluja. Luontoa on säilytetty alueen rakentamisessa erityisen paljon, ja muun muassa alueen keskellä olevaan Kukkukallion puistoon on jätetty luonnontilaista mäntymetsää ja muuta kasvillisuutta. Lisäksi Leinelän läpi kulkee mukavia kävelyreittejä. Alueesta omaleimaisen tekee ympäristötaide, jonka teemana on elämän kiertokulku. Leinelän juna-asema kävelyetäisyydellä.
Miksi Asuntosäätiö?
Me uskomme, että onnellinen koti ja laadukas asuminen kuuluvat kaikille. Emme tavoittele voittoa, vaan käytämme kaikki vastikkeista ja vuokrista saadut tulot toimintamme kehittämiseen. Jo yli 33 000 suomalaista on valinnut Asuntosäätiön tarjoaman kodin. Tiesithän, että myös lemmikit ovat tervetulleita kaikkiin koteihimme!
Rakennuksen tiedot
- Asumismuoto Asokoti
- Keskimääräinen asumisoikeusmaksu / jm² 662,33€
- Hissit 2
- Talosauna 1
- Asuntoja 43
- Asuinrakennuksia 10
- Käyttövastike / kk / jm² 16,21€
- Valmistumisvuosi 2019
- Porrashuoneet 2
- Energialuokka C
- Lämmitysmuoto Kauko
- Autopaikat 54
- Kerhohuone 1
- Laajakaista DNA Welho
- Antennijärjestelmä Kaapeli
- KaapeliTV DNA
- Kattomateriaali Pelti
- Runkomateriaali Betoni
- Lemmikit Sallittu
Huoneistot ja pohjakuvat: Leineläntie 15, Paritalo, Kerrostalo
Lisää hakemukselle kaikki haluamasi asuntotyypit. Mahdollisuutesi asunnon saamiseksi paranevat, kun voimme tarjota sinulle kaikkia valitsemasi asuntotyypin asuntoja, jotka mahdollisesti vapautuvat myöhemmin tästä kohteesta. Olet automaattisesti näiden asuntotyyppien hakuprosessissa.
Leineläntie 15 A 15
2h+kt
, Kerrostalo
39.5 m2
3/3
Leineläntie 15 A 15
2h+kt
, Kerrostalo
39.5 m2
Kerros 3/3
Leineläntie 15 A 9
2h+kt
, Kerrostalo
39.5 m2
2/3
Leineläntie 15 A 9
2h+kt
, Kerrostalo
39.5 m2
Kerros 2/3
Leineläntie 15 B 19
2h+kt
, Kerrostalo
47 m2
1/3
Leineläntie 15 B 19
2h+kt
, Kerrostalo
47 m2
Kerros 1/3
Leineläntie 15 B 27
2h+kt
, Kerrostalo
47 m2
3/3
Leineläntie 15 B 27
2h+kt
, Kerrostalo
47 m2
Kerros 3/3
Leineläntie 15 B 23
2h+kt
, Kerrostalo
47 m2
2/3
Leineläntie 15 B 23
2h+kt
, Kerrostalo
47 m2
Kerros 2/3
Leineläntie 15 F 35
3h+k+s
, Paritalo
87 m2
1-2/2
Leineläntie 15 F 35
3h+k+s
, Paritalo
87 m2
Kerros 1-2/2
Leineläntie 15 G 37
3h+k+s
, Paritalo
87 m2
1-2/2
Leineläntie 15 G 37
3h+k+s
, Paritalo
87 m2
Kerros 1-2/2
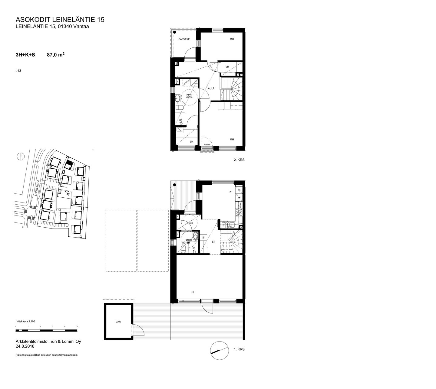
Leineläntie 15 J 43
3h+k+s
, Paritalo
87 m2
1-2/2
Leineläntie 15 J 43
3h+k+s
, Paritalo
87 m2
Kerros 1-2/2
Leineläntie 15 D 31
3h+k+s
, Paritalo
87 m2
1-2/2
Leineläntie 15 D 31
3h+k+s
, Paritalo
87 m2
Kerros 1-2/2
Leineläntie 15 C 29
3h+k+s
, Paritalo
87 m2
1-2/2
Leineläntie 15 C 29
3h+k+s
, Paritalo
87 m2
Kerros 1-2/2
Leineläntie 15 I 40
3h+k+s
, Paritalo
87 m2
1-2/2
Leineläntie 15 I 40
3h+k+s
, Paritalo
87 m2
Kerros 1-2/2
Leineläntie 15 H 39
3h+k+s
, Paritalo
87 m2
1-2/2
Leineläntie 15 H 39
3h+k+s
, Paritalo
87 m2
Kerros 1-2/2
Leineläntie 15 A 6
3h+kt
, Kerrostalo
61 m2
2/3
Leineläntie 15 A 6
3h+kt
, Kerrostalo
61 m2
Kerros 2/3
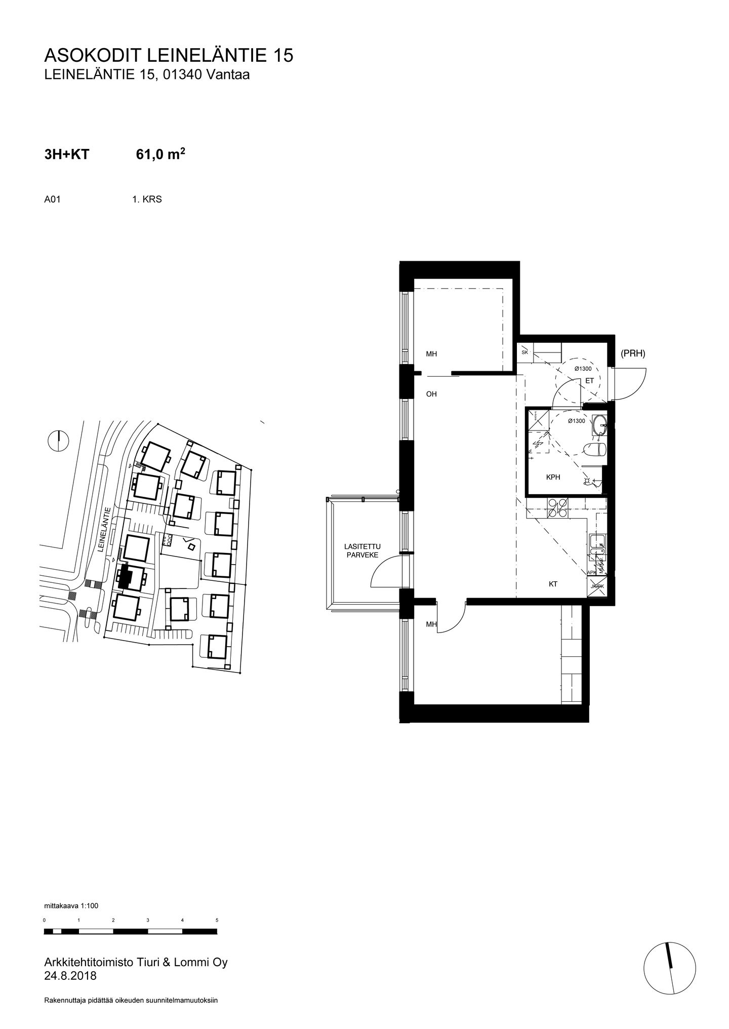
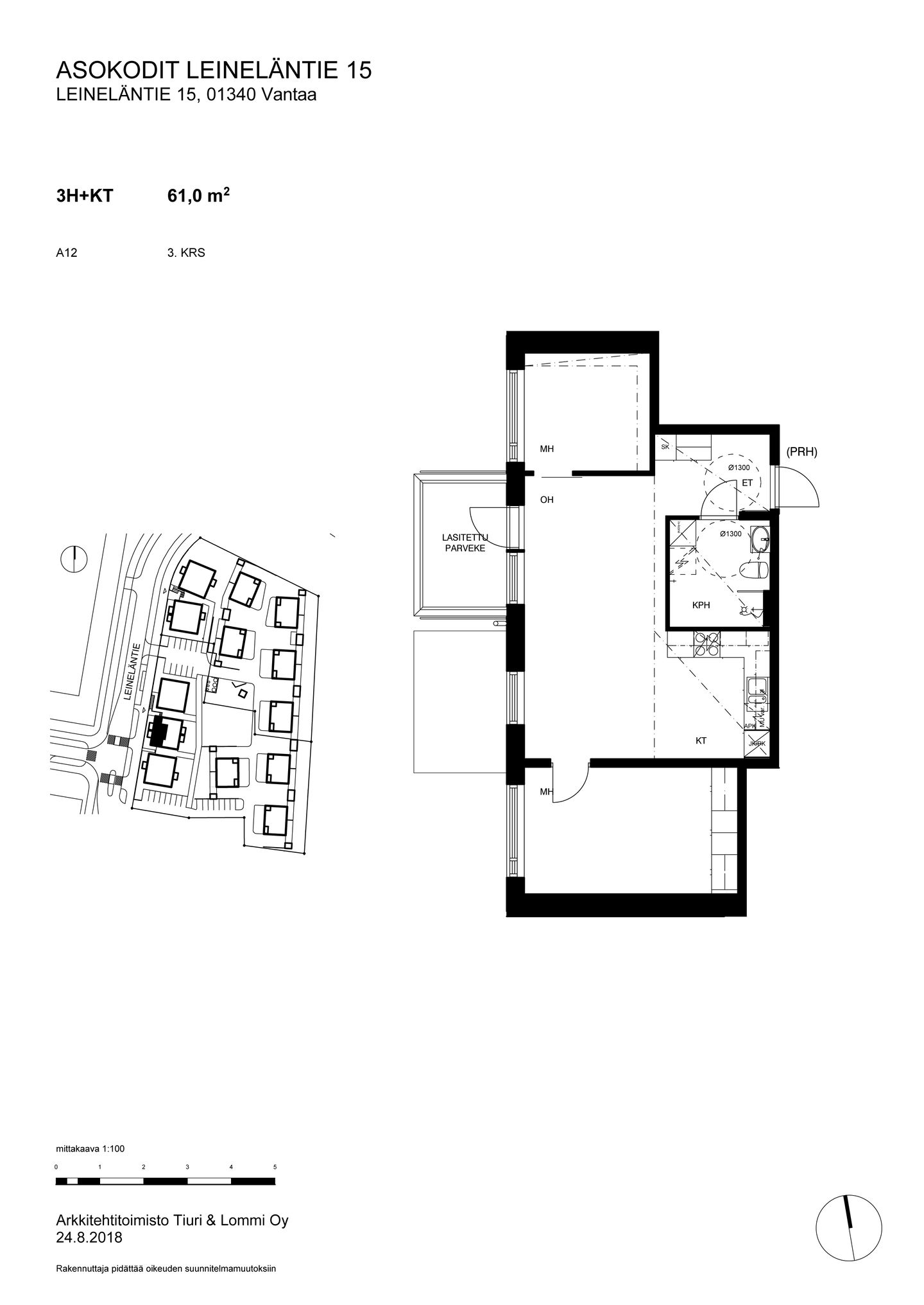
Leineläntie 15 A 12
3h+kt
, Kerrostalo
61 m2
3/3
Leineläntie 15 A 12
3h+kt
, Kerrostalo
61 m2
Kerros 3/3
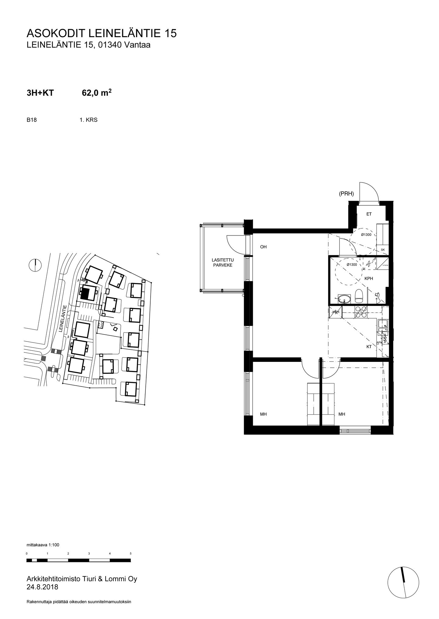
Leineläntie 15 B 16
3h+kt
, Kerrostalo
66.5 m2
1/3
Leineläntie 15 B 16
3h+kt
, Kerrostalo
66.5 m2
Kerros 1/3
Leineläntie 15 B 24
3h+kt
, Kerrostalo
66.5 m2
3/3
Leineläntie 15 B 24
3h+kt
, Kerrostalo
66.5 m2
Kerros 3/3
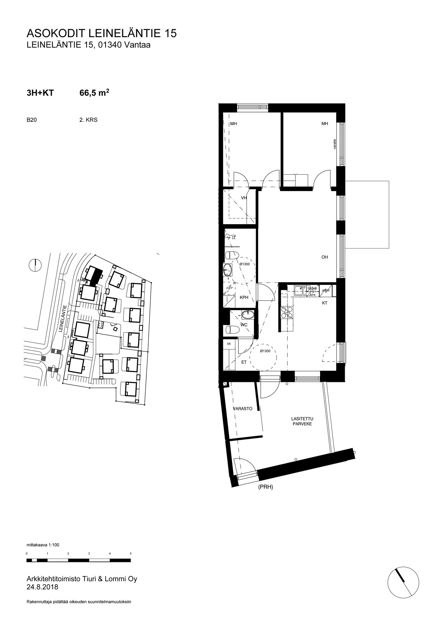
Leineläntie 15 B 20
3h+kt
, Kerrostalo
66.5 m2
2/3
Leineläntie 15 B 20
3h+kt
, Kerrostalo
66.5 m2
Kerros 2/3
Leineläntie 15 A 10
3h+kt
, Kerrostalo
66.5 m2
3/3
Leineläntie 15 A 10
3h+kt
, Kerrostalo
66.5 m2
Kerros 3/3
Leineläntie 15 A 4
3h+kt
, Kerrostalo
66.5 m2
2/3
Leineläntie 15 A 4
3h+kt
, Kerrostalo
66.5 m2
Kerros 2/3
Leineläntie 15 A 3
3h+kt
, Kerrostalo
67 m2
1/3
Leineläntie 15 A 3
3h+kt
, Kerrostalo
67 m2
Kerros 1/3
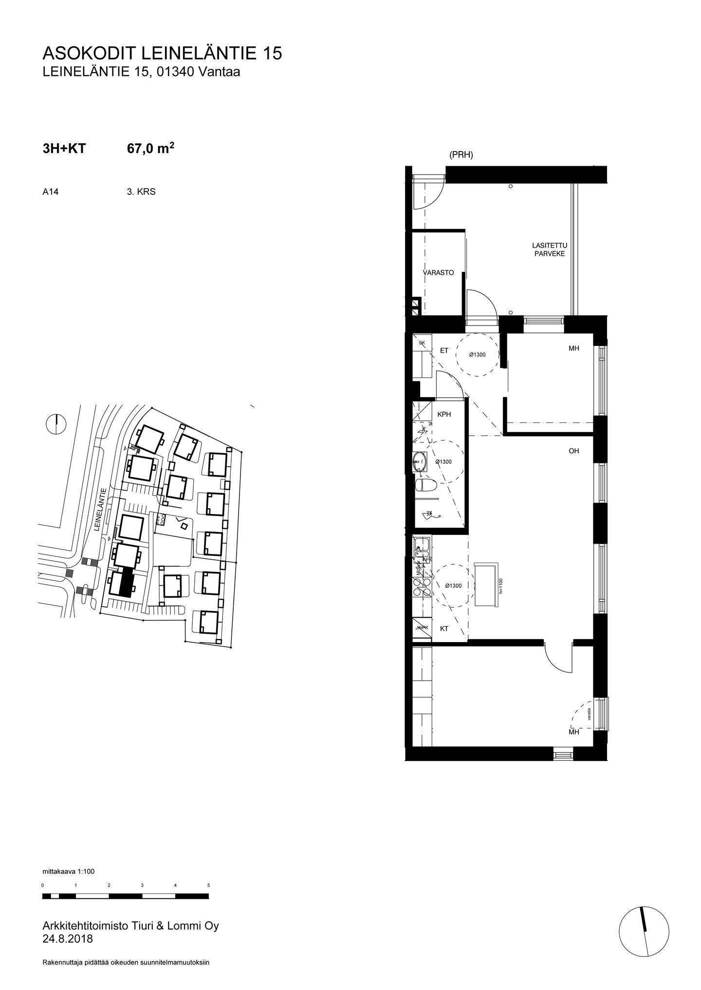
Leineläntie 15 A 14
3h+kt
, Kerrostalo
67 m2
3/3
Leineläntie 15 A 14
3h+kt
, Kerrostalo
67 m2
Kerros 3/3
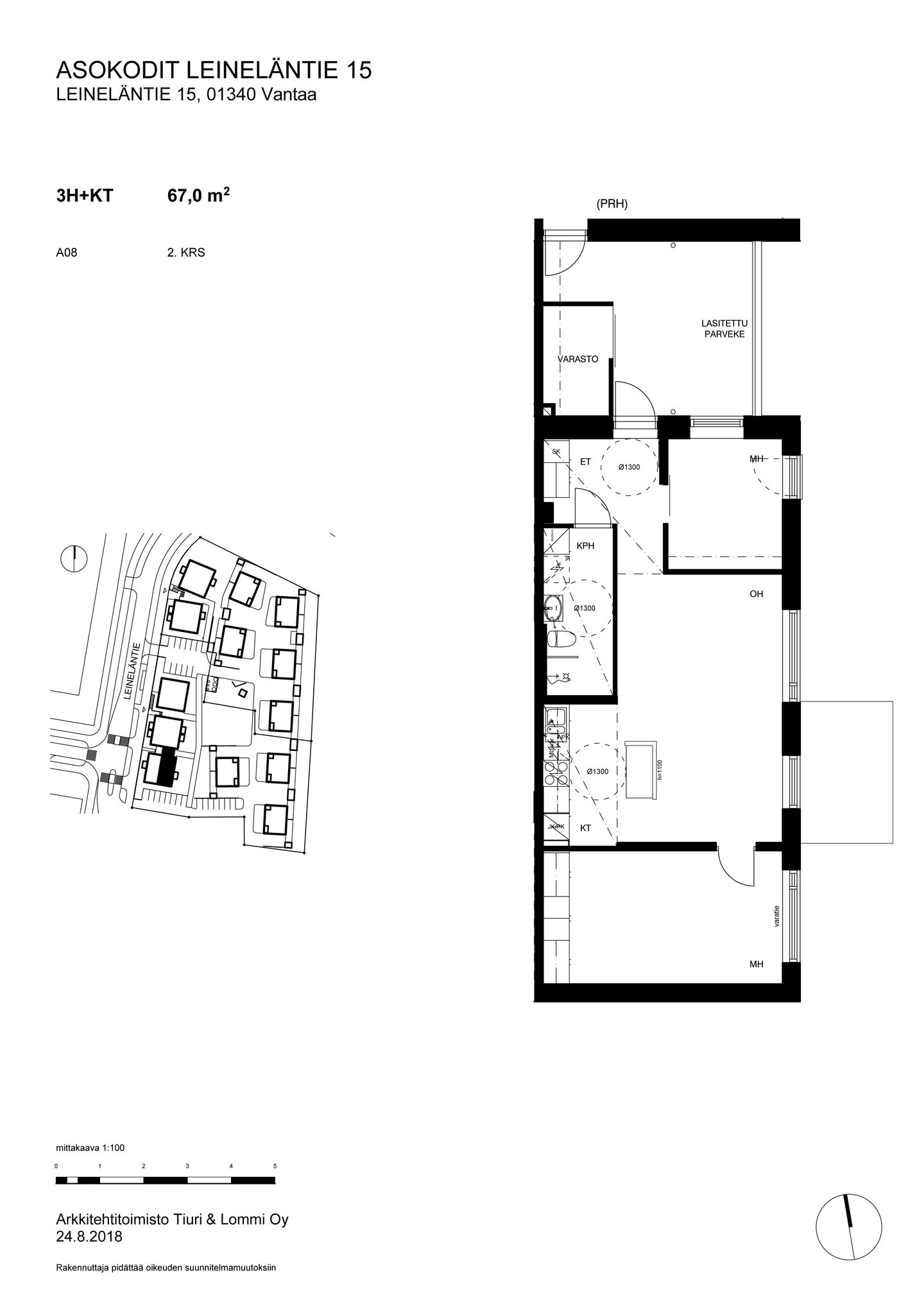
Leineläntie 15 A 8
3h+kt
, Kerrostalo
67 m2
2/3
Leineläntie 15 A 8
3h+kt
, Kerrostalo
67 m2
Kerros 2/3
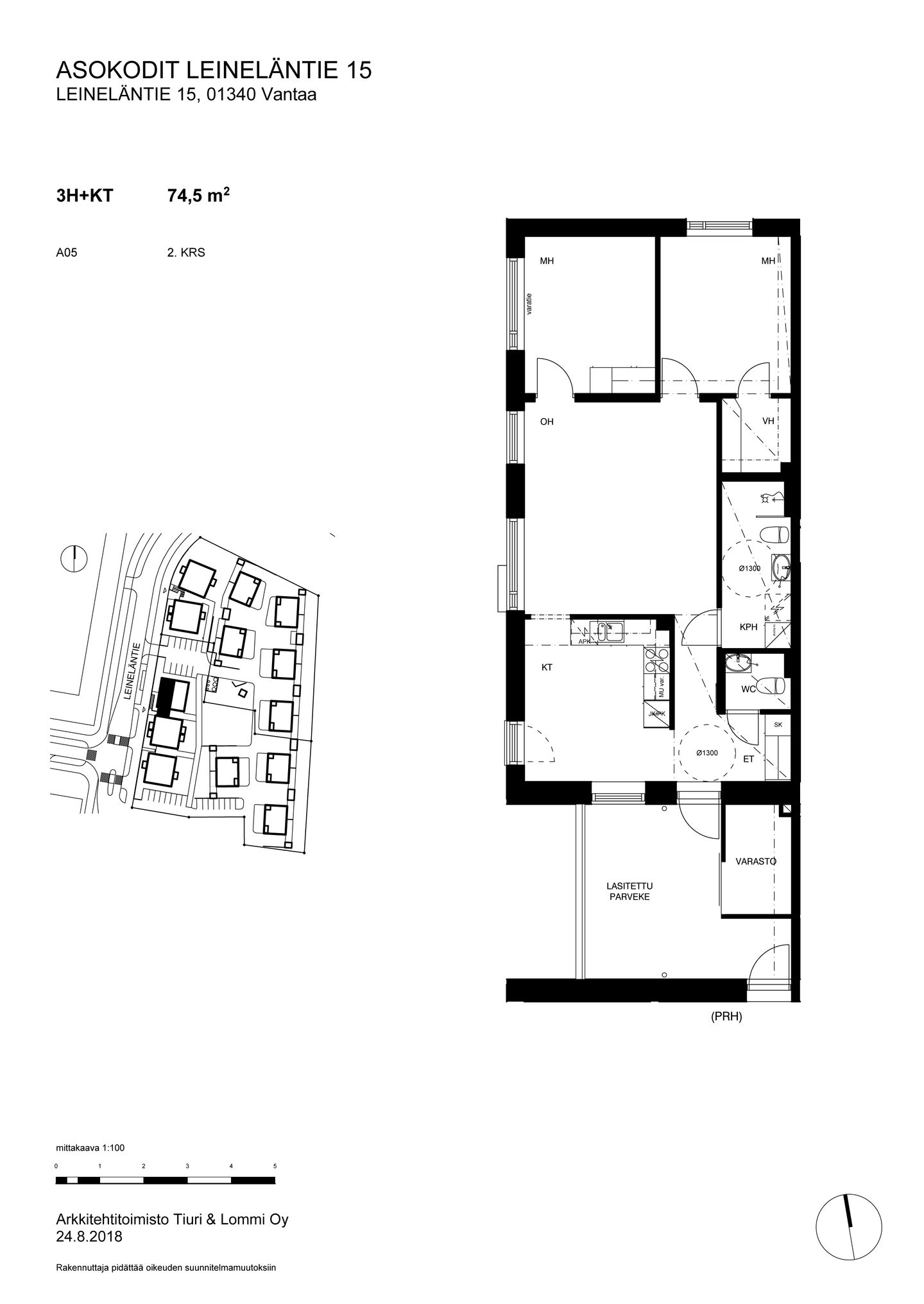
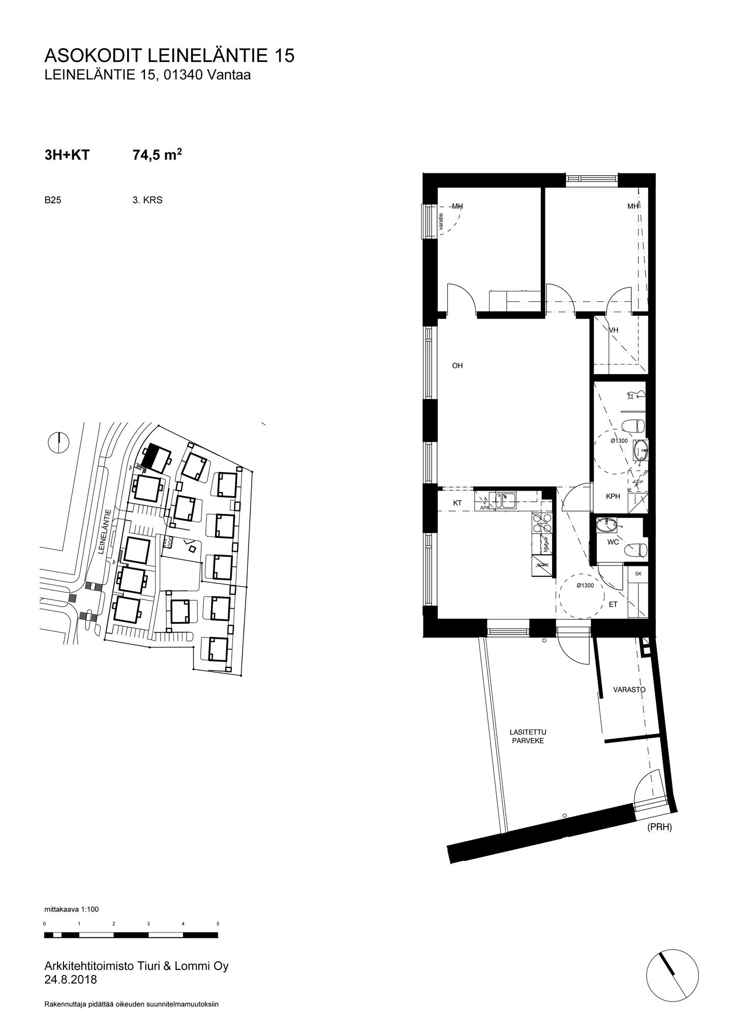
Leineläntie 15 B 25
3h+kt
, Kerrostalo
74.5 m2
3/3
Leineläntie 15 B 25
3h+kt
, Kerrostalo
74.5 m2
Kerros 3/3
Leineläntie 15 B 17
3h+kt
, Kerrostalo
74.5 m2
1/3
Leineläntie 15 B 17
3h+kt
, Kerrostalo
74.5 m2
Kerros 1/3
Leineläntie 15 B 21
3h+kt
, Kerrostalo
74.5 m2
2/3
Leineläntie 15 B 21
3h+kt
, Kerrostalo
74.5 m2
Kerros 2/3
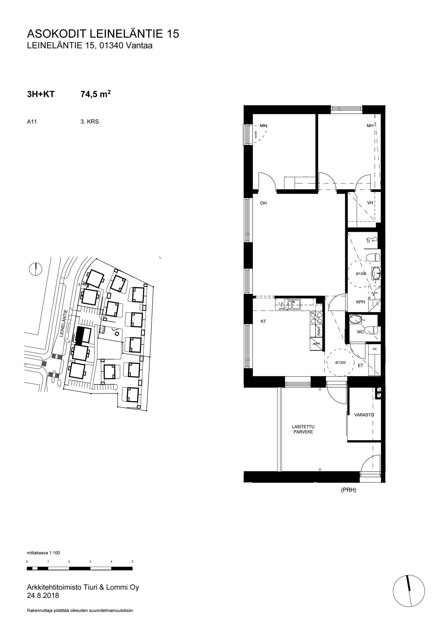
Leineläntie 15 A 13
3h+kt
, Kerrostalo
74.5 m2
3/3
Leineläntie 15 A 13
3h+kt
, Kerrostalo
74.5 m2
Kerros 3/3
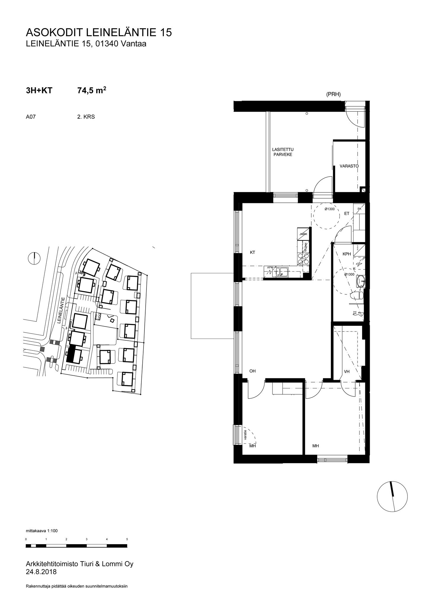
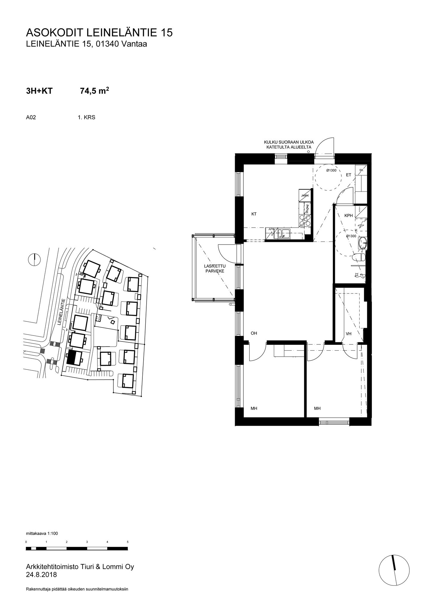
Leineläntie 15 A 2
3h+kt
, Kerrostalo
74.5 m2
1/3
Leineläntie 15 A 2
3h+kt
, Kerrostalo
74.5 m2
Kerros 1/3
Leineläntie 15 A 5
3h+kt
, Kerrostalo
74.5 m2
2/3
Leineläntie 15 A 5
3h+kt
, Kerrostalo
74.5 m2
Kerros 2/3
Leineläntie 15 A 7
3h+kt
, Kerrostalo
74.5 m2
2/3
Leineläntie 15 A 7
3h+kt
, Kerrostalo
74.5 m2
Kerros 2/3
Leineläntie 15 A 11
3h+kt
, Kerrostalo
74.5 m2
3/3
Leineläntie 15 A 11
3h+kt
, Kerrostalo
74.5 m2
Kerros 3/3
Leineläntie 15 E 33
3h+kt+s
, Paritalo
87 m2
1-2/2
Leineläntie 15 E 33
3h+kt+s
, Paritalo
87 m2
Kerros 1-2/2
Leineläntie 15 G 36
4h+k+s
, Paritalo
103 m2
1-2/2
Leineläntie 15 G 36
4h+k+s
, Paritalo
103 m2
Kerros 1-2/2
Leineläntie 15 D 30
4h+k+s
, Paritalo
103 m2
1-2/2
Leineläntie 15 D 30
4h+k+s
, Paritalo
103 m2
Kerros 1-2/2
Leineläntie 15 E 32
4h+k+s
, Paritalo
103 m2
1-2/2
Leineläntie 15 E 32
4h+k+s
, Paritalo
103 m2
Kerros 1-2/2
Leineläntie 15 C 28
4h+k+s
, Paritalo
103 m2
1-2/2
Leineläntie 15 C 28
4h+k+s
, Paritalo
103 m2
Kerros 1-2/2
Leineläntie 15 H 38
4h+k+s
, Paritalo
103 m2
1-2/2
Leineläntie 15 H 38
4h+k+s
, Paritalo
103 m2
Kerros 1-2/2
Leineläntie 15 B 22
4h+tk
, Kerrostalo
73.5 m2
2/3
Leineläntie 15 B 22
4h+tk
, Kerrostalo
73.5 m2
Kerros 2/3
Leineläntie 15 F 34
5h+k+s
, Paritalo
113 m2
1-2/2
Leineläntie 15 F 34
5h+k+s
, Paritalo
113 m2
Kerros 1-2/2
Leineläntie 15 I 41
5h+k+s
, Paritalo
113 m2
1-2/2
Leineläntie 15 I 41
5h+k+s
, Paritalo
113 m2
Kerros 1-2/2


