Kohteen esittely
Nikinmäen kohteessa on tilavia perheasuntoja, löytyy kaksitasoisia rivitalohuoneistoja sekä yksitasoinen erillistalo. Päiväkoti on lähellä ja Sipoonkorven kansallispuistossa on perheen mahdollista ulkoilla. Lämmitysmuotona on maalämpö.
Kohteeseen on käynnistetty tammikuussa 2026 rahoituksen hakeminen peruskorjausta varten ja hankkeen mahdollinen toteutuminen ja ajankohta tarkentuu kun suunnitteluvaihe etenee. Prosessi on kuitenkin pitkä ja voi kestää usean vuodenkin. Lisätietoja sivuillamme: www.asuntosaatio.fi/asukkaalle/tietoa-asokoti-asukkaalle/asokotien-peruskorjaus/
Miksi Asuntosäätiö?
Me uskomme, että onnellinen koti ja laadukas asuminen kuuluvat kaikille. Emme tavoittele voittoa, vaan käytämme kaikki vastikkeista ja vuokrista saadut tulot toimintamme kehittämiseen. Jo yli 33 000 suomalaista on valinnut Asuntosäätiön tarjoaman kodin. Tiesithän, että myös lemmikit ovat tervetulleita kaikkiin koteihimme!
Rakennuksen tiedot
- Asumismuoto Asokoti
- Keskimääräinen asumisoikeusmaksu / jm² 371,03€
- Hissit Ei
- Talosauna Ei
- Asuntoja 37
- Asuinrakennuksia 10
- Käyttövastike / kk / jm² 11,09€
- Valmistumisvuosi 2000
- Energialuokka C
- Lämmitysmuoto Maalämpö + aurinkosähkö
- Autopaikat 50
- Kerhohuone 1
- Laajakaista DNA Netti
- Antennijärjestelmä Kaapeli
- KaapeliTV DNA
- Kattomateriaali Tiili
- Runkomateriaali Puu, Betoni
- Lemmikit Sallittu
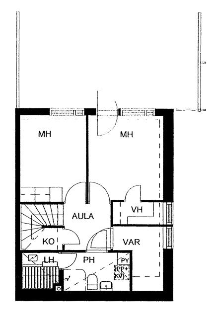
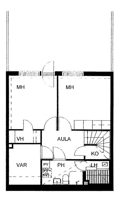
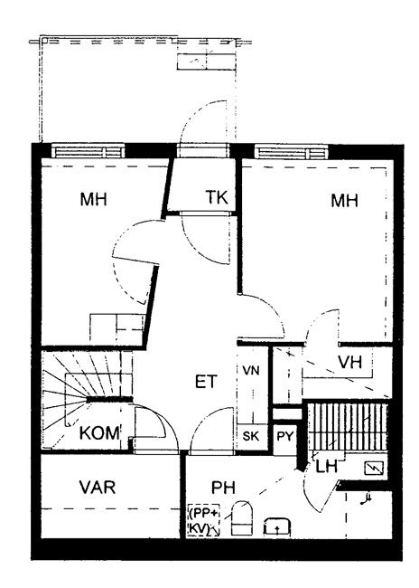
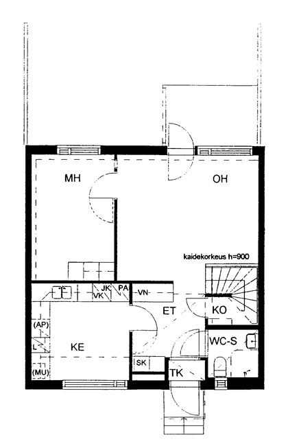
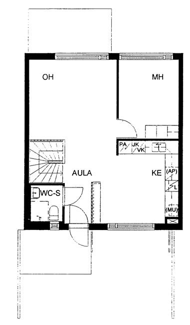
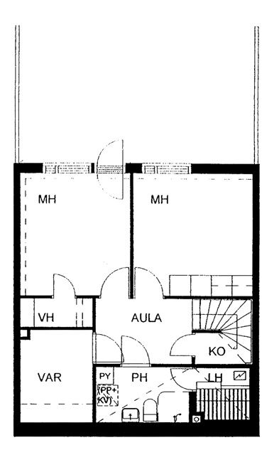
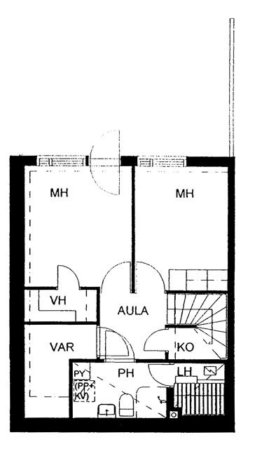
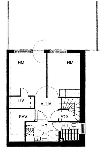
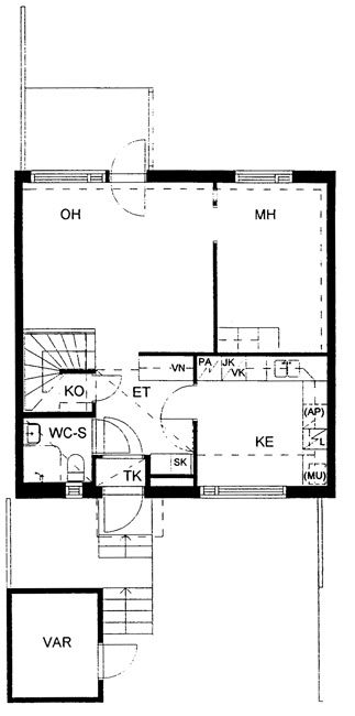
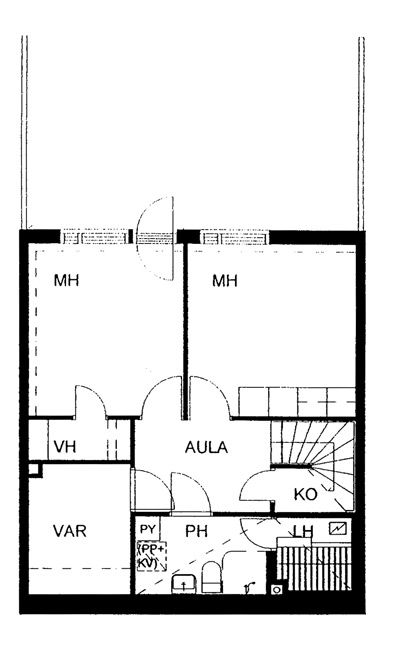
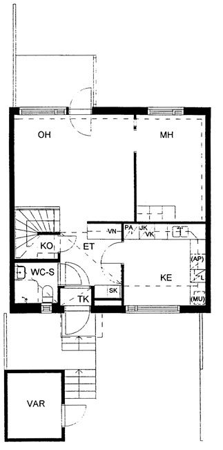
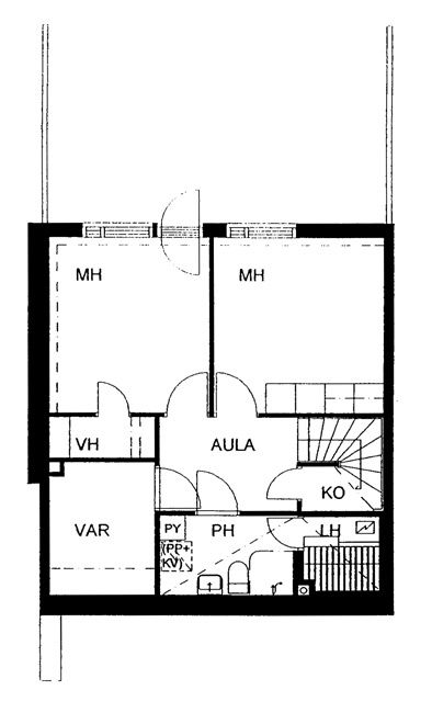
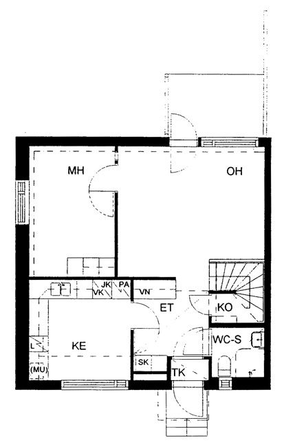
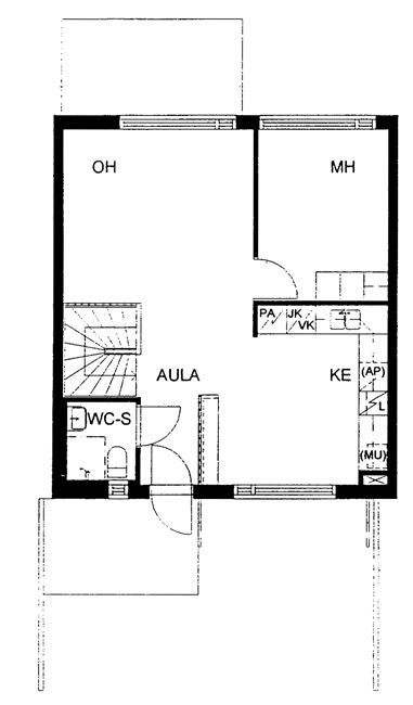
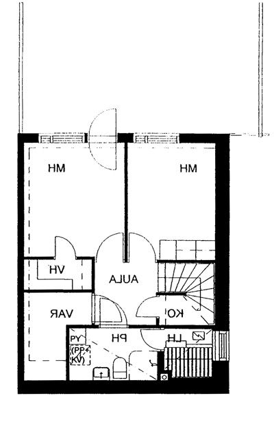
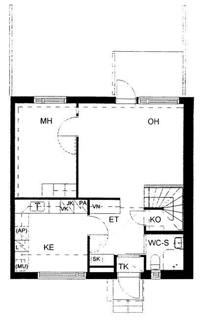
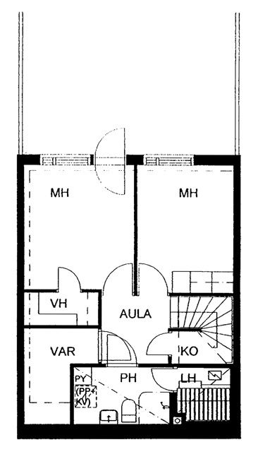
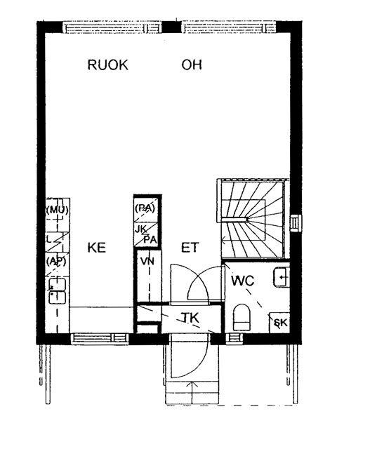
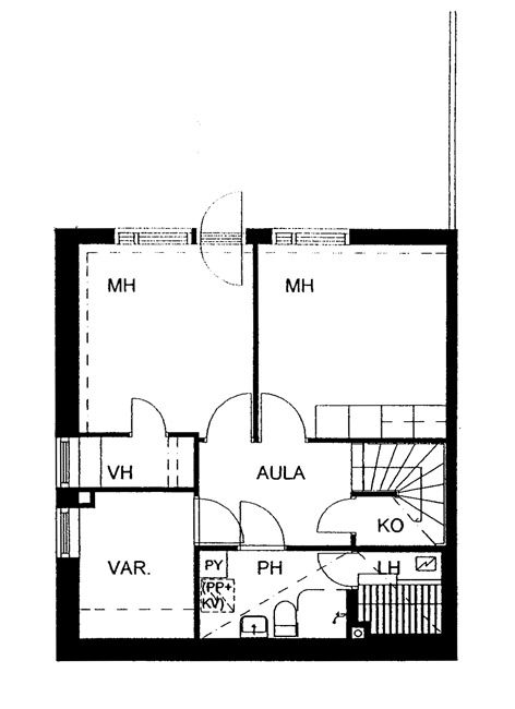
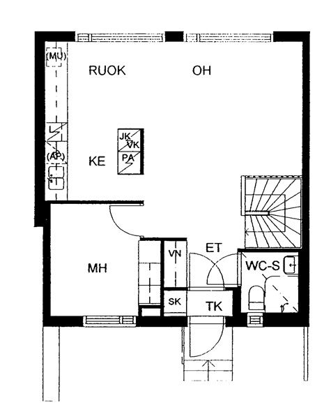
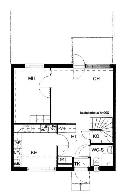
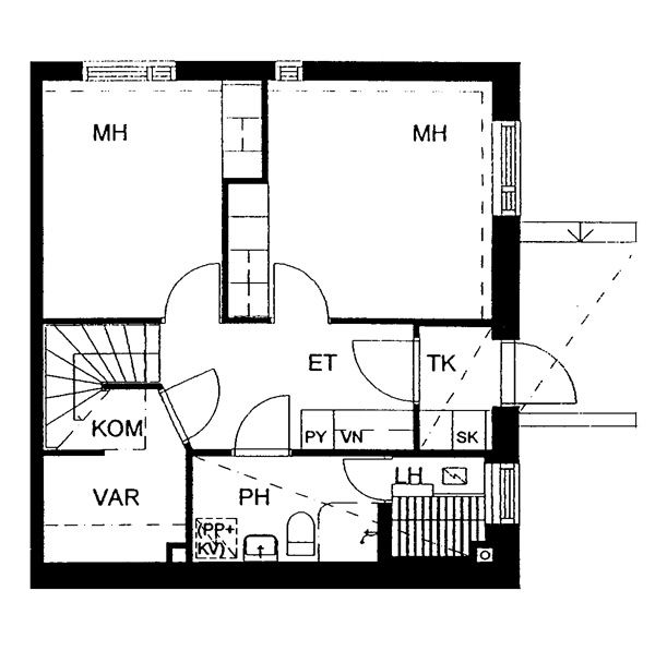
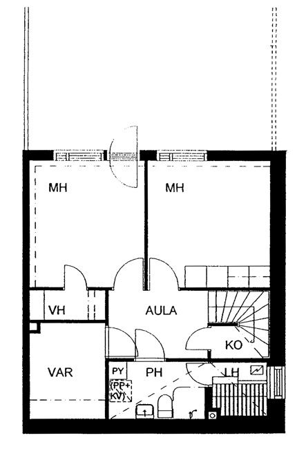
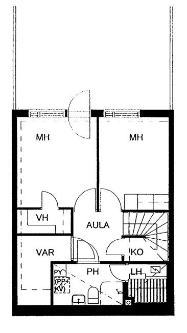
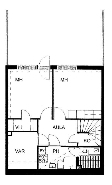
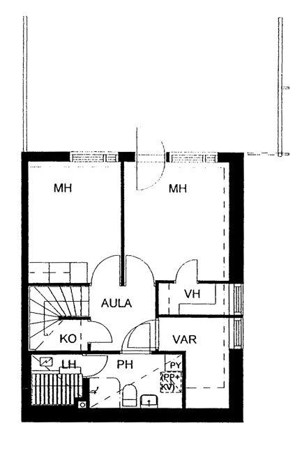
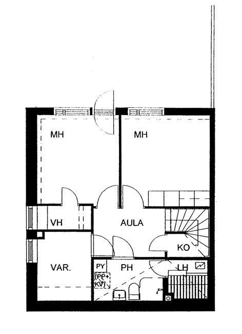
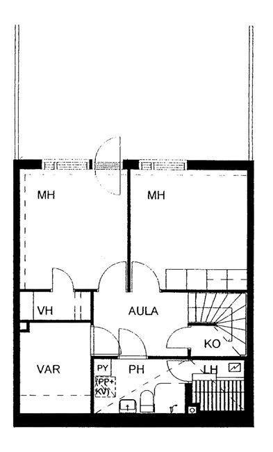
Huoneistot ja pohjakuvat: Kiitäjäntie 5 ja 8, Piharakennus, Rivitalo, Erillistalo
Lisää hakemukselle kaikki haluamasi asuntotyypit. Mahdollisuutesi asunnon saamiseksi paranevat, kun voimme tarjota sinulle kaikkia valitsemasi asuntotyypin asuntoja, jotka mahdollisesti vapautuvat myöhemmin tästä kohteesta. Olet automaattisesti näiden asuntotyyppien hakuprosessissa.
Kiitäjäntie 5 E 13
3h+k+s
, Rivitalo
82 m2
1-2/2
Kiitäjäntie 5 E 13
3h+k+s
, Rivitalo
82 m2
Kerros 1-2/2
Kiitäjäntie 8 G 19
3h+k+s
, Rivitalo
82 m2
1-2/2
Kiitäjäntie 8 G 19
3h+k+s
, Rivitalo
82 m2
Kerros 1-2/2
Kiitäjäntie 8 F 16
3h+k+s
, Rivitalo
82 m2
1-2/2
Kiitäjäntie 8 F 16
3h+k+s
, Rivitalo
82 m2
Kerros 1-2/2
Kiitäjäntie 8 F 15
3h+k+s
, Rivitalo
84 m2
1-2/2
Kiitäjäntie 8 F 15
3h+k+s
, Rivitalo
84 m2
Kerros 1-2/2
Kiitäjäntie 5 E 12
3h+k+s
, Rivitalo
84 m2
1-2/2
Kiitäjäntie 5 E 12
3h+k+s
, Rivitalo
84 m2
Kerros 1-2/2
Kiitäjäntie 5 E 14
3h+k+s
, Rivitalo
84 m2
1-2/2
Kiitäjäntie 5 E 14
3h+k+s
, Rivitalo
84 m2
Kerros 1-2/2
Kiitäjäntie 8 G 18
3h+k+s
, Rivitalo
84 m2
1-2/2
Kiitäjäntie 8 G 18
3h+k+s
, Rivitalo
84 m2
Kerros 1-2/2
Kiitäjäntie 8 G 20
3h+k+s
, Rivitalo
84 m2
1-2/2
Kiitäjäntie 8 G 20
3h+k+s
, Rivitalo
84 m2
Kerros 1-2/2
Kiitäjäntie 8 F 17
3h+k+s
, Rivitalo
84 m2
1-2/2
Kiitäjäntie 8 F 17
3h+k+s
, Rivitalo
84 m2
Kerros 1-2/2
Kiitäjäntie 5 A 2
4h+k+s
, Rivitalo
95 m2
1-2/2
Kiitäjäntie 5 A 2
4h+k+s
, Rivitalo
95 m2
Kerros 1-2/2
Kiitäjäntie 5 A 3
4h+k+s
, Rivitalo
95 m2
1-2/2
Kiitäjäntie 5 A 3
4h+k+s
, Rivitalo
95 m2
Kerros 1-2/2
Kiitäjäntie 8 K 32
4h+k+s
, Rivitalo
95.5 m2
1-2/2
Kiitäjäntie 8 K 32
4h+k+s
, Rivitalo
95.5 m2
Kerros 1-2/2
Kiitäjäntie 8 K 35
4h+k+s
, Rivitalo
95.5 m2
1-2/2
Kiitäjäntie 8 K 35
4h+k+s
, Rivitalo
95.5 m2
Kerros 1-2/2
Kiitäjäntie 8 K 31
4h+k+s
, Rivitalo
95.5 m2
1-2/2
Kiitäjäntie 8 K 31
4h+k+s
, Rivitalo
95.5 m2
Kerros 1-2/2
Kiitäjäntie 8 K 36
4h+k+s
, Rivitalo
95.5 m2
1-2/2
Kiitäjäntie 8 K 36
4h+k+s
, Rivitalo
95.5 m2
Kerros 1-2/2
Kiitäjäntie 8 H 23
4h+k+s
, Rivitalo
95.5 m2
1-2/2
Kiitäjäntie 8 H 23
4h+k+s
, Rivitalo
95.5 m2
Kerros 1-2/2
Kiitäjäntie 8 H 24
4h+k+s
, Rivitalo
95.5 m2
1-2/2
Kiitäjäntie 8 H 24
4h+k+s
, Rivitalo
95.5 m2
Kerros 1-2/2
Kiitäjäntie 8 H 22
4h+k+s
, Rivitalo
95.5 m2
1-2/2
Kiitäjäntie 8 H 22
4h+k+s
, Rivitalo
95.5 m2
Kerros 1-2/2
Kiitäjäntie 8 K 34
4h+k+s
, Rivitalo
96.5 m2
1-2/2
Kiitäjäntie 8 K 34
4h+k+s
, Rivitalo
96.5 m2
Kerros 1-2/2
Kiitäjäntie 8 K 33
4h+k+s
, Rivitalo
97 m2
1-2/2
Kiitäjäntie 8 K 33
4h+k+s
, Rivitalo
97 m2
Kerros 1-2/2
Kiitäjäntie 5 A 1
4h+k+s
, Rivitalo
97 m2
1-2/2
Kiitäjäntie 5 A 1
4h+k+s
, Rivitalo
97 m2
Kerros 1-2/2
Kiitäjäntie 8 K 37
4h+k+s
, Rivitalo
97.5 m2
1-2/2
Kiitäjäntie 8 K 37
4h+k+s
, Rivitalo
97.5 m2
Kerros 1-2/2
Kiitäjäntie 8 H 25
4h+k+s
, Rivitalo
97.5 m2
1-2/2
Kiitäjäntie 8 H 25
4h+k+s
, Rivitalo
97.5 m2
Kerros 1-2/2
Kiitäjäntie 8 K 30
4h+k+s
, Rivitalo
97.5 m2
1-2/2
Kiitäjäntie 8 K 30
4h+k+s
, Rivitalo
97.5 m2
Kerros 1-2/2
Kiitäjäntie 5 A 4
4h+k+s
, Rivitalo
97.5 m2
1-2/2
Kiitäjäntie 5 A 4
4h+k+s
, Rivitalo
97.5 m2
Kerros 1-2/2
Kiitäjäntie 8 H 21
4h+k+s
, Rivitalo
97.5 m2
1-2/2
Kiitäjäntie 8 H 21
4h+k+s
, Rivitalo
97.5 m2
Kerros 1-2/2
Kiitäjäntie 8 J 27
5h+k+s
, Rivitalo
107 m2
1-2/2
Kiitäjäntie 8 J 27
5h+k+s
, Rivitalo
107 m2
Kerros 1-2/2
Kiitäjäntie 8 J 28
5h+k+s
, Rivitalo
107 m2
1-2/2
Kiitäjäntie 8 J 28
5h+k+s
, Rivitalo
107 m2
Kerros 1-2/2
Kiitäjäntie 5 C 9
5h+k+s
, Rivitalo
107 m2
1-2/2
Kiitäjäntie 5 C 9
5h+k+s
, Rivitalo
107 m2
Kerros 1-2/2
Kiitäjäntie 5 B 6
5h+k+s
, Rivitalo
107 m2
1-2/2
Kiitäjäntie 5 B 6
5h+k+s
, Rivitalo
107 m2
Kerros 1-2/2
Kiitäjäntie 8 J 29
5h+k+s
, Rivitalo
108 m2
1-2/2
Kiitäjäntie 8 J 29
5h+k+s
, Rivitalo
108 m2
Kerros 1-2/2
Kiitäjäntie 8 J 26
5h+k+s
, Rivitalo
108 m2
1-2/2
Kiitäjäntie 8 J 26
5h+k+s
, Rivitalo
108 m2
Kerros 1-2/2
Kiitäjäntie 5 C 8
5h+k+s
, Rivitalo
108 m2
1-2/2
Kiitäjäntie 5 C 8
5h+k+s
, Rivitalo
108 m2
Kerros 1-2/2
Kiitäjäntie 5 C 10
5h+k+s
, Rivitalo
108 m2
1-2/2
Kiitäjäntie 5 C 10
5h+k+s
, Rivitalo
108 m2
Kerros 1-2/2
Kiitäjäntie 5 B 5
5h+k+s
, Rivitalo
108 m2
1-2/2
Kiitäjäntie 5 B 5
5h+k+s
, Rivitalo
108 m2
Kerros 1-2/2
Kiitäjäntie 5 B 7
5h+k+s
, Rivitalo
108 m2
1-2/2
Kiitäjäntie 5 B 7
5h+k+s
, Rivitalo
108 m2
Kerros 1-2/2
Kiitäjäntie 5 D 11
6h+k+s
, Erillistalo
123.5 m2
1/1
Kiitäjäntie 5 D 11
6h+k+s
, Erillistalo
123.5 m2
Kerros 1/1