Kohteen esittely
Viihtyisä rivitalokohde vehreällä pientaloalueella. Asunnot 3-5 huoneen ja keittiön huoneistoja, joissa on oma sauna ja piha. Kaukolämpö.
Lähellä on useita päiväkoteja ja kouluja. Alueella on hyvät ulkoilumahdollisuudet, puistoja ja koirapuistoja. Hyvät liikenneyhteydet sekä omalla autolla että julkisilla.
Miksi Asuntosäätiö?
Me uskomme, että onnellinen koti ja laadukas asuminen kuuluvat kaikille. Emme tavoittele voittoa, vaan käytämme kaikki vastikkeista ja vuokrista saadut tulot toimintamme kehittämiseen. Jo yli 33 000 suomalaista on valinnut Asuntosäätiön tarjoaman kodin. Tiesithän, että myös lemmikit ovat tervetulleita kaikkiin koteihimme!
Rakennuksen tiedot
- Asumismuoto Asokoti
- Keskimääräinen asumisoikeusmaksu / jm² 391,98€
- Hissit Ei
- Talosauna Ei
- Asuntoja 9
- Asuinrakennuksia 2
- Käyttövastike / kk / jm² 14,91€
- Valmistumisvuosi 1999
- Energialuokka D
- Lämmitysmuoto Kauko
- Autopaikat 14
- Laajakaista DNA 4G
- Antennijärjestelmä Harava
- Kattomateriaali Tiili
- Runkomateriaali Betoni
- Lemmikit Sallittu
Huoneistot ja pohjakuvat: Pallotie 3, Rivitalo, Piharakennus
Lisää hakemukselle kaikki haluamasi asuntotyypit. Mahdollisuutesi asunnon saamiseksi paranevat, kun voimme tarjota sinulle kaikkia valitsemasi asuntotyypin asuntoja, jotka mahdollisesti vapautuvat myöhemmin tästä kohteesta. Olet automaattisesti näiden asuntotyyppien hakuprosessissa.
Pallotie 3 B 9
3h+k+s
, Rivitalo
76 m2
1-2/2
Pallotie 3 B 9
3h+k+s
, Rivitalo
76 m2
Kerros 1-2/2
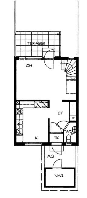
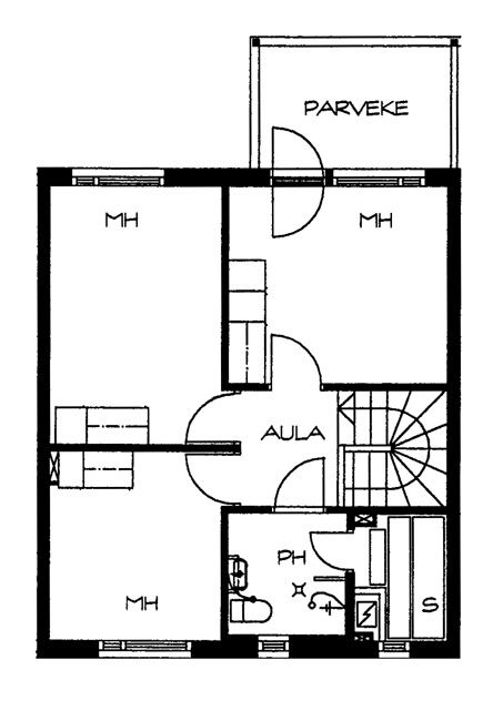
Pallotie 3 A 2
3h+k+s
, Rivitalo
76 m2
1-2/2
Pallotie 3 A 2
3h+k+s
, Rivitalo
76 m2
Kerros 1-2/2
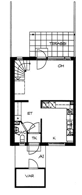
Pallotie 3 A 1
3h+k+s
, Rivitalo
76 m2
1-2/2
Pallotie 3 A 1
3h+k+s
, Rivitalo
76 m2
Kerros 1-2/2
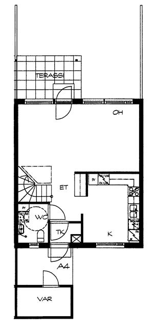
Pallotie 3 B 7
4h+k+s
, Rivitalo
92 m2
1-2/2
Pallotie 3 B 7
4h+k+s
, Rivitalo
92 m2
Kerros 1-2/2
Pallotie 3 B 8
4h+k+s
, Rivitalo
92 m2
1-2/2
Pallotie 3 B 8
4h+k+s
, Rivitalo
92 m2
Kerros 1-2/2
Pallotie 3 A 3
4h+k+s
, Rivitalo
92 m2
1-2/2
Pallotie 3 A 3
4h+k+s
, Rivitalo
92 m2
Kerros 1-2/2
Pallotie 3 A 4
4h+k+s
, Rivitalo
92 m2
1-2/2
Pallotie 3 A 4
4h+k+s
, Rivitalo
92 m2
Kerros 1-2/2

