Kohteen esittely
Luonnonläheinen kerrostalokohde, jonka tontti rajoittuu metsään. Valoisa ja vehreä pihapiiri. Kaikissa asunnoissa on oma sauna.
Alueella on päiväkodit ja koulut sekä laajat päivittäistavarakaupat. Hyvät liikenneyhteydet: Bussipysäkki lähes vieressä, juna-asema alle kilometrin päässä.
Miksi Asuntosäätiö?
Me uskomme, että onnellinen koti ja laadukas asuminen kuuluvat kaikille. Emme tavoittele voittoa, vaan käytämme kaikki vastikkeista ja vuokrista saadut tulot toimintamme kehittämiseen. Jo yli 33 000 suomalaista on valinnut Asuntosäätiön tarjoaman kodin. Tiesithän, että myös lemmikit ovat tervetulleita kaikkiin koteihimme!
Rakennuksen tiedot
- Asumismuoto Asokoti
- Keskimääräinen asumisoikeusmaksu / jm² 409€
- Hissit Ei
- Talosauna Ei
- Pyykkitupa Kyllä
- Kuivaushuone Kyllä
- Asuntoja 40
- Asuinrakennuksia 3
- Käyttövastike / kk / jm² 14,32€
- Valmistumisvuosi 2000
- Porrashuoneet 3
- Energialuokka D
- Lämmitysmuoto Kauko
- Autopaikat 44
- Laajakaista DNA Welho
- Antennijärjestelmä Kaapeli
- KaapeliTV DNA
- Kattomateriaali Pelti
- Runkomateriaali Betoni
- Lemmikit Sallittu
Huoneistot ja pohjakuvat: Peijaksentie 27, Kerrostalo, Piharakennus
Lisää hakemukselle kaikki haluamasi asuntotyypit. Mahdollisuutesi asunnon saamiseksi paranevat, kun voimme tarjota sinulle kaikkia valitsemasi asuntotyypin asuntoja, jotka mahdollisesti vapautuvat myöhemmin tästä kohteesta. Olet automaattisesti näiden asuntotyyppien hakuprosessissa.
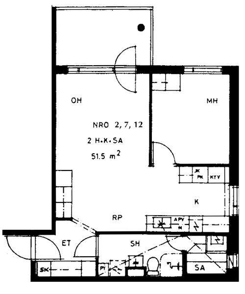
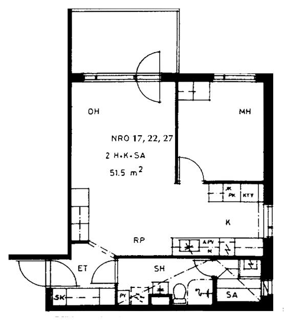
Peijaksentie 27 C 37
2h+k+s
, Kerrostalo
51 m2
2/2
Peijaksentie 27 C 37
2h+k+s
, Kerrostalo
51 m2
Kerros 2/2
Peijaksentie 27 C 32
2h+k+s
, Kerrostalo
51 m2
1/2
Peijaksentie 27 C 32
2h+k+s
, Kerrostalo
51 m2
Kerros 1/2
Peijaksentie 27 A 12
2h+k+s
, Kerrostalo
51.5 m2
3/3
Peijaksentie 27 A 12
2h+k+s
, Kerrostalo
51.5 m2
Kerros 3/3
Peijaksentie 27 A 2
2h+k+s
, Kerrostalo
51.5 m2
1/3
Peijaksentie 27 A 2
2h+k+s
, Kerrostalo
51.5 m2
Kerros 1/3
Peijaksentie 27 A 7
2h+k+s
, Kerrostalo
51.5 m2
2/3
Peijaksentie 27 A 7
2h+k+s
, Kerrostalo
51.5 m2
Kerros 2/3
Peijaksentie 27 B 27
2h+k+s
, Kerrostalo
51.5 m2
3/3
Peijaksentie 27 B 27
2h+k+s
, Kerrostalo
51.5 m2
Kerros 3/3
Peijaksentie 27 B 22
2h+k+s
, Kerrostalo
51.5 m2
2/3
Peijaksentie 27 B 22
2h+k+s
, Kerrostalo
51.5 m2
Kerros 2/3
Peijaksentie 27 B 17
2h+k+s
, Kerrostalo
51.5 m2
1/3
Peijaksentie 27 B 17
2h+k+s
, Kerrostalo
51.5 m2
Kerros 1/3
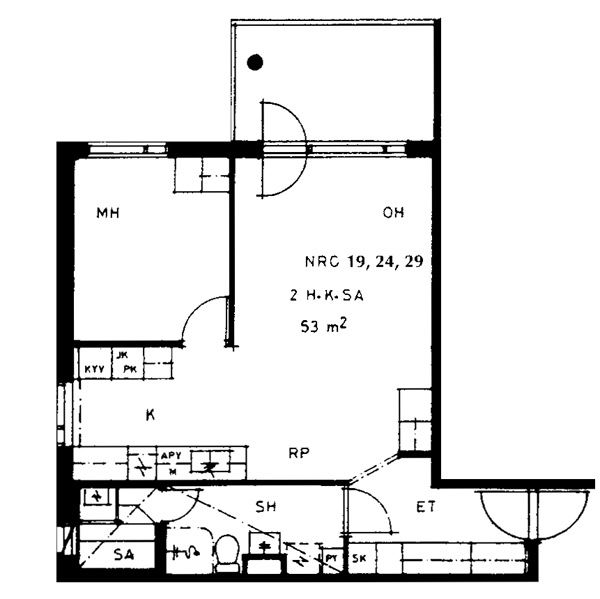
Peijaksentie 27 C 34
2h+k+s
, Kerrostalo
53 m2
1/2
Peijaksentie 27 C 34
2h+k+s
, Kerrostalo
53 m2
Kerros 1/2
Peijaksentie 27 C 39
2h+k+s
, Kerrostalo
53 m2
2/2
Peijaksentie 27 C 39
2h+k+s
, Kerrostalo
53 m2
Kerros 2/2
Peijaksentie 27 A 14
2h+k+s
, Kerrostalo
53 m2
3/3
Peijaksentie 27 A 14
2h+k+s
, Kerrostalo
53 m2
Kerros 3/3
Peijaksentie 27 A 9
2h+k+s
, Kerrostalo
53 m2
2/3
Peijaksentie 27 A 9
2h+k+s
, Kerrostalo
53 m2
Kerros 2/3
Peijaksentie 27 A 4
2h+k+s
, Kerrostalo
53 m2
1/3
Peijaksentie 27 A 4
2h+k+s
, Kerrostalo
53 m2
Kerros 1/3
Peijaksentie 27 B 24
2h+k+s
, Kerrostalo
53 m2
2/3
Peijaksentie 27 B 24
2h+k+s
, Kerrostalo
53 m2
Kerros 2/3
Peijaksentie 27 B 29
2h+k+s
, Kerrostalo
53 m2
3/3
Peijaksentie 27 B 29
2h+k+s
, Kerrostalo
53 m2
Kerros 3/3
Peijaksentie 27 B 19
2h+k+s
, Kerrostalo
53 m2
1/3
Peijaksentie 27 B 19
2h+k+s
, Kerrostalo
53 m2
Kerros 1/3
Peijaksentie 27 C 38
2h+kk+s
, Kerrostalo
42 m2
2/2
Peijaksentie 27 C 38
2h+kk+s
, Kerrostalo
42 m2
Kerros 2/2
Peijaksentie 27 C 33
2h+kk+s
, Kerrostalo
42 m2
1/2
Peijaksentie 27 C 33
2h+kk+s
, Kerrostalo
42 m2
Kerros 1/2
Peijaksentie 27 A 13
2h+kk+s
, Kerrostalo
42 m2
3/3
Peijaksentie 27 A 13
2h+kk+s
, Kerrostalo
42 m2
Kerros 3/3
Peijaksentie 27 A 8
2h+kk+s
, Kerrostalo
42 m2
2/3
Peijaksentie 27 A 8
2h+kk+s
, Kerrostalo
42 m2
Kerros 2/3
Peijaksentie 27 A 3
2h+kk+s
, Kerrostalo
42 m2
1/3
Peijaksentie 27 A 3
2h+kk+s
, Kerrostalo
42 m2
Kerros 1/3
Peijaksentie 27 B 28
2h+kk+s
, Kerrostalo
42 m2
3/3
Peijaksentie 27 B 28
2h+kk+s
, Kerrostalo
42 m2
Kerros 3/3
Peijaksentie 27 B 23
2h+kk+s
, Kerrostalo
42 m2
2/3
Peijaksentie 27 B 23
2h+kk+s
, Kerrostalo
42 m2
Kerros 2/3
Peijaksentie 27 B 18
2h+kk+s
, Kerrostalo
42 m2
1/3
Peijaksentie 27 B 18
2h+kk+s
, Kerrostalo
42 m2
Kerros 1/3
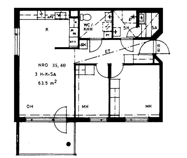
Peijaksentie 27 C 40
3h+k+s
, Kerrostalo
63.5 m2
Kerros 2/2
Peijaksentie 27 C 35
3h+k+s
, Kerrostalo
63.5 m2
1/2
Peijaksentie 27 C 35
3h+k+s
, Kerrostalo
63.5 m2
Kerros 1/2
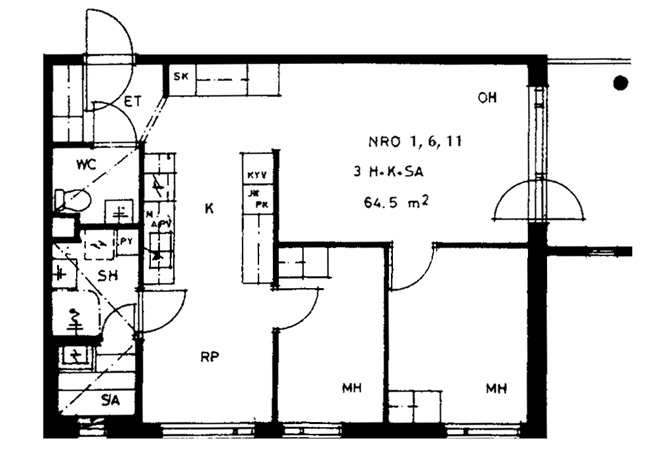
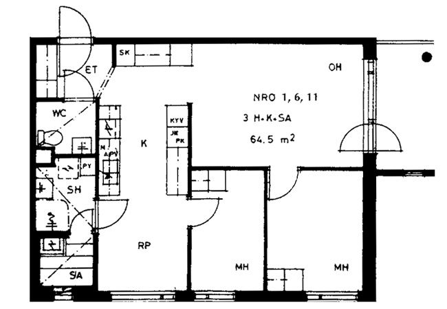
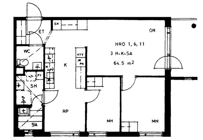
Peijaksentie 27 A 11
3h+k+s
, Kerrostalo
64.5 m2
3/3
Peijaksentie 27 A 11
3h+k+s
, Kerrostalo
64.5 m2
Kerros 3/3
Peijaksentie 27 A 6
3h+k+s
, Kerrostalo
64.5 m2
2/3
Peijaksentie 27 A 6
3h+k+s
, Kerrostalo
64.5 m2
Kerros 2/3
Peijaksentie 27 A 1
3h+k+s
, Kerrostalo
64.5 m2
1/3
Peijaksentie 27 A 1
3h+k+s
, Kerrostalo
64.5 m2
Kerros 1/3
Peijaksentie 27 B 26
3h+k+s
, Kerrostalo
64.5 m2
3/3
Peijaksentie 27 B 26
3h+k+s
, Kerrostalo
64.5 m2
Kerros 3/3
Peijaksentie 27 B 16
3h+k+s
, Kerrostalo
64.5 m2
1/3
Peijaksentie 27 B 16
3h+k+s
, Kerrostalo
64.5 m2
Kerros 1/3
Peijaksentie 27 B 21
3h+k+s
, Kerrostalo
64.5 m2
2/3
Peijaksentie 27 B 21
3h+k+s
, Kerrostalo
64.5 m2
Kerros 2/3
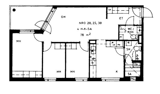
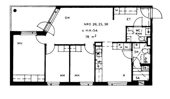
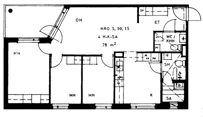
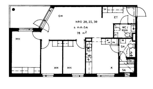
Peijaksentie 27 C 31
4h+k+s
, Kerrostalo
78 m2
1/2
Peijaksentie 27 C 31
4h+k+s
, Kerrostalo
78 m2
Kerros 1/2
Peijaksentie 27 C 36
4h+k+s
, Kerrostalo
78 m2
2/2
Peijaksentie 27 C 36
4h+k+s
, Kerrostalo
78 m2
Kerros 2/2
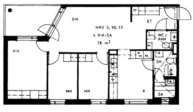
Peijaksentie 27 A 5
4h+k+s
, Kerrostalo
78 m2
1/3
Peijaksentie 27 A 5
4h+k+s
, Kerrostalo
78 m2
Kerros 1/3
Peijaksentie 27 A 15
4h+k+s
, Kerrostalo
78 m2
3/3
Peijaksentie 27 A 15
4h+k+s
, Kerrostalo
78 m2
Kerros 3/3
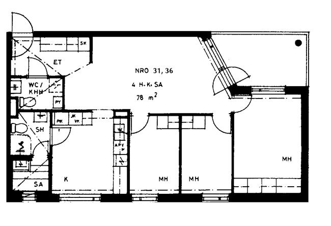
Peijaksentie 27 A 10
4h+k+s
, Kerrostalo
78 m2
2/3
Peijaksentie 27 A 10
4h+k+s
, Kerrostalo
78 m2
Kerros 2/3
Peijaksentie 27 B 30
4h+k+s
, Kerrostalo
78 m2
3/3
Peijaksentie 27 B 30
4h+k+s
, Kerrostalo
78 m2
Kerros 3/3
Peijaksentie 27 B 20
4h+k+s
, Kerrostalo
78 m2
1/3
Peijaksentie 27 B 20
4h+k+s
, Kerrostalo
78 m2
Kerros 1/3
Peijaksentie 27 B 25
4h+k+s
, Kerrostalo
78 m2
2/3
Peijaksentie 27 B 25
4h+k+s
, Kerrostalo
78 m2
Kerros 2/3
