Kohteen esittely
Miksi Asuntosäätiö?
Me uskomme, että onnellinen koti ja laadukas asuminen kuuluvat kaikille. Emme tavoittele voittoa, vaan käytämme kaikki vastikkeista ja vuokrista saadut tulot toimintamme kehittämiseen. Jo yli 33 000 suomalaista on valinnut Asuntosäätiön tarjoaman kodin. Tiesithän, että myös lemmikit ovat tervetulleita kaikkiin koteihimme!
Rakennuksen tiedot
- Asumismuoto Asokoti
- Keskimääräinen asumisoikeusmaksu / jm² 406,35€
- Hissit Ei
- Talosauna Ei
- Asuntoja 14
- Asuinrakennuksia 7
- Käyttövastike / kk / jm² 14,23€
- Valmistumisvuosi 1996
- Energialuokka E
- Lämmitysmuoto Sähkö
- Autopaikat 14
- Laajakaista DNA Netti
- Antennijärjestelmä Kaapeli
- KaapeliTV DNA
- Kattomateriaali Tiili
- Runkomateriaali Puu
- Lemmikit Sallittu
Huoneistot ja pohjakuvat: Krookuskuja 3 ja 4, Paritalo, Piharakennus
Lisää hakemukselle kaikki haluamasi asuntotyypit. Mahdollisuutesi asunnon saamiseksi paranevat, kun voimme tarjota sinulle kaikkia valitsemasi asuntotyypin asuntoja, jotka mahdollisesti vapautuvat myöhemmin tästä kohteesta. Olet automaattisesti näiden asuntotyyppien hakuprosessissa.
Krookuskuja 4 H 8
2h+kk+s
, Paritalo
45.5 m2
1/1
Krookuskuja 4 H 8
2h+kk+s
, Paritalo
45.5 m2
Kerros 1/1
Krookuskuja 4 G 7
2h+kk+s
, Paritalo
45.5 m2
1/1
Krookuskuja 4 G 7
2h+kk+s
, Paritalo
45.5 m2
Kerros 1/1
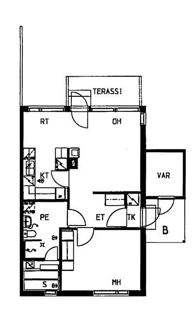
Krookuskuja 4 A 1
2h+kk+s
, Paritalo
52.5 m2
1/1
Krookuskuja 4 A 1
2h+kk+s
, Paritalo
52.5 m2
Kerros 1/1
Krookuskuja 4 B 2
2h+kk+s
, Paritalo
52.5 m2
1/1
Krookuskuja 4 B 2
2h+kk+s
, Paritalo
52.5 m2
Kerros 1/1
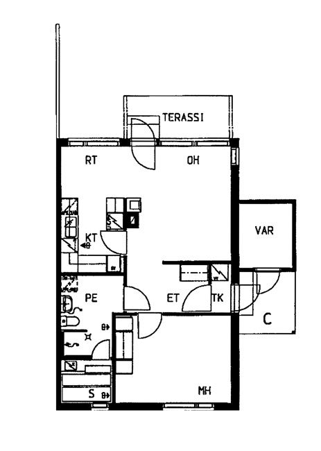
Krookuskuja 4 E 5
2h+kk+s
, Paritalo
52.5 m2
1/1
Krookuskuja 4 E 5
2h+kk+s
, Paritalo
52.5 m2
Kerros 1/1
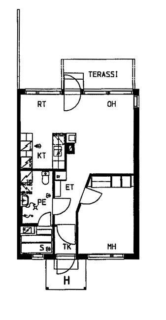
Krookuskuja 3 E 5
2h+kk+s
, Paritalo
53 m2
1/1
Krookuskuja 3 E 5
2h+kk+s
, Paritalo
53 m2
Kerros 1/1
Krookuskuja 3 F 6
2h+kk+s
, Paritalo
53 m2
1/1
Krookuskuja 3 F 6
2h+kk+s
, Paritalo
53 m2
Kerros 1/1
Krookuskuja 3 C 3
2h+kk+s
, Paritalo
53 m2
1/1
Krookuskuja 3 C 3
2h+kk+s
, Paritalo
53 m2
Kerros 1/1
Krookuskuja 3 D 4
2h+kk+s
, Paritalo
53 m2
1/1
Krookuskuja 3 D 4
2h+kk+s
, Paritalo
53 m2
Kerros 1/1
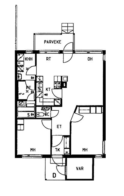
Krookuskuja 4 F 6
3h+kk+s
, Paritalo
68 m2
1/1
Krookuskuja 4 F 6
3h+kk+s
, Paritalo
68 m2
Kerros 1/1
Krookuskuja 4 D 4
3h+kk+s
, Paritalo
68 m2
1/1
Krookuskuja 4 D 4
3h+kk+s
, Paritalo
68 m2
Kerros 1/1
Krookuskuja 4 C 3
3h+kk+s
, Paritalo
68 m2
1/1
Krookuskuja 4 C 3
3h+kk+s
, Paritalo
68 m2
Kerros 1/1
Krookuskuja 3 A 1
3h+kk+s
, Paritalo
68.5 m2
1/1
Krookuskuja 3 A 1
3h+kk+s
, Paritalo
68.5 m2
Kerros 1/1
Krookuskuja 3 B 2
3h+kk+s
, Paritalo
68.5 m2
1/1
Krookuskuja 3 B 2
3h+kk+s
, Paritalo
68.5 m2
Kerros 1/1