Kohteen esittely
Miksi Asuntosäätiö?
Me uskomme, että onnellinen koti ja laadukas asuminen kuuluvat kaikille. Emme tavoittele voittoa, vaan käytämme kaikki vastikkeista ja vuokrista saadut tulot toimintamme kehittämiseen. Jo yli 33 000 suomalaista on valinnut Asuntosäätiön tarjoaman kodin. Tiesithän, että myös lemmikit ovat tervetulleita kaikkiin koteihimme!
Rakennuksen tiedot
- Asumismuoto Asokoti
- Keskimääräinen asumisoikeusmaksu / jm² 380,48€
- Hissit Ei
- Talosauna Ei
- Asuntoja 10
- Asuinrakennuksia 4
- Käyttövastike / kk / jm² 15,8€
- Valmistumisvuosi 1995
- Peruskorjattu 2025
- Energialuokka C
- Lämmitysmuoto Maalämpö
- Autopaikat 20
- Laajakaista DNA Netti
- Antennijärjestelmä Kaapeli
- KaapeliTV DNA
- Kattomateriaali Pelti
- Runkomateriaali Betoni
- Lemmikit Sallittu
Huoneistot ja pohjakuvat: Tulppaanitie 2, Piharakennus, Paritalo, Rivitalo
Lisää hakemukselle kaikki haluamasi asuntotyypit. Mahdollisuutesi asunnon saamiseksi paranevat, kun voimme tarjota sinulle kaikkia valitsemasi asuntotyypin asuntoja, jotka mahdollisesti vapautuvat myöhemmin tästä kohteesta. Olet automaattisesti näiden asuntotyyppien hakuprosessissa.
Tulppaanitie 2 D 7
2h+k+s
, Rivitalo
58 m2
1/1
Tulppaanitie 2 D 7
2h+k+s
, Rivitalo
58 m2
Kerros 1/1
Tulppaanitie 2 D 9
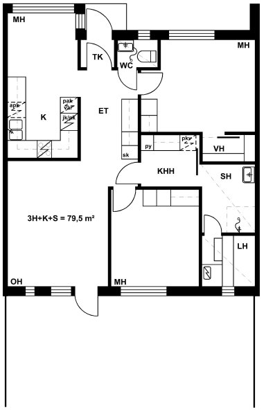
3h+k+s
, Rivitalo
79.5 m2
1/1
Tulppaanitie 2 D 9
3h+k+s
, Rivitalo
79.5 m2
Kerros 1/1
Tulppaanitie 2 D 8
3h+k+s
, Rivitalo
79.5 m2
1/1
Tulppaanitie 2 D 8
3h+k+s
, Rivitalo
79.5 m2
Kerros 1/1
Tulppaanitie 2 D 10
3h+k+s
, Rivitalo
79.5 m2
1/1
Tulppaanitie 2 D 10
3h+k+s
, Rivitalo
79.5 m2
Kerros 1/1
Tulppaanitie 2 B 4
3h+k+s
, Paritalo
83 m2
I-II/2
Tulppaanitie 2 B 4
3h+k+s
, Paritalo
83 m2
Kerros I-II/2
Tulppaanitie 2 C 6
3h+k+s
, Paritalo
83 m2
I-II/2
Tulppaanitie 2 C 6
3h+k+s
, Paritalo
83 m2
Kerros I-II/2
Tulppaanitie 2 A 1
4h+k+s
, Paritalo
94.5 m2
I-II/2
Tulppaanitie 2 A 1
4h+k+s
, Paritalo
94.5 m2
Kerros I-II/2
Tulppaanitie 2 A 2
4h+k+s
, Paritalo
94.5 m2
I-II/2
Tulppaanitie 2 A 2
4h+k+s
, Paritalo
94.5 m2
Kerros I-II/2