Kohteen esittely
Kerros- ja rivitalokohde kauniilla sijainnilla. Lämmitys, vesi ja yksi autopaikka sisältyvät vastikkeeseen.
Tikkurilan pohjoispuolelle sijoittuva Simonkylä tarjoaa loistavat puitteet ulkoilua rakastaville. Kesäisin Malminiitynpuistossa pääsee pelaamaan frisbeegolfia. Simonkylänpuiston virkistysalueen lenkkipolut muuttuvat talven myötä hiihtoladuiksi siinä missä Hiiriharjun tekomäki, Möskäri, tarjoaa oivat puitteet pulkkamäessä iloitteluun. Hiirilammilla voi testata kalaonneaan ja Kylmäohjan puro virtaa läpi Simonkylänpuiston.
Peruspalvelut, kuten lähikaupat, apteekki, päiväkodit ja ala-aste löytyvät kävelymatkan päästä.
Miksi Asuntosäätiö?
Me uskomme, että onnellinen koti ja laadukas asuminen kuuluvat kaikille. Emme tavoittele voittoa, vaan käytämme kaikki vastikkeista ja vuokrista saadut tulot toimintamme kehittämiseen. Jo yli 33 000 suomalaista on valinnut Asuntosäätiön tarjoaman kodin. Tiesithän, että myös lemmikit ovat tervetulleita kaikkiin koteihimme!
Rakennuksen tiedot
- Asumismuoto Asokoti
- Keskimääräinen asumisoikeusmaksu / jm² 393,63€
- Hissit Ei
- Talosauna Ei
- Kuivaushuone Kyllä
- Asuntoja 25
- Asuinrakennuksia 3
- Käyttövastike / kk / jm² 14,81€
- Valmistumisvuosi 1998
- Porrashuoneet 1
- Energialuokka D, E
- Lämmitysmuoto Kauko
- Autopaikat 34
- Laajakaista DNA Netti
- Antennijärjestelmä Kaapeli
- KaapeliTV DNA
- Kattomateriaali Huopa
- Runkomateriaali Betoni
- Lemmikit Sallittu
Huoneistot ja pohjakuvat: Kallioimarteentie 14 B, , Rivitalo, Kerrostalo
Lisää hakemukselle kaikki haluamasi asuntotyypit. Mahdollisuutesi asunnon saamiseksi paranevat, kun voimme tarjota sinulle kaikkia valitsemasi asuntotyypin asuntoja, jotka mahdollisesti vapautuvat myöhemmin tästä kohteesta. Olet automaattisesti näiden asuntotyyppien hakuprosessissa.
Kallioimarteentie 14 B A 1
2h+k+s
, Kerrostalo
40 m2
1/3
Kallioimarteentie 14 B A 1
2h+k+s
, Kerrostalo
40 m2
Kerros 1/3
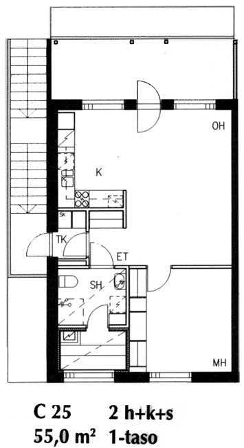
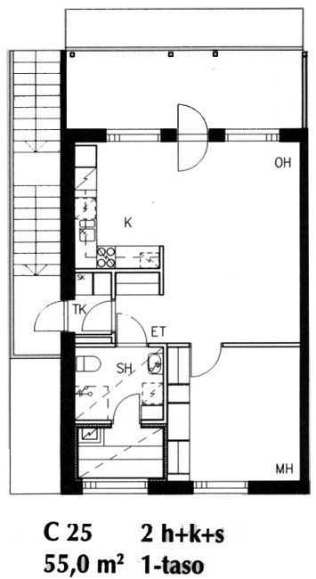
Kallioimarteentie 14 B C 25
2h+k+s
, Rivitalo
55 m2
2/2
Kallioimarteentie 14 B C 25
2h+k+s
, Rivitalo
55 m2
Kerros 2/2
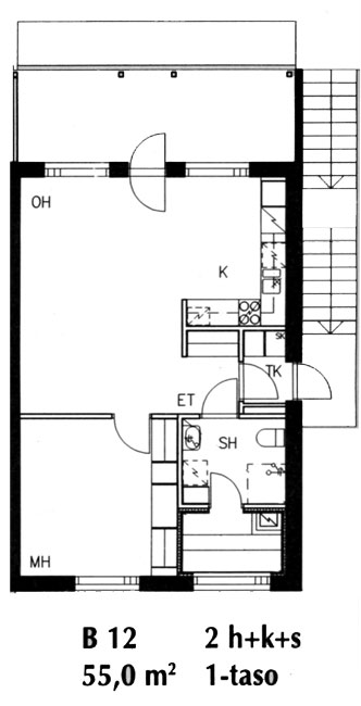
Kallioimarteentie 14 B B 12
2h+k+s
, Rivitalo
55 m2
II/2
Kallioimarteentie 14 B B 12
2h+k+s
, Rivitalo
55 m2
Kerros II/2
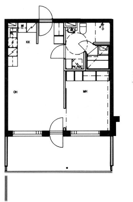
Kallioimarteentie 14 B A 7
2h+k+s
, Kerrostalo
58 m2
3/3
Kallioimarteentie 14 B A 7
2h+k+s
, Kerrostalo
58 m2
Kerros 3/3
Kallioimarteentie 14 B A 5
2h+kk+s
, Kerrostalo
40 m2
2/3
Kallioimarteentie 14 B A 5
2h+kk+s
, Kerrostalo
40 m2
Kerros 2/3
Kallioimarteentie 14 B A 9
2h+kk+s
, Kerrostalo
40 m2
3/3
Kallioimarteentie 14 B A 9
2h+kk+s
, Kerrostalo
40 m2
Kerros 3/3
Kallioimarteentie 14 B A 4
2h+kk+s
, Kerrostalo
40 m2
2/3
Kallioimarteentie 14 B A 4
2h+kk+s
, Kerrostalo
40 m2
Kerros 2/3
Kallioimarteentie 14 B A 8
2h+kk+s
, Kerrostalo
40 m2
3/3
Kallioimarteentie 14 B A 8
2h+kk+s
, Kerrostalo
40 m2
Kerros 3/3
Kallioimarteentie 14 B A 10
3h+k+s
, Kerrostalo
66 m2
3/3
Kallioimarteentie 14 B A 10
3h+k+s
, Kerrostalo
66 m2
Kerros 3/3
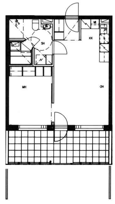
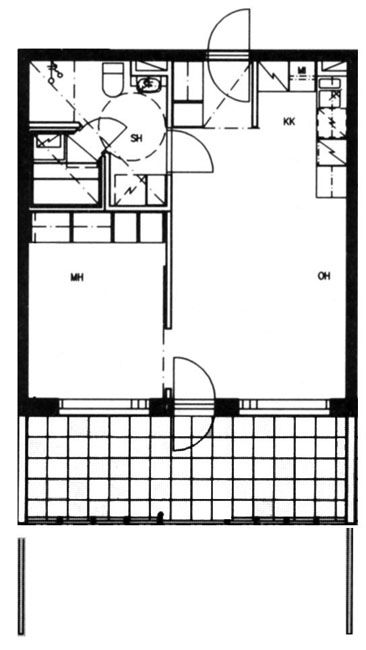
Kallioimarteentie 14 B C 24
3h+k+s
, Rivitalo
68 m2
I-II/2
Kallioimarteentie 14 B C 24
3h+k+s
, Rivitalo
68 m2
Kerros I-II/2
Kallioimarteentie 14 B B 11
3h+k+s
, Rivitalo
68 m2
I/2
Kallioimarteentie 14 B B 11
3h+k+s
, Rivitalo
68 m2
Kerros I/2
Kallioimarteentie 14 B A 3
3h+k+s
, Kerrostalo
73.5 m2
2/3
Kallioimarteentie 14 B A 3
3h+k+s
, Kerrostalo
73.5 m2
Kerros 2/3
Kallioimarteentie 14 B C 19
3h+k+s
, Rivitalo
75 m2
I-II/2
Kallioimarteentie 14 B C 19
3h+k+s
, Rivitalo
75 m2
Kerros I-II/2
Kallioimarteentie 14 B B 18
3h+k+s
, Rivitalo
75.5 m2
I-II/2
Kallioimarteentie 14 B B 18
3h+k+s
, Rivitalo
75.5 m2
Kerros I-II/2
Kallioimarteentie 14 B B 17
3h+k+s
, Rivitalo
78 m2
I-II/2
Kallioimarteentie 14 B B 17
3h+k+s
, Rivitalo
78 m2
Kerros I-II/2
Kallioimarteentie 14 B A 2
4h+k+s
, Kerrostalo
82.5 m2
1/3
Kallioimarteentie 14 B A 2
4h+k+s
, Kerrostalo
82.5 m2
Kerros 1/3
Kallioimarteentie 14 B A 6
4h+k+s
, Kerrostalo
82.5 m2
2/3
Kallioimarteentie 14 B A 6
4h+k+s
, Kerrostalo
82.5 m2
Kerros 2/3
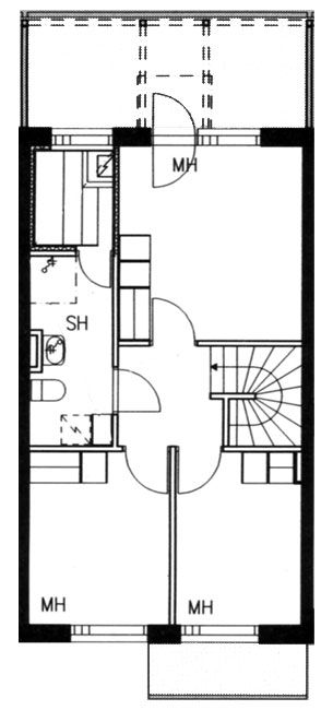
Kallioimarteentie 14 B B 14
4h+k+s
, Rivitalo
90.5 m2
I-II/2
Kallioimarteentie 14 B B 14
4h+k+s
, Rivitalo
90.5 m2
Kerros I-II/2
Kallioimarteentie 14 B C 22
4h+k+s
, Rivitalo
91 m2
I-II/2
Kallioimarteentie 14 B C 22
4h+k+s
, Rivitalo
91 m2
Kerros I-II/2
Kallioimarteentie 14 B C 20
4h+k+s
, Rivitalo
91 m2
I-II/2
Kallioimarteentie 14 B C 20
4h+k+s
, Rivitalo
91 m2
Kerros I-II/2
Kallioimarteentie 14 B C 23
4h+k+s
, Rivitalo
91 m2
I-II/2
Kallioimarteentie 14 B C 23
4h+k+s
, Rivitalo
91 m2
Kerros I-II/2
Kallioimarteentie 14 B C 21
4h+k+s
, Rivitalo
91 m2
I-II/2
Kallioimarteentie 14 B C 21
4h+k+s
, Rivitalo
91 m2
Kerros I-II/2
Kallioimarteentie 14 B B 16
4h+k+s
, Rivitalo
91 m2
I-II/2
Kallioimarteentie 14 B B 16
4h+k+s
, Rivitalo
91 m2
Kerros I-II/2
Kallioimarteentie 14 B B 13
4h+k+s
, Rivitalo
91 m2
I-II/2
Kallioimarteentie 14 B B 13
4h+k+s
, Rivitalo
91 m2
Kerros I-II/2
Kallioimarteentie 14 B B 15
4h+k+s
, Rivitalo
91 m2
I-II/2
Kallioimarteentie 14 B B 15
4h+k+s
, Rivitalo
91 m2
Kerros I-II/2
