Kohteen esittely
Viihtyisä kerrostalokohde Malminiitynpuiston vieressä, Simonkylän luonnonläheisellä alueella.
Asuntojen koot vaihtelevat 32,5-neliöisestä yksiöstä aina 109-neliöiseen neliöön, josta aukeavat kauniit näkymät viereiseen puistoon. Keittiöt on varustettu keraamisilla liesillä ja astianpesukoneilla, lattiat peittävät kauniit laminaattilattiat, kylpyhuoneissa lattialämmitys huolehtii mukavuudesta ja liukuovet helpottavat arkea eteisissä. Ikkunoissa on vakiona sälekaihtimet, parvekkeet on lasitettu ja ensimmäisen kerroksen terasseja suojaa lasikatto. Viidennessä kerroksessa on saunaosasto, kerhotila ja kattoterassi. Pihamaan leikkipaikan yhteydestä löytyy kiipeilyseinä. Kohde on savuton.
Peruspalvelut, kuten lähikaupat, apteekki, päiväkodit ja ala-aste löytyvät kävelymatkan päästä. Läheltä kulkeva kehärata tarjoaa loistavat kulkuyhteydet niin Helsingin keskustaan kuin lentokentälle.
Miksi Asuntosäätiö?
Me uskomme, että onnellinen koti ja laadukas asuminen kuuluvat kaikille. Emme tavoittele voittoa, vaan käytämme kaikki vastikkeista ja vuokrista saadut tulot toimintamme kehittämiseen. Jo yli 33 000 suomalaista on valinnut Asuntosäätiön tarjoaman kodin. Tiesithän, että myös lemmikit ovat tervetulleita kaikkiin koteihimme!
Rakennuksen tiedot
- Asumismuoto Asokoti
- Keskimääräinen asumisoikeusmaksu / jm² 741,37€
- Hissit 3
- Talosauna 2
- Kuivaushuone Kyllä
- Asuntoja 48
- Asuinrakennuksia 1
- Käyttövastike / kk / jm² 15,27€
- Valmistumisvuosi 2019
- Porrashuoneet 3
- Energialuokka C2012
- Lämmitysmuoto Kauko
- Autopaikat 34
- Kerhohuone 1
- Laajakaista DNA Welho
- Antennijärjestelmä Kaapeli
- KaapeliTV DNA
- Kattomateriaali Huopa
- Runkomateriaali Betoni
- Lemmikit Sallittu
Huoneistot ja pohjakuvat: Malminiityntie 26, Kerrostalo
Lisää hakemukselle kaikki haluamasi asuntotyypit. Mahdollisuutesi asunnon saamiseksi paranevat, kun voimme tarjota sinulle kaikkia valitsemasi asuntotyypin asuntoja, jotka mahdollisesti vapautuvat myöhemmin tästä kohteesta. Olet automaattisesti näiden asuntotyyppien hakuprosessissa.
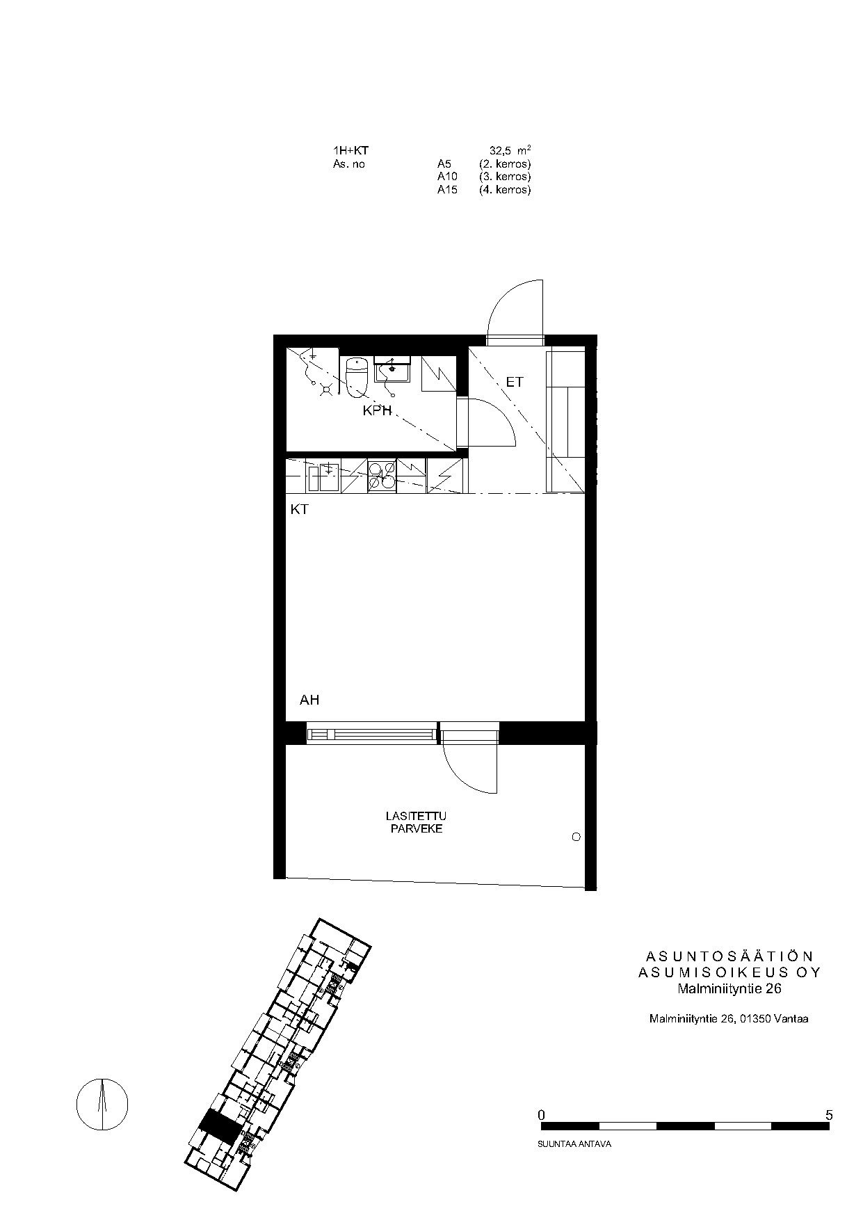
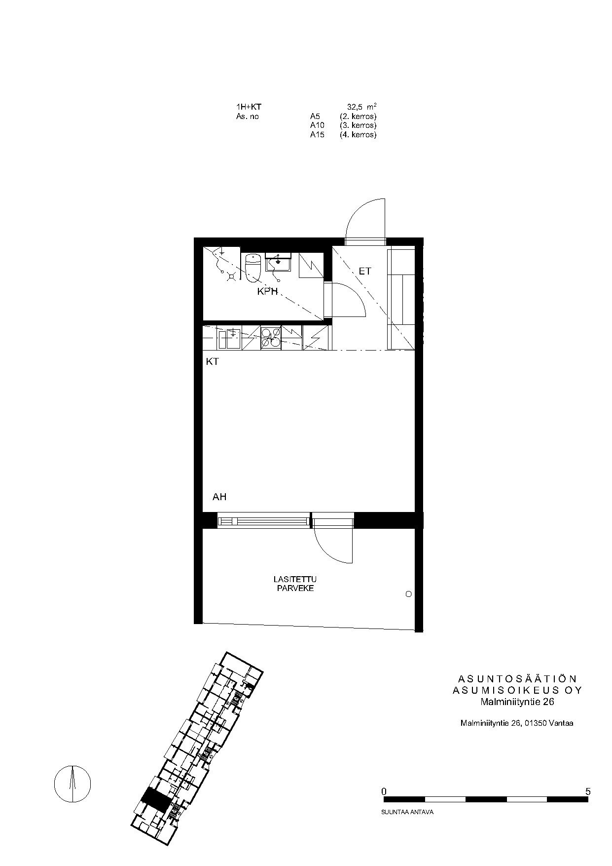
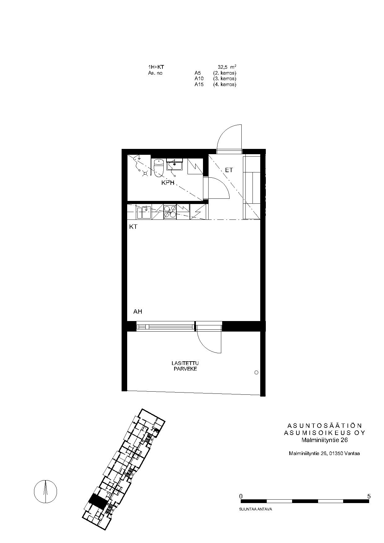
Malminiityntie 26 A 15
1h+kt
, Kerrostalo
32.5 m2
4/4
Malminiityntie 26 A 15
1h+kt
, Kerrostalo
32.5 m2
Kerros 4/4
Malminiityntie 26 A 5
1h+kt
, Kerrostalo
32.5 m2
2/4
Malminiityntie 26 A 5
1h+kt
, Kerrostalo
32.5 m2
Kerros 2/4
Malminiityntie 26 A 10
1h+kt
, Kerrostalo
32.5 m2
3/4
Malminiityntie 26 A 10
1h+kt
, Kerrostalo
32.5 m2
Kerros 3/4
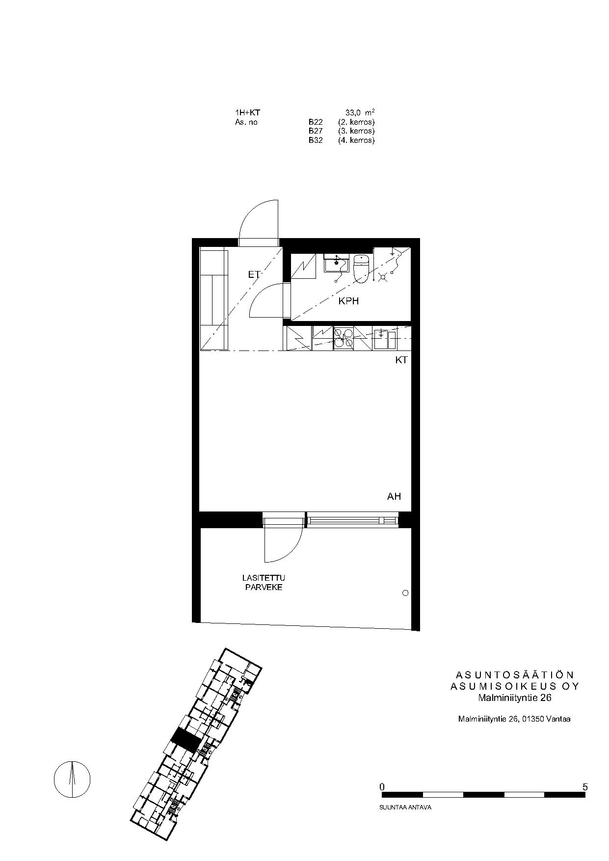
Malminiityntie 26 B 22
1h+kt
, Kerrostalo
33 m2
2/4
Malminiityntie 26 B 22
1h+kt
, Kerrostalo
33 m2
Kerros 2/4
Malminiityntie 26 B 27
1h+kt
, Kerrostalo
33 m2
3/4
Malminiityntie 26 B 27
1h+kt
, Kerrostalo
33 m2
Kerros 3/4
Malminiityntie 26 B 32
1h+kt
, Kerrostalo
33 m2
Kerros 4/4
Malminiityntie 26 A 17
1h+kt
, Kerrostalo
37.5 m2
4/4
Malminiityntie 26 A 17
1h+kt
, Kerrostalo
37.5 m2
Kerros 4/4
Malminiityntie 26 A 7
1h+kt
, Kerrostalo
37.5 m2
Kerros 2/4
Malminiityntie 26 A 12
1h+kt
, Kerrostalo
37.5 m2
3/4
Malminiityntie 26 A 12
1h+kt
, Kerrostalo
37.5 m2
Kerros 3/4
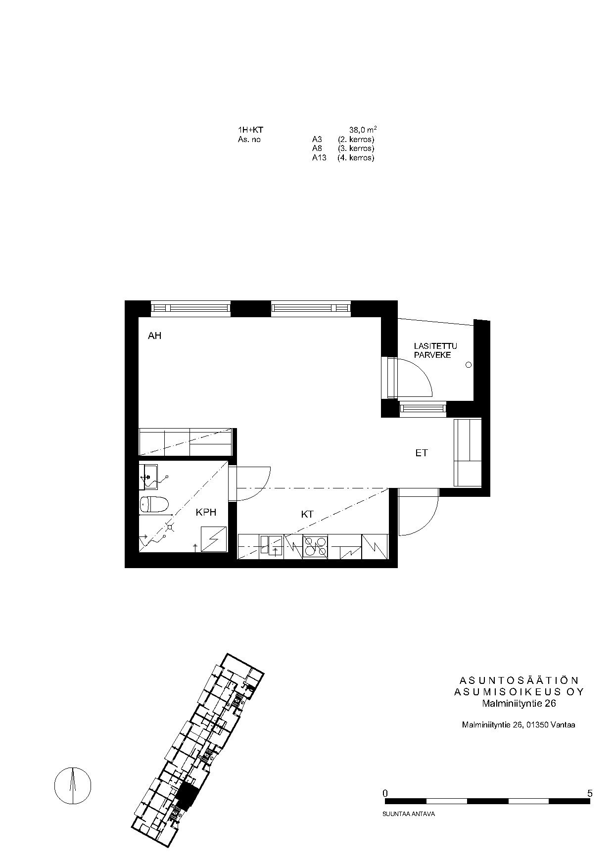
Malminiityntie 26 B 24
1h+kt
, Kerrostalo
38 m2
2/4
Malminiityntie 26 B 24
1h+kt
, Kerrostalo
38 m2
Kerros 2/4
Malminiityntie 26 B 34
1h+kt
, Kerrostalo
38 m2
4/4
Malminiityntie 26 B 34
1h+kt
, Kerrostalo
38 m2
Kerros 4/4
Malminiityntie 26 A 1
1h+kt
, Kerrostalo
38 m2
Kerros 1/4
Malminiityntie 26 A 13
1h+kt
, Kerrostalo
38 m2
4/4
Malminiityntie 26 A 13
1h+kt
, Kerrostalo
38 m2
Kerros 4/4
Malminiityntie 26 C 44
1h+kt
, Kerrostalo
38 m2
3/4
Malminiityntie 26 C 44
1h+kt
, Kerrostalo
38 m2
Kerros 3/4
Malminiityntie 26 B 29
1h+kt
, Kerrostalo
38 m2
3/4
Malminiityntie 26 B 29
1h+kt
, Kerrostalo
38 m2
Kerros 3/4
Malminiityntie 26 C 40
1h+kt
, Kerrostalo
38 m2
2/4
Malminiityntie 26 C 40
1h+kt
, Kerrostalo
38 m2
Kerros 2/4
Malminiityntie 26 A 3
1h+kt
, Kerrostalo
38 m2
2/4
Malminiityntie 26 A 3
1h+kt
, Kerrostalo
38 m2
Kerros 2/4
Malminiityntie 26 A 8
1h+kt
, Kerrostalo
38 m2
3/4
Malminiityntie 26 A 8
1h+kt
, Kerrostalo
38 m2
Kerros 3/4
Malminiityntie 26 C 48
1h+kt
, Kerrostalo
38 m2
4/4
Malminiityntie 26 C 48
1h+kt
, Kerrostalo
38 m2
Kerros 4/4
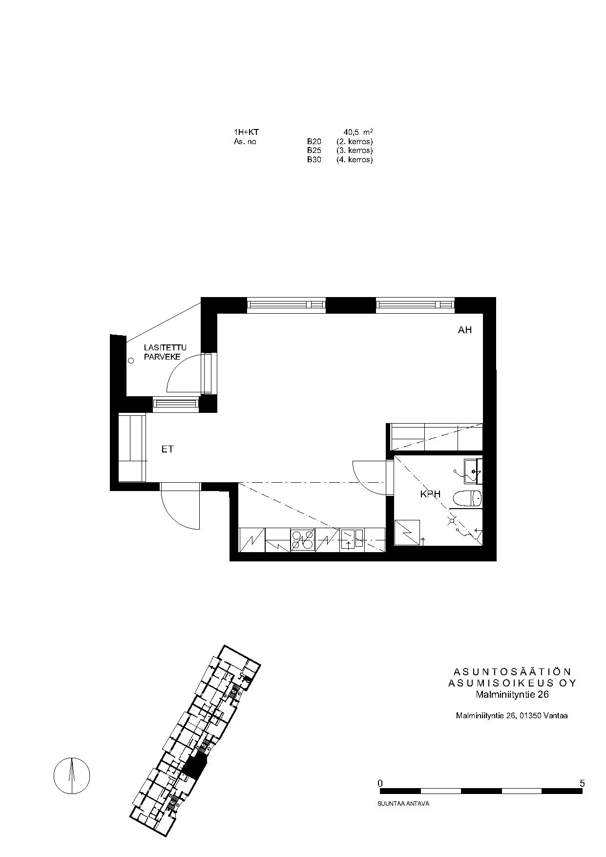
Malminiityntie 26 B 30
1h+kt
, Kerrostalo
40.5 m2
4/4
Malminiityntie 26 B 30
1h+kt
, Kerrostalo
40.5 m2
Kerros 4/4
Malminiityntie 26 B 18
1h+kt
, Kerrostalo
40.5 m2
Kerros 1/4
Malminiityntie 26 B 25
1h+kt
, Kerrostalo
40.5 m2
3/4
Malminiityntie 26 B 25
1h+kt
, Kerrostalo
40.5 m2
Kerros 3/4
Malminiityntie 26 B 20
1h+kt
, Kerrostalo
40.5 m2
2/4
Malminiityntie 26 B 20
1h+kt
, Kerrostalo
40.5 m2
Kerros 2/4
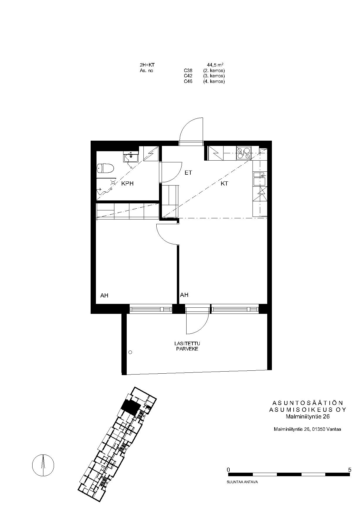
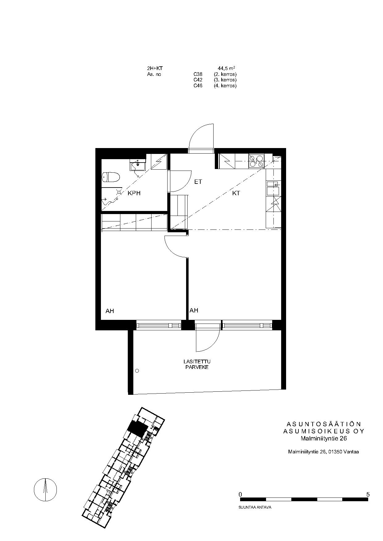
Malminiityntie 26 C 38
2h+kt
, Kerrostalo
44.5 m2
2/4
Malminiityntie 26 C 38
2h+kt
, Kerrostalo
44.5 m2
Kerros 2/4
Malminiityntie 26 C 36
2h+kt
, Kerrostalo
44.5 m2
1/4
Malminiityntie 26 C 36
2h+kt
, Kerrostalo
44.5 m2
Kerros 1/4
Malminiityntie 26 C 46
2h+kt
, Kerrostalo
44.5 m2
4/4
Malminiityntie 26 C 46
2h+kt
, Kerrostalo
44.5 m2
Kerros 4/4
Malminiityntie 26 C 42
2h+kt
, Kerrostalo
44.5 m2
Kerros 3/4
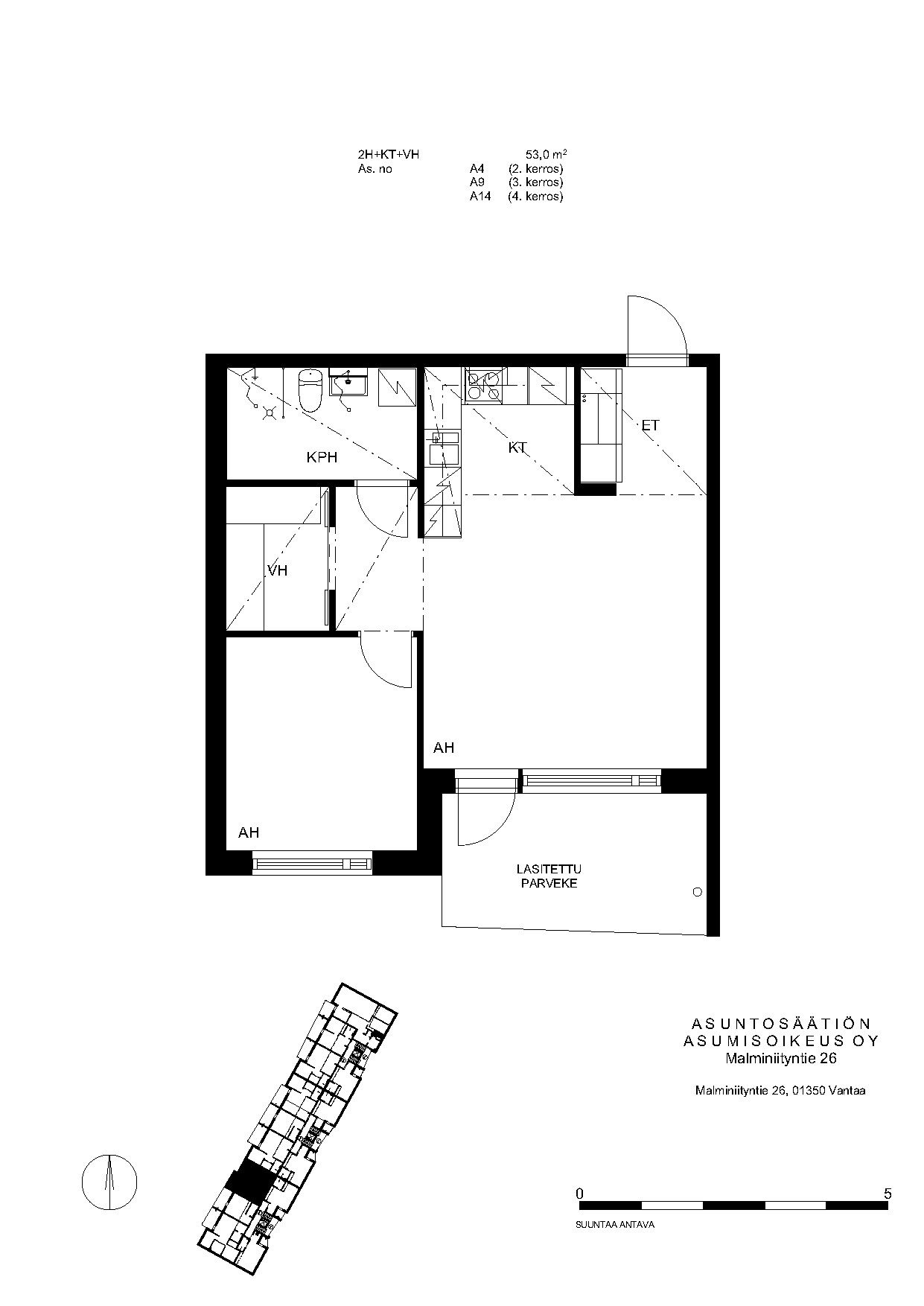
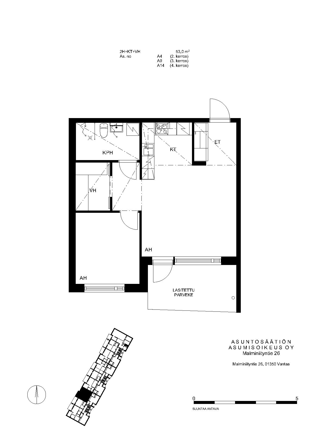
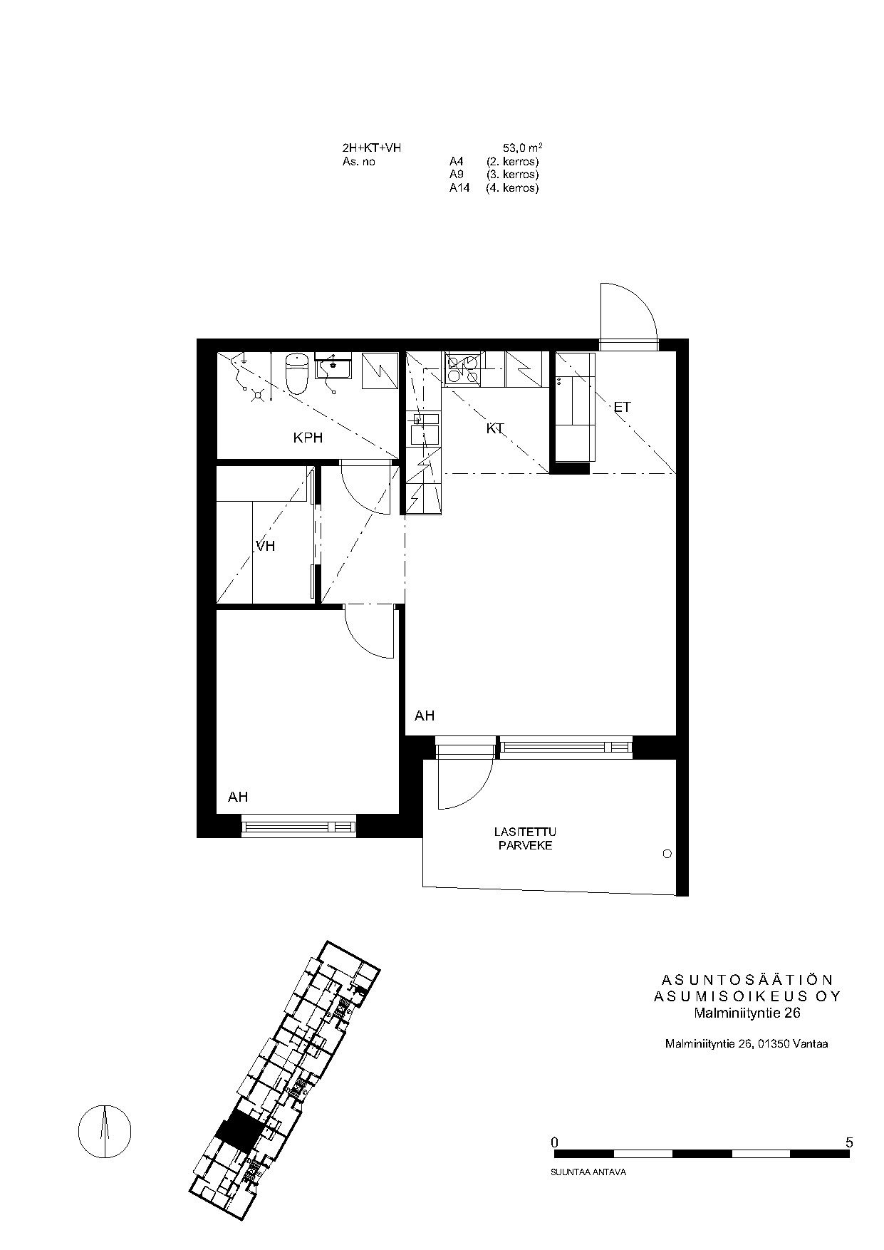
Malminiityntie 26 A 4
2h+kt
, Kerrostalo
53 m2
Kerros 2/4
Malminiityntie 26 A 9
2h+kt
, Kerrostalo
53 m2
3/4
Malminiityntie 26 A 9
2h+kt
, Kerrostalo
53 m2
Kerros 3/4
Malminiityntie 26 A 14
2h+kt
, Kerrostalo
53 m2
4/4
Malminiityntie 26 A 14
2h+kt
, Kerrostalo
53 m2
Kerros 4/4
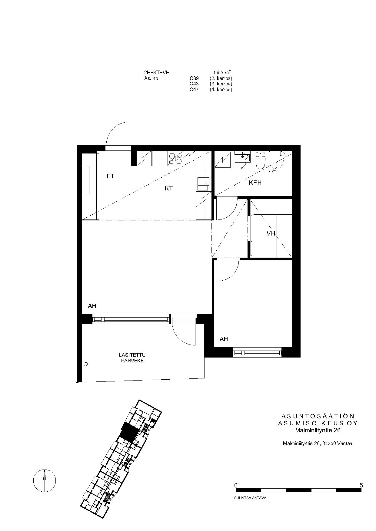
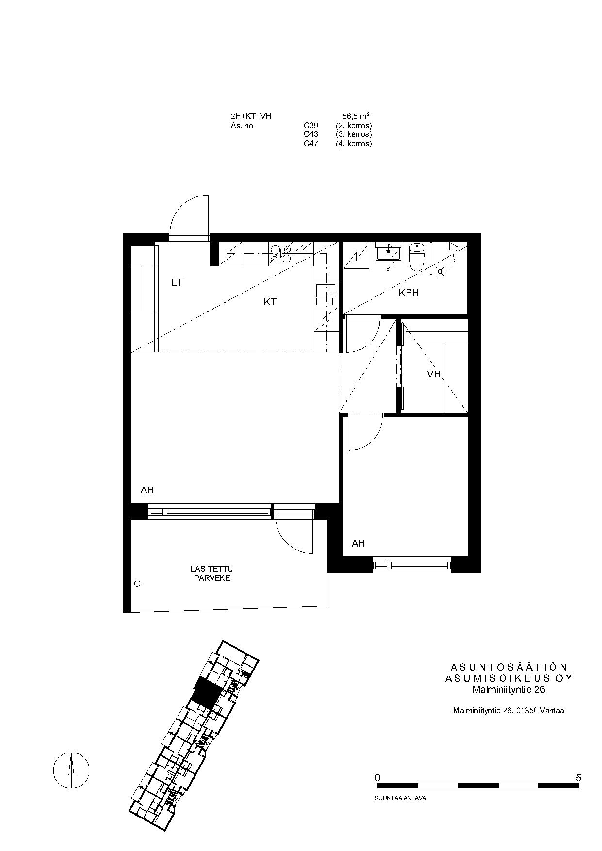
Malminiityntie 26 C 43
2h+kt
, Kerrostalo
56.5 m2
3/4
Malminiityntie 26 C 43
2h+kt
, Kerrostalo
56.5 m2
Kerros 3/4
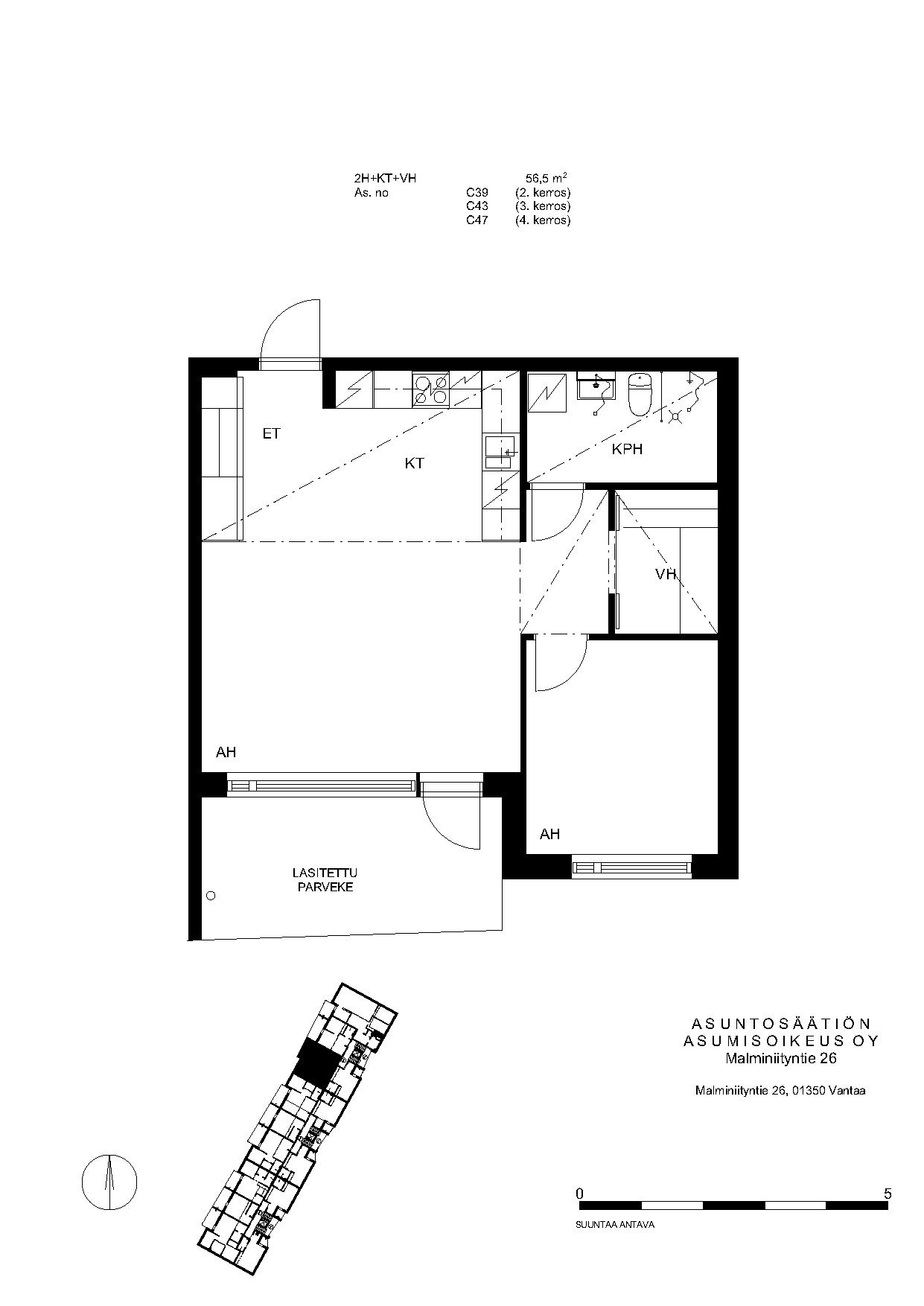
Malminiityntie 26 C 39
2h+kt
, Kerrostalo
56.5 m2
2/4
Malminiityntie 26 C 39
2h+kt
, Kerrostalo
56.5 m2
Kerros 2/4
Malminiityntie 26 B 28
2h+kt
, Kerrostalo
56.5 m2
3/4
Malminiityntie 26 B 28
2h+kt
, Kerrostalo
56.5 m2
Kerros 3/4
Malminiityntie 26 C 47
2h+kt
, Kerrostalo
56.5 m2
4/4
Malminiityntie 26 C 47
2h+kt
, Kerrostalo
56.5 m2
Kerros 4/4
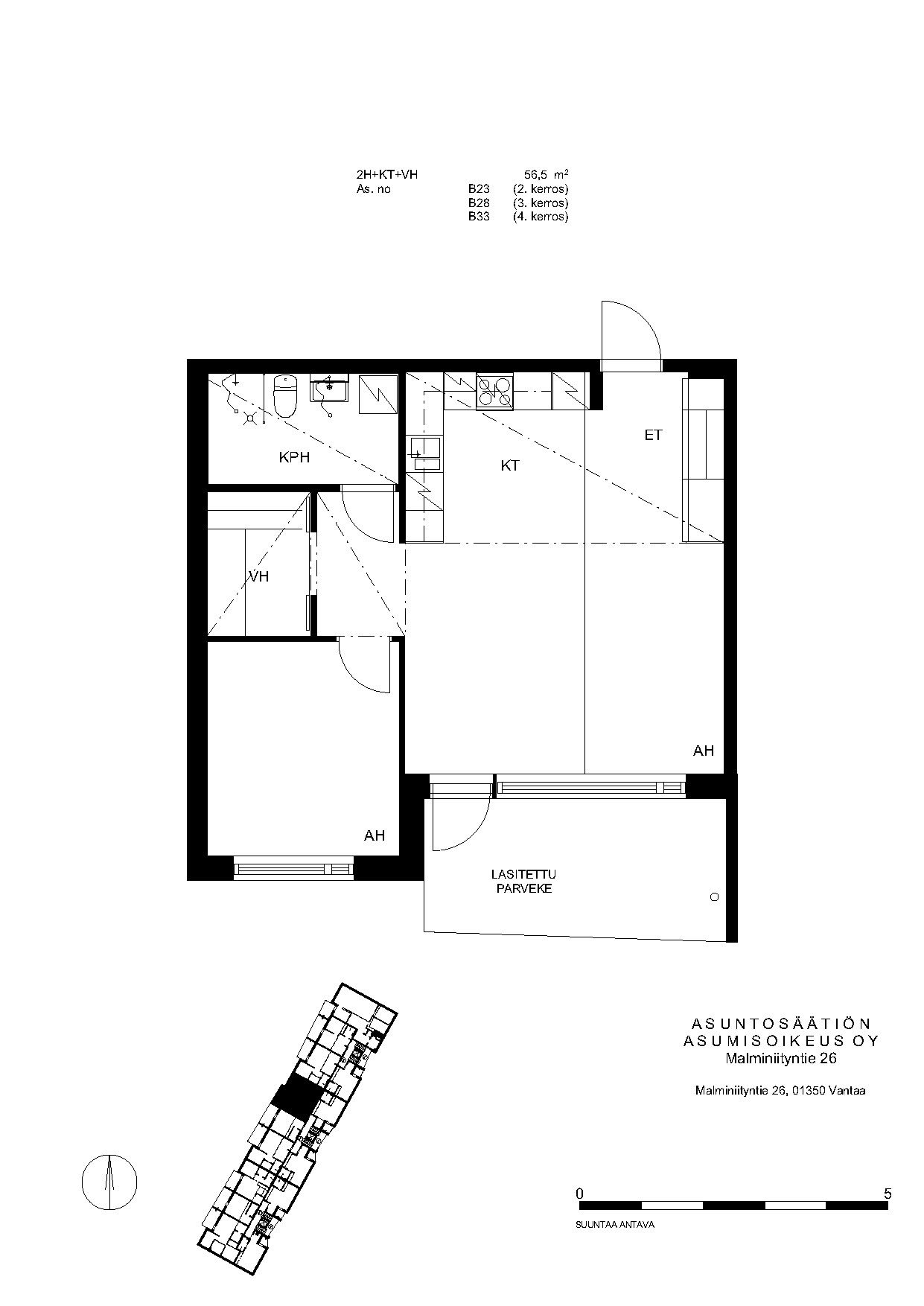
Malminiityntie 26 B 23
2h+kt
, Kerrostalo
56.5 m2
2/4
Malminiityntie 26 B 23
2h+kt
, Kerrostalo
56.5 m2
Kerros 2/4
Malminiityntie 26 B 33
2h+kt
, Kerrostalo
56.5 m2
Kerros 4/4
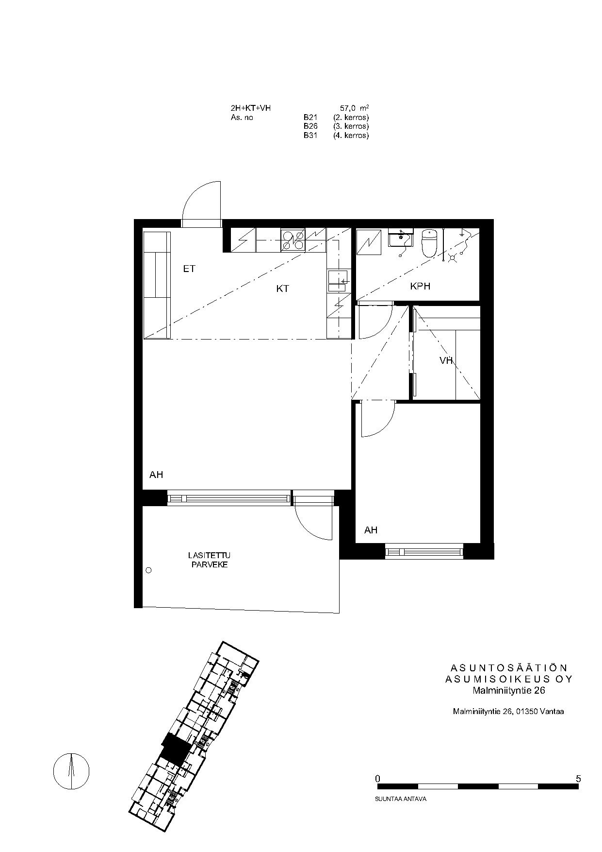
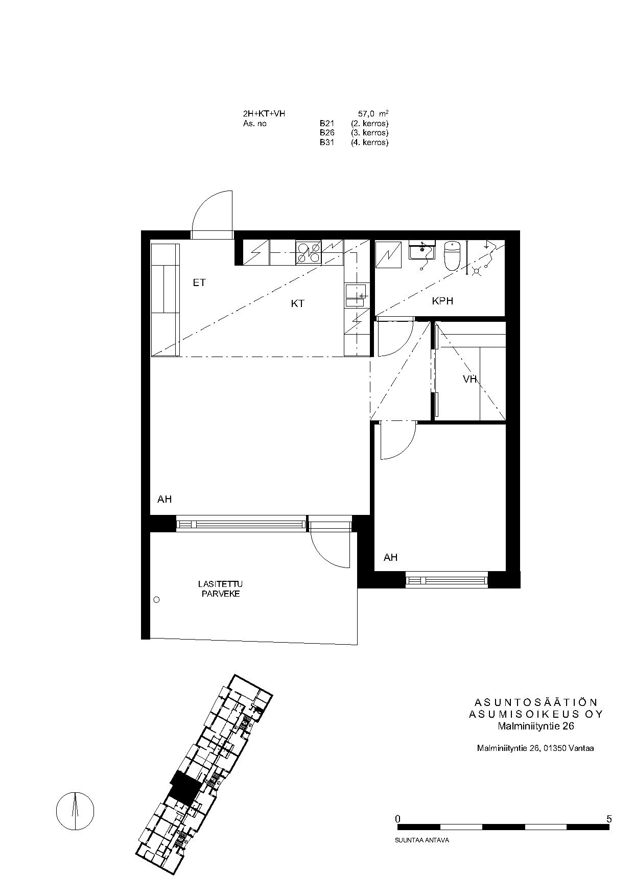
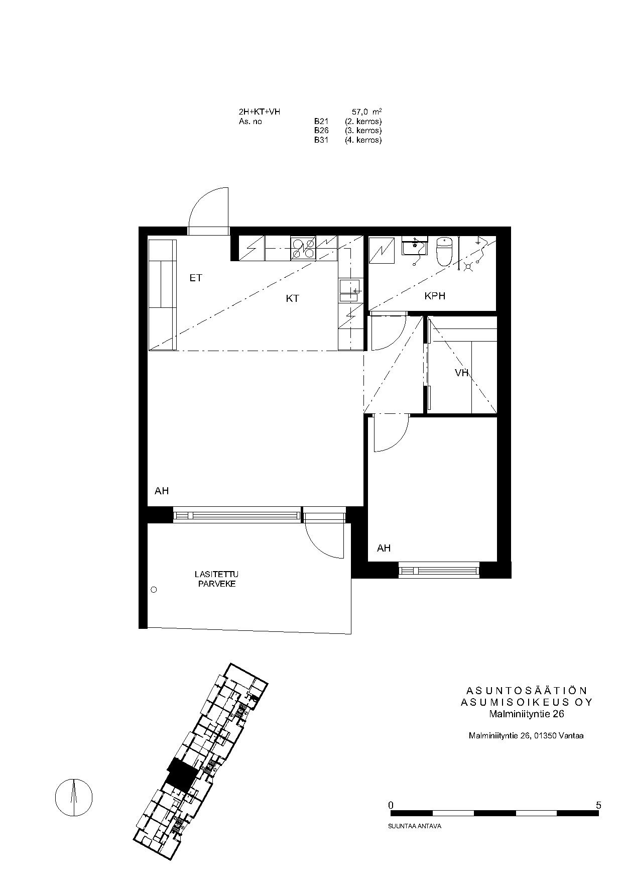
Malminiityntie 26 B 31
2h+kt
, Kerrostalo
57 m2
4/4
Malminiityntie 26 B 31
2h+kt
, Kerrostalo
57 m2
Kerros 4/4
Malminiityntie 26 B 26
2h+kt
, Kerrostalo
57 m2
3/4
Malminiityntie 26 B 26
2h+kt
, Kerrostalo
57 m2
Kerros 3/4
Malminiityntie 26 B 21
2h+kt
, Kerrostalo
57 m2
2/4
Malminiityntie 26 B 21
2h+kt
, Kerrostalo
57 m2
Kerros 2/4
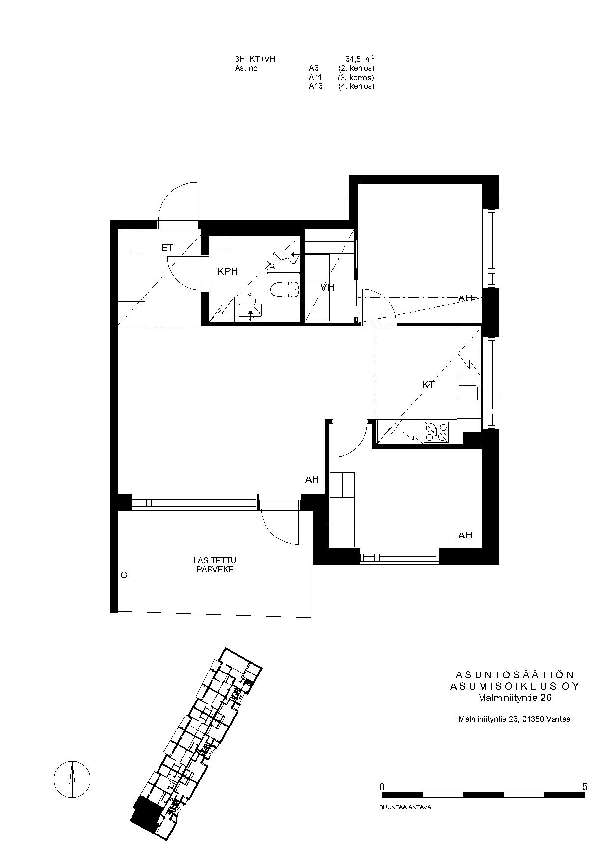
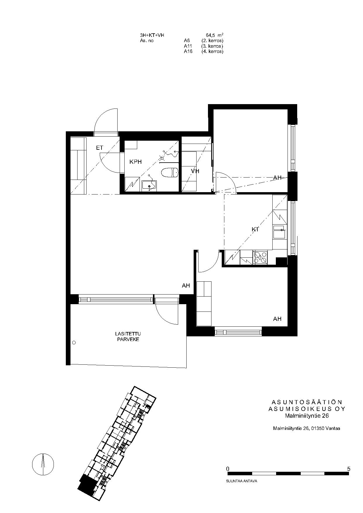
Malminiityntie 26 A 6
3h+kt
, Kerrostalo
64.5 m2
2/4
Malminiityntie 26 A 6
3h+kt
, Kerrostalo
64.5 m2
Kerros 2/4
Malminiityntie 26 A 11
3h+kt
, Kerrostalo
64.5 m2
3/4
Malminiityntie 26 A 11
3h+kt
, Kerrostalo
64.5 m2
Kerros 3/4
Malminiityntie 26 A 16
3h+kt
, Kerrostalo
64.5 m2
4/4
Malminiityntie 26 A 16
3h+kt
, Kerrostalo
64.5 m2
Kerros 4/4
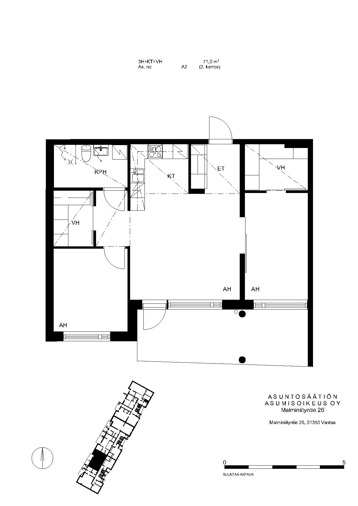
Malminiityntie 26 A 2
3h+kt
, Kerrostalo
71 m2
1/4
Malminiityntie 26 A 2
3h+kt
, Kerrostalo
71 m2
Kerros 1/4
Malminiityntie 26 B 19
3h+kt
, Kerrostalo
74.5 m2
Kerros 1/4
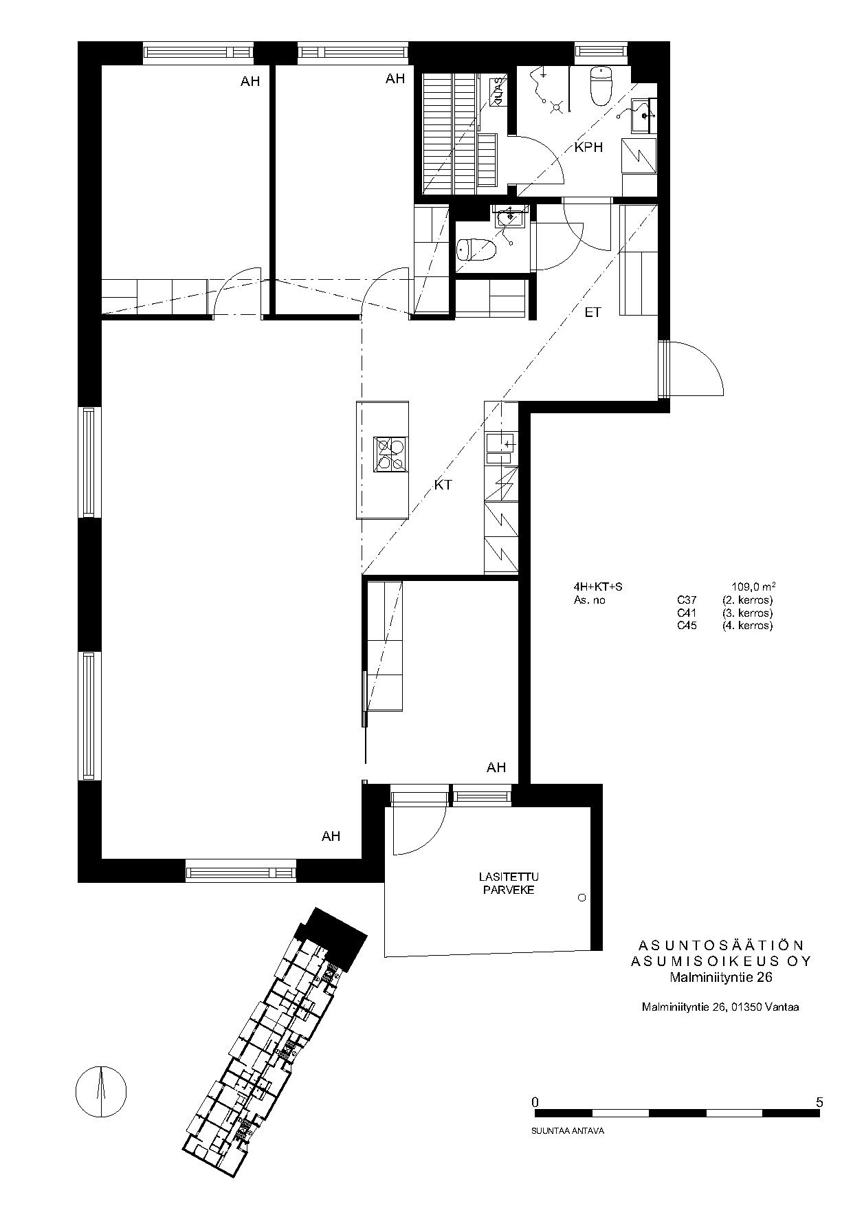
Malminiityntie 26 C 35
4h+kt+s
, Kerrostalo
109 m2
Kerros 1/4
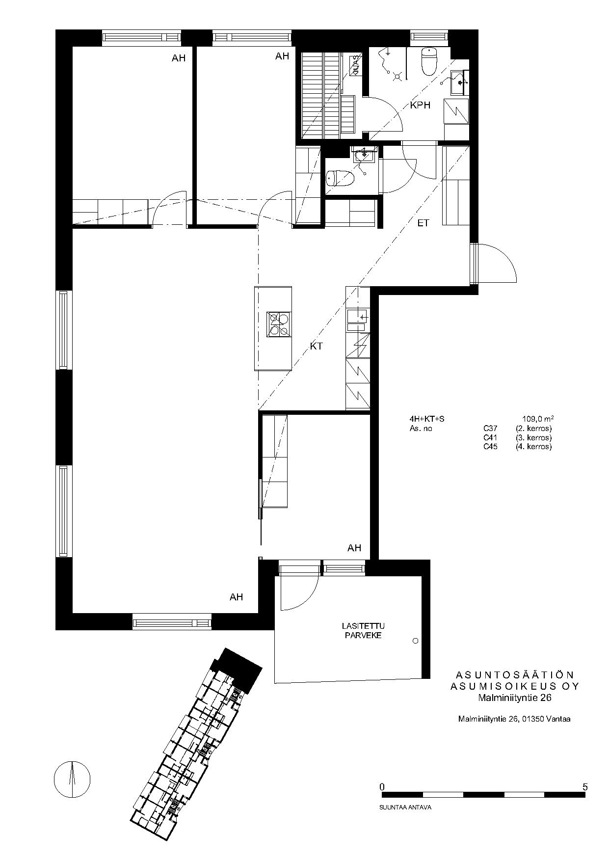
Malminiityntie 26 C 37
4h+kt+s
, Kerrostalo
109 m2
2/4
Malminiityntie 26 C 37
4h+kt+s
, Kerrostalo
109 m2
Kerros 2/4
Malminiityntie 26 C 45
4h+kt+s
, Kerrostalo
109 m2
4/4
Malminiityntie 26 C 45
4h+kt+s
, Kerrostalo
109 m2
Kerros 4/4
Malminiityntie 26 C 41
4h+kt+s
, Kerrostalo
109 m2
Kerros 3/4


