Kohteen esittely
Miksi Asuntosäätiö?
Me uskomme, että onnellinen koti ja laadukas asuminen kuuluvat kaikille. Emme tavoittele voittoa, vaan käytämme kaikki vastikkeista ja vuokrista saadut tulot toimintamme kehittämiseen. Jo yli 33 000 suomalaista on valinnut Asuntosäätiön tarjoaman kodin. Tiesithän, että myös lemmikit ovat tervetulleita kaikkiin koteihimme!
Rakennuksen tiedot
- Asumismuoto Asokoti
- Keskimääräinen asumisoikeusmaksu / jm² 262,44€
- Hissit Ei
- Talosauna Ei
- Asuntoja 9
- Asuinrakennuksia 2
- Käyttövastike / kk / jm² 16,34€
- Valmistumisvuosi 1993
- Energialuokka D
- Lämmitysmuoto Kauko
- Autopaikat 11
- Laajakaista DNA 4G
- Antennijärjestelmä Harava
- Kattomateriaali Pelti
- Runkomateriaali Betoni
- Lemmikit Sallittu
Huoneistot ja pohjakuvat: Kuminatie 30, Piharakennus, Rivitalo
Lisää hakemukselle kaikki haluamasi asuntotyypit. Mahdollisuutesi asunnon saamiseksi paranevat, kun voimme tarjota sinulle kaikkia valitsemasi asuntotyypin asuntoja, jotka mahdollisesti vapautuvat myöhemmin tästä kohteesta. Olet automaattisesti näiden asuntotyyppien hakuprosessissa.
Kuminatie 30 A 2
2h+k+s
, Rivitalo
61 m2
1/2
Kuminatie 30 A 2
2h+k+s
, Rivitalo
61 m2
Kerros 1/2
Kuminatie 30 A 5
2h+k+s
, Rivitalo
61 m2
2/2
Kuminatie 30 A 5
2h+k+s
, Rivitalo
61 m2
Kerros 2/2
Kuminatie 30 A 6
2h+k+s
, Rivitalo
61 m2
2/2
Kuminatie 30 A 6
2h+k+s
, Rivitalo
61 m2
Kerros 2/2
Kuminatie 30 B 7
2h+k+s
, Rivitalo
62 m2
1/1
Kuminatie 30 B 7
2h+k+s
, Rivitalo
62 m2
Kerros 1/1
Kuminatie 30 B 8
2h+k+s
, Rivitalo
62 m2
1/1
Kuminatie 30 B 8
2h+k+s
, Rivitalo
62 m2
Kerros 1/1
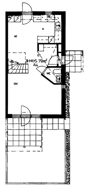
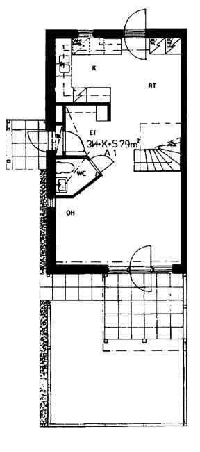
Kuminatie 30 A 4
3h+k+s
, Rivitalo
79 m2
1-2/2
Kuminatie 30 A 4
3h+k+s
, Rivitalo
79 m2
Kerros 1-2/2
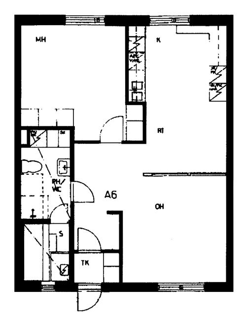
Kuminatie 30 A 1
3h+k+s
, Rivitalo
79 m2
1-2/2
Kuminatie 30 A 1
3h+k+s
, Rivitalo
79 m2
Kerros 1-2/2
Kuminatie 30 B 9
3h+k+s
, Rivitalo
81 m2
1/1
Kuminatie 30 B 9
3h+k+s
, Rivitalo
81 m2
Kerros 1/1