Kohteen esittely
Miksi Asuntosäätiö?
Me uskomme, että onnellinen koti ja laadukas asuminen kuuluvat kaikille. Emme tavoittele voittoa, vaan käytämme kaikki vastikkeista ja vuokrista saadut tulot toimintamme kehittämiseen. Jo yli 33 000 suomalaista on valinnut Asuntosäätiön tarjoaman kodin. Tiesithän, että myös lemmikit ovat tervetulleita kaikkiin koteihimme!
Rakennuksen tiedot
- Asumismuoto Asokoti
- Keskimääräinen asumisoikeusmaksu / jm² 403,58€
- Hissit Ei
- Talosauna Ei
- Asuntoja 4
- Asuinrakennuksia 1
- Käyttövastike / kk / jm² 15,44€
- Valmistumisvuosi 1996
- Energialuokka D
- Lämmitysmuoto Kauko
- Autopaikat 6
- Laajakaista DNA Welho
- Antennijärjestelmä Kaapeli
- KaapeliTV DNA
- Kattomateriaali Tiili
- Runkomateriaali Betoni
- Lemmikit Sallittu
Huoneistot ja pohjakuvat: Lummetie 36, Rivitalo, Piharakennus
Lisää hakemukselle kaikki haluamasi asuntotyypit. Mahdollisuutesi asunnon saamiseksi paranevat, kun voimme tarjota sinulle kaikkia valitsemasi asuntotyypin asuntoja, jotka mahdollisesti vapautuvat myöhemmin tästä kohteesta. Olet automaattisesti näiden asuntotyyppien hakuprosessissa.
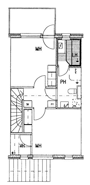
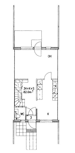
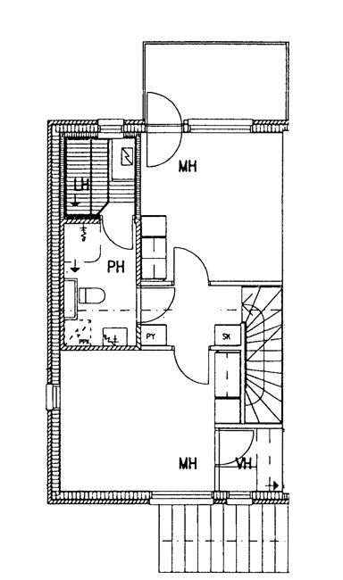
Lummetie 36 A 3
3h+k+s
, Rivitalo
82 m2
1-2/2
Lummetie 36 A 3
3h+k+s
, Rivitalo
82 m2
Kerros 1-2/2
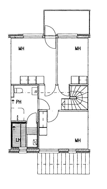
Lummetie 36 A 4
3h+k+s
, Rivitalo
83 m2
1-2/2
Lummetie 36 A 4
3h+k+s
, Rivitalo
83 m2
Kerros 1-2/2
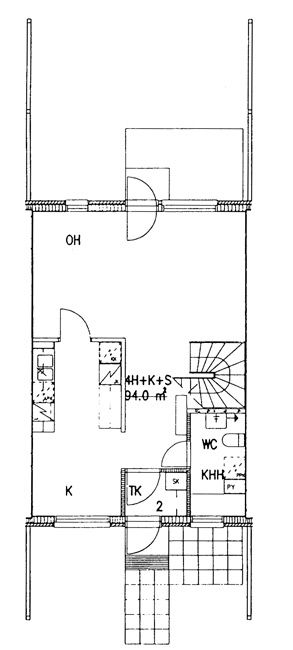
Lummetie 36 A 2
4h+k+s
, Rivitalo
94 m2
1-2/2
Lummetie 36 A 2
4h+k+s
, Rivitalo
94 m2
Kerros 1-2/2
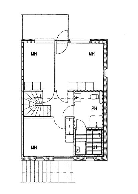
Lummetie 36 A 1
4h+k+s
, Rivitalo
95 m2
1-2/2
Lummetie 36 A 1
4h+k+s
, Rivitalo
95 m2
Kerros 1-2/2