Siirry sisältöön

Vantaa, TIKKURILA

Neilikkatie 27

Valitse asuntotyyppi ja lisää hakemukseesi

Kohteen esittely

Vantaan Tikkurilan keskustan tuntumassa, pientaloalueella oleva pieni rivitaloyhtiö. Tosi hyvät palvelut ja loistavat kulkuyhteydet. Myös alakoulu lähellä. Kaukolämmitys. Kohteessa on omatoimiviherhoito.

Miksi Asuntosäätiö?

Me uskomme, että onnellinen koti ja laadukas asuminen kuuluvat kaikille. Emme tavoittele voittoa, vaan käytämme kaikki vastikkeista ja vuokrista saadut tulot toimintamme kehittämiseen. Jo yli 33 000 suomalaista on valinnut Asuntosäätiön tarjoaman kodin. Tiesithän, että myös lemmikit ovat tervetulleita kaikkiin koteihimme!

Rakennuksen tiedot

  • Asumismuoto Asokoti
  • Keskimääräinen asumisoikeusmaksu / jm² 414,31€
  • Hissit Ei
  • Talosauna Ei
  • Asuntoja 5
  • Asuinrakennuksia 1

Vapaita asuntoja rakennuksesta

Huoneistot ja pohjakuvat: Neilikkatie 27, Rivitalo, Piharakennus

Lisää hakemukselle kaikki haluamasi asuntotyypit. Mahdollisuutesi asunnon saamiseksi paranevat, kun voimme tarjota sinulle kaikkia valitsemasi asuntotyypin asuntoja, jotka mahdollisesti vapautuvat myöhemmin tästä kohteesta. Olet automaattisesti näiden asuntotyyppien hakuprosessissa.

Hae asuntotyyppiä

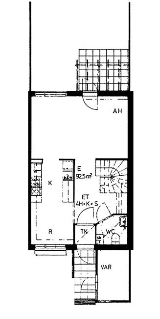
Neilikkatie 27 E 5

4h+k+s

, Rivitalo

92.5 m2

Kerros 1-2/2

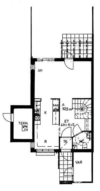
Neilikkatie 27 A 1

4h+k+s

, Rivitalo

92.5 m2

Kerros 1-2/2

Neilikkatie 27 D 4

4h+k+s

, Rivitalo

92.5 m2

Kerros 1-2/2

Vapautuu 01.05.2026

Neilikkatie 27 B 2

4h+k+s

, Rivitalo

93 m2

Kerros 1-2/2

Neilikkatie 27 C 3

4h+k+s

, Rivitalo

93 m2

Kerros 1-2/2