Siirry sisältöön
Peruskorjattu

Lue lisää asumismukavuutta lisäävistä peruskorjauksistamme.

Markkinatie 14 B 14, Helsinki, MALMI

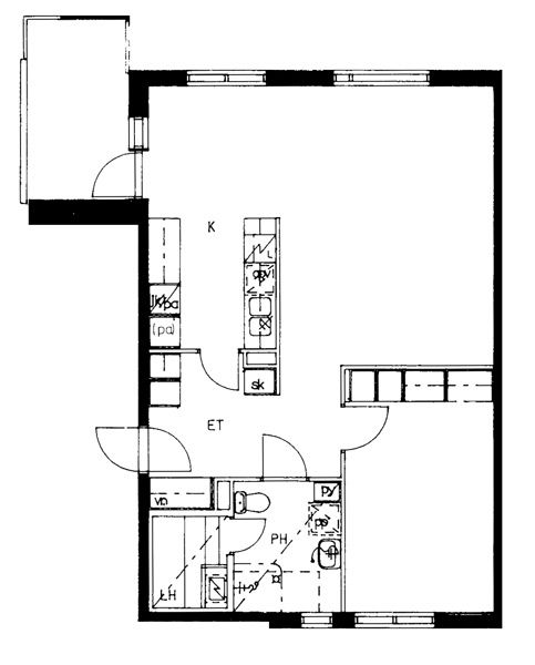
62,5 m2, 2H+K+S

Asuntomyyjä

Saana Hintsanen

Läpitalon saunallinen koti - juuri peruskorjauksesta valmistunut!

Tässä toisen kerroksen valoisassa kaksiossa on kaikki, mitä tarvitset viihtyisään ja mukavaan elämään. Asunnossa on peruskorjattu keittiö, joka on varustettu astianpesukoneella, ja makuuhuoneessa on arkea helpottamassa kiinteät kaapit jotka auttavat tavaroiden pitämisessä järjestyksessä.

Jos haluat saada lisätietoja tästä asunnosta, otathan yhteyttä myyjäämme.

Tervetuloa tulevaisuuden kotiisi!

Läpitalon saunallinen koti - juuri peruskorjauksesta valmistunut! Tässä toisen kerroksen valoisassa kaksiossa on kaikki, mitä tarvitset viihtyisään ja mukavaan elämään. Asunnossa on peruskorjattu keittiö, joka on varustettu astianpesukoneella, ja makuuhuoneessa on arkea helpottamassa kiinteät kaapit jotka auttavat tavaroiden pitämisessä järjestyksessä. Asunto on läpitalon, joten luonnonvaloa tulvii sisään joka huoneeseen. Lasitettu parveke tarjoaa ylimääräistä tilaa, jossa voit nauttia aamukahvista tai rentoutua illalla. Oman saunan lämpö rentouttaa ja tarjoaa täydellisen paikan rauhoittumiseen kiireisen päivän jälkeen. Kuulostaako tämä uudelta kodiltasi? Lähetä hakemus sivuiltamme www.asuntosaatio.fi ja sovi esittelystä! Asunto on vaihtoehtoisesti mahdollista vuokrata, mutta asuntoa tarjotaan ensisijaisesti asumisoikeusasiakkaille. Olethan yhteydessä kohteen myyjään, jos vuokraaminen kiinnostaa saana.hintsanen@asuntosaatio.fi ja lähetä hakemus sivuiltamme www.asuntosaatio.fi

Jos haluat saada lisätietoja tästä asunnosta, otathan yhteyttä myyjäämme.

Asunnon tiedot

Asuinkustannukset

  • Vuokra 1090€
  • Vakuusmaksu 1090€
  • Vesimaksu/henkilö/kk 13€
  • Autopaikkamaksut
    • — Autopaikkamaksu 1 10,00€
    • — Autokatos 1 15,00€

Perustiedot asunnosta

  • Talotyyppi Kerrostalo
  • Energialuokka F
  • Huoneistotyyppi 2H+K+S
  • Pinta-ala 62.50 m²
  • Kerros 2
  • Parveke 1
  • Oma sauna Kyllä
  • Hissi Ei
  • Vapautuu Heti vapaa
  • Kunto Hyvä
  • Lemmikit Sallittu
  • Laajakaista DNA Welho

Lisätietoja

Tupakointi asunnoissamme

Kaikki uudet asuinkiinteistömme ovat olleet jo pitkään täysin savuttomia heti valmistumisestaan lähtien. Muutumme vähitellen savuttomiksi kaikkien asuntojemme osalta: uusien asukkaiden sopimukset ovat kieltäneet tupakoinnin huoneistoissa ja parvekkeilla 1.1.2021 alkaen. Kiinteistö ei ole välttämättä savuton muiden huoneistojen osalta, koska niissä voi olla vanhoja sopimuksia, joissa ei ole tupakointikieltoa.

Kohteen esittely

Pienkerrostalokohde lähellä Malmin keskustaa. Kaikissa asunnoissa on oma sauna. Osassa asuntoja on parveke, osassa oma pieni piha.

Lähellä mm. Pukinmäen urheilupuisto sekä radan toisella puolella Longinojan varren ulkoilualueet. Lähellä Malmin juna-asemaa, josta pääsee nopeasti niin Helsingin keskustaan kuin Vantaan suuntaankin. Ruokaostokset pääsee hoitamaan aseman yhteydessä olevissa isoissa marketeissa. Alueella on koulut ammattikorkeakouluun saakka.

Miksi Asuntosäätiö?

Me uskomme, että onnellinen koti ja laadukas asuminen kuuluvat kaikille. Emme tavoittele voittoa, vaan käytämme kaikki vastikkeista ja vuokrista saadut tulot toimintamme kehittämiseen. Jo yli 33 000 suomalaista on valinnut Asuntosäätiön tarjoaman kodin. Tiesithän, että myös lemmikit ovat tervetulleita kaikkiin koteihimme!

Kohteen esittely

Pienkerrostalokohde lähellä Malmin keskustaa. Kaikissa asunnoissa on oma sauna. Osassa asuntoja on parveke, osassa oma pieni piha. Lähellä mm. Pukinmäen urheilupuisto sekä radan toisella puolella Longinojan varren ulkoilualueet. Lähellä Malmin juna-asemaa, josta pääsee nopeasti niin Helsingin keskustaan kuin Vantaan suuntaankin. Ruokaostokset pääsee hoitamaan aseman yhteydessä olevissa isoissa marketeissa. Alueella on koulut ammattikorkeakouluun saakka.

Rakennuksen tiedot

  • Asumismuoto Vuokrakoti
  • Hissit Ei
  • Talosauna Ei
  • Pyykkitupa Kyllä
  • Kuivaushuone Kyllä
  • Asuntoja 42

Huoneistot ja pohjakuvat: Markkinatie 14, Kerrostalo, Piharakennus

Hae asuntotyyppiä

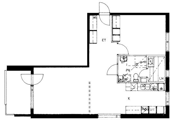
Markkinatie 14 B 19

2h+k+s

, Kerrostalo

61.5 m2

Kerros 3/4

Markkinatie 14 B 14

2h+k+s

, Kerrostalo

62.5 m2

Kerros 2/4