Kohteen esittely
Kerrostalo-/ rivitalokohde Helsingin Marjaniemessä. Hissi vain B-rapussa. Kerhotila ja kuivaushuone. Kiinteistössä on kaksi autotallia. Muut autopaikat (avo- ja hallipaikkoja) sijaitsevat Tulisuontien pysäköinnin tiloissa, varaus Kotikulman tai palvelukeskuksen kautta.
Hyvien kulkuyhteyksien ja palveluiden äärellä. Loistavat ulkoilumahdollisuudet ja vieressä Marjaniemen siirtolapuutarha.
Miksi Asuntosäätiö?
Me uskomme, että onnellinen koti ja laadukas asuminen kuuluvat kaikille. Emme tavoittele voittoa, vaan käytämme kaikki vastikkeista ja vuokrista saadut tulot toimintamme kehittämiseen. Jo yli 33 000 suomalaista on valinnut Asuntosäätiön tarjoaman kodin. Tiesithän, että myös lemmikit ovat tervetulleita kaikkiin koteihimme!
Rakennuksen tiedot
- Asumismuoto Asokoti
- Keskimääräinen asumisoikeusmaksu / jm² 431,52€
- Hissit 1
- Talosauna Ei
- Kuivaushuone Kyllä
- Asuntoja 29
- Asuinrakennuksia 3
- Käyttövastike / kk / jm² 16,66€
- Valmistumisvuosi 1998
- Porrashuoneet 2
- Energialuokka D, E
- Lämmitysmuoto Kauko
- Autopaikat 23
- Kerhohuone 1
- Laajakaista DNA Welho
- Antennijärjestelmä Kaapeli
- KaapeliTV DNA
- Kattomateriaali Pelti
- Lemmikit Sallittu
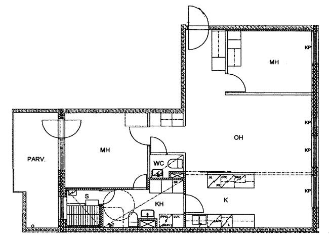
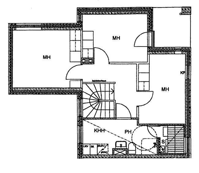
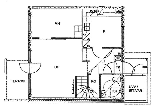
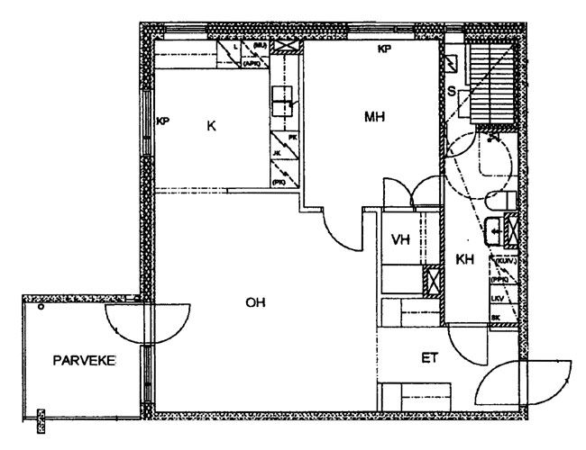
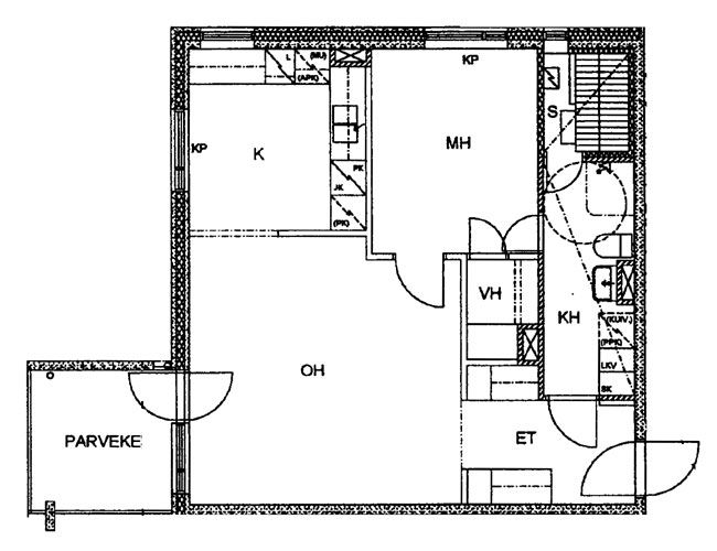
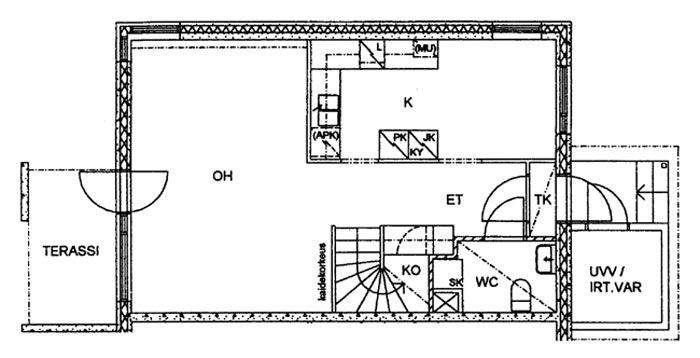
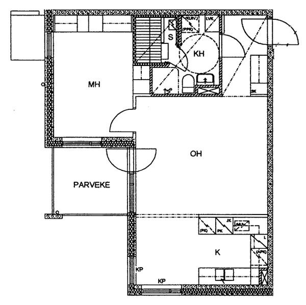
Huoneistot ja pohjakuvat: Ilotulitustie 12, Kerrostalo, Rivitalo
Lisää hakemukselle kaikki haluamasi asuntotyypit. Mahdollisuutesi asunnon saamiseksi paranevat, kun voimme tarjota sinulle kaikkia valitsemasi asuntotyypin asuntoja, jotka mahdollisesti vapautuvat myöhemmin tästä kohteesta. Olet automaattisesti näiden asuntotyyppien hakuprosessissa.
Ilotulitustie 12 B 15
1h+kk+s
, Kerrostalo
38.5 m2
2/4
Ilotulitustie 12 B 15
1h+kk+s
, Kerrostalo
38.5 m2
Kerros 2/4
Ilotulitustie 12 B 11
1h+kk+s
, Kerrostalo
38.5 m2
1/4
Ilotulitustie 12 B 11
1h+kk+s
, Kerrostalo
38.5 m2
Kerros 1/4
Ilotulitustie 12 A 6
2h+k+s
, Kerrostalo
54.5 m2
3/4
Ilotulitustie 12 A 6
2h+k+s
, Kerrostalo
54.5 m2
Kerros 3/4
Ilotulitustie 12 A 2
2h+k+s
, Kerrostalo
54.5 m2
2/4
Ilotulitustie 12 A 2
2h+k+s
, Kerrostalo
54.5 m2
Kerros 2/4
Ilotulitustie 12 A 3
2h+k+s
, Kerrostalo
56.5 m2
Kerros 2/4
Ilotulitustie 12 A 7
2h+k+s
, Kerrostalo
56.5 m2
3/4
Ilotulitustie 12 A 7
2h+k+s
, Kerrostalo
56.5 m2
Kerros 3/4
Ilotulitustie 12 B 14
2h+k+s
, Kerrostalo
57.5 m2
2/4
Ilotulitustie 12 B 14
2h+k+s
, Kerrostalo
57.5 m2
Kerros 2/4
Ilotulitustie 12 B 18
2h+k+s
, Kerrostalo
57.5 m2
3/4
Ilotulitustie 12 B 18
2h+k+s
, Kerrostalo
57.5 m2
Kerros 3/4
Ilotulitustie 12 A 8
2h+kk+s
, Kerrostalo
46.5 m2
3/4
Ilotulitustie 12 A 8
2h+kk+s
, Kerrostalo
46.5 m2
Kerros 3/4
Ilotulitustie 12 A 4
2h+kk+s
, Kerrostalo
46.5 m2
2/4
Ilotulitustie 12 A 4
2h+kk+s
, Kerrostalo
46.5 m2
Kerros 2/4
Ilotulitustie 12 B 13
2h+kk+s
, Kerrostalo
46.5 m2
2/4
Ilotulitustie 12 B 13
2h+kk+s
, Kerrostalo
46.5 m2
Kerros 2/4
Ilotulitustie 12 B 17
2h+kk+s
, Kerrostalo
46.5 m2
3/4
Ilotulitustie 12 B 17
2h+kk+s
, Kerrostalo
46.5 m2
Kerros 3/4
Ilotulitustie 12 A 5
3h+k+s
, Kerrostalo
78 m2
2/4
Ilotulitustie 12 A 5
3h+k+s
, Kerrostalo
78 m2
Kerros 2/4
Ilotulitustie 12 B 16
3h+k+s
, Kerrostalo
78 m2
Kerros 3/4
Ilotulitustie 12 B 10
3h+k+s
, Kerrostalo
78 m2
1/4
Ilotulitustie 12 B 10
3h+k+s
, Kerrostalo
78 m2
Kerros 1/4
Ilotulitustie 12 A 1
3h+k+s
, Kerrostalo
78 m2
1/4
Ilotulitustie 12 A 1
3h+k+s
, Kerrostalo
78 m2
Kerros 1/4
Ilotulitustie 12 B 12
3h+k+s
, Kerrostalo
78 m2
2/4
Ilotulitustie 12 B 12
3h+k+s
, Kerrostalo
78 m2
Kerros 2/4
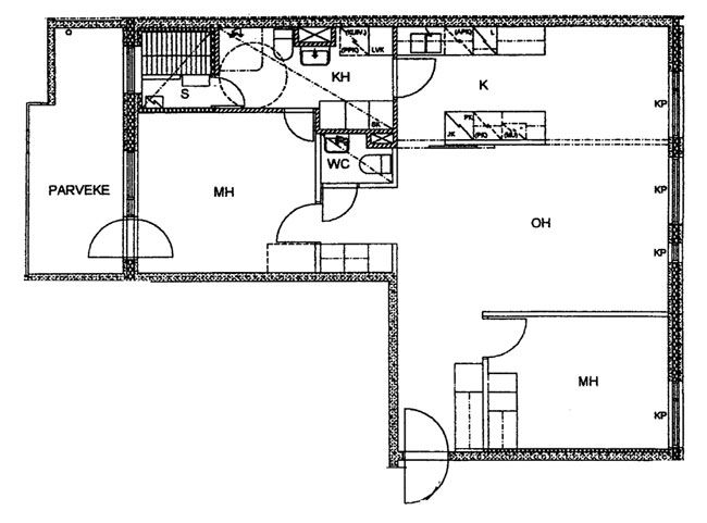
Ilotulitustie 12 B 19
4h+k+s
, Kerrostalo
87 m2
3-4/4
Ilotulitustie 12 B 19
4h+k+s
, Kerrostalo
87 m2
Kerros 3-4/4
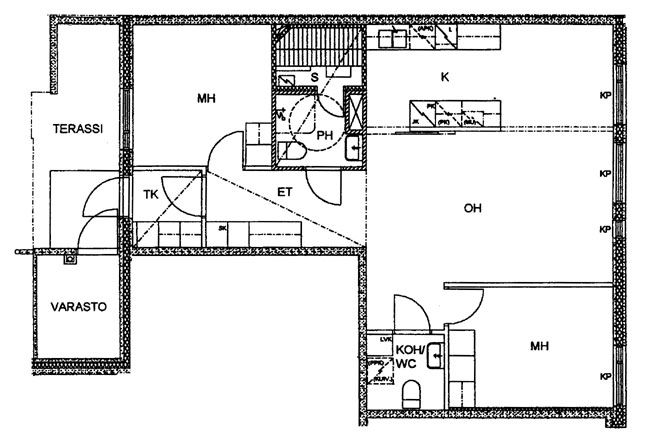
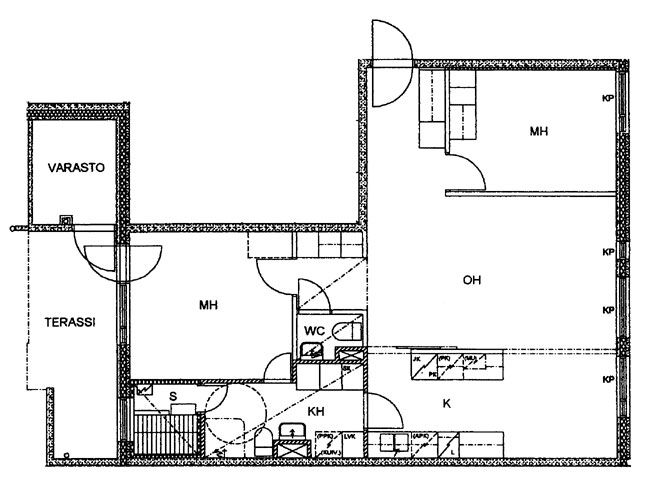
Ilotulitustie 12 D 21
4h+k+s
, Rivitalo
94 m2
1-2/2
Ilotulitustie 12 D 21
4h+k+s
, Rivitalo
94 m2
Kerros 1-2/2
Ilotulitustie 12 E 22
4h+k+s
, Rivitalo
94 m2
1-2/2
Ilotulitustie 12 E 22
4h+k+s
, Rivitalo
94 m2
Kerros 1-2/2
Ilotulitustie 12 F 23
4h+k+s
, Rivitalo
94.5 m2
1-2/2
Ilotulitustie 12 F 23
4h+k+s
, Rivitalo
94.5 m2
Kerros 1-2/2
Ilotulitustie 12 C 20
4h+k+s
, Rivitalo
94.5 m2
1-2/2
Ilotulitustie 12 C 20
4h+k+s
, Rivitalo
94.5 m2
Kerros 1-2/2
Ilotulitustie 12 J 27
5h+k+s
, Rivitalo
103.5 m2
1-2/2
Ilotulitustie 12 J 27
5h+k+s
, Rivitalo
103.5 m2
Kerros 1-2/2
Ilotulitustie 12 K 28
5h+k+s
, Rivitalo
106 m2
1-2/2
Ilotulitustie 12 K 28
5h+k+s
, Rivitalo
106 m2
Kerros 1-2/2
Ilotulitustie 12 L 29
5h+k+s
, Rivitalo
106 m2
1-2/2
Ilotulitustie 12 L 29
5h+k+s
, Rivitalo
106 m2
Kerros 1-2/2
Ilotulitustie 12 I 26
5h+k+s
, Rivitalo
106 m2
1-2/2
Ilotulitustie 12 I 26
5h+k+s
, Rivitalo
106 m2
Kerros 1-2/2
Ilotulitustie 12 G 24
5h+k+s
, Rivitalo
106 m2
1-2/2
Ilotulitustie 12 G 24
5h+k+s
, Rivitalo
106 m2
Kerros 1-2/2
Ilotulitustie 12 H 25
5h+k+s
, Rivitalo
106 m2
1-2/2
Ilotulitustie 12 H 25
5h+k+s
, Rivitalo
106 m2
Kerros 1-2/2


